W
wolfgangpue06.12.14 00:10Hallo,
ich hab schon vor einiger Zeit einen Selbstentwurf vorgestellt. Da sich vieles geändert hat, stell ich meinen Plan noch mal vor. Auch vom Baumeister wurde der Plan schon abgeändert.
Zur Info:
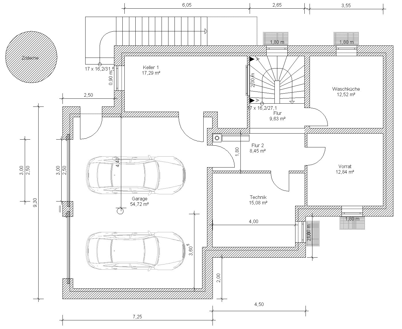
- Süden ist dort wor der Erker ist (unten). Hang aufsteigend: Westen -> Osten
- Stiegenhaus ist offen, jedoch nicht in den Keller runter. Luftraum oben, großes Dachfenster
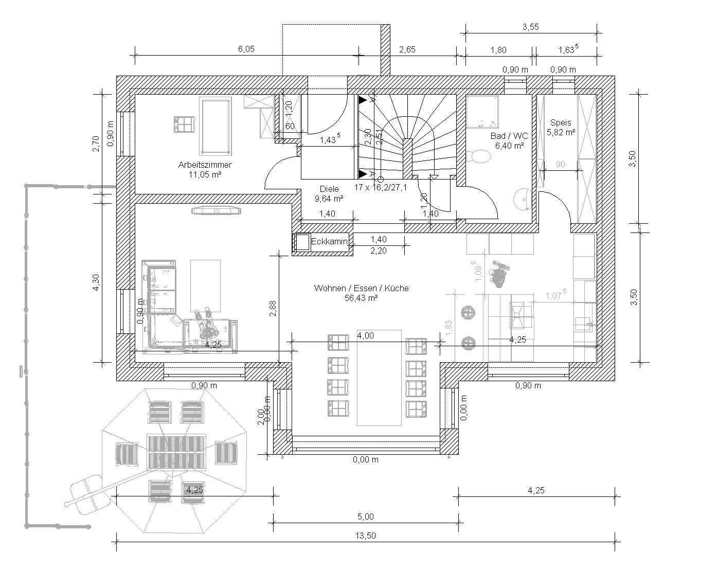
- Zwischen Diele und Esszimmer ist eine versenkbare Schiebetüre
- Zwischen Schlafzimmer und Ankleide kommen Schiebeelemente
- Kniestock bei 1,25cm
- HauptGarderobe wird im Keller sein, im Erdgeschoss ist nur eine kleine GästeGarderobe vorgesehen
Beim Erker bin ich mir noch nicht sicher wie dieser ausgeführt werden sollte:
- Aktuell hat er ein Walmdach
- Könnte mir auch ein Flachdach vorstellen
- Erdgeschoss (Erker) könnte auch rundum aus Glas sein mit Stützen
- Erker-Fassade: Putz, Holz, Stein?
- Oben im Erker wären auch normale Fenster möglich statt türhohe Fenstern
Was haltet ihr jetzt vom Plan und hättet ihr auch Ideen für den Erker?
lg Wolfgang
Update: Plan wurde angepasst
- Badewanne und Toilette wurden getauscht
- Garderobe vergrößert und mit Arbeitszimmertür getauscht
- Neue Grundrisse sind in einem eigenen Post weiter unten





ich hab schon vor einiger Zeit einen Selbstentwurf vorgestellt. Da sich vieles geändert hat, stell ich meinen Plan noch mal vor. Auch vom Baumeister wurde der Plan schon abgeändert.
Zur Info:
- Süden ist dort wor der Erker ist (unten). Hang aufsteigend: Westen -> Osten
- Stiegenhaus ist offen, jedoch nicht in den Keller runter. Luftraum oben, großes Dachfenster
- Zwischen Diele und Esszimmer ist eine versenkbare Schiebetüre
- Zwischen Schlafzimmer und Ankleide kommen Schiebeelemente
- Kniestock bei 1,25cm
- HauptGarderobe wird im Keller sein, im Erdgeschoss ist nur eine kleine GästeGarderobe vorgesehen
Beim Erker bin ich mir noch nicht sicher wie dieser ausgeführt werden sollte:
- Aktuell hat er ein Walmdach
- Könnte mir auch ein Flachdach vorstellen
- Erdgeschoss (Erker) könnte auch rundum aus Glas sein mit Stützen
- Erker-Fassade: Putz, Holz, Stein?
- Oben im Erker wären auch normale Fenster möglich statt türhohe Fenstern
Was haltet ihr jetzt vom Plan und hättet ihr auch Ideen für den Erker?
lg Wolfgang
Update: Plan wurde angepasst
- Badewanne und Toilette wurden getauscht
- Garderobe vergrößert und mit Arbeitszimmertür getauscht
- Neue Grundrisse sind in einem eigenen Post weiter unten
> Hauptgaderobe wird im Keller sein, im Erdgeschoss ist nur eine kleine Gästegarderobe vorgesehen
Finde ich einen sehr langen Weg wenn ich mal das Haus verlassen und betreten will. über kurz oder lang würde ich behaupten, wird die Tür im EG verwendet und somit auch die Garderobe dort und dafür ist Sie zu klein.
Finde ich einen sehr langen Weg wenn ich mal das Haus verlassen und betreten will. über kurz oder lang würde ich behaupten, wird die Tür im EG verwendet und somit auch die Garderobe dort und dafür ist Sie zu klein.
Zur Terrasse zu kommen wird eng. Von der Couch die Küche aber nicht den Garten zu sehen gefällt mir nicht. Garderobe zu klein und hinter der Tür schlecht erreichbar. Selbst wenn die Erwachsenen nur 1 Jacke dort haben sollten (+Schuhe), kommen noch mehrere Kinderjacken und Schuhe dazu. (Kinder gehen meist zur Haustür raus - zum Kiga mit Eltern, zur Schule allein, wenn Freunde zum Spielen abholen...) Das wird schon für diese 4 eng. Platz für Gäste bleibt da keiner.
Eine richtige Garderobe (Jacken, Schuhe, Schals, Mützen, Sporttaschen...) sehe ich aber auch im Keller nirgends?
Das OG überzeugt mich nicht. Das Bad wirkt beengt, das WC ist unter 2m. Das geht auf jeden Fall besser.
Eine richtige Garderobe (Jacken, Schuhe, Schals, Mützen, Sporttaschen...) sehe ich aber auch im Keller nirgends?
Das OG überzeugt mich nicht. Das Bad wirkt beengt, das WC ist unter 2m. Das geht auf jeden Fall besser.
Im EG würde ich den Eingang zum Arbeitszimmer und die Garderobennische tauschen, so ist die Nische nicht nutzbar, da ja immer die Haustür im Weg ist.
Im OG kommen mir die Fenster recht klein vor.
Im Flur im EG und OG fehlt mir ein Fenster. Das könnte dunkel werden. Ah, gerade gelesen, es kommt ein Dachfenster rein. Ok, dann ist das OG hell genug, aber im EG würde ich trotzdem noch ein schönes Fenster einplanen.
Hauptgarderobe im Keller finde ich auch unvorteilhaft, das gibt ein ständiges Hoch und runter Gerenne auf der Suche nach dem richtigen Kleidungsstück - gerade bei Kinder.
Erker, entweder Satteldach oder Flachdach.
Mir gefallen Häuser, wo das Haupthaus verklinkert und der Zwerchgiebel dann verputzt ist - hätte ich auch gerne so gehabt.
Im OG kommen mir die Fenster recht klein vor.
Im Flur im EG und OG fehlt mir ein Fenster. Das könnte dunkel werden. Ah, gerade gelesen, es kommt ein Dachfenster rein. Ok, dann ist das OG hell genug, aber im EG würde ich trotzdem noch ein schönes Fenster einplanen.
Hauptgarderobe im Keller finde ich auch unvorteilhaft, das gibt ein ständiges Hoch und runter Gerenne auf der Suche nach dem richtigen Kleidungsstück - gerade bei Kinder.
Erker, entweder Satteldach oder Flachdach.
Mir gefallen Häuser, wo das Haupthaus verklinkert und der Zwerchgiebel dann verputzt ist - hätte ich auch gerne so gehabt.
Verstehe das obere eine Kinderzimmer nicht - hast du da einfach die Wand nicht im Programm wegbekommen, oder hat das Kind ein Loch mit Fenster am Ende neben seinem Zimmer?
Auch ist mir die Terrasse nicht ganz klar - die hat ja Blick auf die Auffahrt - wenn da auch die Straße liegt hat jeder Einblick auf eure Grillfeste (da kann man dann ja auch eher schwer Bäume pflanzen).
Auch ist mir die Terrasse nicht ganz klar - die hat ja Blick auf die Auffahrt - wenn da auch die Straße liegt hat jeder Einblick auf eure Grillfeste (da kann man dann ja auch eher schwer Bäume pflanzen).
Der Plan ist irreführend: die Maße können nicht stimmen bzw einige sind falsch und kommen nicht hin.
ZB hat die Wohnzimmertür zwei verschiedene Vermaßungen. Die Erkerseite soll 2 Meter sein. Der Durchgang Wohnzimmer /Essen 2,88 . Wenn man vergleicht, muss da was falsch sein.
Wenn dort noch mit Brüstungen und Türhöhen gearbeitet wird, dann bitte ausschalten.
Ansonsten ist eine Einschätzung über den Entwurf sehr schwierig.
ZB hat die Wohnzimmertür zwei verschiedene Vermaßungen. Die Erkerseite soll 2 Meter sein. Der Durchgang Wohnzimmer /Essen 2,88 . Wenn man vergleicht, muss da was falsch sein.
Wenn dort noch mit Brüstungen und Türhöhen gearbeitet wird, dann bitte ausschalten.
Ansonsten ist eine Einschätzung über den Entwurf sehr schwierig.
Ähnliche Themen