Hausbau - Ratgeber
Bauherrenhilfe
- Bauherrenhilfe vor Vertragsabschluss
-- Warum einen unabhängigen Baubetreuer?
-- Vertragsgrundlagen
-- Bausumme
-- Zahlungsplan zur Kostenkontrolle
-- Pflichten des Bauherren vor Vertragsabschluss
-- Unterlagen beim Hausbau vor Vertragsabschluss
- Bauherrenhilfe nach Vertragsabschluss
-- Bauantrag bei Behörden
-- Bau-Genehmigungsverfahren bei Baubehörden
-- Bauspezifische Versicherungen
-- Bauzeitenplan
-- Baubeginn - die Letzten Pflichten der Bauherrschaft
- Bauherrenhilfe während der Bauzeit
- Gewährleistungsansprüche
- Bauabnahme
Baufinanzierung
- Baufinanzierung - Allgemeine Fragen
- Kreditarten
- Kredit-Konditionen
- Bausparen
- Staatliche Förderungen
- Verkehrswert
- Haushaltsrechnung und Bonität
Hausbau Planung
- Haustypen
- Hausbau Vorbereitungsarbeiten
- Das Baugrundstück
- Baugrund beim Hausbau
- Baurecht
- Gebäudeschutz
- Erdarbeiten und Wasserhaltung
- Stützmauern
- Einfriedung
- Untergeschoss
- Kanalisation
- Tragende Elemente
- Nichttragende Innenwände
- Fundation / Fundament
- Deckenkonstruktionen
- Dächer
- Kaminanlagen
- Treppen Rampen Leitern
- Dachbeläge und Spengler
- Fenster
- Sonnen und Wetterschutz
- Aussenputze
- Einbauten, Küchen, Türen
- Bodenbeläge und Unterlagsböden
- Parkett
- Gips, Wand, Decke
Haustechnik und Energie
- Heiztechnik
- Lüftung und Klimatechnik
- Sanitärtechnik
- Elektrotechnik
- Erneuerbare Energie
Whirlpools / Jacuzzi
Hausbau Magazin
- Baufinanzierung trotz Krise?
- Das Blockhaus
- Moderne Dämmstoffe im Vergleich
- Erker Vor- und Nachteile
- Glasflächen beim Hausbau
- Günstig ein Haus Bauen
- Mediterraner Hausbaustil
- Mehrgenerationenhaus
- Moderne Architektur
- Gartengestaltung leicht gemacht
- Traditioneller Ziegelbau
- Villa als höchster Traum
- Im Eigenheim Ruhestand geniessen
- Altbau sanieren
- Kauf einer Holzgarage
- Immobilienmakler
- Arbeitshandschuhe für den Winter
- Zuhause verschönern
- Outdoor-Plissees
- Schlafzimmer planen
- Terrassenüberdachung
- Wohngebäudeversicherung
- Zaunarten und Eigenschaften
- Hauseingang gestalten
- Der perfekte Grundriss
- Sparsamer heizen im Altbau
- Einfamilienhaus smart finanzieren
- Planung einer PV-Anlage
- Neues Haus
- Immobilienfinanzierung
- Installation einer Photovoltaikanlage
- Asbest erkennen und entfernen
- Gartenpflege im Frühling – worauf achten
- Sauna im Fokus - Wellness zuhause
- Erfolgreich vermieten
- Die perfekte Winterbekleidung
- Das Niedrigenergiehaus
- Der April und seine Stürme
- Architektonische Vielfalt
- Ökologisch und nachhaltig bauen
- Das perfekte Schlafzimmer
- Nachhaltige Energieversorgung
- Zukunftsorientiert bauen
- Nachhaltigkeit beim Hausbau
- Tiny Houses
- Wärmepumpen als nachhaltige Heizvariante
- Maßgeschneiderten Kleiderschrank
- Der richtige Baukredit
- Ratgeber für erfolgreichen Hausbau
- Haus als Altersvorsorge
Do-it-yourself Anleitungen
- Verlegeanleitung für Bodenbeläge und Parkett
- Bodenbeläge und Parkett reinigen und pflegen
- Malerarbeiten am Haus
- Garten Tipps
- Umzug und Reinigung

ᐅ Grundriss-Planung und Platzierung - Einfamilienhaus ca. 200qm auf 900qm Grundstück

Erstellt am: 04.05.21 20:49
S
Samantheus
Y
ypg
21.06.21 23:49
Samantheus schrieb:

Wir planen rechts von der Eingangstür an der Wand einen Einbauschrank / Einbaugarderobe.
Eher nicht, weil Euer Bad ja breiter ist. Wenn man das Fallrohr rechts in die Ecke legt, kommt es im Büro neben dem Fenster raus. Musst Du mal selbst einzeichnen - auf Handy kann ich die Maße nicht vergleichen. Das Problem hast Du verstanden?
Wenn der Architekt mit der Idee von Ecken oder Schlingen ankommt, also eine S-Legung (ich weiß gar nicht, ob das erlaubt ist), dann würde ich das als Bauherr definitiv ablehnen.
S
Samantheus
22.06.21 00:04
Ah ok, verstehe. Ich dachte vielleicht kann das Rohr einfach irgendwo im Boden des Bads beginnen, aber es muss wohl an einer Wand des Bads beginnen und im EG gibt es nicht wirklich Wände die sich dafür anbieten die so platziert sind wie die Badwände im OG. Mit dem Background kann ich jetzt auch noch mal gezielter nachfragen. Vielen Dank!
RomeoZwo22.06.21 08:04
Samantheus schrieb:

Kinderbad: Was stört dich denn daran? Das man potenziell im Kinderzimmer Lärm vom duschen mitbekommt? Oder was anderes? Die Idee die Dusche eher in den Hauswirtschaftsraum mit reinzuziehen finde ich prinzipiell auch nicht schlecht. Eine Dusche mit Glastrennwand möchten wir nicht.

WC EG: Die Größe kommt daher zu Stande das wir uns die Möglichkeit offen halten wollen ggf. mal eine Dusche nachzurüsten. Solange das nicht der Fall, soll ein großer Putzschrank darein. Über die Tür kann man noch mal nachdenken... Du würdest sie dann direkt neben dem Kellerabgang machen? Sodass Richtung Garage maximale Schrankfläche ist?

Dieses Eck im 2. Kinderzimmer finde ich einfach nicht schön. Wie heißt es so schön, einen guten Grundriss kann man in den Schnee pinkeln ;-) . Ich würde daher versuchen die Kinderzimmer Wand gerade zu halten. Die Kinderzimmer sind auch groß genug, dass hinter der Tür nicht unbedingt die 60cm Platz für den schrank sein müssen, d.h. hier kann man evtl. noch mit der Wand/Tür zum Kinderbad/Hauswirtschaftsraum spielen (bzw. den Hauswirtschaftsraum vom Bad zugänglich machen).

Ja, die Tür direkt neben die Treppe. Ich würde die Dusche im EG Bad auch gleich mit bauen lassen. Nur die Armatur und den Abfluss, keine Trennwand. Da kannst immer noch einen Schrank davor stellen, aber später wird das schon ein größerer Umbau (neu Fließen, neue Leitungen). Und wie oft fließt man schon neu, vielleicht nach 40 Jahren?

P.S.: Wo soll in der Ankleide eigentlich ein Schrank hin? Da sind ja nur Fenster ...
RomeoZwo22.06.21 08:25
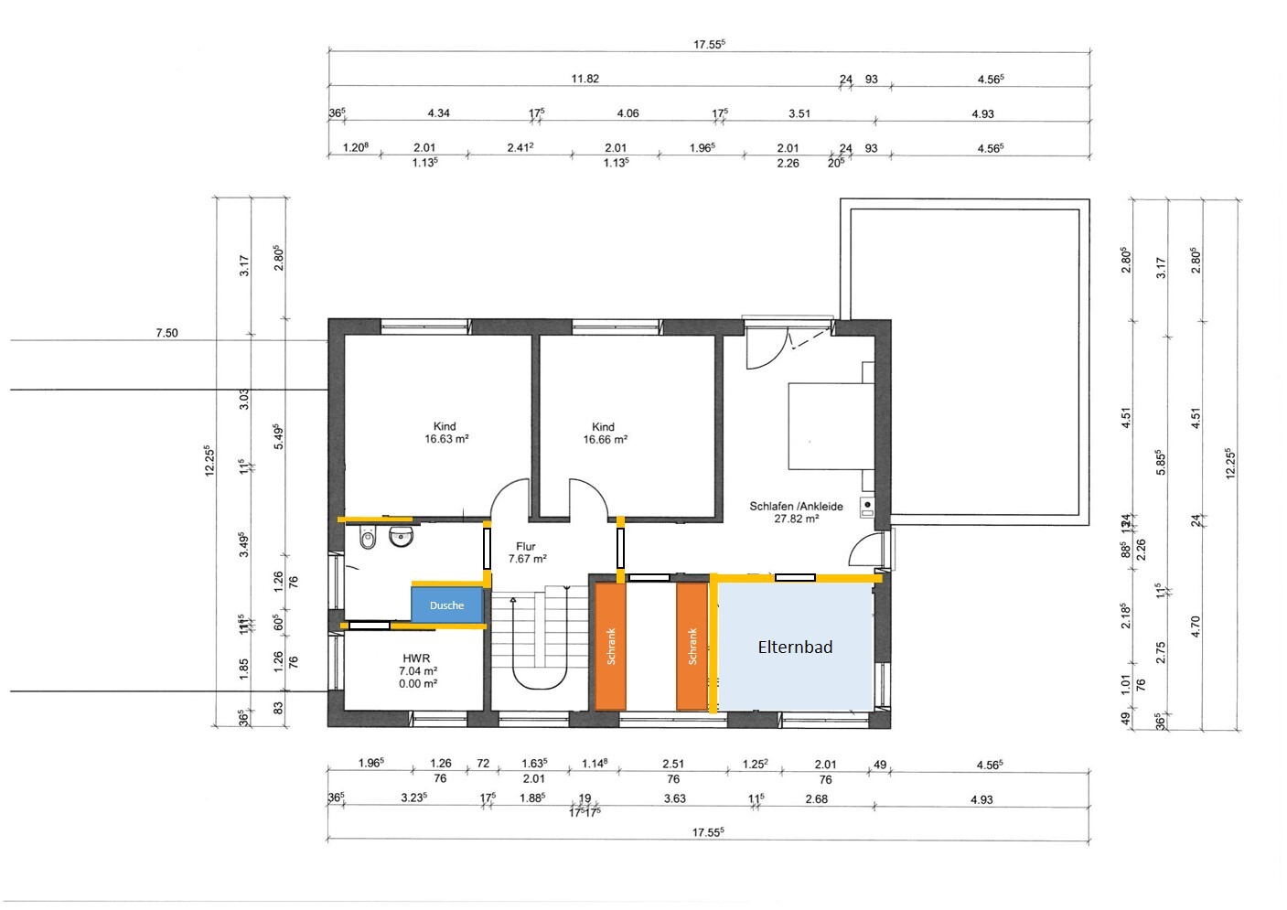
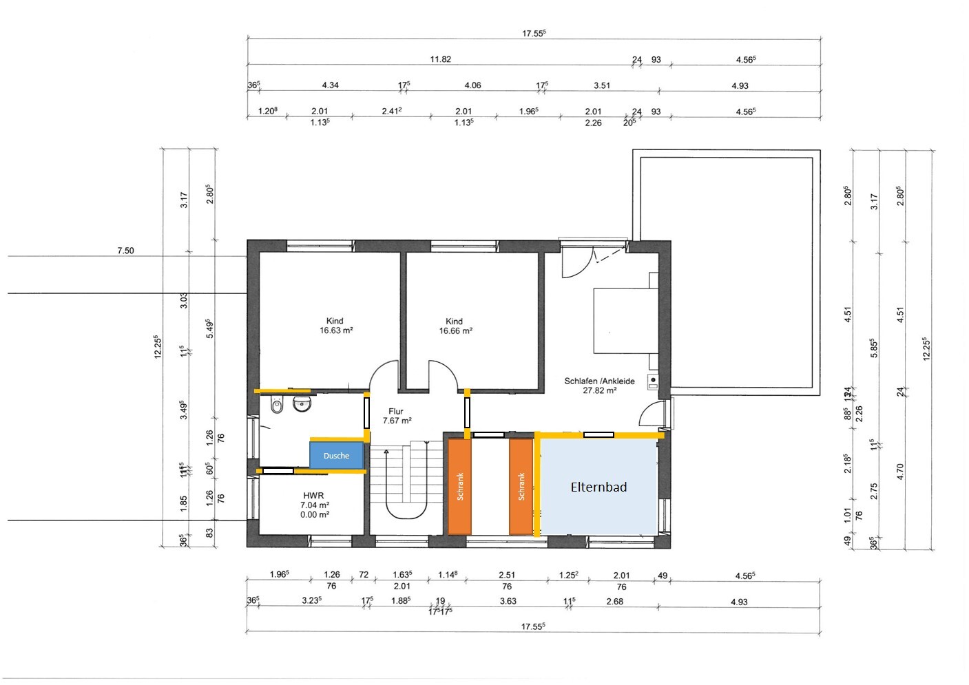
So 100% gefällt es mir auch noch nicht, aber mal als Anregung für das OG ...


Grundriss: Obergeschoss mit zwei Kinderzimmer, Elternschlafzimmer mit Ankleide, Flur, Dusche, HWR.
Y
ypg
22.06.21 08:34
RomeoZwo schrieb:

So 100% gefällt es mir auch noch nicht, aber mal als Anregung für das OG ...

[ATTACH alt="Bild1.jpg"]62860[/ATTACH]
So würde ich es auch eher sehen.
Allerdings möchte ich aber auch mal erwähnen, dass eine Ankleide auch gern mal Platz für einen Hocker (besser 2) und einen Spiegel haben sollte. Ok, Spiegel könnte bei Romeos Bsp gut an die ggü liegender Wand machen. Ich hab die Ausrichtungen nicht im Auge, aber ich würde mal ausprobieren, die Kinderzimmer mit dem Elternbereich zu tauschen: Elternbad über Gäste-WC, Schlafzimmer planoben Links, rechts der Treppe das Kinderbad… das würde dann auch mit dem Fallrohr eher funktionieren.
M
Myrna_Loy
22.06.21 08:46
ypg schrieb:


Allerdings möchte ich aber auch mal erwähnen, dass eine Ankleide auch gern mal Platz für einen Hocker (besser 2) und einen Spiegel haben sollte.
Sonst ist es nämlich nur ein begehbarer Kleiderschrank
😀
kinderzimmertürschrankfallrohrfensterkinderbadhauswirtschaftsraumtreppeankleidespiegel