ᐅ Grundriss-Planung und Platzierung - Einfamilienhaus ca. 200qm auf 900qm Grundstück
Erstellt am: 04.05.21 20:49
S
SamantheusSamantheus schrieb:
Die Ankleide ist tatsächlich so geplant für einen 3m Schrank. Vorher war die Länge 2,96 und wir haben sie jetzt erweitert. Laut Planer müssen je Seite ca. 1.5 cm ab, sodass 3m Schrank passen sollte. Meinst du da geht noch mehr ab?Theorie und Praxis. Der Schlosser arbeitet nach Millimeter, der Putzer nach Zentimeter und der Maurer ist froh wenn er auf dem Grundstück bleibt. So oder so ähnlich hat mir das mal einer beschrieben. 😉
Ne, aber eine gemauerte Wand, ist selten exakt wie im Plan. 1-2 cm kann da schon mal vorkommen. Dann vielleicht nicht genau im rechten Winkel und schon muss der Stuckatuer 2cm mehr ausgleichen in der Ecke. Die Fehlen Dir aber nachher.
Viele schränke sind nicht nur 3m sondern paar Zentimeter mehr, weil noch Rahmen usw.
Dann musst das Teil ja noch aufbauen bzw. in die Lücke reinschieben. Sollte man auch bedenken.
Samantheus schrieb:
Mh uns gefällt der Elterntrakt.. was wäre die Idee von dem Tausch?Muss Euch gefallen. Ich glaube ich mag es nicht, dass es so wirkt als ob das Schlafzimmer einen Flur hat. Weiß auch nicht genau. Ich gucks an und mag es nicht. Aber mag subjektiv sein. Vorteil des Tauschs wäre mit etwas Kreativität den Flur eher in die Ankleide zu integrieren bzw. das Schlafzimmer abzugrenzen und hauptsächlich einen einfachere Leitungsführung weil Bad dann über Büro ergo über Haustechnik liegen würde. (Wenn ich es richtig im Kopf habe).
Samantheus schrieb:
DeckenhöheKann man sich bei dem Schnitt sparen. Meine Meinung tut es nicht Not.Samantheus schrieb:
OfenTrennwand ist viel zu lang. Ich würde mich an die 1/3 2/3 Regel halten.Samantheus schrieb:
KlimatisierungKann man sich sparen, wenn man die Fenster entsprechend plant. Klimatisierung wird ja wohl anscheinend der KfW gegengerechnet…Samantheus schrieb:
PhotovoltaikHalte ich für das einzige vernünftigste.Samantheus schrieb:
WC: Das soll laut Planer kein Problem sein, die Überschneidung in der Zeichnung liegt wohl nur an dem Programm. In echt soll da einfach ganz normal die Wand verlaufen.Entwässerung ist dann im Flur sichtbar. Wahrscheinlich rechts von der Eingangstür an der Bürowand. Geht auf jeden Fall besser, aber ehrlich gesagt finde ich das Bad eine kleine Katastrophe. Ich würde das nicht haben wollen.Samantheus schrieb:
Die Ankleide ist tatsächlich so geplant für einen 3m Schrank.Mind. 3,15.. Wand nach dem mauern überall nachmessen. Putz und Fußleisten abgerechnet verbleiben wenige Möblierungs-Cm… Fußleisten können zur Not ab.Mir gefällt aber auch der Elterntrakt nicht so.
H
hanghaus200018.06.21 19:02Die Badwand unbedingt verschieben. Ich habe wie das Bild von @kbt09 dargestellt genau die Situation mit 2,61 m lichte Deckenhöhe. Es geht man gewaoehnt sich dran. Aber mit 13 cm weniger Hoehe und 5 cm mehr Koerpergroesse rennst gegen die Decke. Lass Dir da keine Fehler vom Programm einreden. So etwas plant ein Architekt nicht. Lass die L Treppe aber ohne Podest. Oder eben mind. Die Wand im Bad verschieben.
S
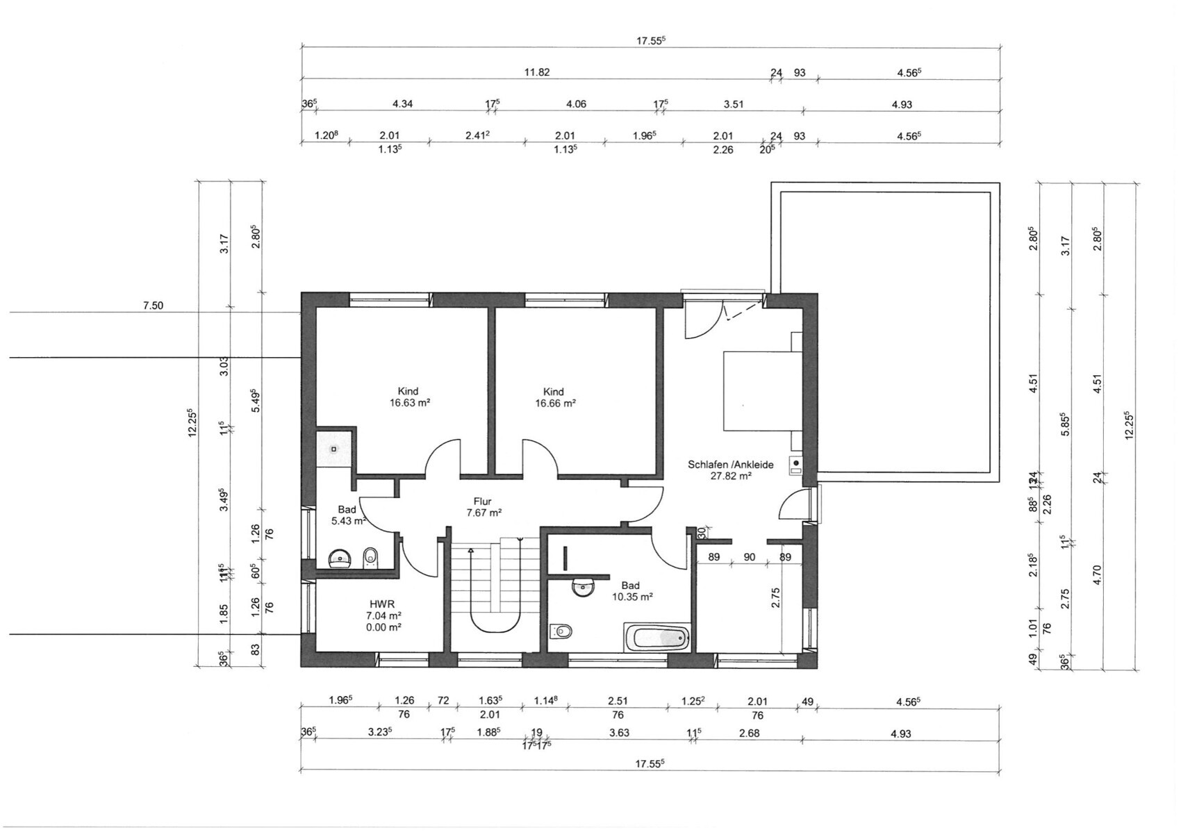
Samantheus19.06.21 00:42Ok, das Treppen/Badwand Thema wird auf alle Fälle noch mal angegangen. Die Größe der Ankleide nehme ich auch noch mal mit. Vielleicht gehen wir dann eher in die andere Richtung (ca. 2.70m), sodass genug Platz für den 2.50m Schrank ist.
Entwässerung Bad nehme ich auch mit.
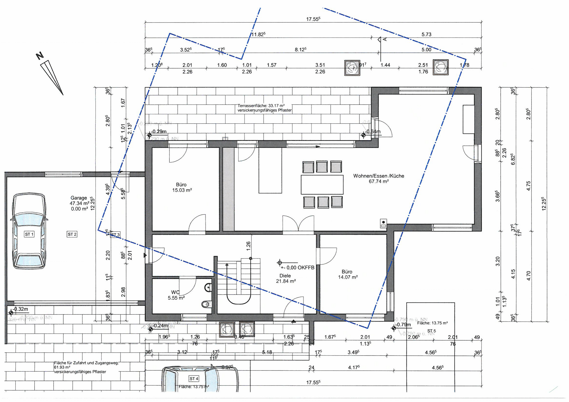
Die Trennwand Wohnen/Essen ergibt sich von der Länge her dadurch das wir auf der Wohnseite gerne ein Lowboard (175m Breite) mit Fernseher hinstellen möchten und daneben eben noch der Kamin soll (lt. Ofenbauer braucht der ca. 75cm Platz). Der Rest ist einfach ein bisschen Puffer damit es nicht so "gequetscht" wirkt. Uns kommt der Durchgang aber auch eher etwas zu schmal vor. Von daher sind wir am überlegen die Trennwand etwas mehr in den Wohnbereich zu schieben, sodass der Übergang etwas offener wirkt weil er mehr in den Anbau rein ragt.
Schnitt:

Entwässerung Bad nehme ich auch mit.
Die Trennwand Wohnen/Essen ergibt sich von der Länge her dadurch das wir auf der Wohnseite gerne ein Lowboard (175m Breite) mit Fernseher hinstellen möchten und daneben eben noch der Kamin soll (lt. Ofenbauer braucht der ca. 75cm Platz). Der Rest ist einfach ein bisschen Puffer damit es nicht so "gequetscht" wirkt. Uns kommt der Durchgang aber auch eher etwas zu schmal vor. Von daher sind wir am überlegen die Trennwand etwas mehr in den Wohnbereich zu schieben, sodass der Übergang etwas offener wirkt weil er mehr in den Anbau rein ragt.
Schnitt:
S
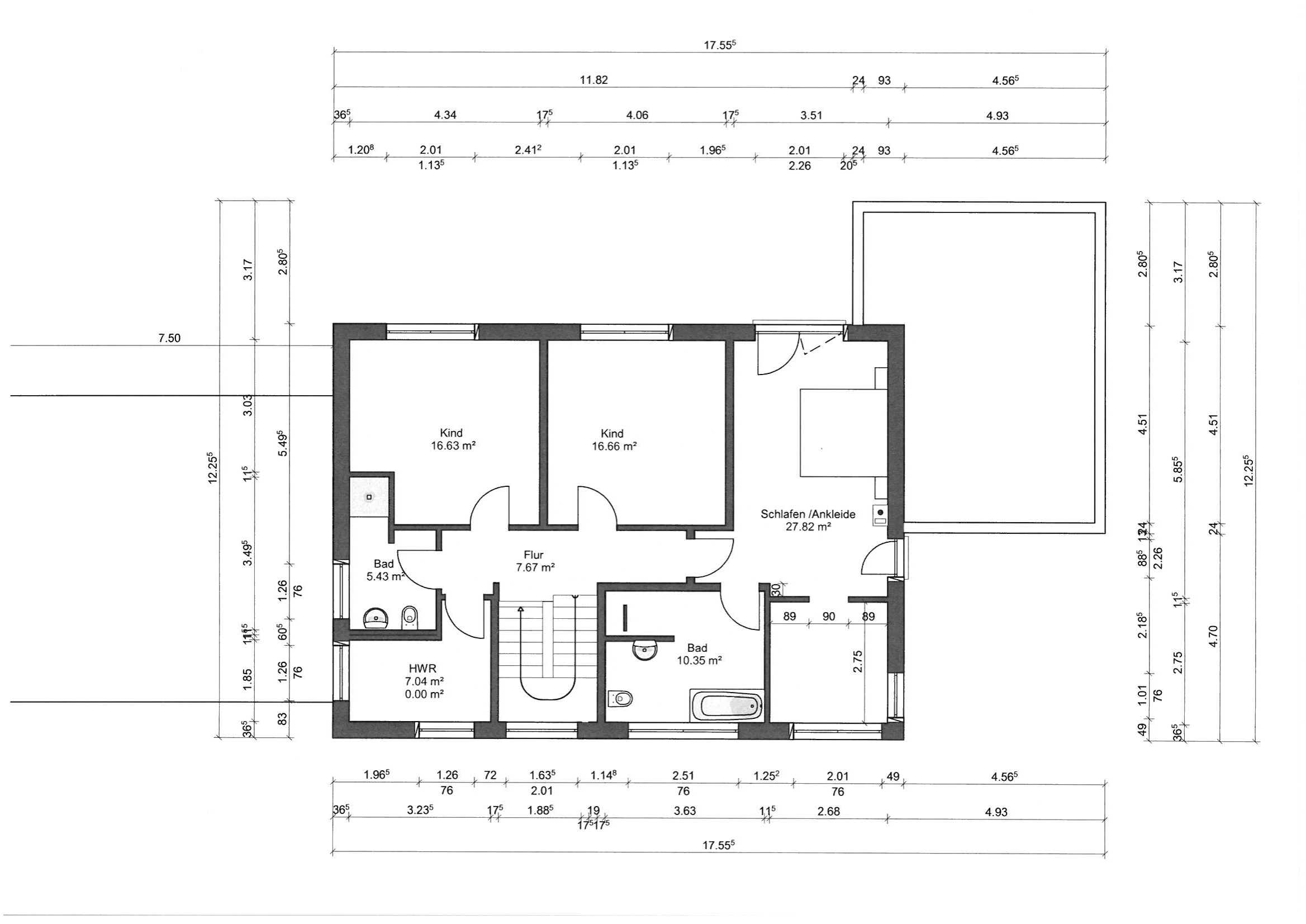
Samantheus21.06.21 15:06Hallo zusammen,
ich hatte heute noch ein Gespräch mit dem Planer, daher hier nun ein Update und das Feedback.
Treppe: Alles ist möglich, sowohl verschieben des Bades, als auch so lassen (Durchgangshöhe immer noch 2m), als auch U-Treppe. Wir haben uns nochmal eine U-Treppenvariante im Grundriss zeichnen lassen. Dadurch ist oben sogar etwas mehr Platz und das Bad wird ein Tick größer.
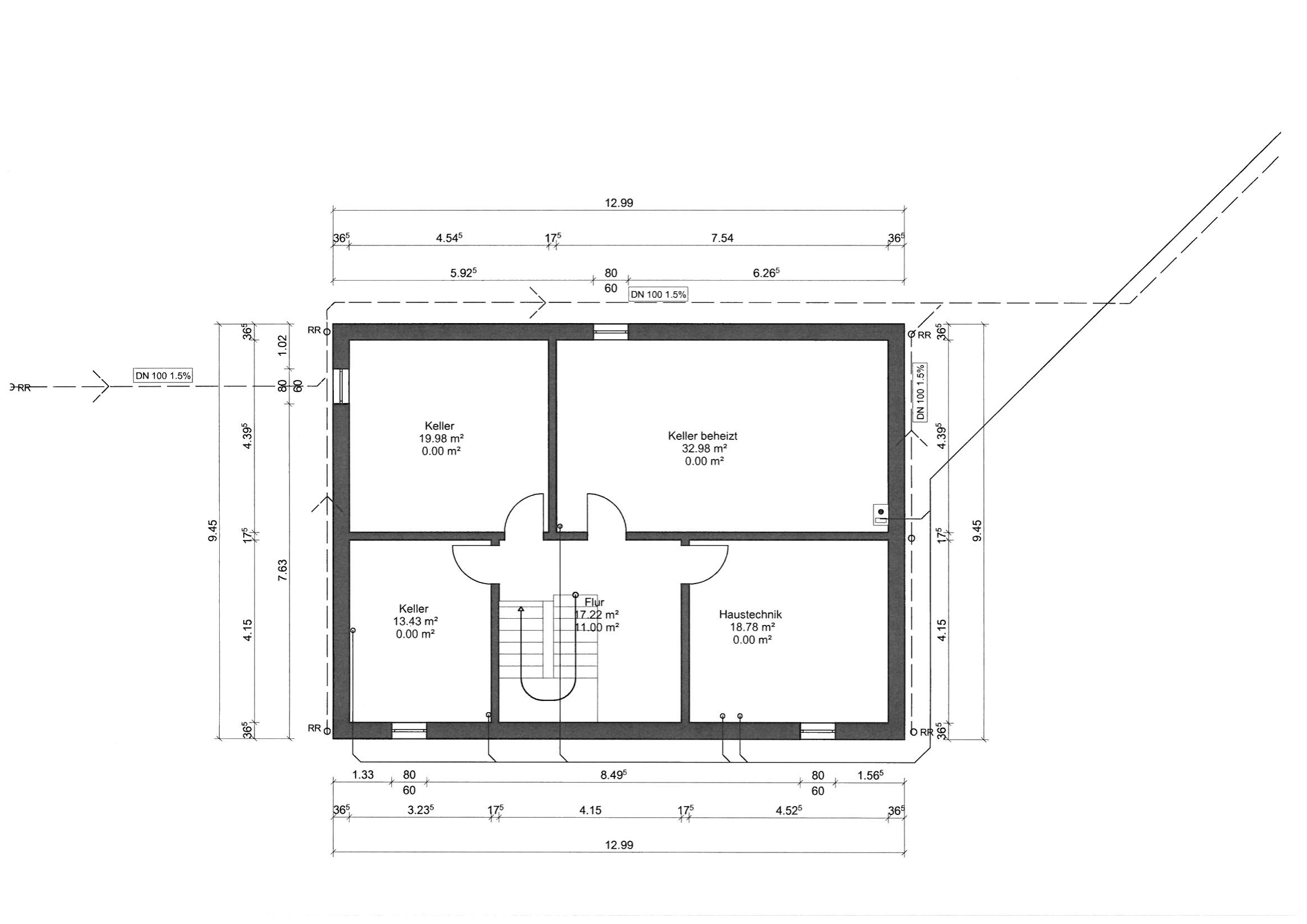
Entwässerung Bad: Wird erst nach der Platzierung und Planung des Bads geplant (die aktuell eingezeichneten Badobjekte dienen nur zur Einschätzung der Größe und stehen nicht für die Platzierung im finalen Bad), aber bzgl. Entwässerung wird es dann schon eine gute Lösung geben....
Elterntrakt: Wir haben die Tür etwas weiter zum Schlafbereich verschoben, sodass der Flur mehr im Flur bleibt und der Elternbereich nicht nach Flur wirkt. Weiterhin haben wir die Ankleide etwas verkleinert und akzeptieren das nur ein 2.50m Schrank passt. Dann wirkt auch das Fenster zwischen Ankleide und Kamin nicht so gedrängt. Wir haben uns auch noch ein paar Alternativen für das Ankleidenfenster zeichnen lassen.
Wirkt der Elterntrakt jetzt stimmiger für euch? Vertauschen von Bad und Ankleide würden wir eigentlich nur ungern, wenn es unbedingt sein muss.
Was sagt ihr zur U-Treppen Variante?
Vielen Dank!
Außenansicht Ankleide Fenster Varianten:



Grundriss U-Treppe / Anpassungen Elterntrakt:



ich hatte heute noch ein Gespräch mit dem Planer, daher hier nun ein Update und das Feedback.
Treppe: Alles ist möglich, sowohl verschieben des Bades, als auch so lassen (Durchgangshöhe immer noch 2m), als auch U-Treppe. Wir haben uns nochmal eine U-Treppenvariante im Grundriss zeichnen lassen. Dadurch ist oben sogar etwas mehr Platz und das Bad wird ein Tick größer.
Entwässerung Bad: Wird erst nach der Platzierung und Planung des Bads geplant (die aktuell eingezeichneten Badobjekte dienen nur zur Einschätzung der Größe und stehen nicht für die Platzierung im finalen Bad), aber bzgl. Entwässerung wird es dann schon eine gute Lösung geben....
Elterntrakt: Wir haben die Tür etwas weiter zum Schlafbereich verschoben, sodass der Flur mehr im Flur bleibt und der Elternbereich nicht nach Flur wirkt. Weiterhin haben wir die Ankleide etwas verkleinert und akzeptieren das nur ein 2.50m Schrank passt. Dann wirkt auch das Fenster zwischen Ankleide und Kamin nicht so gedrängt. Wir haben uns auch noch ein paar Alternativen für das Ankleidenfenster zeichnen lassen.
Wirkt der Elterntrakt jetzt stimmiger für euch? Vertauschen von Bad und Ankleide würden wir eigentlich nur ungern, wenn es unbedingt sein muss.
Was sagt ihr zur U-Treppen Variante?
Vielen Dank!
Außenansicht Ankleide Fenster Varianten:
Grundriss U-Treppe / Anpassungen Elterntrakt:
Ähnliche Themen