ᐅ Grundriss-Planung und Platzierung - Einfamilienhaus ca. 200qm auf 900qm Grundstück
Erstellt am: 04.05.21 20:49
S
SamantheusSamantheus schrieb:
Wo ich mir unschlüssig bin:
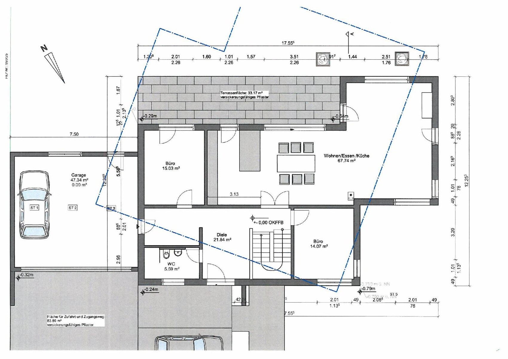
- Treppe gegenüber der Wohnzimmertür: Ich finde hier haben beide Varianten etwas für sich. Wir haben unsere Variante so geplant das man direkt wenn man die Haustür öffnet und rein kommt eine freie Blickachse von der Haustür bis durch in den Garten hat. Das würde dann natürlich wegfallen. Wo wir uns bei der Treppenvariante damals unsicher waren ist der Eingang zum Wohnbereich. Im Endeffekt hat man dann ja ein "Drei-Türen-Eck" was vielleicht etwas gedrängt aussehen kann, und der Kellerabgang wäre dann eher beim Wohnbereich und nicht im Tür und Garagenbereich. Ggf. würde es dann eher Sinn machen eine offene Kellertreppe oder Tür davor zu nehmen und sie dann wirklich irgendwie mit LEDs an den Wänden zu beleuchten oder so. Dann kann es bestimmt schön sein. Aber wie das von der Wirkung ist wenn man gefühlt vom Wohnzimmer in den Keller guckt... ich weiß es nicht. Ja, die Treppe in den Keller offen lassen. Es ist ja heute nicht so, dass der Keller ein kaltes Loch ist. Wir haben unterhalb der Kellertreppe eine Bilderwand. Auf die blickt man, wenn man an der Kellertreppe vorbei läuft. Bei euch wäre das ja auch gar nicht "im Keller" sondern auf halber Höhe (Podesttreppe) das kann man doch super gestalten. Nach oben hin würde ich da ein großes Fenster machen (s. Bild) und bei einer Glasflügeltür zum Wohnzimmer hast dann gleich noch Licht von der Seite.
Den Blick direkt vom Eingang in den Garten wollte ich gar nicht. Jeder Paketbote, Vertreter kann dann direkt dein Wohnzimmer und Garten sehen, inkl. den Kindern die im Garten plantschen. Warum? Da hätte ich lieber die Privatsphäre. Die Wand direkt hinter der Tür kann ja mit einem spannenden Bild / Skulptur, evtl. beleuchtet auch sehr interessant gestaltet werden um den "Wow-Effekt" beim hereintreten zu erzeugen.
Samantheus schrieb:
Was mir vorher besser gefallen hat:
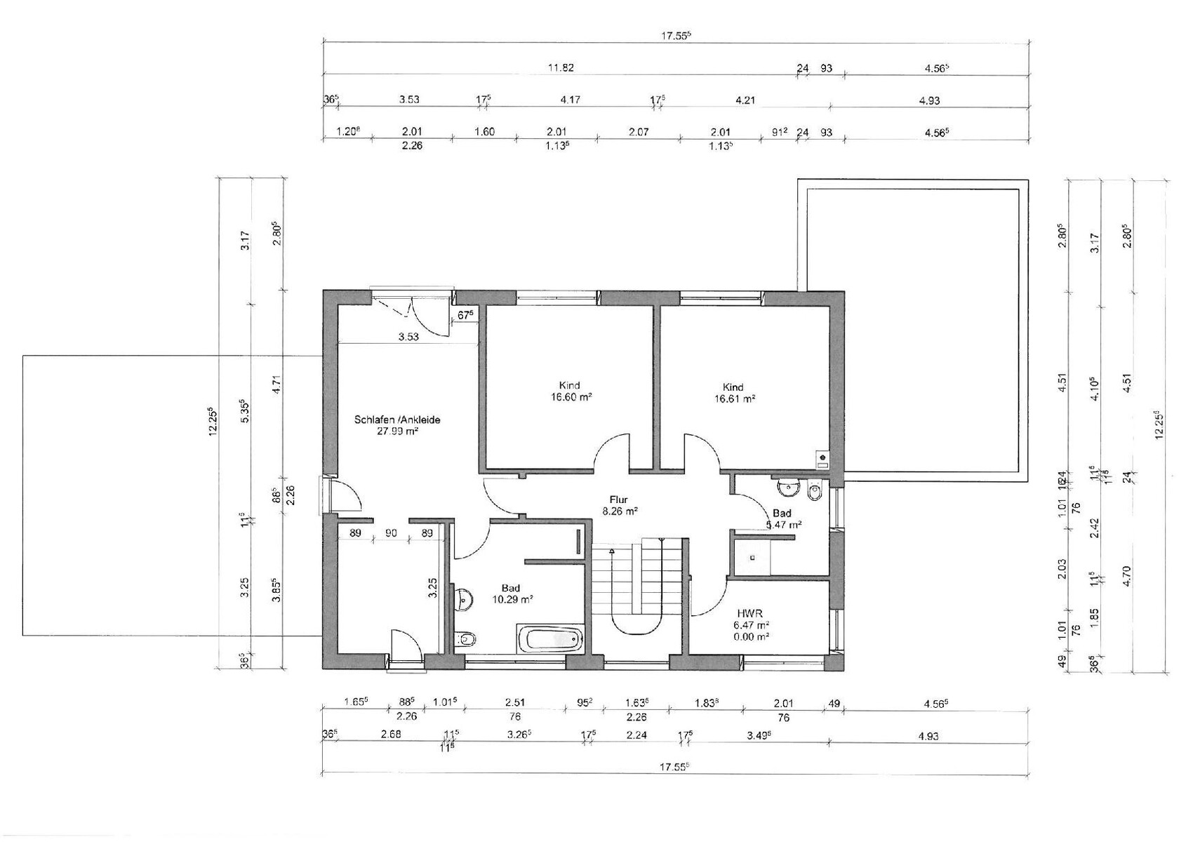
- OG Aufteilung: Da würde ich eher Versuchen den aktuellen Entwurf zu spiegeln. Also die Treppe noch etwas weiter nach rechts und dafür das Elternbad etwas kleiner sodass man die Ankleide bis zur Außenwand ziehen kann, sodass die Ankleide dann ganz unten links ist. Die Vorstellung "Ankleide als Durchgangszimmer" gefällt mir einfach nicht so. Das soll gefühlt eher der geschützteste Bereich im letzten Winkel sein wo sich außer uns keiner hereinverirrt.Klar, wenn der Wunsch ist, die Ankleide möglichst privat zu haben kann die Aufteilung ja noch angepasst werden. Wir haben die Ankleide als Durchgang um so Bad und Schlafzimmer auch von den Geräuschen zu trennen und nach dem Aufstehen nicht mehr ins Schlafzimmer zu müssen. Liegt aber auch daran, dass wir sehr unterschiedliche Aufstehzeiten haben und so den Partner nicht stören.
S
Samantheus23.06.21 17:13Wow, da habt ihr aber echt eine sehr schöne Treppe! Mit Beleuchtung und dem Bild und dem großen Fenster - das gefällt mir echt sehr gut!
Ich glaube du hast Recht, offene Kellertreppe wirkt da einfach besser. Wenn man einfach dann auf Podesthöhe ein Licht anlässt wirkt es auch nicht so dunkel. Die Variante von dir hätte auch den Vorteil das man ein großes Fenster wie in deinem Foto einbauen könnte. Das aktuelle Fenster ist ja "nur" bodentief im OG, da draußen ja die Eingangsüberdachung ein größeres Fenster verhindert.
Geräuschtrennung ist bei uns nicht so wichtig. Wir sind da eher so das viele Diskussionen geführt werden während einer in der Wanne liegt und der andere auf dem Klo sitzt 😉.
Ich glaube du hast Recht, offene Kellertreppe wirkt da einfach besser. Wenn man einfach dann auf Podesthöhe ein Licht anlässt wirkt es auch nicht so dunkel. Die Variante von dir hätte auch den Vorteil das man ein großes Fenster wie in deinem Foto einbauen könnte. Das aktuelle Fenster ist ja "nur" bodentief im OG, da draußen ja die Eingangsüberdachung ein größeres Fenster verhindert.
Geräuschtrennung ist bei uns nicht so wichtig. Wir sind da eher so das viele Diskussionen geführt werden während einer in der Wanne liegt und der andere auf dem Klo sitzt 😉.
Samantheus schrieb:
das man direkt wenn man die Haustür öffnet und rein kommt eine freie Blickachse von der Haustür bis durch in den Garten hat.Ja, unbedingt machen! Das ist eine sehr schöne Sache, auch wenn es nicht regelkonform von FengShui ist 🙂Samantheus schrieb:
Geräuschtrennung ist bei uns nicht so wichtigIhr habt noch keine Teenager!Samantheus schrieb:
Seitentausch: In der ursprünglichen Planung waren Kinderzimmer und Elterntrakt tatsächlich vertauscht, im Rahmen der Planung wurde dann die Seite gewechselt. Hintergrund war das der Platz auf der rechten Seite zu viel war für Hauswirtschaftsraum und Kinderbad, während auf der anderen Seite der Platz für Ankleide und Elternbad eher etwas knapp war.Versteh ich nicht: man hat doch Möglichkeiten, die planobere Trennwand zu versetzen, das kann man doch individuell anpassen. Ich würde es nochmal versuchen mit einer solchen Planung.S
Samantheus24.06.21 16:27S
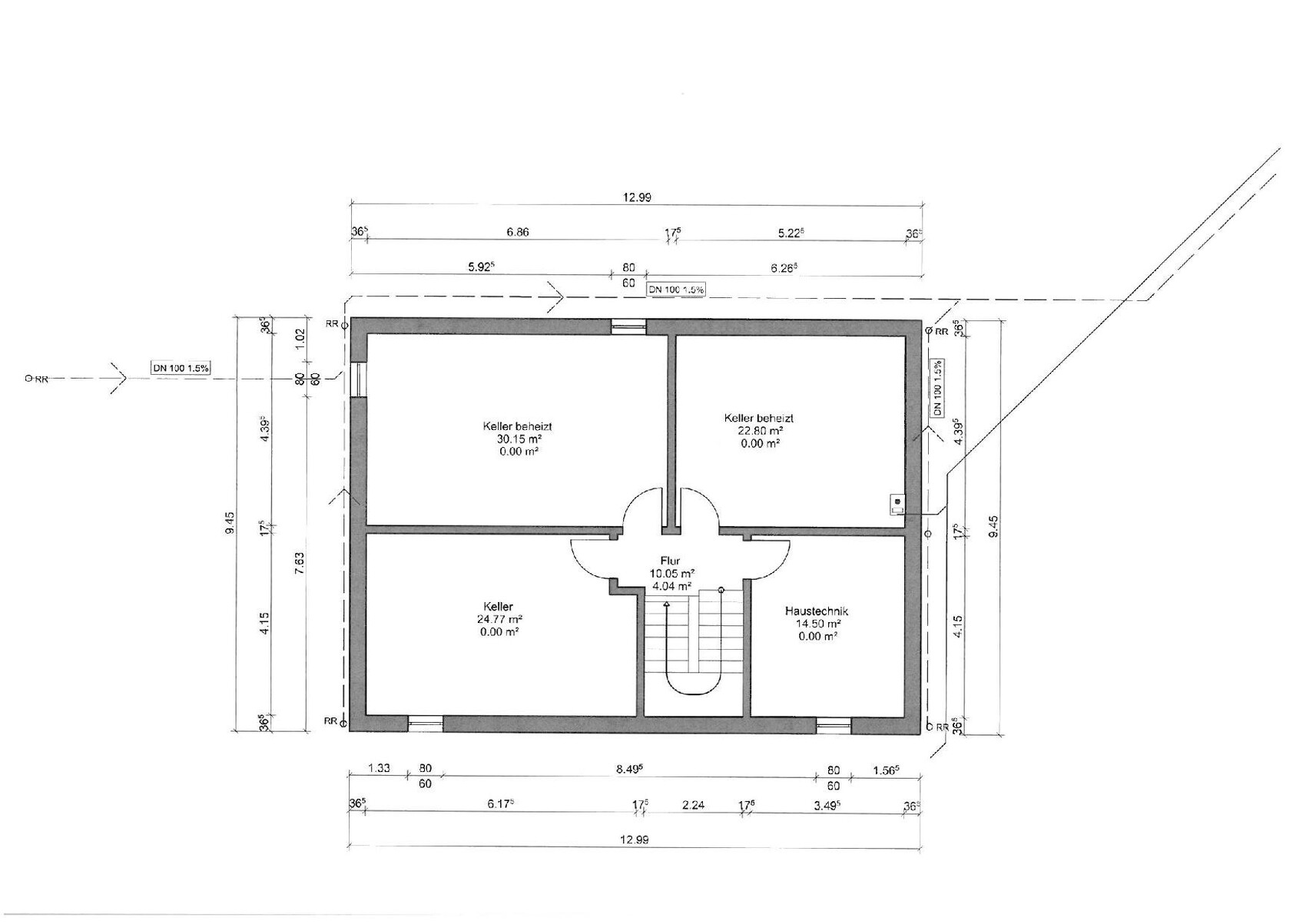
Samantheus28.06.21 09:17Da bzgl. Entwässerung nichts mehr kam, fasse ich das mal so auf das die von euch als potenziell kritischen Punkte damit gelöst wurden.
Heute habe ich auch die Zeichnung für die Alternative 2 bekommen mit dem Tausch von Elterntrakt und Kindertrakt sowie Tausch von Treppe und Eingang. Ich sehe jetzt auf den ersten Blick bei beiden Varianten keine großen Stärken und Schwächen. Wahrscheinlich wird es darauf hinauslaufen offener Eingangsbereich mit Blickachser vs geschlossener Eingangsbereich mit Privatsphäre, was wohl individuell Geschmackssache ist.
Ich habe die Bilder mal angehängt, falls ihr noch was entdeckt.
Ansichten



Grundrisse



Heute habe ich auch die Zeichnung für die Alternative 2 bekommen mit dem Tausch von Elterntrakt und Kindertrakt sowie Tausch von Treppe und Eingang. Ich sehe jetzt auf den ersten Blick bei beiden Varianten keine großen Stärken und Schwächen. Wahrscheinlich wird es darauf hinauslaufen offener Eingangsbereich mit Blickachser vs geschlossener Eingangsbereich mit Privatsphäre, was wohl individuell Geschmackssache ist.
Ich habe die Bilder mal angehängt, falls ihr noch was entdeckt.
Ansichten
Grundrisse
Ähnliche Themen