ᐅ Grundriss-Planung und Platzierung - Einfamilienhaus ca. 200qm auf 900qm Grundstück
Erstellt am: 04.05.21 20:49
S
SamantheusIch hätte eine ähnliche Idee wie Romeo Zwo. Allerdings finde ich es unglücklich, wenn man für Ankleide oder Bad durchs Schlafzimmer muss. Die Ecke im Kinderzimmer finde ich auch nicht so dolle. Da ihr einen Keller habt, könntet ihr evtl auch mit einem kleineren Hauswirtschaftsraum auskommen oben und dafür den Kindern im Bad etwas mehr Platz spendieren. Wenn ihr kein Glas an der Dusche wollt, solltet ihr die aber in ein Eck legen, so dass das Wasser gegen eine Wand spritzen kann. Wenn du die einfach vorne offen lässt, gibts größere Pfützen. In meiner Lösung wäre auch der Flur etwas aufgeräumter und euer Bad würde ebenfalls schön funktionieren, inkl. Entwässerung. Fenster sind übrigens noch nicht angepasst.

Ohne es im Grundriss schon probiert zu haben, es hieß doch, dass an der Seite des EG-Anbaus eine recht viel befahrene Straße ist. D.h. das ist auch eher die laute Seite des Hauses. Das Schlafzimmer dann vielleicht doch auf die andere Seite des Hauses legen? Oft ist es ja auch so, dass das Badewannen Bad von allen genutzt wird, evtl. in der Kombi Duschbad im Elternbereich und großes Bad als Familienbad?
S
Samantheus23.06.21 12:39Vielen Dank für die Antworten und Vorschläge!
WC EG: Ja, wir haben vor die Leitungen und Anschlüsse direkt legen zu lassen.
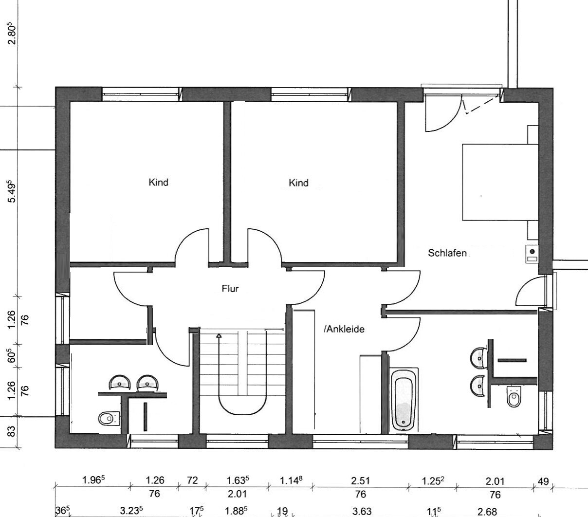
Ankleide Fenster und Nutzung: Stimmt, im letzten Grundriss waren die Ankleidenfenster noch mit einer Alternativvariante eingezeichnet. Wir favorisieren das einzelne bodentiefe Fenster in der Ankleide. Damit wäre das ganze so wie im jetzt angehängten Grundriss. Wir wollen das ganze auch nicht als reinen Schrankraum nutzen, sondern mit Schrankwand auf einer Seite und auf der anderen Seite Sessel, Kommode, Spiegel, etc.
Bad Entwässerung: Mit den Informationen habe ich jetzt noch mal nachgehakt und es wird nun direkt eine Planung der Bad Entwässerung durchgeführt und mir zugeschickt sobald sie fertig ist - ich bin gespannt und werde hier berichten.
Grundrissvarianten: Vielen Dank für die Mühe mit den Skizzen. Sie machen beide einen guten Eindruck. Die zweite Variante gefällt uns jedoch besser als die erste, da wir schon einen direkten Zugang zum Hauswirtschaftsraum vom Flur wollen und ein etwas größerer Flur auch eine schöne offene und großzügige Wirkung erschafft und nicht so das Gefühl vermittelt "es wurde auf jeden cm² optimiert um Platz zu sparen" (wir mögen es gerne etwas weitläufiger). Dann kann man auch an die Waschmaschine wenn sich das Teeniegirl 2 Stunden im Bad einschließt...
Bzgl. der rechten Seite der Treppe gefällt uns unsere Variante immer noch am besten, da dort das Bad mehr am Eingangsbereich des Elterntrakts ist und dann auch jemand anders leichter mal reinhuschen kann. Der sehr private Bereich der Ankleide ist etwas versteckt, sodass man da auch mal Kleidung einfach liegen lassen kann ohne das es direkt jeder sieht. Falls im Sinne der Entwässerung ein Tausch erforderlich sein sollte, könnten wir uns das aber prinzipiell so auch vorstellen. Wahrscheinlich würden wir aber die separate Tür zum Schlafzimmer dann weglassen und nur die Tür am Eingang der Ankleide nehmen. Prinzipiell war unsere Idee beim Elterntrakt das so ein bisschen so aufzuziehen wie eine Junior Suite in einem schönen Hotel, sprich etwas geräumiger (das man z.B. Platz hat daneben noch eine Yoga Matte auszurollen) mit einer kleinen, nur leicht abgetrennter, aber offener Sitzecke (Ankleide) und gut und schnell erreichbares Bad was direkt mit integriert ist. Wir sind auch am überlegen die Elternbadtür ggf. als so eine Art Glasschiebetür wie man sie oft aus Hotels kennt auszuführen.
Seitentausch: In der ursprünglichen Planung waren Kinderzimmer und Elterntrakt tatsächlich vertauscht, im Rahmen der Planung wurde dann die Seite gewechselt. Hintergrund war das der Platz auf der rechten Seite zu viel war für Hauswirtschaftsraum und Kinderbad, während auf der anderen Seite der Platz für Ankleide und Elternbad eher etwas knapp war.
Grundrisse mit korrekten Ankleidefenstern:



WC EG: Ja, wir haben vor die Leitungen und Anschlüsse direkt legen zu lassen.
Ankleide Fenster und Nutzung: Stimmt, im letzten Grundriss waren die Ankleidenfenster noch mit einer Alternativvariante eingezeichnet. Wir favorisieren das einzelne bodentiefe Fenster in der Ankleide. Damit wäre das ganze so wie im jetzt angehängten Grundriss. Wir wollen das ganze auch nicht als reinen Schrankraum nutzen, sondern mit Schrankwand auf einer Seite und auf der anderen Seite Sessel, Kommode, Spiegel, etc.
Bad Entwässerung: Mit den Informationen habe ich jetzt noch mal nachgehakt und es wird nun direkt eine Planung der Bad Entwässerung durchgeführt und mir zugeschickt sobald sie fertig ist - ich bin gespannt und werde hier berichten.
Grundrissvarianten: Vielen Dank für die Mühe mit den Skizzen. Sie machen beide einen guten Eindruck. Die zweite Variante gefällt uns jedoch besser als die erste, da wir schon einen direkten Zugang zum Hauswirtschaftsraum vom Flur wollen und ein etwas größerer Flur auch eine schöne offene und großzügige Wirkung erschafft und nicht so das Gefühl vermittelt "es wurde auf jeden cm² optimiert um Platz zu sparen" (wir mögen es gerne etwas weitläufiger). Dann kann man auch an die Waschmaschine wenn sich das Teeniegirl 2 Stunden im Bad einschließt...
Bzgl. der rechten Seite der Treppe gefällt uns unsere Variante immer noch am besten, da dort das Bad mehr am Eingangsbereich des Elterntrakts ist und dann auch jemand anders leichter mal reinhuschen kann. Der sehr private Bereich der Ankleide ist etwas versteckt, sodass man da auch mal Kleidung einfach liegen lassen kann ohne das es direkt jeder sieht. Falls im Sinne der Entwässerung ein Tausch erforderlich sein sollte, könnten wir uns das aber prinzipiell so auch vorstellen. Wahrscheinlich würden wir aber die separate Tür zum Schlafzimmer dann weglassen und nur die Tür am Eingang der Ankleide nehmen. Prinzipiell war unsere Idee beim Elterntrakt das so ein bisschen so aufzuziehen wie eine Junior Suite in einem schönen Hotel, sprich etwas geräumiger (das man z.B. Platz hat daneben noch eine Yoga Matte auszurollen) mit einer kleinen, nur leicht abgetrennter, aber offener Sitzecke (Ankleide) und gut und schnell erreichbares Bad was direkt mit integriert ist. Wir sind auch am überlegen die Elternbadtür ggf. als so eine Art Glasschiebetür wie man sie oft aus Hotels kennt auszuführen.
Seitentausch: In der ursprünglichen Planung waren Kinderzimmer und Elterntrakt tatsächlich vertauscht, im Rahmen der Planung wurde dann die Seite gewechselt. Hintergrund war das der Platz auf der rechten Seite zu viel war für Hauswirtschaftsraum und Kinderbad, während auf der anderen Seite der Platz für Ankleide und Elternbad eher etwas knapp war.
Grundrisse mit korrekten Ankleidefenstern:
Samantheus schrieb:
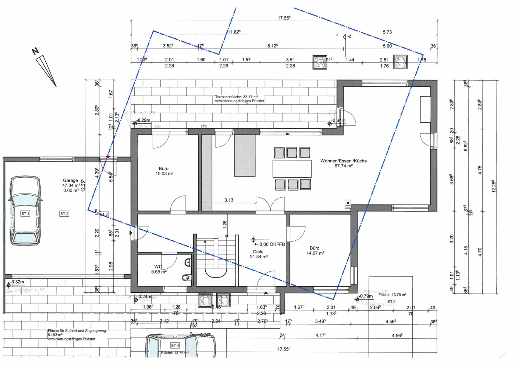
Hintergrund war das der Platz auf der rechten Seite zu viel war für Hauswirtschaftsraum und Kinderbad, während auf der anderen Seite der Platz für Ankleide und Elternbad eher etwas knapp war.Dann tausch noch die Treppe mit dem Eingang. Muss dann auch weniger gepflastert werden, von der Einfahrt kommend ;-) .
Bei einer schönen Treppe (vll. mit passender Beleuchtung) gibt es dann auch einen schönen Blick aus dem Wohnzimmer durch die Doppelflügeltür (Glas?). Und auch nicht den direkten Einblick von der Eingangstür ins Wohnzimmer. Bei der Gelegenheit ließe sich auch das untere WC besser integrieren und der Übergang zur Garage schön in eine Garderobe einbringen.
S
Samantheus23.06.21 15:59Vielen Dank!
Da reisst du alte Wunden auf... eine ähnliche Variante hatten wir tatsächlich zu Anfang der Planungsphase auch diskutiert, damals hatten wir aber das Entwässerungsthema noch nicht im Kopf. Trotzdem haben wir sehr lange hin und her überlegt und so wirklich vom Tisch war es nie. Also eine Variante die uns auch sehr gut gefällt. Im direkten Vergleich finde ich diese Variante besser im Vergleich zu den vorherigen Varianten bei denen die Treppe bleibt aber Ankleide und Bad getauscht wurden.
Was mir persönlich besser gefällt:
- EG Dielenbereich, WC und Übergang Garage, das ist in der Variante einfach übersichtlicher / schöner
- Entwässerung unkritisch
- Kleinere Eingangsüberdachung / Wegpflasterung
Wo ich mir unschlüssig bin:
- Treppe gegenüber der Wohnzimmertür: Ich finde hier haben beide Varianten etwas für sich. Wir haben unsere Variante so geplant das man direkt wenn man die Haustür öffnet und rein kommt eine freie Blickachse von der Haustür bis durch in den Garten hat. Das würde dann natürlich wegfallen. Wo wir uns bei der Treppenvariante damals unsicher waren ist der Eingang zum Wohnbereich. Im Endeffekt hat man dann ja ein "Drei-Türen-Eck" was vielleicht etwas gedrängt aussehen kann, und der Kellerabgang wäre dann eher beim Wohnbereich und nicht im Tür und Garagenbereich. Ggf. würde es dann eher Sinn machen eine offene Kellertreppe oder Tür davor zu nehmen und sie dann wirklich irgendwie mit LEDs an den Wänden zu beleuchten oder so. Dann kann es bestimmt schön sein. Aber wie das von der Wirkung ist wenn man gefühlt vom Wohnzimmer in den Keller guckt... ich weiß es nicht. Auf der anderen Seite ist man mit der Variante natürlich etwas "geschützer" in dem Sinne das die Diele etwas abgetrenter ist und Sichtschutz auf den Wohnbereich bietet. Kann in manchen Situationen natürlich auch von Vorteil sein.
Was mir vorher besser gefallen hat:
- OG Aufteilung: Da würde ich eher Versuchen den aktuellen Entwurf zu spiegeln. Also die Treppe noch etwas weiter nach rechts und dafür das Elternbad etwas kleiner sodass man die Ankleide bis zur Außenwand ziehen kann, sodass die Ankleide dann ganz unten links ist. Die Vorstellung "Ankleide als Durchgangszimmer" gefällt mir einfach nicht so. Das soll gefühlt eher der geschützteste Bereich im letzten Winkel sein wo sich außer uns keiner hereinverirrt.
Ich denke ich werde diese Variante nochmal vom Planer zeichnen lassen inklusive Fenster, damit wir einen direkten Vergleich haben, auch von der Außenansicht.
Wie seht ihr die beiden Varianten im Vergleich? Würdet ihr die Kellertreppe mit oder ohne Tür machen in der Variante? Wir planen eine Vollholz Faltwerktreppe. Der Eingang zum Wohnbereich soll eine Glastür werden, wahrscheinlich (im Gegensatz zur Zeichnung) eine Einflügeltür mit einer Festverglasung daneben.
Da reisst du alte Wunden auf... eine ähnliche Variante hatten wir tatsächlich zu Anfang der Planungsphase auch diskutiert, damals hatten wir aber das Entwässerungsthema noch nicht im Kopf. Trotzdem haben wir sehr lange hin und her überlegt und so wirklich vom Tisch war es nie. Also eine Variante die uns auch sehr gut gefällt. Im direkten Vergleich finde ich diese Variante besser im Vergleich zu den vorherigen Varianten bei denen die Treppe bleibt aber Ankleide und Bad getauscht wurden.
Was mir persönlich besser gefällt:
- EG Dielenbereich, WC und Übergang Garage, das ist in der Variante einfach übersichtlicher / schöner
- Entwässerung unkritisch
- Kleinere Eingangsüberdachung / Wegpflasterung
Wo ich mir unschlüssig bin:
- Treppe gegenüber der Wohnzimmertür: Ich finde hier haben beide Varianten etwas für sich. Wir haben unsere Variante so geplant das man direkt wenn man die Haustür öffnet und rein kommt eine freie Blickachse von der Haustür bis durch in den Garten hat. Das würde dann natürlich wegfallen. Wo wir uns bei der Treppenvariante damals unsicher waren ist der Eingang zum Wohnbereich. Im Endeffekt hat man dann ja ein "Drei-Türen-Eck" was vielleicht etwas gedrängt aussehen kann, und der Kellerabgang wäre dann eher beim Wohnbereich und nicht im Tür und Garagenbereich. Ggf. würde es dann eher Sinn machen eine offene Kellertreppe oder Tür davor zu nehmen und sie dann wirklich irgendwie mit LEDs an den Wänden zu beleuchten oder so. Dann kann es bestimmt schön sein. Aber wie das von der Wirkung ist wenn man gefühlt vom Wohnzimmer in den Keller guckt... ich weiß es nicht. Auf der anderen Seite ist man mit der Variante natürlich etwas "geschützer" in dem Sinne das die Diele etwas abgetrenter ist und Sichtschutz auf den Wohnbereich bietet. Kann in manchen Situationen natürlich auch von Vorteil sein.
Was mir vorher besser gefallen hat:
- OG Aufteilung: Da würde ich eher Versuchen den aktuellen Entwurf zu spiegeln. Also die Treppe noch etwas weiter nach rechts und dafür das Elternbad etwas kleiner sodass man die Ankleide bis zur Außenwand ziehen kann, sodass die Ankleide dann ganz unten links ist. Die Vorstellung "Ankleide als Durchgangszimmer" gefällt mir einfach nicht so. Das soll gefühlt eher der geschützteste Bereich im letzten Winkel sein wo sich außer uns keiner hereinverirrt.
Ich denke ich werde diese Variante nochmal vom Planer zeichnen lassen inklusive Fenster, damit wir einen direkten Vergleich haben, auch von der Außenansicht.
Wie seht ihr die beiden Varianten im Vergleich? Würdet ihr die Kellertreppe mit oder ohne Tür machen in der Variante? Wir planen eine Vollholz Faltwerktreppe. Der Eingang zum Wohnbereich soll eine Glastür werden, wahrscheinlich (im Gegensatz zur Zeichnung) eine Einflügeltür mit einer Festverglasung daneben.
Ähnliche Themen