Grundriss-Planung Einfamilienhaus / Bungalow - 155 qm

4,70 Stern(e) 7 Votes
Zuletzt aktualisiert 19.11.2025
Sie befinden sich auf der Seite 9 der Diskussion zum Thema: Grundriss-Planung Einfamilienhaus / Bungalow - 155 qm
>> Zum 1. Beitrag <<

Y

ypg

Nicht erschrecken! Eure Nachbarn an der Straße bauen sowas... oder es ist schon gebaut...da kann man auch die Höhenangaben erkennen.

Architekturzeichnung: Frontansicht eines zweistöckigen Hauses mit Balkon und Fenstern.


Hausansicht eines zweistöckigen Gebäudes mit Dachgauben, Eingangstür und Fenstern.


Architekturzeichnung: zweigeschossiges Haus mit Satteldach, Balkonen und Hanggelände.


Schnittansicht eines zweistöckigen Hauses mit Satteldach, Fenstern und Hangkeller
 
F

Frennie

Okay, wow, ich weiß gar nicht wo ich anfangen soll, erstmal danke für die zahlreichen Nachrichten und sogar Skizzen. Alles in allem müssen wir uns wohl eingestehen, dass ein Bungalow wirklich nicht das richtige ist.

Wir bauen mit zwei Kindern und Büro einen Bungalow mit 140 qm und das wird schon eine große Kiste und mit einem Zimmer mehr hätten wir es wohl gelassen. Wir haben aber auch „nur" 770 qm.
Ja, tatsächlich wäre unser Bungalow dann wirklich ein Monster. Und vllt. auch der Grund, wieso wir online kaum Grundrisse für ein Bungalow mit 3 Kinderzimmern + Büro gefunden haben...danke für den Hinweis / Erfahrungsbericht bei euch.

Bei diesem Gefälle sollte ein Bungalow geradeso möglich sein. Hier mal skizziert, wobei das natürliche Gelände absichtlich unverändert ist, um ein Gefühl für das Gelände zu bekommen
Vielen Dank für die Skizze Katja!

Ich hoffe, ich hab es richtig gelesen: der Hang fällt von Nord nach Süd 2,60m über Dein Grundstück nach unten? Ansonsten bitte korrigieren - in welcher Ecke ist Deine höchste Ecke?) (...) Und da hat Dein Bungalow noch nicht einmal die 40cm Außenwände, richtig?
Antwort zum Gefälle folgt gleich wenn mein Mann zuhause ist. Damit steht und fällt vermutlich alles. Bisher hatten wir den "Hang" als nicht relevant eingestuft - wahrscheinlich ein grober Fehler. Bei einem klassischen Satteldach Haus mit EG + OG (und Kniestock, ohne Keller, müsste man dann ja auch aufschütten - allerdings natürlich nicht so viel wie bei einem Monster Bungalow mit 150 qm Grundfläche, klar. Keller war für uns in erster Linie Kostentreiber, ggf. dann aber doch passender fürs Grundstück...?

Da komm ich mal wieder mit meinem Lieblingsbeispiel dem "Split Down" von Laux als Anregung (nein, ich hab mit denen wirklich nichts am Hut). Das müsste bei 1,20m Hang eigentlich ganz gut passen. Wobei ich bei 3 Kindern wirklich ein 2. Dusch/WC planen würde.
Vielen Dank für die Anregung. Gefällt uns auch sehr gut, wir haben uns mit Split Down bisher noch gar nicht beschäftigt. Vllt. passt es für unser Grundstück gut...glaube aber auch gut und gerne, dass es hier eher wenige Spezialisten gibt, was den Bau betrifft...wir möchten schon gerne schlüsselfertig vergeben. Mit Vollzeit Jobs und Baby können wir es uns grad nicht anders vorstellen...ich schaue mir Laux mal genauer an.

(...) aber ich bin auch kein Freund von Unflexibilität, wenn man doch schon so viel darf und könnte.
Ja, das ist zwar das Schöne wenn man so viele Freiheiten hat, gleichzeitig aber auch eine Schwierigkeit. Wir haben gefühlt schon so viele Variationen durchgedacht und kamen jetzt ja sogar zu so einer Schnapsidee wie Bungalow, wie man sieht.

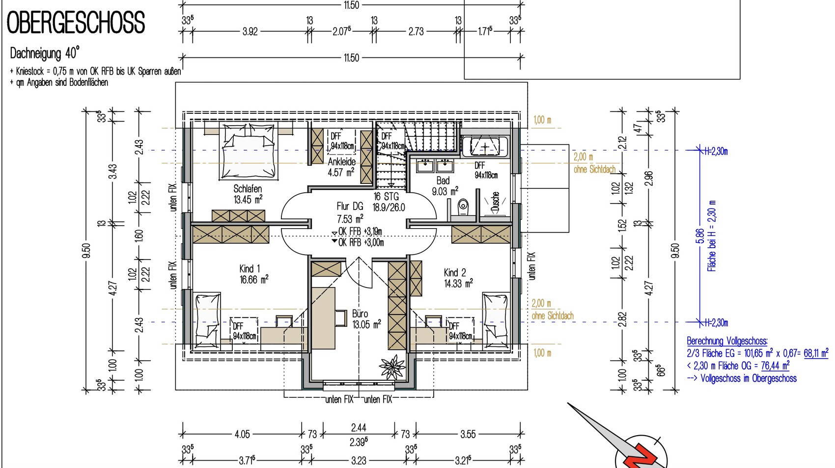
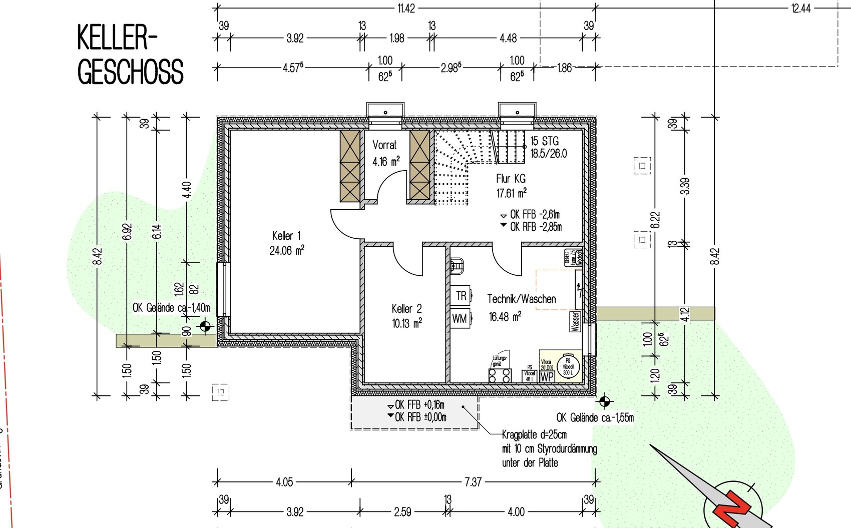
So erstmal bis hierhin, gleich gehe ich auf die weiteren Nachrichten ein. Erstmal hier ein älterer Entwurf, geplant mit einem Fertigbauer.

Grundriss des Erdgeschosses eines Hauses mit Garten, Terrasse, Garage und Bäumen.


Kellergeschoss-Grundriss: Kellerräume 1 & 2, Vorrat, Flur KG, Technik/Waschen.


Südost-Ansicht eines Einfamilienhauses mit Garage, Hanglage und Dachneigung 40°.


Obergeschoss-Grundriss: Schlafen, Kind 1, Kind 2, Büro, Bad, Flur


Modernes Einfamilienhaus mit rotem Ziegeldach, Garage, Garten und Person auf Terrasse.
 
F

Frennie

Bin doch erschrocken.
Da sieht man aber schön, was die für Massen weg baggern, um das UG zu bauen. Okay - wer hat der hat.
Ja, das Haus steht schon. Sind immer mal wieder dort. Ist allerdings ein vermietetes Mehrfamilienhaus (3 Parteien). Der Keller schaut da zur Hälfte nach vorne (SW) raus. Genauso beim Haus daneben. Da ist der Hang aber glaube ich noch steiler.
 
Y

ypg

Damit steht und fällt vermutlich alles.
Ja, ich denke schon.
Bin doch erschrocken.
Da sieht man aber schön, was die für Massen weg baggern, um das UG zu bauen. Okay - wer hat der hat.
Das erschrecken ist an den/die TE gerichtet, da ja eigentlich nix vom Bauort erzählt wurde.
Findest Du das viel? Ist das viel?

Da ist der Hang aber glaube ich noch steiler.
gut, das Du das sagst bzw weißt.

Ich sag mal: das in #49, also nr. 24 ist jetzt nicht unbedingt mein Ratschlag, noch würde ich frei so planen… aber man kann sehen, wo die Reise sehr wahrscheinlich hingehen wird.
 
F

Frennie

Nein bei einem WohnUG braucht ihr keine aufgeständerte Terrasse/Balkon sonstiges.
Es gibt auch keine dunkle Räume.
Ich würde vermutlich grob so planen:
UG: Wohnen/Essen/Kochen überwiegend in dem Teil der vollständig aus der Erde raus ragt. Gartenzugang vorhanden
Haustechnik, WC, Treppe bekommen die Seite in der keine bodentiefen Fenster möglich sind.
EG: 3 Schlafzimmer und Bad. Solange die Kids klein sind ist ein Kinderzimmer euer Schlafzimmer. Am Anfang benötigt nicht jedes Kind ein Kinderzimmer. Hauswirtschaftsraum sollte dort auch noch einen Platz finden
DG: Eltern und Büro, wenn die Kids größer sind. Kann später in EL ausgebaut werden. Stauraum ist auch noch vorhanden.

Schau mal im Internet bevorzugt bei Pinterest nach Drempelschrank bauen.
Okay, ja, wenn im UG Küche und Wohnen geplant ist, dann braucht man natürlich keine Terrasse. Mein erster Gedanke war allerdings, dass das "Leben" sich dann eher im EG abspielt, da man hier dann auch den schönen Blick hätte. Richtung Süd/Westen ist ja der Hang und da haben wir quasi kein anderes Haus vor unserer Nase, sondern einen relativ schönen Ausblick (auf den Fußballplatz vom Dorf :-D ) Ganz generell käme halt ein UG+EH+DG wieder teuer, oder nicht? Geht ja in die Richtung unseres ersten Entwurfs den ich soeben gepostet habe...aber vllt. ist der Anbieter auch einfach teuer...
 
Zuletzt aktualisiert 19.11.2025
Im Forum Grundrissplanung / Grundstücksplanung gibt es 2536 Themen mit insgesamt 87971 Beiträgen


Ähnliche Themen zu Grundriss-Planung Einfamilienhaus / Bungalow - 155 qm
Nr.ErgebnisBeiträge
1Bungalow - macht das auf einem solchen Grundstück Sinn? 21
2Grundriss Bungalow 160-170qm mit Keller 175
3Meinungen zum Grundstück am Hang. - Seite 222
4Doppelhaushälfte am Hang mit Keller Grundriss suche. 17
5Straße ca. 50cm über Grundstück - Auffüllen oder Keller 24
6Erste Grundrissplanung auf Karopapier: Hang, Keller + 2 Geschosse. 80
7Grundstück am Hang im Münchner Umland - wie entscheiden? - Seite 754
8Grundriss: Bauen leichten Hang - nicht genug für Keller wegen Aushub? 22
9Süd Hang Grundstück 700qm Einfamilienhaus ca. 150qm, Ideen Input? 43
10Einfamilienhaus-Planung am Hang (2.700qm Grundstück) - Erfahrungen / Diskussion 42
11Grundstück am Hang; Aufschüttung- Abfangung- Kosten? 10
12Grundriss Einfamilienhaus SW-Hang ca. 160qm Wohnfläche + Keller 11
13Kostenschätzung m2 Wohnfläche Hanghaus mit Keller und Garage 87
14Wert Grundstück und Bungalow B55 11
15130 m² Bungalow mit Doppelcarport bei 600m² Grundstück? 64
16Altbau auf Grundstück - Bungalow Anbau - Diverse Probleme 10
17Grundriss Bungalow auf schon genutztem Grundstück 108
18Bungalow mit Keller für Einfamilienhaus mit 60m2 Büro sinnvoll? - Seite 223
19Grundriss Bungalow 125qm konisches Grundstück 39
20Grundrissplanung Bungalow mit Keller an leichter Hanglage 26

Oben