ᐅ Grundriss-Planung eines Einfamilienhaus mit 145qm in Hanglage
Erstellt am: 22.04.19 21:13
W
WienerwaldW
Wienerwald22.04.19 21:13Hallo,
wir haben zwei Grundstücke in der Nähe von Wien. Wir planen das nördliche Grundstück zu bebauen, das südwestliche Grundstück wird als Garten behalten und nicht bebaut werden. Die Grundstücke liegen im leicht abfallenden Hang. Die Zufahrtsstraße ist sehr ruhig und führt noch zu 10 weiteren Häusern, bis diese in einen Forstweg übergeht.
Wir planen ein Einfamilienhaus mit ca. 145m2 Wohnfläche und der Möglichkeit diese in einem weiteren Schritt durch den Ausbau des Halbkellers zu erweitern, falls der Platz benötigt wird. Wichtig ist uns eine kosten- und energieeffiziente Bauweise ohne Erker, überlangen Decken etc.
Bebauungsplan/Einschränkungen
Das Grundstück liegt in Niederösterreich in der Nähe von Wien.
Größe des Grundstücks –739 m2, das südliche Grundstück mit 643m2 gehört auch uns und wird als Garten genutzt werden (nicht überbaut)
Hang – ja – ca. 270 cm (siehe Detailplan anbei, der offizielle Höhenplan wird gerade erstellt)
Grundflächenzahl – 25% der Grundfläche und 10% der Grundfläche für Nebengebäude
Geschossflächenzahl – gibt es nicht
Baufenster, Baulinie und -grenze . - Hälfte der Gebäudehöhe, mindestens jedoch 3m Bauwich vorne, hinten und auf den Seiten des Grundstücks, im Bauwich dürfen nur Nebengebäude errichtet werden (Garage, Carport, Schuppen…)/ Bei der offenen Bebauungsweise muss ein seitlicher Bauwich von Nebengebäuden freigehalten werden
Randbebauung - Nebengebäude dürfen bis zu 100m2 Grundrissfläche (insgesamt) und eine Höhe von 3m haben (bei Hanglage des Grundstücks, darf diese Höhe hangabwärts überschritten werden)
Anzahl Stellplatz – 2 Stellplätze/ Grundstückszufahrt – maximal 7m Breite / Carport und Garage im vorderen Bauwich mit einem Mindestabstand von 1m zur Straße/ Tiefe von Garage und Carport maximal 12m/ straßenseitige Front von Carport und Garage maximal 7m
Geschossigkeit - maximal 2 Geschosse + Keller
Dachform – keine Vorgabe
Stilrichtung – keine Vorgabe
Ausrichtung – keine Vorgabe
Maximale Höhen/Begrenzungen – 9m an der höchsten Stelle, beziehungsweise maximal pro Seite im Schnitt 8m (vom bestehenden Niveau aus gemessen)
weitere Vorgaben Es ist möglich, dass wir straßenseitig noch ca. 55cm an die Gemeinde abtreten müssen.
Anforderungen der Bauherren
Stilrichtung, Dachform, Gebäudetyp möglichst rechteckig und energieeffizient (Keine Erker etc)
Keller, Geschosse – 2 Geschosse plus Wohnkeller
Anzahl der Personen, Alter – 3 Personen (41,39,1)
Raumbedarf im EG, OG – EG – Eingang, Garderobe, Küche, Wohn-/ Esszimmer, Büro/Gästezimmer, OG 2 Kinderzimmer, Bad, WC, Hauswirtschaftsraum, Elternschlafzimmer – Zur Info: Die Gartenhütte, welche man auf der Übersicht sieht, ist Bestand.
Büro: Familiennutzung oder Homeoffice? Homeoffice
Schlafgäste pro Jahr 4x jeweils 2 Personen
offene oder geschlossene Architektur geschlossen
konservativ oder moderne Bauweise konservativ
offene Küche, Kochinsel keine offene Küche
Anzahl Essplätze – mindestens 8 normalerweise, bis zu 14 bei Besuch
Kamin – war zuerst angedacht, wir konnten uns allerdings bis jetzt nicht auf einen Kamin einigen (3 Sichtfenster und geringe Brennkraft…) - hier scheiden sich die Geister
Musik/Stereowand nein
Balkon, Dachterrasse nein
Garage, Carport Carport für eine Auto und Garage für zweites Auto
Nutzgarten, Treibhaus ja in Zukunft
weitere Wünsche/Besonderheiten/Tagesablauf, gern auch Begründungen, warum dieses oder das nicht sein soll
Hausentwurf
Von wem stammt die Planung:
-Do-it-Yourself
Was gefällt besonders? Warum?
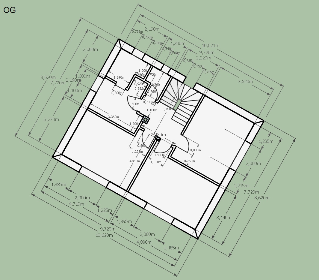
OG
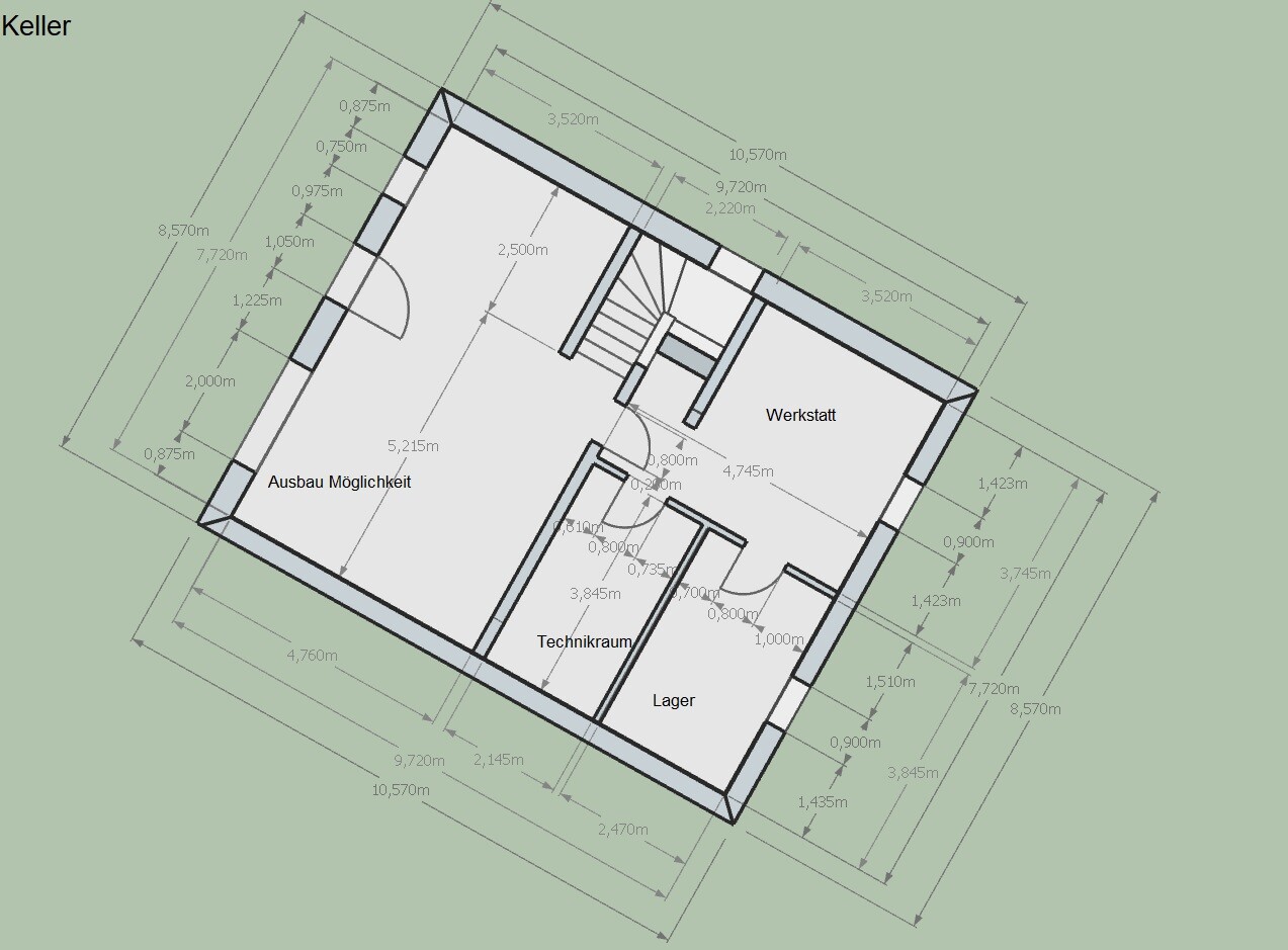
Keller
Was gefällt nicht? Warum?
OG
Persönliches Preislimit fürs Haus, inkl Ausstattung:
favorisierte Heiztechnik: Wärmepumpe (Flächenkollektoren)
Wenn Ihr verzichten müsst,auf welche Details/Ausbauten könnt Ihr verzichten:
könnt Ihr nicht verzichten:
Das Grundstück hat eine Hanglage, daher bietet sich der Wohnkeller an, so dass der Hauseingang (EG) auf Höhe der Straße liegt.
Aufgrund des Höhenunterschieds und der geringen Breite des Grundstücks wurde das Satteldach mit einem Kniestock von 2,2m geplant, um die Breite des Gebäudes zu erhöhen und trotzdem der Grenzabstand (Hälfte der Gebäudehöhe) einzuhalten.
Da im Westen kein Nachbargrundstück angrenzt und somit ein unverbauter Ausblick gewährleistet ist, haben wir das Wohnzimmer im Westen geplant (im Westen ist der Keller über den Garten zugänglich, das heißt das Wohnzimmer hat keinen Gartenzugang). Im Süden das Esszimmer/ die Küche, da hier ebenerdig der Garten erreicht wird. Aus der Küche hat man einen Ausblick auf den Südgarten und hat somit die Kinder im Blick und kann direkt zum Outdoor Essbereich gehen.
Der Garagenzugang liegt auf halber Höhe zwischen Keller und EG und wird mit einer Tür zum Haus verbunden.
Das Büro dient als Rückzugsmöglichkeit.
Im Wohnkeller kann der belichtete Teil in Zukunft zu einem Fitnessbereich/ Gästezimmer/ Büro oder gegebenenfalls einem weiteren Kinderzimmer ausgebaut werden, oder das dritte Zimmer im OG als Kinderzimmer genutzt werden und der Elternbereich in den Wohnkeller verlegt werden... Da die Rückstauebene der Abwasserleitung auf Straßenniveau ist und der Kanal auch nicht unter dem Kellerniveau verläuft, werden keine Abwasserleitungen im Keller geplant, damit keine Hebevorrichtung für Abwasser benötigt wird.
Im OG haben wir Wert auf die drei gleichgroßen Zimmer mit mindestens 16m2 gelegt, damit diese getauscht werden können und zum Beispiel auch anstelle von einem Kinderzimmer auch als Büro/ Gästezimmer verwendet werden können. Da wir momentan die Toilette vom Bad getrennt haben und dies sehr praktisch ist, haben wir dies im Haus auch umgesetzt. Der Hauswirtschaftsraum wird hauptsächlich zum Wäsche waschen und als Stauraum für Putzutensilien dienen (gebügelt wird im Wohnzimmer) und hat den Vorteil, dass man die Wäscheberge hinter einer Tür verstecken kann. Weder Toilette noch Hauswirtschaftsraum grenzt an ein Zimmer (Lärmbelästigung) und in der Wand zum Kinderzimmer sind keine Wasserleitungen geplant.
Entsprechende/Welche Wünsche wurden vom Architekten umgesetzt? n/a
Was macht ihn in Euren Augen besonders gut oder schlecht?
Die Hanglage wurde aufgrund des Wohnkellers gut in den Entwurf eingearbeitet. Trotz des schmalen Grundstücks, konnte eine gute Hausbreite erzielt werden.
Nach Abwägung unserer Anforderungen und Wünsche, konnten die wichtigsten Elemente umgesetzt werden.
Was ist die wichtigste/grundlegende Frage zum Grundriss in 130 Zeichen zusammengefasst?
Wir bitten euch um eure Sichtweise zu unserem Grundriss? Bitte mit konstruktiven Verbesserungsvorschlägen.









wir haben zwei Grundstücke in der Nähe von Wien. Wir planen das nördliche Grundstück zu bebauen, das südwestliche Grundstück wird als Garten behalten und nicht bebaut werden. Die Grundstücke liegen im leicht abfallenden Hang. Die Zufahrtsstraße ist sehr ruhig und führt noch zu 10 weiteren Häusern, bis diese in einen Forstweg übergeht.
Wir planen ein Einfamilienhaus mit ca. 145m2 Wohnfläche und der Möglichkeit diese in einem weiteren Schritt durch den Ausbau des Halbkellers zu erweitern, falls der Platz benötigt wird. Wichtig ist uns eine kosten- und energieeffiziente Bauweise ohne Erker, überlangen Decken etc.
Bebauungsplan/Einschränkungen
Das Grundstück liegt in Niederösterreich in der Nähe von Wien.
Größe des Grundstücks –739 m2, das südliche Grundstück mit 643m2 gehört auch uns und wird als Garten genutzt werden (nicht überbaut)
Hang – ja – ca. 270 cm (siehe Detailplan anbei, der offizielle Höhenplan wird gerade erstellt)
Grundflächenzahl – 25% der Grundfläche und 10% der Grundfläche für Nebengebäude
Geschossflächenzahl – gibt es nicht
Baufenster, Baulinie und -grenze . - Hälfte der Gebäudehöhe, mindestens jedoch 3m Bauwich vorne, hinten und auf den Seiten des Grundstücks, im Bauwich dürfen nur Nebengebäude errichtet werden (Garage, Carport, Schuppen…)/ Bei der offenen Bebauungsweise muss ein seitlicher Bauwich von Nebengebäuden freigehalten werden
Randbebauung - Nebengebäude dürfen bis zu 100m2 Grundrissfläche (insgesamt) und eine Höhe von 3m haben (bei Hanglage des Grundstücks, darf diese Höhe hangabwärts überschritten werden)
Anzahl Stellplatz – 2 Stellplätze/ Grundstückszufahrt – maximal 7m Breite / Carport und Garage im vorderen Bauwich mit einem Mindestabstand von 1m zur Straße/ Tiefe von Garage und Carport maximal 12m/ straßenseitige Front von Carport und Garage maximal 7m
Geschossigkeit - maximal 2 Geschosse + Keller
Dachform – keine Vorgabe
Stilrichtung – keine Vorgabe
Ausrichtung – keine Vorgabe
Maximale Höhen/Begrenzungen – 9m an der höchsten Stelle, beziehungsweise maximal pro Seite im Schnitt 8m (vom bestehenden Niveau aus gemessen)
weitere Vorgaben Es ist möglich, dass wir straßenseitig noch ca. 55cm an die Gemeinde abtreten müssen.
Anforderungen der Bauherren
Stilrichtung, Dachform, Gebäudetyp möglichst rechteckig und energieeffizient (Keine Erker etc)
Keller, Geschosse – 2 Geschosse plus Wohnkeller
Anzahl der Personen, Alter – 3 Personen (41,39,1)
Raumbedarf im EG, OG – EG – Eingang, Garderobe, Küche, Wohn-/ Esszimmer, Büro/Gästezimmer, OG 2 Kinderzimmer, Bad, WC, Hauswirtschaftsraum, Elternschlafzimmer – Zur Info: Die Gartenhütte, welche man auf der Übersicht sieht, ist Bestand.
Büro: Familiennutzung oder Homeoffice? Homeoffice
Schlafgäste pro Jahr 4x jeweils 2 Personen
offene oder geschlossene Architektur geschlossen
konservativ oder moderne Bauweise konservativ
offene Küche, Kochinsel keine offene Küche
Anzahl Essplätze – mindestens 8 normalerweise, bis zu 14 bei Besuch
Kamin – war zuerst angedacht, wir konnten uns allerdings bis jetzt nicht auf einen Kamin einigen (3 Sichtfenster und geringe Brennkraft…) - hier scheiden sich die Geister
Musik/Stereowand nein
Balkon, Dachterrasse nein
Garage, Carport Carport für eine Auto und Garage für zweites Auto
Nutzgarten, Treibhaus ja in Zukunft
weitere Wünsche/Besonderheiten/Tagesablauf, gern auch Begründungen, warum dieses oder das nicht sein soll
Hausentwurf
Von wem stammt die Planung:
-Do-it-Yourself
Was gefällt besonders? Warum?
OG
- Bad/ WC getrennt
- getrennter Hauswirtschaftsraum um Wäsche zu wachen/ trocknen (da Abfluss im Keller nur mit Pumpe möglich und Wäsche gewaschen werden kann wo diese anfällt)
- WC und Hauswirtschaftsraum liegt nicht an Zimmer, daher geringere Geräuschbelastung
- alle Zimmer gleich groß (mindestens 16m2) – Zimmer können untereinander getauscht werden
- Kinderzimmer Richtung Süden
- Elternschlafzimmer Richtung Osten um von der Sonne geweckt zu werden.
- keine offene Küche, trotzdem mit Blick auf den Esstisch, wenn die Tür offen ist
- Wohnzimmer und Esszimmer nicht getrennt
- Wohnzimmer mit Blick über den Westgarten
- Esszimmer mit Südlage und Ausgang zum Garten (gleich neben der Küche)
Keller
- Ausbaumöglichkeit, geschützte Lage zum Garten
- Ausgang zu Westterrasse
Was gefällt nicht? Warum?
OG
- Zugang zu Hauswirtschaftsraum über Bad
- Fenster im Büro zum Carport
Persönliches Preislimit fürs Haus, inkl Ausstattung:
favorisierte Heiztechnik: Wärmepumpe (Flächenkollektoren)
Wenn Ihr verzichten müsst,auf welche Details/Ausbauten könnt Ihr verzichten:
- Garage, Kamin
könnt Ihr nicht verzichten:
- abgetrennte Küche
- im OG Bad/ WC getrennt
- Hauswirtschaftsraum im OG
- Büro/ Gästezimmer
Das Grundstück hat eine Hanglage, daher bietet sich der Wohnkeller an, so dass der Hauseingang (EG) auf Höhe der Straße liegt.
Aufgrund des Höhenunterschieds und der geringen Breite des Grundstücks wurde das Satteldach mit einem Kniestock von 2,2m geplant, um die Breite des Gebäudes zu erhöhen und trotzdem der Grenzabstand (Hälfte der Gebäudehöhe) einzuhalten.
Da im Westen kein Nachbargrundstück angrenzt und somit ein unverbauter Ausblick gewährleistet ist, haben wir das Wohnzimmer im Westen geplant (im Westen ist der Keller über den Garten zugänglich, das heißt das Wohnzimmer hat keinen Gartenzugang). Im Süden das Esszimmer/ die Küche, da hier ebenerdig der Garten erreicht wird. Aus der Küche hat man einen Ausblick auf den Südgarten und hat somit die Kinder im Blick und kann direkt zum Outdoor Essbereich gehen.
Der Garagenzugang liegt auf halber Höhe zwischen Keller und EG und wird mit einer Tür zum Haus verbunden.
Das Büro dient als Rückzugsmöglichkeit.
Im Wohnkeller kann der belichtete Teil in Zukunft zu einem Fitnessbereich/ Gästezimmer/ Büro oder gegebenenfalls einem weiteren Kinderzimmer ausgebaut werden, oder das dritte Zimmer im OG als Kinderzimmer genutzt werden und der Elternbereich in den Wohnkeller verlegt werden... Da die Rückstauebene der Abwasserleitung auf Straßenniveau ist und der Kanal auch nicht unter dem Kellerniveau verläuft, werden keine Abwasserleitungen im Keller geplant, damit keine Hebevorrichtung für Abwasser benötigt wird.
Im OG haben wir Wert auf die drei gleichgroßen Zimmer mit mindestens 16m2 gelegt, damit diese getauscht werden können und zum Beispiel auch anstelle von einem Kinderzimmer auch als Büro/ Gästezimmer verwendet werden können. Da wir momentan die Toilette vom Bad getrennt haben und dies sehr praktisch ist, haben wir dies im Haus auch umgesetzt. Der Hauswirtschaftsraum wird hauptsächlich zum Wäsche waschen und als Stauraum für Putzutensilien dienen (gebügelt wird im Wohnzimmer) und hat den Vorteil, dass man die Wäscheberge hinter einer Tür verstecken kann. Weder Toilette noch Hauswirtschaftsraum grenzt an ein Zimmer (Lärmbelästigung) und in der Wand zum Kinderzimmer sind keine Wasserleitungen geplant.
Entsprechende/Welche Wünsche wurden vom Architekten umgesetzt? n/a
Was macht ihn in Euren Augen besonders gut oder schlecht?
Die Hanglage wurde aufgrund des Wohnkellers gut in den Entwurf eingearbeitet. Trotz des schmalen Grundstücks, konnte eine gute Hausbreite erzielt werden.
Nach Abwägung unserer Anforderungen und Wünsche, konnten die wichtigsten Elemente umgesetzt werden.
Was ist die wichtigste/grundlegende Frage zum Grundriss in 130 Zeichen zusammengefasst?
Wir bitten euch um eure Sichtweise zu unserem Grundriss? Bitte mit konstruktiven Verbesserungsvorschlägen.
W
Wienerwald22.04.19 21:15außen: Leiden mag ich es nicht, besonders von West her nicht, da ist es sehr staksig. Da ja Land nicht knapp ist, würde ich mir da lieber einen Winkel Bungalow mit Wohnkeller wegen des Hanges errichten.
Innen. Das Raumprogramm ist super. Die Küche ggf. etwas breiter, für kl. Tisch fürs schnelle Frühstück.
Das WZ ist schön, auch das der Fernseher nicht alles dominiert sondern sich mit dem begnügen muss, was ihm denn bleibt ist mir sympathisch. Das OG gefällt mir wegen des Bades mit Sauna und getrenntem WC sehr gut. Das ist sicher Luxus, aber wenn ihr es bezahlen könnt, sei es euch gegönnt. Schön ist es. K..
Innen. Das Raumprogramm ist super. Die Küche ggf. etwas breiter, für kl. Tisch fürs schnelle Frühstück.
Das WZ ist schön, auch das der Fernseher nicht alles dominiert sondern sich mit dem begnügen muss, was ihm denn bleibt ist mir sympathisch. Das OG gefällt mir wegen des Bades mit Sauna und getrenntem WC sehr gut. Das ist sicher Luxus, aber wenn ihr es bezahlen könnt, sei es euch gegönnt. Schön ist es. K..
Überprüft mal die genauen Maße Schlafzimmer und Büro
Büro 2,5 m Tiefe - 1 m Tür bleiben 1,5 m für Tisch, Stuhl und Bewegungsfläche
Der Abstand Tischkante Wand sollte mind. 1 m betragen bei dir ehr 80 cm
Schlafzimmer das gleiche
4,5 m - 0,7m Schrankreihe - 0,8 m Abstand (zu wenig du kannst nicht mal einen Schritt zurück machen um zu schauen ob oben im Schrank der Lieblingspulli liegt) - 0,5 für Kommoden bleiben 2,5 m für Bett mit Rahmen und ja was ist mit den restlichen 30-40 cm zwischen Bett und Wand?
Büro 2,5 m Tiefe - 1 m Tür bleiben 1,5 m für Tisch, Stuhl und Bewegungsfläche
Der Abstand Tischkante Wand sollte mind. 1 m betragen bei dir ehr 80 cm
Schlafzimmer das gleiche
4,5 m - 0,7m Schrankreihe - 0,8 m Abstand (zu wenig du kannst nicht mal einen Schritt zurück machen um zu schauen ob oben im Schrank der Lieblingspulli liegt) - 0,5 für Kommoden bleiben 2,5 m für Bett mit Rahmen und ja was ist mit den restlichen 30-40 cm zwischen Bett und Wand?
Da passt leider einiges nicht. Die Zimmertüren haben hier ein RBM von 80cm, nötig wären 90 bei 86cm Breite.
Von den 70er Türen rede ich erst gar nicht. Toilette neben Waschtisch, da geht dann gar nichts mehr, wenn man den Waschtisch mal auf ein benutzbares Maß vergrößert.
Ich hab mir mal die restlichen Maße grob angeschaut: es sieht ja alles viel größer aus, wenn man die Türen klein hält
Die 3,50 Wohnraumbreite ist bei Dir noch nicht einmal gefüllt mit einem gezeichneten 4-Sitzer! Unser Sofa als 3Sitzer hat zwar großzügige Maße von knappen 3 Metern, aber mittlerweile haben Chillmöbel eben diese solche Maße - mit Deinem Sofa suggerierst Du Dir mehr Raum ein als vorhanden ist. Das Schlafzimmer wie angedacht ist jetzt auch nicht gerade das, was man sich wünscht, so ohne Durchgang am Fußende. WC ohne Fenster geht, ist aber auch nur eine Notlösung.
Entwässerung mitten im Haus und an der Couch vorbei würde ich vermeiden.
Von den 70er Türen rede ich erst gar nicht. Toilette neben Waschtisch, da geht dann gar nichts mehr, wenn man den Waschtisch mal auf ein benutzbares Maß vergrößert.
Ich hab mir mal die restlichen Maße grob angeschaut: es sieht ja alles viel größer aus, wenn man die Türen klein hält
Die 3,50 Wohnraumbreite ist bei Dir noch nicht einmal gefüllt mit einem gezeichneten 4-Sitzer! Unser Sofa als 3Sitzer hat zwar großzügige Maße von knappen 3 Metern, aber mittlerweile haben Chillmöbel eben diese solche Maße - mit Deinem Sofa suggerierst Du Dir mehr Raum ein als vorhanden ist. Das Schlafzimmer wie angedacht ist jetzt auch nicht gerade das, was man sich wünscht, so ohne Durchgang am Fußende. WC ohne Fenster geht, ist aber auch nur eine Notlösung.
Entwässerung mitten im Haus und an der Couch vorbei würde ich vermeiden.
Ähnliche Themen