Hallo zusammen
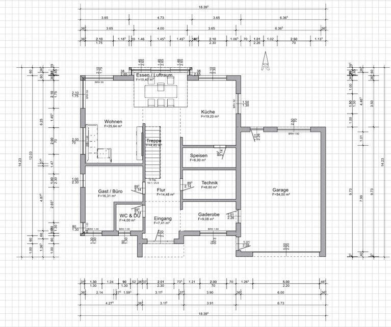
Wir waren in einigen Musterhäusern, haben mit einigen Bauunternehmen gesprochen und haben uns einige Grundrisse angeschaut. Leider waren viele Entwürfe dabei, die uns nicht zugesagt haben. Daraufhin haben wir mit dem Programm 3D Hausplaner den Grundriss selbst gezeichnet.
Mit dem Obergeschoss sind wir schon ziemlich zufrieden. Bei dem EG sehen wir noch Verbesserungspotential. Z.B. ist der Flur zu groß/schmal? Anordnung Gästezimmer, WC. Ist es möglich aus diesem Zimmer (mit Dusch-WC) vielleicht eine Einliegerwohnung zu schaffen?
Anbei sind die beiden Grundrisse beigefügt sowohl zwei Ansichtbilder.
Wir freuen uns sehr über Euer Feedback.
Vielen Dank! Lia
Bebauungsplan/Einschränkungen
Größe des Grundstücks: 821 m2; ca. 21 m breit und 35 m tief (nicht ganz rechteckig)
Hang: nein
Grundflächenzahl: 0,4
Baufenster: 5 Meter zu Straße, 4 Meter zu Nachbarn
Geschossigkeit: Max. 2
Dachform: Walmdach
Stilrichtung: modern
Maximale Höhen/Begrenzungen: Traufhöhe 6 m, Firsthöhe 8,5 m
Anforderungen der Bauherren
Stilrichtung, Dachform, Gebäudetyp: modern, Walmdach
Keller, Geschosse: 2 Vollgeschosse
Anzahl der Personen, Alter: 2 Erw. Mitte 30, 1 Kind, 2 Jahre
Raumbedarf im EG: Garderobe, Gästezimmer, Gäste-Dusch-WC, Technik, Küche,Speiseraum- Wohn- Esszimmer
Raumbedarf im OG: 2 Kinderzimmer, Eltern, Ankleide, Hauswirtschaftsraum, Bad, Büro
Büro: Homeoffice
Schlafgäste pro Jahr: Mehrmals im Jahr
Offene oder geschlossene Architektur: offen
Konservativ oder moderne Bauweise: Modern
Offene Küche, Kochinsel: Küche offen, mit Arbeitsinsel
Anzahl Essplätze: üblich 4-6, zu Feiern mindestens 15
Kamin: ja
Balkon, Dachterrasse: Dachterrasse auf Garage
Garage, Carport: Garage
Nutzgarten, Treibhaus: nein
Weitere Wünsche/Besonderheiten/Tagesablauf, gern auch Begründungen, warum dieses oder das nicht sein soll:
-Luftraum
-Große Fenster nach Westen, da keine Nachbarn
-Garderobe
-Überdachter Eingang
Hausentwurf
Von wem stammt die Planung:
-von uns
Was gefällt besonders?
-grosszügiger offener Wohn- und Essbereich
Was gefällt nicht? Warum?
Preisschätzung lt Baufirma: ca. 550000
Flur (nimmt zu viel Platz ein?), Gästezimmer im EG (zu verwinkelt)
Wenn Ihr verzichten müsst, auf welche Details/Ausbauten
-Auf Flurfläche
Warum ist der Entwurf so geworden, wie er jetzt ist? ZB
Wir haben die Zimmer so angeordnet, dass es für uns einen Sinn ergeben hat und die Raumgrößen auch mitberücksichtigt wurden.
Was ist die wichtigste/grundlegende Frage zum Grundriss in 130 Zeichen zusammengefasst?
Gibt es im Grundriss Optimierungen?




Wir waren in einigen Musterhäusern, haben mit einigen Bauunternehmen gesprochen und haben uns einige Grundrisse angeschaut. Leider waren viele Entwürfe dabei, die uns nicht zugesagt haben. Daraufhin haben wir mit dem Programm 3D Hausplaner den Grundriss selbst gezeichnet.
Mit dem Obergeschoss sind wir schon ziemlich zufrieden. Bei dem EG sehen wir noch Verbesserungspotential. Z.B. ist der Flur zu groß/schmal? Anordnung Gästezimmer, WC. Ist es möglich aus diesem Zimmer (mit Dusch-WC) vielleicht eine Einliegerwohnung zu schaffen?
Anbei sind die beiden Grundrisse beigefügt sowohl zwei Ansichtbilder.
Wir freuen uns sehr über Euer Feedback.
Vielen Dank! Lia
Bebauungsplan/Einschränkungen
Größe des Grundstücks: 821 m2; ca. 21 m breit und 35 m tief (nicht ganz rechteckig)
Hang: nein
Grundflächenzahl: 0,4
Baufenster: 5 Meter zu Straße, 4 Meter zu Nachbarn
Geschossigkeit: Max. 2
Dachform: Walmdach
Stilrichtung: modern
Maximale Höhen/Begrenzungen: Traufhöhe 6 m, Firsthöhe 8,5 m
Anforderungen der Bauherren
Stilrichtung, Dachform, Gebäudetyp: modern, Walmdach
Keller, Geschosse: 2 Vollgeschosse
Anzahl der Personen, Alter: 2 Erw. Mitte 30, 1 Kind, 2 Jahre
Raumbedarf im EG: Garderobe, Gästezimmer, Gäste-Dusch-WC, Technik, Küche,Speiseraum- Wohn- Esszimmer
Raumbedarf im OG: 2 Kinderzimmer, Eltern, Ankleide, Hauswirtschaftsraum, Bad, Büro
Büro: Homeoffice
Schlafgäste pro Jahr: Mehrmals im Jahr
Offene oder geschlossene Architektur: offen
Konservativ oder moderne Bauweise: Modern
Offene Küche, Kochinsel: Küche offen, mit Arbeitsinsel
Anzahl Essplätze: üblich 4-6, zu Feiern mindestens 15
Kamin: ja
Balkon, Dachterrasse: Dachterrasse auf Garage
Garage, Carport: Garage
Nutzgarten, Treibhaus: nein
Weitere Wünsche/Besonderheiten/Tagesablauf, gern auch Begründungen, warum dieses oder das nicht sein soll:
-Luftraum
-Große Fenster nach Westen, da keine Nachbarn
-Garderobe
-Überdachter Eingang
Hausentwurf
Von wem stammt die Planung:
-von uns
Was gefällt besonders?
-grosszügiger offener Wohn- und Essbereich
Was gefällt nicht? Warum?
Preisschätzung lt Baufirma: ca. 550000
Flur (nimmt zu viel Platz ein?), Gästezimmer im EG (zu verwinkelt)
Wenn Ihr verzichten müsst, auf welche Details/Ausbauten
-Auf Flurfläche
Warum ist der Entwurf so geworden, wie er jetzt ist? ZB
Wir haben die Zimmer so angeordnet, dass es für uns einen Sinn ergeben hat und die Raumgrößen auch mitberücksichtigt wurden.
Was ist die wichtigste/grundlegende Frage zum Grundriss in 130 Zeichen zusammengefasst?
Gibt es im Grundriss Optimierungen?
Lia_Home schrieb:
Baufenster: 5 Meter zu Straße, 4 Meter zu NachbarnWo sind denn die Nachbarn? Bei üblicher Anordnung (rechts und links) verstehe ich nämlich nicht ganz, wie Ihr mit 12 m Haus und knapp 7 (!) m Garage noch 4 m Abstand halten können wollt. 😉Ansonsten funktioniert der Grundriss bestimmt, was bei der Größe aber keine so große Kunst ist. Es ist aus meiner Sicht ein typischer Grundriss des Jahres 2021 mit so einigen "Must-Haves". Ob das auch Eure Wünsche/Anforderungen abdeckt, müsst Ihr selber wissen. Ich würde mir allerdings überlegen, ob ich die Kinderzimmer genau am Schalltrichter haben möchte, denn sonst ist bei Besuch ab der Zu-Bett-geh-Zeit des Nachwuchses nur noch Flüsterton möglich.
Lia_Home schrieb:
Ist es möglich aus diesem Zimmer (mit Dusch-WC) vielleicht eine Einliegerwohnung zu schaffen?Ich glaube, die Einliegerwohnung kommt so langsam auch auf die Liste der Must-Haves. 😉 Möglich ist es bestimmt (irgendwie), aber wem soll das nützen? (Und wer will es bezahlen?)
Lia_Home schrieb:
Preisschätzung lt Baufirma: ca. 550000Ist das ein Ausbauhaus? Ansonsten halte ich das für deutlichst zu niedrig - selbst ohne Garage und mit einfachster Ausstattung. Ich komme da auf rund 2350,- EUR/m², was ich anno 2021 für nicht machbar halte bei diesem Grundriss.S
saralina8715.10.21 07:10Ich mag zum Grundriss gar nicht großartig was sagen, weil ich diese Würfel-Häuser immer irgendwie unpraktisch und nicht schön finde - aber:
Das Budget würde ich unbedingt anzweifeln und, ganz grundsätzlich, würde ich mir sehr gut überlegen, ob die Kinderzimmer direkt an den Luftraum über dem Allraum angrenzen sollten.
Unsere Kleine würde da Abends echt Probleme mit dem Schlafen haben, ohne dass Gäste da sind. Es ist einfach extrem hellhörig so.
Das Budget würde ich unbedingt anzweifeln und, ganz grundsätzlich, würde ich mir sehr gut überlegen, ob die Kinderzimmer direkt an den Luftraum über dem Allraum angrenzen sollten.
Unsere Kleine würde da Abends echt Probleme mit dem Schlafen haben, ohne dass Gäste da sind. Es ist einfach extrem hellhörig so.
saralina87 schrieb:
Ich mag zum Grundriss gar nicht großartig was sagen, weil ich diese Würfel-Häuser immer irgendwie unpraktisch und nicht schön finde - aber:
Das Budget würde ich unbedingt anzweifeln und, ganz grundsätzlich, würde ich mir sehr gut überlegen, ob die Kinderzimmer direkt an den Luftraum über dem Allraum angrenzen sollten.
Unsere Kleine würde da Abends echt Probleme mit dem Schlafen haben, ohne dass Gäste da sind. Es ist einfach extrem hellhörig so.Exakt das habe ich auch gedacht. Das ist aus meiner Sicht nur optisch nett, so ein Luftraum kann ziemlich hallen und ist für die Kinder Abends nicht so toll.
M
Myrna_Loy15.10.21 08:09Ja, kann man machen, aber nur mit deutlich mehr Budget. Das ist, wenn nicht in einer sehr günstigen Region gebaut wird, eher ein 750.000 Euro Haus, wenn das heutzutage noch reicht.
M
Myrna_Loy15.10.21 08:32Und der Luftraum, der ist chic, aber unpraktisch und wirklich nur als Wohnelement sinnvoll, wenn man Geld- und Wohnfläche satt übrig hat.
Ich war letztens für einen Termin in einer Villa aus den 80er Jahren, die so einen Luftraum im Esszimmer mit großer Fensterfläche in den Garten hatte. Und eine schöne Galerie oberhalb. Tolle, repräsentative Architektur, aber wohnlich ist das nicht. Der Eigentümer meinte, als wir die Ordner coronakonform auf dem Esstisch für 12 Personen ausbreiteten, so würde der Raum wenigstens mal genutzt. Sie würden den Essbereich selber gar nicht nutzen. Zu laut, zu hell, zu heiß im Sommer. Die Familie isst lieber in der Küche und selbst befreundete Gäste würden die Küche bevorzugen. Lediglich für Dinnertermine mit besonderen Geschäftspartnern und für Weihnachten würde der Bereich genutzt.
Ich war letztens für einen Termin in einer Villa aus den 80er Jahren, die so einen Luftraum im Esszimmer mit großer Fensterfläche in den Garten hatte. Und eine schöne Galerie oberhalb. Tolle, repräsentative Architektur, aber wohnlich ist das nicht. Der Eigentümer meinte, als wir die Ordner coronakonform auf dem Esstisch für 12 Personen ausbreiteten, so würde der Raum wenigstens mal genutzt. Sie würden den Essbereich selber gar nicht nutzen. Zu laut, zu hell, zu heiß im Sommer. Die Familie isst lieber in der Küche und selbst befreundete Gäste würden die Küche bevorzugen. Lediglich für Dinnertermine mit besonderen Geschäftspartnern und für Weihnachten würde der Bereich genutzt.
Ähnliche Themen