Hallo,
wie findet ihr den groben Entwurf des Hauses? Papierkorb oder zu gebrauchen? Mit dem ObErdgeschoss bin ich noch nicht fertig, daher erstmal nur das Erdgeschoss zu sehen.
Zum Haus:
- 2 Vollgeschosse, Zeltdach
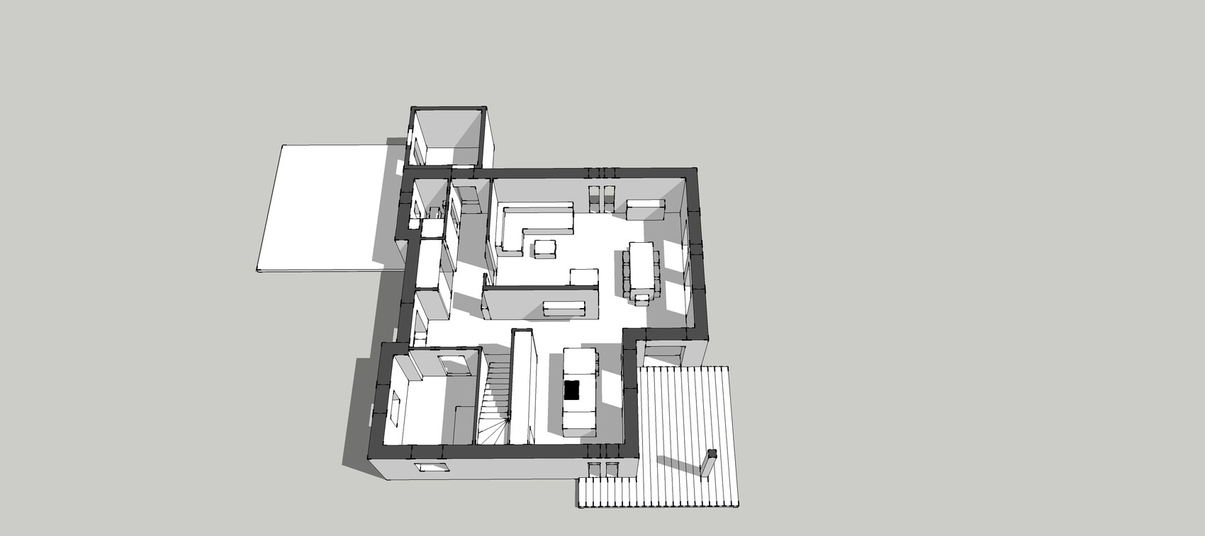
- Erdgeschoss: Auf den Bildern schlecht zu sehen, 2 Schiebetüren (Garderobe und Wohnzimmer)
- ObErdgeschoss: Kind1, Kind2, Badezimmer, Schlafzimmer, Hauswirtschaftsraum+Abstelltraum
- Dachgeschoss: Heizung
Danke!




wie findet ihr den groben Entwurf des Hauses? Papierkorb oder zu gebrauchen? Mit dem ObErdgeschoss bin ich noch nicht fertig, daher erstmal nur das Erdgeschoss zu sehen.
Zum Haus:
- 2 Vollgeschosse, Zeltdach
- Erdgeschoss: Auf den Bildern schlecht zu sehen, 2 Schiebetüren (Garderobe und Wohnzimmer)
- ObErdgeschoss: Kind1, Kind2, Badezimmer, Schlafzimmer, Hauswirtschaftsraum+Abstelltraum
- Dachgeschoss: Heizung
Danke!
Manu1976 schrieb:
interessanter Grundriss.
ich finde die Küche etwas eng und wenig Stauraum! Wo kommt Spüle und Kühlschrank hin?
Der Flur wäre mir auch etwas zu schmal.
Ansonsten gefällt er mir ganz gut. Mal was anderes.Hallo, gegenüber der Kochinsel (Richtung Treppe) soll eine 4m Küchenzeile mit Kühlschrank hin. Die Spüle ist auf der Kochinsel geplant. Es soll ebenfalls einen Durchgang durch die Küchenzeile geben, für die Nutzung eines kleinen Vorratsraum unter der Treppe. Um die Kochinsel ist jeweils 1,10m Durchgang und der Flurdurchgang ist ca. 1.60m. Ab wieviel Meter ist es zu klein bzw. schmal?
kaho674 schrieb:
Nich so meins. Das Wohnzimmer ist ein Durchgangszimmer - da kommt keine Gemütlichkeit rein. Schmale lange Gänge + Treppe sind auch nicht so schön.Also eher Geschmacksache? 🙂Ich glaube, dass das ganze zum Geräteraum hin sehr dunkel wird, auch das Wohnzimmer mutet etwas wie eine Höhle an. Auch der schon angesprochene Durchgangscharakter des Wohnzimmers finde ich nicht gut. Bei der Küche verstehe ich nicht was die Kochinsel da soll.. für wen Kochst du, die Katze vor dem Fenster? Das ist so auch nicht kommunikativer als eine Standardküche.
Ähnliche Themen