Hallo zusammen,
nachdem ich schon eine gefühlte Ewigkeit hier im Forum mitlese, muss ich jetzt auch mal "die Hose runterlassen". Wir haben uns vor einiger Zeit ein Grundstück im ländlichen Niedersachsen in direkter Nachbarschaft zu unserer jetzigen Wohnung gekauft und wollen jetzt langsam aber sicher den Hausbau in Angriff nehmen.
Den Fragebogen habe ich soweit es mir möglich war ausgefüllt. Zu Dachform, Geschossigkeit, Baufenster, etc. habe ich "nur" Angaben aus einer alten Bauvoranfrage des Vorbesitzers des Grundstücks. Allerdings hat sich hier inzwischen soviel getan (mehrere Häuser mit 2 Vollgeschossen, etc.), das ich mir gut vorstellen kann, das 2 Vollgeschosse kein Problem sind.
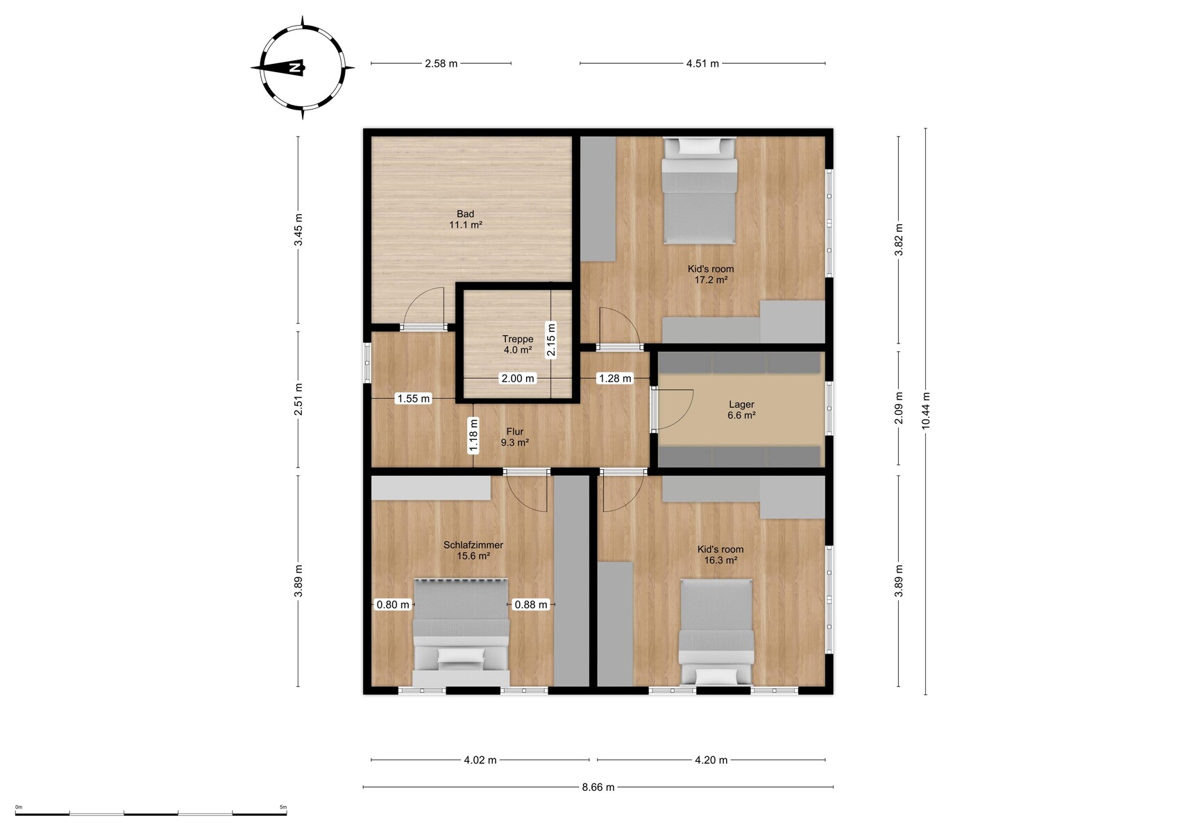
Die Grundrisse von EG und OG, sowie einen entsprechenden Ausschnitt aus Google Maps habe ich angehängt. Die beiden Grundrisse sind nicht genordet, dort habe ich den Nordpfeil eingezeichnet. Die Google Maps Karte ist genordet. Der rote Rahmen markiert grob das Grundstück. der kleine rote Kasten an der Straße zeigt den abgesenkten Bordstein, über den die Zufahrt erfolgen muss. Der größere rote Kasten soll ganz grob den Bereich zeigen, in dem Haus inkl. Carport platziert werden sollen. Ich hoffe das reicht erst mal alles so?
Bebauungsplan/Einschränkungen
Größe des Grundstücks: 1978qm
Hang: nein
Baufenster, Baulinie und -grenze: 6,0 und 19,0 m von der straßenseitigen Grundstücksgrenze (Noch in Klärung, hier hat sich viel getan in letzter Zeit)
Geschossigkeit: 1,5 oder 2 (Noch in Klärung, hier hat sich viel getan in letzter Zeit)
Dachform: Satteldach
Anforderungen der Bauherren
Stilrichtung, Dachform, Gebäudetyp: Satteldach
Keller, Geschosse: Keinen Keller, 1,5 oder 2 Geschosse
Anzahl der Personen, Alter: 4 Personen (33, 32, 5, 2)
Raumbedarf im EG, OG:
EG: Küche mit Essbereich, Wohnzimmer "abtrennbar", Büro, Gästebad mit Dusche, Hauswirtschaftsraum, kleine Abstellmöglichkeit
OG: 2 Kinderzimmer, Badezimmer, Abstellraum, Schlafzimmer
Büro: Familiennutzung oder Homeoffice?: Home Office
Schlafgäste pro Jahr: Vernachlässigbar
offene oder geschlossene Architektur: eher geschlossen
konservativ oder moderne Bauweise: ein "Mittelding"
offene Küche, Kochinsel: offene Küche mit Kochinsel, Wohnzimmer abtrennbar
Anzahl Essplätze: Dauerhaft 6
Kamin: nein
Musik/Stereowand: nein
Balkon, Dachterrasse: nein
Garage, Carport: Carport für ein Auto und ggf. ein einfacher Stellplatz vorm Haus (Autos sind bei uns absolute Gebrauchsgegenstände).
Nutzgarten, Treibhaus: Unklar
Weiteres: Die Kochinsel ist absichtlich "nur" 1 Meter tief. Das scheint uns eine angenehme Tiefe zu sein, da wir dann beide noch einigermaßen vernünftig ans Ende greifen können (Wir sind beide nicht die Größten (ca. 170) und haben uns zum testen eine 1 Meter breite Holzplatte auf die aktuelle Arbeitsfläche gelegt). Als netten Nebeneffekt bleibt dann mehr Platz für den esstisch. Insgesamt wollten wir mit der Küchenplanung aber ohnehin noch rüber ins andere Forum.
Hausentwurf
Von wem stammt die Planung: Do-it-Yourself mit dem vermutlich üblichen Weg (wir haben uns viele Grundrisse aus dem Freundeskreis und von Fertighausanbietern angeschaut)
Was gefällt besonders? Warum? Eigentlich sind wir ganz zufrieden mit dem Entwurf. Die Schiebetür im Essbereich und das große Fenster im Wohnzimmer finden wir wegen der direkten Verbindung von Garten und Innen super. Die Schiebetür zwischen Wohnzimmer und Esszimmer ermöglicht einen Rückzug ins Wohnzimmer wenn mal wer Besuch da hat (das man dann immer noch durch den Essbereich durchlaufen muss ist nicht tragisch). Die Treppe sollte zwar vom Wohnraum abgetrennt, jedoch nicht im direkten Schmutzbereich liegen. Kinderzimmer sind ausreichend groß und haben Fenster nach Süden in den Garten.
Was gefällt nicht? Warum? Wir fummeln noch an der Außenansicht und den Fensterpositionen rum. Die sind vor allem oben alles andere als ausgereift. Bei der Treppe habe ich mir einen Grundriss von einem Treppenbauer geschnappt der passte (Betontreppe), ich hoffe das ist auch "in echt" realistisch in den Maßen?
Persönliches Preislimit fürs Haus, inkl Ausstattung: 300k, die durchschnittlichen Quadratmeterkosten des Bankmenschen decken sich ziemlich gut mit den Kosten mehrerer Freunde die auch gerade bauen (Ländliches Niedersachsen, ca. 1650 - 1850 €/qm)
favorisierte Heiztechnik: Wärmepumpe mit Ringgrabenkollektoren
Wenn Ihr verzichten müsst, auf welche Details/Ausbauten
-könnt Ihr verzichten: Hm, ehrlich gesagt auf Nichts so richtig
-könnt Ihr nicht verzichten: Büro, Schiebetür, Kochinsel
Warum ist der Entwurf so geworden, wie er jetzt ist?
Wir haben uns viele Grundrisse aus dem Freundeskreis und von Fertighausanbietern angeschaut. Abändern der Pläne hat meist nichts gebracht, sodass wir uns letztlich doch die Nächte mit selbst zeichnen um die Ohren geschlagen haben (Macht ja auch Spaß irgendwie).
Was macht ihn in Euren Augen besonders gut oder schlecht?
Wir haben unser komplettes Raumprogramm in unserer Grenze von ca. 150qm untergebracht bekommen. Wenn wir unseren normalen Tagesablauf gedanklich durchgehen, funktioniert der Grundriss recht gut und alle Räume sind denke ich ausreichend groß.
Was ist die wichtigste/grundlegende Frage zum Grundriss in 130 Zeichen zusammengefasst?
Da wir auch nach mehrmaligem "in der Schublade liegen lassen und wieder darauf schauen" immer noch zufrieden sind, drängt sich uns natürlich die Frage auf, ob wir etwas grundlegendes übersehen haben. Fällt euch irgendwas auf, was gar nicht geht? Wo man sich die nächsten 30 Jahre drüber ärgern würde? Und ein wenig konkreter: Ist die Küche mit dem Essbereich evt. zu eng oder zu schlauchig?
Ich freue mich auf die hoffentlich zahlreiche Kritik.
Vielen Dank schon mal im Voraus!



nachdem ich schon eine gefühlte Ewigkeit hier im Forum mitlese, muss ich jetzt auch mal "die Hose runterlassen". Wir haben uns vor einiger Zeit ein Grundstück im ländlichen Niedersachsen in direkter Nachbarschaft zu unserer jetzigen Wohnung gekauft und wollen jetzt langsam aber sicher den Hausbau in Angriff nehmen.
Den Fragebogen habe ich soweit es mir möglich war ausgefüllt. Zu Dachform, Geschossigkeit, Baufenster, etc. habe ich "nur" Angaben aus einer alten Bauvoranfrage des Vorbesitzers des Grundstücks. Allerdings hat sich hier inzwischen soviel getan (mehrere Häuser mit 2 Vollgeschossen, etc.), das ich mir gut vorstellen kann, das 2 Vollgeschosse kein Problem sind.
Die Grundrisse von EG und OG, sowie einen entsprechenden Ausschnitt aus Google Maps habe ich angehängt. Die beiden Grundrisse sind nicht genordet, dort habe ich den Nordpfeil eingezeichnet. Die Google Maps Karte ist genordet. Der rote Rahmen markiert grob das Grundstück. der kleine rote Kasten an der Straße zeigt den abgesenkten Bordstein, über den die Zufahrt erfolgen muss. Der größere rote Kasten soll ganz grob den Bereich zeigen, in dem Haus inkl. Carport platziert werden sollen. Ich hoffe das reicht erst mal alles so?
Bebauungsplan/Einschränkungen
Größe des Grundstücks: 1978qm
Hang: nein
Baufenster, Baulinie und -grenze: 6,0 und 19,0 m von der straßenseitigen Grundstücksgrenze (Noch in Klärung, hier hat sich viel getan in letzter Zeit)
Geschossigkeit: 1,5 oder 2 (Noch in Klärung, hier hat sich viel getan in letzter Zeit)
Dachform: Satteldach
Anforderungen der Bauherren
Stilrichtung, Dachform, Gebäudetyp: Satteldach
Keller, Geschosse: Keinen Keller, 1,5 oder 2 Geschosse
Anzahl der Personen, Alter: 4 Personen (33, 32, 5, 2)
Raumbedarf im EG, OG:
EG: Küche mit Essbereich, Wohnzimmer "abtrennbar", Büro, Gästebad mit Dusche, Hauswirtschaftsraum, kleine Abstellmöglichkeit
OG: 2 Kinderzimmer, Badezimmer, Abstellraum, Schlafzimmer
Büro: Familiennutzung oder Homeoffice?: Home Office
Schlafgäste pro Jahr: Vernachlässigbar
offene oder geschlossene Architektur: eher geschlossen
konservativ oder moderne Bauweise: ein "Mittelding"
offene Küche, Kochinsel: offene Küche mit Kochinsel, Wohnzimmer abtrennbar
Anzahl Essplätze: Dauerhaft 6
Kamin: nein
Musik/Stereowand: nein
Balkon, Dachterrasse: nein
Garage, Carport: Carport für ein Auto und ggf. ein einfacher Stellplatz vorm Haus (Autos sind bei uns absolute Gebrauchsgegenstände).
Nutzgarten, Treibhaus: Unklar
Weiteres: Die Kochinsel ist absichtlich "nur" 1 Meter tief. Das scheint uns eine angenehme Tiefe zu sein, da wir dann beide noch einigermaßen vernünftig ans Ende greifen können (Wir sind beide nicht die Größten (ca. 170) und haben uns zum testen eine 1 Meter breite Holzplatte auf die aktuelle Arbeitsfläche gelegt). Als netten Nebeneffekt bleibt dann mehr Platz für den esstisch. Insgesamt wollten wir mit der Küchenplanung aber ohnehin noch rüber ins andere Forum.
Hausentwurf
Von wem stammt die Planung: Do-it-Yourself mit dem vermutlich üblichen Weg (wir haben uns viele Grundrisse aus dem Freundeskreis und von Fertighausanbietern angeschaut)
Was gefällt besonders? Warum? Eigentlich sind wir ganz zufrieden mit dem Entwurf. Die Schiebetür im Essbereich und das große Fenster im Wohnzimmer finden wir wegen der direkten Verbindung von Garten und Innen super. Die Schiebetür zwischen Wohnzimmer und Esszimmer ermöglicht einen Rückzug ins Wohnzimmer wenn mal wer Besuch da hat (das man dann immer noch durch den Essbereich durchlaufen muss ist nicht tragisch). Die Treppe sollte zwar vom Wohnraum abgetrennt, jedoch nicht im direkten Schmutzbereich liegen. Kinderzimmer sind ausreichend groß und haben Fenster nach Süden in den Garten.
Was gefällt nicht? Warum? Wir fummeln noch an der Außenansicht und den Fensterpositionen rum. Die sind vor allem oben alles andere als ausgereift. Bei der Treppe habe ich mir einen Grundriss von einem Treppenbauer geschnappt der passte (Betontreppe), ich hoffe das ist auch "in echt" realistisch in den Maßen?
Persönliches Preislimit fürs Haus, inkl Ausstattung: 300k, die durchschnittlichen Quadratmeterkosten des Bankmenschen decken sich ziemlich gut mit den Kosten mehrerer Freunde die auch gerade bauen (Ländliches Niedersachsen, ca. 1650 - 1850 €/qm)
favorisierte Heiztechnik: Wärmepumpe mit Ringgrabenkollektoren
Wenn Ihr verzichten müsst, auf welche Details/Ausbauten
-könnt Ihr verzichten: Hm, ehrlich gesagt auf Nichts so richtig
-könnt Ihr nicht verzichten: Büro, Schiebetür, Kochinsel
Warum ist der Entwurf so geworden, wie er jetzt ist?
Wir haben uns viele Grundrisse aus dem Freundeskreis und von Fertighausanbietern angeschaut. Abändern der Pläne hat meist nichts gebracht, sodass wir uns letztlich doch die Nächte mit selbst zeichnen um die Ohren geschlagen haben (Macht ja auch Spaß irgendwie).
Was macht ihn in Euren Augen besonders gut oder schlecht?
Wir haben unser komplettes Raumprogramm in unserer Grenze von ca. 150qm untergebracht bekommen. Wenn wir unseren normalen Tagesablauf gedanklich durchgehen, funktioniert der Grundriss recht gut und alle Räume sind denke ich ausreichend groß.
Was ist die wichtigste/grundlegende Frage zum Grundriss in 130 Zeichen zusammengefasst?
Da wir auch nach mehrmaligem "in der Schublade liegen lassen und wieder darauf schauen" immer noch zufrieden sind, drängt sich uns natürlich die Frage auf, ob wir etwas grundlegendes übersehen haben. Fällt euch irgendwas auf, was gar nicht geht? Wo man sich die nächsten 30 Jahre drüber ärgern würde? Und ein wenig konkreter: Ist die Küche mit dem Essbereich evt. zu eng oder zu schlauchig?
Ich freue mich auf die hoffentlich zahlreiche Kritik.
Vielen Dank schon mal im Voraus!
Mal auf die Schnelle, die Küche kapier ich nicht. Da ist doch jetzt nur die Halbinsel eingezeichnet. Keine Hochschränke, keine Zeile an der Wand hinter der Insel. Wie soll das ausreichen? Der Durchgang mit 1,5x reicht nicht um eine Sekundärzeile hinter die Halbinsel zu stellen
Oh, das hätte ich vlt expliziter im Ausgangspost schreiben sollen: Wie die Küche aussehen soll wissen wir noch nicht genau (also ob normale Küchenzeile an der Wand hinter der Kochinsel oder mit Hochschränken, oder, oder). Das einzige was quasi gesetzt ist, ist die Kochinsel. Deswegen haben wir die schon mal eingezeichnet. Ich aktualisiere den Post mal fix.
Ein Haus der Enge:
- Treppe zu eng (2m Rohbaumaß wird ne Hühnerleiter)
- Küche zu eng - zwischen Kochinsel und Wandzeile bleibt nur 1m - zu wenig für echte Freiheit
- Essbereich zu eng - man kommt nicht ins "Leben"-Zimmer (find ich übrigens nen sehr hübschen Namen) ohne über die Stühle zu fallen oder sich vorbei zu quetschen.
- Abstand Sofa - TV zu eng - ok, da kann man drüber streiten - Standard sind um die 4m. 3,78m in kleinen Häusern ist akzeptabel.
- Waschbecken im Gäste-WC zu eng - praktisch nicht erreichbar
- Platz vorm kleiderschrank zu eng - Schranktür öffnen auf 80cm und Klamotten auswählen ohne rücklings ins Bett zu kippen ist quasi unmöglich. Das ganze evtl. noch zu zweit wird eine lebenslange Strafe.
- Treppenaustritt oben arg eng - mit 1,18m knapp unter der Mindestgrenze - geht noch - aber schön ist das nicht.
- Treppe zu eng (2m Rohbaumaß wird ne Hühnerleiter)
- Küche zu eng - zwischen Kochinsel und Wandzeile bleibt nur 1m - zu wenig für echte Freiheit
- Essbereich zu eng - man kommt nicht ins "Leben"-Zimmer (find ich übrigens nen sehr hübschen Namen) ohne über die Stühle zu fallen oder sich vorbei zu quetschen.
- Abstand Sofa - TV zu eng - ok, da kann man drüber streiten - Standard sind um die 4m. 3,78m in kleinen Häusern ist akzeptabel.
- Waschbecken im Gäste-WC zu eng - praktisch nicht erreichbar
- Platz vorm kleiderschrank zu eng - Schranktür öffnen auf 80cm und Klamotten auswählen ohne rücklings ins Bett zu kippen ist quasi unmöglich. Das ganze evtl. noch zu zweit wird eine lebenslange Strafe.
- Treppenaustritt oben arg eng - mit 1,18m knapp unter der Mindestgrenze - geht noch - aber schön ist das nicht.
Kann man seine Beiträge nicht weiter editieren oder übersehe ich den Knopf einfach?
- Bei der Treppe hatten wir schon fast befürchtet das 2 Meter breite zu wenig werden (aber die Hoffnung stirbt ja bekanntlich zuletzt).
- Abstand zwischen Küchenzeile und Kochinsel: Ich hatte überall von 120 cm gelesen und das auch vor allem mit der Begründung, dass man dann gegenüberliegende Schubladen gleichzeitig aufmachen kann. Wenn ich die Insel ein Stück weiter in den Raum schiebe komme ich 1,10 Meter. Ich stell das nachher mal bei uns in der Küche nach.
- Huch, das war nicht beabsichtigt, das Leben-Zimmer passt hoffentlich besser zur Küche. Zumindest ist das Wohnzimmer eigentlich eher der Kuschel und Rumgammelraum. Auch hier hab ich mich an den Maßen orientiert, die man so findet. 120cm vom Tisch zur Insel und 130cm vom Tisch zur Wohnzimmer-Schiebetür. Ist das wirklich soviel zu knapp?
- Gerade gemessen: wir haben aktuell 3,80 Meter. Das reicht für uns
- Die Dusche im Gäste-WC ist ebenerdig gedacht mit einfachem Vorhang, der die meiste Zeit vermutlich ohnehin offen wäre. Dann kommt man auch gut ans Waschbecken ran.
- Im Schlafzimmer könnte ich das Bett drehen und an die andere Wand stellen, dann wäre ne ganze Ecke mehr Platz vorm Schrank. Oder das Bett weiter an die Wand ohne Schrank schieben (da müsste ich dann liegen, meine Frau bekommt dann den breiteren Durchgang. Aktuell habe ich 40cm zwischen Bett und Wand, reicht mir auch ).
- Ok, die Treppe wieder, ich sehe schon, da muss man noch mal ran.
Insgesamt scheint es eher an Hauslänge als an Hausbreite zu fehlen. Sehe ich das richtig?
Besten Dank schon mal!
kaho674 schrieb:
Ein Haus der Enge:
- Treppe zu eng (2m Rohbaumaß wird ne Hühnerleiter)
- Küche zu eng - zwischen Kochinsel und Wandzeile bleibt nur 1m - zu wenig für echte Freiheit
- Essbereich zu eng - man kommt nicht ins "Leben"-Zimmer (find ich übrigens nen sehr hübschen Namen) ohne über die Stühle zu fallen oder sich vorbei zu quetschen.
- Abstand Sofa - TV zu eng - ok, da kann man drüber streiten - Standard sind um die 4m. 3,78m in kleinen Häusern ist akzeptabel.
- Waschbecken im Gäste-WC zu eng - praktisch nicht erreichbar
- Platz vorm Kleiderschrank zu eng - Schranktür öffnen auf 80cm und Klamotten auswählen ohne rücklings ins Bett zu kippen ist quasi unmöglich. Das ganze evtl. noch zu zweit wird eine lebenslange Strafe.
- Treppenaustritt oben arg eng - mit 1,18m knapp unter der Mindestgrenze - geht noch - aber schön ist das nicht.
- Bei der Treppe hatten wir schon fast befürchtet das 2 Meter breite zu wenig werden (aber die Hoffnung stirbt ja bekanntlich zuletzt).
- Abstand zwischen Küchenzeile und Kochinsel: Ich hatte überall von 120 cm gelesen und das auch vor allem mit der Begründung, dass man dann gegenüberliegende Schubladen gleichzeitig aufmachen kann. Wenn ich die Insel ein Stück weiter in den Raum schiebe komme ich 1,10 Meter. Ich stell das nachher mal bei uns in der Küche nach.
- Huch, das war nicht beabsichtigt, das Leben-Zimmer passt hoffentlich besser zur Küche. Zumindest ist das Wohnzimmer eigentlich eher der Kuschel und Rumgammelraum. Auch hier hab ich mich an den Maßen orientiert, die man so findet. 120cm vom Tisch zur Insel und 130cm vom Tisch zur Wohnzimmer-Schiebetür. Ist das wirklich soviel zu knapp?
- Gerade gemessen: wir haben aktuell 3,80 Meter. Das reicht für uns
- Die Dusche im Gäste-WC ist ebenerdig gedacht mit einfachem Vorhang, der die meiste Zeit vermutlich ohnehin offen wäre. Dann kommt man auch gut ans Waschbecken ran.
- Im Schlafzimmer könnte ich das Bett drehen und an die andere Wand stellen, dann wäre ne ganze Ecke mehr Platz vorm Schrank. Oder das Bett weiter an die Wand ohne Schrank schieben (da müsste ich dann liegen, meine Frau bekommt dann den breiteren Durchgang. Aktuell habe ich 40cm zwischen Bett und Wand, reicht mir auch ).
- Ok, die Treppe wieder, ich sehe schon, da muss man noch mal ran.
Insgesamt scheint es eher an Hauslänge als an Hausbreite zu fehlen. Sehe ich das richtig?
Besten Dank schon mal!
Ähnliche Themen