Hausbau - Ratgeber
Bauherrenhilfe
- Bauherrenhilfe vor Vertragsabschluss
-- Warum einen unabhängigen Baubetreuer?
-- Vertragsgrundlagen
-- Bausumme
-- Zahlungsplan zur Kostenkontrolle
-- Pflichten des Bauherren vor Vertragsabschluss
-- Unterlagen beim Hausbau vor Vertragsabschluss
- Bauherrenhilfe nach Vertragsabschluss
-- Bauantrag bei Behörden
-- Bau-Genehmigungsverfahren bei Baubehörden
-- Bauspezifische Versicherungen
-- Bauzeitenplan
-- Baubeginn - die Letzten Pflichten der Bauherrschaft
- Bauherrenhilfe während der Bauzeit
- Gewährleistungsansprüche
- Bauabnahme
Baufinanzierung
- Baufinanzierung - Allgemeine Fragen
- Kreditarten
- Kredit-Konditionen
- Bausparen
- Staatliche Förderungen
- Verkehrswert
- Haushaltsrechnung und Bonität
Hausbau Planung
- Haustypen
- Hausbau Vorbereitungsarbeiten
- Das Baugrundstück
- Baugrund beim Hausbau
- Baurecht
- Gebäudeschutz
- Erdarbeiten und Wasserhaltung
- Stützmauern
- Einfriedung
- Untergeschoss
- Kanalisation
- Tragende Elemente
- Nichttragende Innenwände
- Fundation / Fundament
- Deckenkonstruktionen
- Dächer
- Kaminanlagen
- Treppen Rampen Leitern
- Dachbeläge und Spengler
- Fenster
- Sonnen und Wetterschutz
- Aussenputze
- Einbauten, Küchen, Türen
- Bodenbeläge und Unterlagsböden
- Parkett
- Gips, Wand, Decke
Haustechnik und Energie
- Heiztechnik
- Lüftung und Klimatechnik
- Sanitärtechnik
- Elektrotechnik
- Erneuerbare Energie
Whirlpools / Jacuzzi
Hausbau Magazin
- Baufinanzierung trotz Krise?
- Das Blockhaus
- Moderne Dämmstoffe im Vergleich
- Erker Vor- und Nachteile
- Glasflächen beim Hausbau
- Günstig ein Haus Bauen
- Mediterraner Hausbaustil
- Mehrgenerationenhaus
- Moderne Architektur
- Gartengestaltung leicht gemacht
- Traditioneller Ziegelbau
- Villa als höchster Traum
- Im Eigenheim Ruhestand geniessen
- Altbau sanieren
- Kauf einer Holzgarage
- Immobilienmakler
- Arbeitshandschuhe für den Winter
- Zuhause verschönern
- Outdoor-Plissees
- Schlafzimmer planen
- Terrassenüberdachung
- Wohngebäudeversicherung
- Zaunarten und Eigenschaften
- Hauseingang gestalten
- Der perfekte Grundriss
- Sparsamer heizen im Altbau
- Einfamilienhaus smart finanzieren
- Planung einer PV-Anlage
- Neues Haus
- Immobilienfinanzierung
- Installation einer Photovoltaikanlage
- Asbest erkennen und entfernen
- Gartenpflege im Frühling – worauf achten
- Sauna im Fokus - Wellness zuhause
- Erfolgreich vermieten
- Die perfekte Winterbekleidung
- Das Niedrigenergiehaus
- Der April und seine Stürme
- Architektonische Vielfalt
- Ökologisch und nachhaltig bauen
- Das perfekte Schlafzimmer
- Nachhaltige Energieversorgung
- Zukunftsorientiert bauen
- Nachhaltigkeit beim Hausbau
- Tiny Houses
- Wärmepumpen als nachhaltige Heizvariante
- Maßgeschneiderten Kleiderschrank
- Der richtige Baukredit
- Ratgeber für erfolgreichen Hausbau
- Haus als Altersvorsorge
Do-it-yourself Anleitungen
- Verlegeanleitung für Bodenbeläge und Parkett
- Bodenbeläge und Parkett reinigen und pflegen
- Malerarbeiten am Haus
- Garten Tipps
- Umzug und Reinigung

ᐅ Grundriss, Hausanordnung EFW 150m2, Keller + Einliegerwohnung - Feedback erwünscht

Erstellt am: 29.12.24 00:08
N
njAiiii
H
hanghaus2023
29.12.24 13:10
Du hast doch noch Luft nach oben. Die Nachbarn sind höher. Du hast doch jede Menge Aushub vom Keller übrig. Setz das Haus höher und Verteile den Aushub auf Deinem Grundstück. Dann hast auch mehr Licht in der Einliegerwohnung.

Meine Einliegerwohnung hat 80m2 und ist im EG und OG. In den Keller hätte ich mich nicht mal getraut das den Schwiegereltern anzubieten.

Ob sich das rechnet?

Du kannst max. 40/190tel absetzen. Ver giss nicht, das die Miete versteuert werden muss.
H
hanghaus2023
29.12.24 13:21
Hier gibt es einen Beitrag der so etwas auch realisieren will.

https://www.hausbau-forum.de/threads/eckgrundstueck-mit-einliegerwohnung.48277/

Da gibt es schon recht gute Vorschläge ohne Keller.
N
nordanney
29.12.24 13:33
So eine Einliegerwohnung nur dann, wenn man in der Nähe einer Uni liegt oder man wirklich in/direkt bei der Großstadt baut. Ansonsten ist und bleibt sie auf ewig ein reine Zumutung für die Familiennutzung, da kaum fremdvermietbar.
Steuerlich doch nur sinnvoll, wenn Ihr schon recht alt seid. Wenn die AfA verbraucht ist, lohnt es kaum noch - außer, man geht dann in Richtung Rente und benötigt keine Werbungskosten mehr. Wäre mir in der Kombi Qualität der Wohnung und Kosten-/Nutzenrelation (steuerlich) tatsächlich zu teuer.
N
njAiiii
29.12.24 13:35
SoL schrieb:

Naja bei 200m² der älteren Person nur 6m² Schlafzimmer zu gönnen ist halt... Grenzwertig.
Zwackt ein paar m² vom Einliegerwohnung Wohnzimmer ab.
Fair point. Warum haben wir es bisher anders geplant? Schlafzimmer wirklich nur zum Schlafen gedacht und damit die Fläche im WZ+Küche maximiert auch wg. des Lichteinfalls.
ypg schrieb:

Zu den Leistungsphasen kann ich nichts beisteuern.
Zum Grundriss: da sind sind jetzt auch keine groben Schnitzer drin. Ich persönlich halte nichts von einer langen schmalen Speis. Da würde ich eher die Speis weglassen und die Küche großzügiger und komfortabler planen.
Was wären denn kleinere Schnitzer?
Wir würden das als Speis / Abstellkammer nutzen und nicht alles per se in den Keller packen.
ypg schrieb:

Ich habe eher ein Problem, die Einliegerwohnung zu akzeptieren, so wie sie ist.

Ich sehe durch den separaten Treppenzugang außen jetzt nicht das "mit" oder "nicht allein". Es ist schon ein Unterschied, ob man eine Treppe im Gebäude oder außen hat. Gerade auch bei einer älteren Person, denn die braucht gegebenenfalls doch etwas länger mit einer Treppe, da können Ruhepausen auf den Stufen eine Rolle spielen, die die Person dann doch eher veranlasst, in der Wohnung zu bleiben und die Treppe zu meiden.
Auch suggeriert die Außenansicht ein Blick nach draußen. wenn man sich aber die Lage der Kellerwohnung bewusst macht, kann ein normal großer Mensch von innen eben doch nur gegen eine Betonwand schauen. Der Terrassenstreifen mag zwar lang und dadurch groß sein, ändert aber nichts, dass er unattraktiv ein 2-Meter-Streifen breit und 2 Meter unter der Oberfläche ist.
Es soll in jedem Fall zwei separate Eingänge geben. Deswegen ist es nicht mit, sondern eher ein "nicht allein" und in unmittelbarer Nähe.
Eine Überlegung war den Abgang vorzuziehen und hier und da ein Podest zu machen. Angenommen wir können das Haus um 60cm anheben und brauchen vorne 2-3 Stufen, dann würden wir für den Abgang 3 weniger benötigen. Das wären 15-3 = 12 Stufen über knapp 6m, ggf. über 5m.
ypg schrieb:

Ich greife das Wort "Not" mal auf und sage: es ist eine Not(behelfs)-Wohnung. Wer will das mieten?
Es geht natürlich um Meinungen. Ist es so schrecklich? Wenn ich alleinstehend wäre und die Nähe zur Natur schätzen würde, hätte ich gefühlt selbst weniger ein Problem damit. Wenn ich mir Alternativen in unserer Umgebung angucke, fällt dieses Loch nicht mal in die Kategorie der Löcher. In der näheren Umgebung gibt es einige ELWs, die zumindest zum Teil vergraben sind. Kaum eine davon hat überhautp eine Terrasse oder einen Gartenzugang.
Bzgl. Mieten "wollen". Was würde das denn ändern? Einliegerwohnung komplett ins EG holen?
ypg schrieb:

Zu dem Schlaf-AB muss man jetzt nichts sagen. Meiner Meinung nach würde ich eh den Schlafbereich planunten einrichten, die Küche bei dem Eingang. Dann kann der unterirdische Terrassenstreifen kürzer ausfallen und mit einer Abböschung dafür tiefer im Sinne von breiter und attraktiv mit Bepflanzung Richtung Garten gestaltet werden. Verständlich?
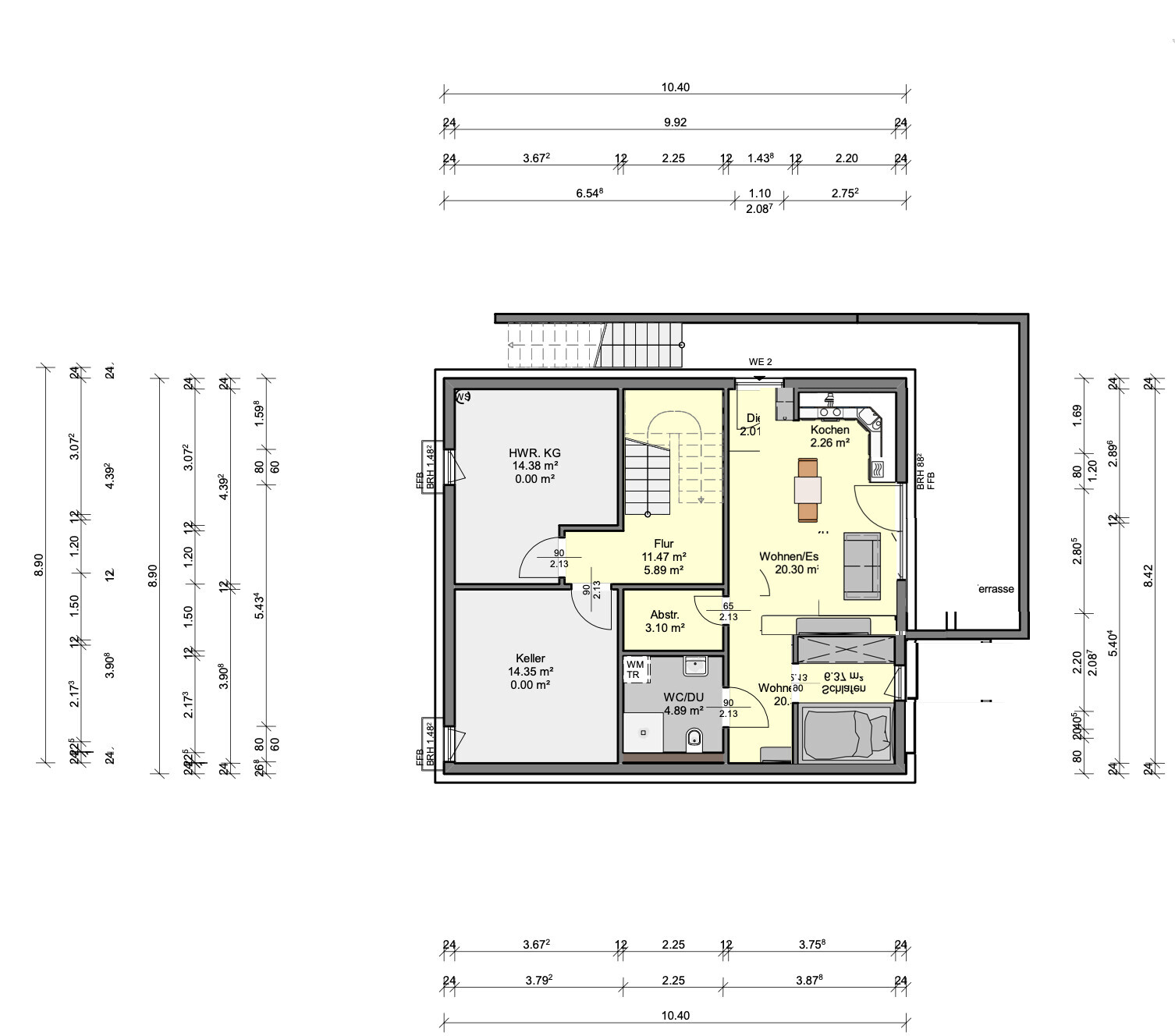
Wenn ich das richtig verstehe, heißt planunten für Dich neben dem Bad. Ich habe das mal mit einfach Paint Skills versucht, ohne den Raum zu erweitern. Meintest du es in etwa so wie im Anhang?


Detaillierter Grundriss eines Hauses mit Wohnzimmer, Küche, Flur, Kellerräumen und Terrasse


Der Terrassenstreifen kann beliebig ausgestaltet werden. Laut Architekt müssen wir das Haus sowie das Gelände dort abfangen. Es sei günstiger, den Streifen nicht bis ans Ende des Hauses laufen zu lassen. Wir haben uns an den zwei weiteren Anhängen ausgerichtet.


Außenansicht eines modernen weißen Mehrfamilienhauses mit Terrasse und Garten


Außenansicht eines modernen Hauses mit weißer Fassade, Terrasse und Garten.

ypg schrieb:

Das ist ein Scherz.
Es ist multi-funktional: Arbeiten (dafür deutlich zu groß), Gäste (dafür alleine viel zu selten), Abstellfläche (Bücher, Krimskrams) und halt das Grundkonzept ggf. irgendwann in einen Schlafraum umzufunktonieren in 30+. Warum ist der Gedanke so schlecht?
hanse987 schrieb:

Da würde ich lieber das Stadtzentrum nehmen. Und ich muss sagen ich bin kein Stadtkind, aber diese Kellerwohnung geht für mich gar nicht.
Hallo Hanse987,
Danke für deine Meinung. Was geht denn für dich? Muss die Wohnung aus dem KG raus? Würde es helfen, das KG anzuheben? Was an der Gestaltung geht nicht? Aus der reinen Ablehnung kann ich kaum Input ziehen, der uns hilft, die Lage insgesamt zu verbessern.
Hast du eine Einliegerwohnung oder selbst mal im KG gewohnt und sprichst aus Erfahrung?

Im Grundsatz hätten wir kein Thema damit, aus dem KG aus zu arbeiten. Durch den Wunsch, die Einheiten aber zu trennen, beißen wir uns bisher an Vorschlägen die Zähne aus, die eine Einliegerwohnung im EG deutlich besser ausfallen ließe. Dann wäre für uns gedanklich bisher die einzige Option, die Einliegerwohnung an der NO-Seite verlaufen zu lassen. Das wäre schlauchig, auch dunkel und würde EG + OG komplett neu bedeuten. Aus den ganzen Standardgrundrissen von Fertighausbauern konnte wir da leider wenig bis keine Inspiration ziehen. Vie
N
njAiiii
29.12.24 14:13
K a t j a schrieb:

Wenn ich mir Euren Entwurf so ansehe, so sind das alles Kompromisslösungen, die nie wirklich ideal sind. Einliegerwohnung im Keller - niemand will so wohnen. Die Steigung ist zu gering für ein echtes UG und die Treppen sind für Ü70 schon ein Hindernis - vor allem im Winter. Zugang zum Wohnbereich durch die Küche ist doch Mist und Zugang zur Speis durch Küchenmöbel erst recht.
Warum ist der Speis über die Küche Mist? Weil die Tür sich abnutzt? Wir haben auf der NO-Seite den Nachbarn. Da steht ein alter verklinkerter Bungalow. Semi-gut zum draufgucken. Jetzt könnten wir den Speis weglasen und die Küche komplett in die Ecke setzen. Dann müssten wir das Thema Abstellraum nochmal aufnehmen.
Wie würdest du den Wohnbereich denn erschließen? Direkt neben der Tür zur Küche noch eine zum WZ und die Wand dafür einrücken? Dann hat man da einen kleine Ecke / einen Pfeiler und schaut auf die Treppe. Das spricht uns weniger an.
K a t j a schrieb:

Wenn die Einliegerwohnung wirklich sein muss, dann solltet Ihr sie auch so bauen, dass man tatsächlich gern dort wohnen will. Stellt Euch bitte vor, Ihr müsst da nächstes Jahr einziehen! Das bedeutet m.E. ebenerdig mit Licht und Luft ohne Abgrabungen - z.B. als Anbau. Den Platz, den Ihr jetzt für Abgrabungen "verbrennt" ist nicht groß genug, um wirklich Licht in die Einliegerwohnung zu lassen und dort eine echte Terrasse zu haben. Andererseits ist er zu groß, um den Garten dahinter noch sinnvoll zu nutzen. Dann könnt Ihr die Fläche auch gleich bebauen.
D.h. du würdest auf den Keller verzichten und die Einliegerwohnung ins EG legen? Was müsste denn an Rahmenbedingungen vorliegen, damit die Einliegerwohnung im KG verbleiben könnte?
H
hanghaus2023
29.12.24 14:21
njAiiii schrieb:

D.h. du würdest auf den Keller verzichten und die Einliegerwohnung ins EG legen? Was müsste denn an Rahmenbedingungen vorliegen, damit die Einliegerwohnung im KG verbleiben könnte?

Keller bleibt Keller. Wenn man es so wie auf den Bilder gestalten will und kann, dann würde das helfen. Aber der Grundriss ist trotzdem nicht gut.

Wohnraum im Keller ist teuer. Die Außenanlagen kosten richtig Geld.

Wie hoch steht denn das Grundwasser an?
einliegerwohnungkellerkücheaushubabgangtür