P
pagoni202005.07.20 17:02So – habe all Eure Posts gelesen und bedanke mich nochmals ganz herzlich dafür. Viele Gedanken, Stunden und Radiergummis später habe wir jetzt einen geänderten Entwurf erstellt (bzw. meine Frau, während ich Wichtigeres zu tun hatte).
Vorher wars schön für uns, jetzt haben wir uns dafür andere Vorteile geschaffen, die vorher eher im Hintergrund standen. Letztlich hat Alles seine Berechtigung....
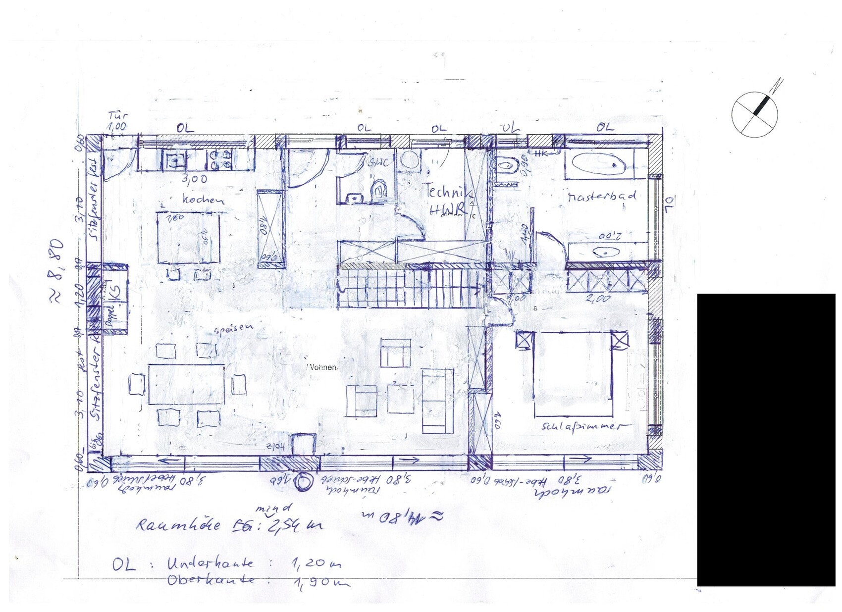
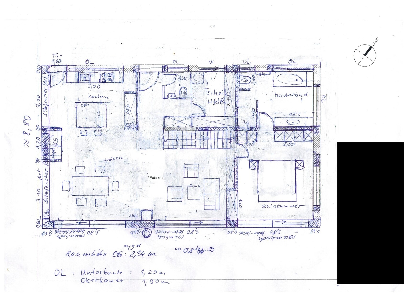
Gebäude 1,5m länger / 50cm tiefer; Kniestock deutlich gesenkt (anstatt 180 nun ca. 80cm), dadurch eine andere Optik (schluchzzz) des Gebäudes, Fenstergrößen und Dachneigung bedürfen noch UNBEDINGT der fachmännischen, technischen und gechmacklichen Anpassung.
Tausch Schlafzimmer + Masterbad von OG ins EG, Gzi+G-Bad nach oben
Die großen Fensterfronten sind nicht mehr so hoch und kein extra Fensterband mehr dafür jetzt breiter, vom Schlafzimmer aus direkter Ausgang in den Garten, Kamin kein Engpass mehr, Side By Side Kühlschrank passt für uns und dazu kleines WZ fast zu groß, da im OG ein Weiteres.
Falls Verlängerung des Gebäudes wg. Bebauungsplan nicht genehmigt würde ginge es wohl auch wie vorher mit 100cm kürzer an Esszimmer-/Küchenseite.
Eher ungewollt entstehen nun quasi die genannten „2 Suiten“ bzw. unsere Hauptwohnung im EG und Gästebereich plus „Wohnlounge Seeblick“, Büroecke, TV-Bereich und Faulenzerbereich im OG.
Treppenaufgang nun ohne Umweg in die Galerie, die im Gesamten wohl leider an Luftigkeit verlieren wird.
Vlt. müssen wir auch auf einen helleren Putz als anthrazit wechseln; Treppe vom Balkon in Garten wird mit beantragt
Das Ganze geht demnächst wieder zum Planer…..mal sehen. Eigentlich wollten/sollten wir nur noch Änderungen im begrenzteren Maße umsetzen aber die Verlegung der Räume bedurfte mehr Fläche im EG und weniger Kniestock im OG. Dadurch Fenster anders und dergleichen mehr……
Evtl. können so auch ein paar qm Wohnfläche eingespart werden, da als Vorgaben an uns keine feste Zahl besteht, sondern das Ziel „so klein wie möglich aber so groß wie nötig“.
Nochmals hier ganzh speziellen Dank für die Deutlichkeit und Klarheit der Kommentare, Einzelne möchte ich nicht hervorheben.....nicht dass da noch Größenwahn entsteht bzw. unterstützt wird- . You know what I mean.....
Sonntägliche Grüße



Vorher wars schön für uns, jetzt haben wir uns dafür andere Vorteile geschaffen, die vorher eher im Hintergrund standen. Letztlich hat Alles seine Berechtigung....
Gebäude 1,5m länger / 50cm tiefer; Kniestock deutlich gesenkt (anstatt 180 nun ca. 80cm), dadurch eine andere Optik (schluchzzz) des Gebäudes, Fenstergrößen und Dachneigung bedürfen noch UNBEDINGT der fachmännischen, technischen und gechmacklichen Anpassung.
Tausch Schlafzimmer + Masterbad von OG ins EG, Gzi+G-Bad nach oben
Die großen Fensterfronten sind nicht mehr so hoch und kein extra Fensterband mehr dafür jetzt breiter, vom Schlafzimmer aus direkter Ausgang in den Garten, Kamin kein Engpass mehr, Side By Side Kühlschrank passt für uns und dazu kleines WZ fast zu groß, da im OG ein Weiteres.
Falls Verlängerung des Gebäudes wg. Bebauungsplan nicht genehmigt würde ginge es wohl auch wie vorher mit 100cm kürzer an Esszimmer-/Küchenseite.
Eher ungewollt entstehen nun quasi die genannten „2 Suiten“ bzw. unsere Hauptwohnung im EG und Gästebereich plus „Wohnlounge Seeblick“, Büroecke, TV-Bereich und Faulenzerbereich im OG.
Treppenaufgang nun ohne Umweg in die Galerie, die im Gesamten wohl leider an Luftigkeit verlieren wird.
Vlt. müssen wir auch auf einen helleren Putz als anthrazit wechseln; Treppe vom Balkon in Garten wird mit beantragt
Das Ganze geht demnächst wieder zum Planer…..mal sehen. Eigentlich wollten/sollten wir nur noch Änderungen im begrenzteren Maße umsetzen aber die Verlegung der Räume bedurfte mehr Fläche im EG und weniger Kniestock im OG. Dadurch Fenster anders und dergleichen mehr……
Evtl. können so auch ein paar qm Wohnfläche eingespart werden, da als Vorgaben an uns keine feste Zahl besteht, sondern das Ziel „so klein wie möglich aber so groß wie nötig“.
Nochmals hier ganzh speziellen Dank für die Deutlichkeit und Klarheit der Kommentare, Einzelne möchte ich nicht hervorheben.....nicht dass da noch Größenwahn entsteht bzw. unterstützt wird- . You know what I mean.....
Sonntägliche Grüße
P
pagoni202005.07.20 17:30haydee schrieb:
Wow das ist eine Umplanung.
Wie breit ist die Dusche im EG?
Das Bad im OG ist recht schmal. Würde es auf die andere Seite planenTja.....was Mann ähm....Frau eben so macht....ich hab dafür ständig kalte Wadenwickel geliefert - welch ein Stress.Dusche EG-aktuell 100cm breit (ich weißßßßßßß.....aber ich plane mit einem Schmalspur-Rollstuhl).
OG-Bad gerne auf anderer Seite aber.....neuer, tiefer Kniestock !
Ähnliche Themen