ᐅ Anbau oder Kniestock Erhöhung ?
Erstellt am: 05.01.21 18:37
Hallo zusammen,
hoffe dieser Beitrag passt hier rein 🙂
wir sind gerade dabei ein Einfamilienhaus zu kaufen, das vom Platz her bisschen zu knapp ist.
Nun meine frage was würdet Ihr uns Empfehlen um einige m² mehr vom Haus rauszuholen.
Vom platz her würden uns beide reichen, meine frage geht mehr Richtung Preis /Leistung.
Lohnt sich das viele Geld mehr für einen Anbau ?
Und vorab nein wir können uns leider kein größeres Hauses kaufen, da wir mit diesem Haus ein super Schnäppchen machen.
Hoffe Ihr habt Erfahrung und könnt uns hierbei weiter helfen.


hoffe dieser Beitrag passt hier rein 🙂
wir sind gerade dabei ein Einfamilienhaus zu kaufen, das vom Platz her bisschen zu knapp ist.
Nun meine frage was würdet Ihr uns Empfehlen um einige m² mehr vom Haus rauszuholen.
- Doppelstöckiger Anbau
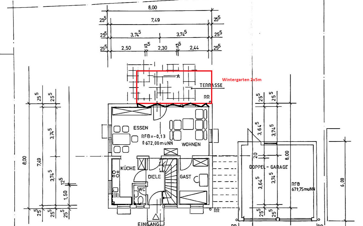
- oder reicht eine Kniestock Erhöhung auf min. 2m mit Wohnzimmer Erweiterung ( warmer Wintergarten 2x5m an Wohnzimmer angeknüpft, heißt Tragende Wand hier muss auch weg) aus.
Vom platz her würden uns beide reichen, meine frage geht mehr Richtung Preis /Leistung.
Lohnt sich das viele Geld mehr für einen Anbau ?
Und vorab nein wir können uns leider kein größeres Hauses kaufen, da wir mit diesem Haus ein super Schnäppchen machen.
Hoffe Ihr habt Erfahrung und könnt uns hierbei weiter helfen.
Wo ist es denn konkret zu knapp ?
Jede der beiden Maßnahmen muß ja auch passen (ins Baufenster, bzw. mit den Höhen und mit der Geschossigkeit), aber den Bebauungsplan kennen wir ja nicht.
Der Grundriss vom Dachgeschoss wäre schon sehr hilfreich, um sinnvoll Senf zur Kniestockfrage geben zu können. Woraus ist das Haus gebaut ?
https://www.instagram.com/11antgmxde/
https://www.linkedin.com/company/bauen-jetzt/
Jede der beiden Maßnahmen muß ja auch passen (ins Baufenster, bzw. mit den Höhen und mit der Geschossigkeit), aber den Bebauungsplan kennen wir ja nicht.
Der Grundriss vom Dachgeschoss wäre schon sehr hilfreich, um sinnvoll Senf zur Kniestockfrage geben zu können. Woraus ist das Haus gebaut ?
https://www.instagram.com/11antgmxde/
https://www.linkedin.com/company/bauen-jetzt/
Hey,
vor allem in den Schlafzimmern im OG ( 2x ca 12m² Zimmer )wo die Schräge schon ab 80cm beginnt ( was noch verträglich wäre)
aber im Wohnzimmer wo man kaum Platz für ein sofa und Esstisch hat müssen wir echt Schauen das wir was gewinnen.
Ein warmer Wintergarten wäre das die günstigste und einfachste Lösung denke ich aber ob das so leicht ist ist eine andere frage.
Bauweise ist Fertighaus in Stahlleichtbau.
vor allem in den Schlafzimmern im OG ( 2x ca 12m² Zimmer )wo die Schräge schon ab 80cm beginnt ( was noch verträglich wäre)
aber im Wohnzimmer wo man kaum Platz für ein sofa und Esstisch hat müssen wir echt Schauen das wir was gewinnen.
Ein warmer Wintergarten wäre das die günstigste und einfachste Lösung denke ich aber ob das so leicht ist ist eine andere frage.
Bauweise ist Fertighaus in Stahlleichtbau.
W
WilderSueden05.01.21 22:22Also nach meinem Überschlag sind das 28 qm im Wohnzimmer. Das ist keine Turnhalle aber Esstisch und Sofa bekommt man da locker rein. Ich habe hier aktuell 19qm und alles passt.
Was mir nicht ganz klar ist, was wollt ihr? Mehr Platz im Schlafzimmer oder ein größeres Wohnzimmer oder was anderes (doppelstöckiger Anbau?)
Ein höherer Kniestock kann den nutzbaren Bereich des Raums vergrößern, im Schlafzimmer zum Beispiel hat man aber Bereiche in denen das nicht so wichtig ist. Ob nun 10cm oder 2m Luft über dem Fußende ist erstmal egal wenn man schläft. Ein Wintergarten vergrößert das Wohnzimmer, aber gibt im Schlafzimmer nichts dazu.
Und wenn ihr gleich viel Geld ausgebt um das Haus komplett umzubauen, seid ihr euch sicher dass es auch mit Umbau noch ein Schnäppchen ist? Den Kniestock kann man bei Bestandshäusern nicht so einfach für 2000€ erhöhen wie beim Neubau, da muss vorher das ganze Dach weg, und so weiter.
Was mir nicht ganz klar ist, was wollt ihr? Mehr Platz im Schlafzimmer oder ein größeres Wohnzimmer oder was anderes (doppelstöckiger Anbau?)
Ein höherer Kniestock kann den nutzbaren Bereich des Raums vergrößern, im Schlafzimmer zum Beispiel hat man aber Bereiche in denen das nicht so wichtig ist. Ob nun 10cm oder 2m Luft über dem Fußende ist erstmal egal wenn man schläft. Ein Wintergarten vergrößert das Wohnzimmer, aber gibt im Schlafzimmer nichts dazu.
Und wenn ihr gleich viel Geld ausgebt um das Haus komplett umzubauen, seid ihr euch sicher dass es auch mit Umbau noch ein Schnäppchen ist? Den Kniestock kann man bei Bestandshäusern nicht so einfach für 2000€ erhöhen wie beim Neubau, da muss vorher das ganze Dach weg, und so weiter.
Selcukxx schrieb:
Bauweise ist Fertighaus in Stahlleichtbau.Dann sind beide Vergrößerungsoptionen nichttrivial und man sollte sie vorab mit dem Hersteller klären. Die Bauweise ist nicht all zu populär - ich würde sogar sagen, eine Nische. Von Herstellern, die da Lust hätten, Mitbewerberprodukte umzubauen, hätte ich zumindest noch nicht gehört.https://www.instagram.com/11antgmxde/
https://www.linkedin.com/company/bauen-jetzt/
WilderSueden schrieb:
Also nach meinem Überschlag sind das 28 qm im Wohnzimmer. Das ist keine Turnhalle aber Esstisch und Sofa bekommt man da locker rein. Ich habe hier aktuell 19qm und alles passt.
Was mir nicht ganz klar ist, was wollt ihr? Mehr Platz im Schlafzimmer oder ein größeres Wohnzimmer oder was anderes (doppelstöckiger Anbau?)
Ein höherer Kniestock kann den nutzbaren Bereich des Raums vergrößern, im Schlafzimmer zum Beispiel hat man aber Bereiche in denen das nicht so wichtig ist. Ob nun 10cm oder 2m Luft über dem Fußende ist erstmal egal wenn man schläft. Ein Wintergarten vergrößert das Wohnzimmer, aber gibt im Schlafzimmer nichts dazu.
Und wenn ihr gleich viel Geld ausgebt um das Haus komplett umzubauen, seid ihr euch sicher dass es auch mit Umbau noch ein Schnäppchen ist? Den Kniestock kann man bei Bestandshäusern nicht so einfach für 2000€ erhöhen wie beim Neubau, da muss vorher das ganze Dach weg, und so weiter.ein Anbau am Wohnzimmer ist teuer aber wenn das Fundament steht ist ein Stockwerk höher kein Drama laut Unternehmen also kriegt man mit bisschen mehr hin. Dann würde ich natürlich auch direkt die Schlafzimmer im OG erweitern .
ein Wintergarten wäre natürlich die günstigste Lösung auch die Logischste, aber ist sowas möglich ? es soll ja ins Wohnzimmer integriert werden, also die äußere Tragewand zum Teil weg.
habe jetzt paar Anfragen gestellt wenn mich der Anbau ca.80.000€ Kostet
und
Wintergarten+ Kniestock nur 30.000€ dann wäre ich natürlich für die günstigere Variante.
Ähnliche Themen