Hallo zusammen,
über eure Hilfe bei meinem Fall wäre ich Euch sehr dankbar!
Grundstück: 605 m² Breite 18,7m - Länge 32,x m
Hausgröße aktuell: Breite 8,09 - Länge 11,84 (Länge und Breite noch änderbar)
Ich zerreiße mir momentan den Kopf über das Erdgeschoss. Ich bin mir total unsicher wegen der Anordnung der Zimmer. Alles ist im Moment noch änderbar.
Das Wohnzimmer sollte relativ groß gegen Westen sein, die Küche muss auf jeden fall geschlossen sein, es soll eine Speisekammer vorhanden sein sowie ein Arbeitszimmer sowie ein Technikraum.
Wie diese nun angeordnet werden, kann noch völlig frei geplant werden. Was haltet ihr von diesem aktuellen Grundriss? Die Doppelgarage wird direkt an der Grenze gebaut, sodass unten noch ein etwa 3-4m großer Durchgang nach hinten in den Garten ist.
Im Südwest Bereich des Wohnzimmer befinden sich momentan zum Eck 2 feststehende Große Fenster für den Wintergartenersatz. Die obere Tür soll eine Terrassentür darstellen die nach hinten in den Garten führen soll.
Alle Türen wären auch als Schiebetür denkbar, wobei dies vielleicht eher nur für die Speisekammer denkbar wäre bzw. für den Eingang zum Wohnzimmer von Küche/Flur.
Der Vorteil an der Position der Speisekammer wäre, dass ich dort kein Fenster benötige da dort die Doppelgarage im weg ist.
Sobald ich annähernd das Erdgeschoss fertig habe, kann ich mich erst dem OG widmen, ansonsten macht mich alles komplett verrückt. Aber ich denke durch die Anordnung der Podesttreppe macht es oben etwas einfacher 4 Räume auf eine anständige größe zu verteilen.
Über weitere Tipps wäre ich sehr dankbar!!
Mfg Ravosch
über eure Hilfe bei meinem Fall wäre ich Euch sehr dankbar!
Grundstück: 605 m² Breite 18,7m - Länge 32,x m
Hausgröße aktuell: Breite 8,09 - Länge 11,84 (Länge und Breite noch änderbar)
Ich zerreiße mir momentan den Kopf über das Erdgeschoss. Ich bin mir total unsicher wegen der Anordnung der Zimmer. Alles ist im Moment noch änderbar.
Das Wohnzimmer sollte relativ groß gegen Westen sein, die Küche muss auf jeden fall geschlossen sein, es soll eine Speisekammer vorhanden sein sowie ein Arbeitszimmer sowie ein Technikraum.
Wie diese nun angeordnet werden, kann noch völlig frei geplant werden. Was haltet ihr von diesem aktuellen Grundriss? Die Doppelgarage wird direkt an der Grenze gebaut, sodass unten noch ein etwa 3-4m großer Durchgang nach hinten in den Garten ist.
Im Südwest Bereich des Wohnzimmer befinden sich momentan zum Eck 2 feststehende Große Fenster für den Wintergartenersatz. Die obere Tür soll eine Terrassentür darstellen die nach hinten in den Garten führen soll.
Alle Türen wären auch als Schiebetür denkbar, wobei dies vielleicht eher nur für die Speisekammer denkbar wäre bzw. für den Eingang zum Wohnzimmer von Küche/Flur.
Der Vorteil an der Position der Speisekammer wäre, dass ich dort kein Fenster benötige da dort die Doppelgarage im weg ist.
Sobald ich annähernd das Erdgeschoss fertig habe, kann ich mich erst dem OG widmen, ansonsten macht mich alles komplett verrückt. Aber ich denke durch die Anordnung der Podesttreppe macht es oben etwas einfacher 4 Räume auf eine anständige größe zu verteilen.
Über weitere Tipps wäre ich sehr dankbar!!
Mfg Ravosch
Verbesserungsbedürftig - natürlich.
Da sind viele Hinken drin, die eine Änderung unumgänglich machen.
Zum einen ist der Flur viel zu schmal und viel zu lang, Garderobe ist gar nicht integriert, ausserdem ist die Speis nicht zu gebrauchen mit einem Meter Breite.
Warum planst Du selbst, wenn Du Maße nicht mit gebräuchlichen Möbeln einschätzen kannst? Ein schlechtes (oder auch gutes) Programm macht aus einem Laien keinen Architekten.
Außerdem haben wir in dieser Rubrik einen angepinnten Beitrag, den Du bitte auch lesen und das Formular ausfüllen solltest.
Auch der Anhang wäre für dich interessant.
Bitte stell Deine Skizze als Jpg ein, damit auch andere darauf zugreifen können.
Danke und frohe Weihnachten.
Grüsse
Da sind viele Hinken drin, die eine Änderung unumgänglich machen.
Zum einen ist der Flur viel zu schmal und viel zu lang, Garderobe ist gar nicht integriert, ausserdem ist die Speis nicht zu gebrauchen mit einem Meter Breite.
Warum planst Du selbst, wenn Du Maße nicht mit gebräuchlichen Möbeln einschätzen kannst? Ein schlechtes (oder auch gutes) Programm macht aus einem Laien keinen Architekten.
Außerdem haben wir in dieser Rubrik einen angepinnten Beitrag, den Du bitte auch lesen und das Formular ausfüllen solltest.
Auch der Anhang wäre für dich interessant.
Bitte stell Deine Skizze als Jpg ein, damit auch andere darauf zugreifen können.
Danke und frohe Weihnachten.
Grüsse
Grym schrieb:
Um es kurz zu machen: Nein.
Etwas längere Version: Erst mal bitte Pappmaché-Wände durch echte Wände ersetzen (tragende Wände: 17,5 cm) und bitte alles bemaßen, nicht nur die Außenmauern außen.Dabei hat mich dieser Entwurf sehr stark an Dich und Deine ersten schlimmen Gehversuche mit genau diesem Programm denken lassen. So, dass ich mich gefragt habe, wo Du steckst... und schon bist Du da... Geister, die ich rief 😉 🙂
Schöne Weihnachten!
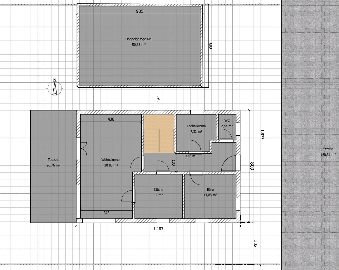
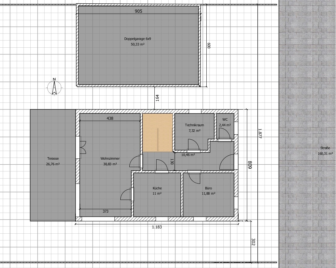
Hallo zusammen,
ich melde mich mal wieder weil ich etwas wieder rumprobiert habe.
Ich hoffe das funktioniert nun besser. Der Vorteil dass die Garage nun nicht am Haus ist:
Wir hätten einen 2. Durchgang in den Garten
Ich bin bei der Planung nicht komplett eingeschränkt da wir an der Nordseite Fenster einplanen können
Im Süden hätten wir immer noch 3 Meter Platz für den Durchgang nach hinten in den Garten (Möglichweise später mal ein Stellplatz => Dann wäre der Durchgang zwischen Garage und Haus vorteilhaft).
Bitte nagelt mich nicht auf die exakte Quadratmeterzahl genau fest, ob das Wohnzimmer 29 oder 32 qm nun hat, spielt für mich in der ersten Planung momentan noch nicht die riesen Rolle. Die Größe des Hauses, egal ob breite oder länge wäre ja wie bereits erwähnt noch änderbar
Mir fehlt noch eine Speisekammer, hätte irgendjemand eine Idee wo diese einen guten Platz hätte? Gerne verschiebe ich natürlich die Zimmer nochmal komplett.
Vielen Dank!!
Mfg Ravosch

ich melde mich mal wieder weil ich etwas wieder rumprobiert habe.
Ich hoffe das funktioniert nun besser. Der Vorteil dass die Garage nun nicht am Haus ist:
Wir hätten einen 2. Durchgang in den Garten
Ich bin bei der Planung nicht komplett eingeschränkt da wir an der Nordseite Fenster einplanen können
Im Süden hätten wir immer noch 3 Meter Platz für den Durchgang nach hinten in den Garten (Möglichweise später mal ein Stellplatz => Dann wäre der Durchgang zwischen Garage und Haus vorteilhaft).
Bitte nagelt mich nicht auf die exakte Quadratmeterzahl genau fest, ob das Wohnzimmer 29 oder 32 qm nun hat, spielt für mich in der ersten Planung momentan noch nicht die riesen Rolle. Die Größe des Hauses, egal ob breite oder länge wäre ja wie bereits erwähnt noch änderbar
Mir fehlt noch eine Speisekammer, hätte irgendjemand eine Idee wo diese einen guten Platz hätte? Gerne verschiebe ich natürlich die Zimmer nochmal komplett.
Vielen Dank!!
Mfg Ravosch
Ähnliche Themen