ᐅ Grundriss-Entwurf Stadtvilla mit Doppelgarage
Erstellt am: 05.11.16 14:55
Hallo liebe Forianer,
ich stell mal einen Entwurf einer Stadtvilla zur Diskussion zur Verfügung.
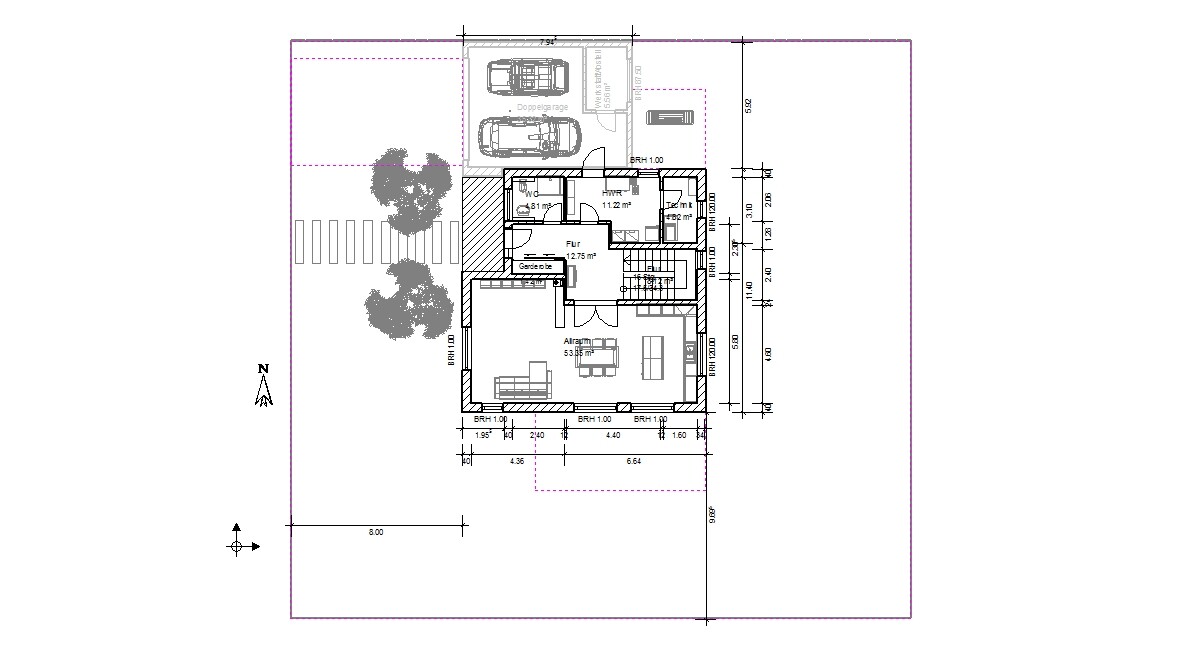
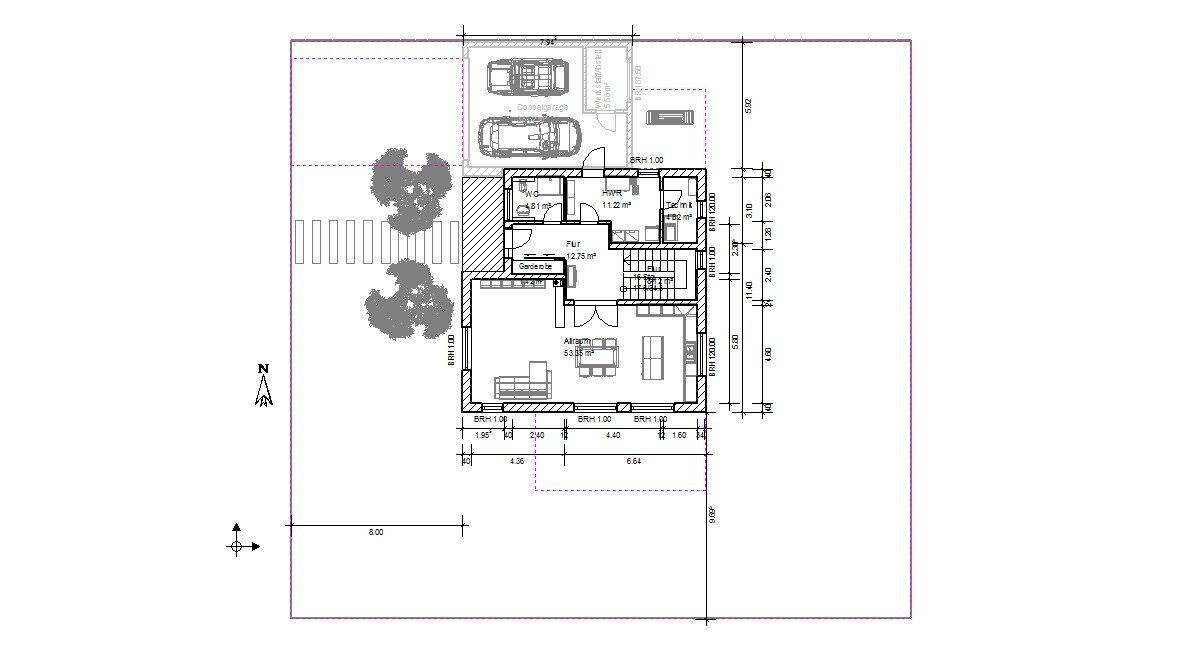
Fakten: planes Grundstück von 27 Meter Breite, 29 Meter Tiefe. Strasse im Westen, links und rechts, also im Norden und Süden Nachbarbebauung, im Osten schöner Ausblick auf Wiesen.
Bebauungsplan keine relevanten Einschränkungen.
Wunsch:
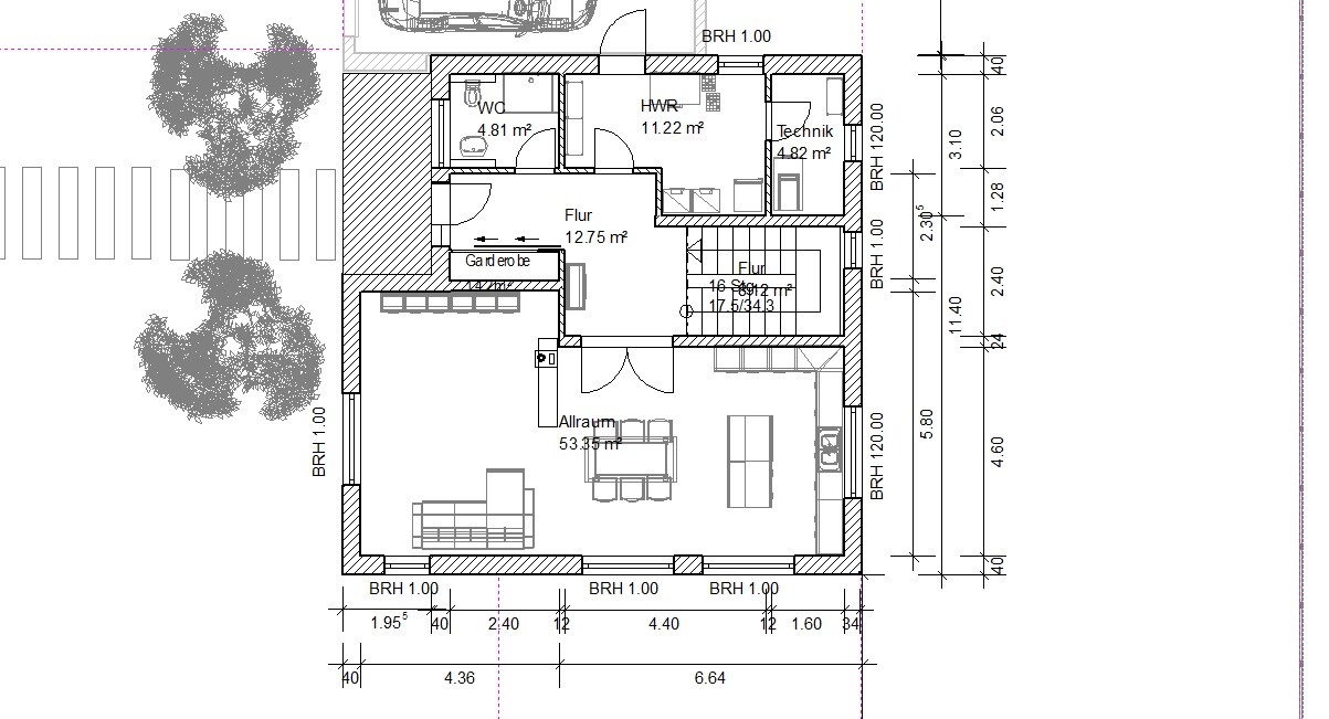
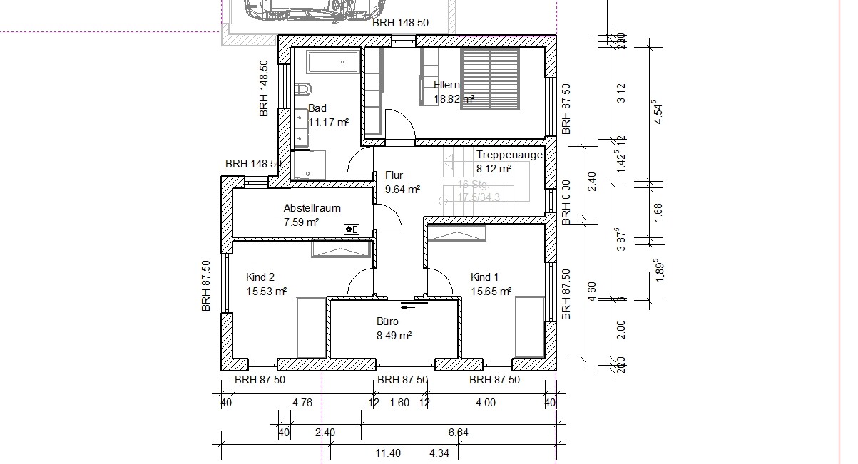
Stadtvilla, klassisch weisser Putz, anthrazitfarbenes Dach, klassischer Aufbau mit 3 Schlafräumen (2 Kinderzimmern) im OG, Ankleide, ein Bad für die Familie. Im EG Dusch-WC, gern auch ein privater Büroraum.
Eigentlich Keller, aber wegen Sparmaßnahmen gern Verzicht bei grossem Hauswirtschaftsraum mit viel (TK-Möglichkeit )
Podest-Treppe mit Fenster wurde im Osten favorisiert, aber durch die Zeit wieder verworfen. Offener Wohnbereich mit viel Licht...
Doppelgarage mit etwas Werkstattplatz und Durchgang Garage ins Haus.
Optimale Platzierung des Hauses mit Süd/West-Garten.
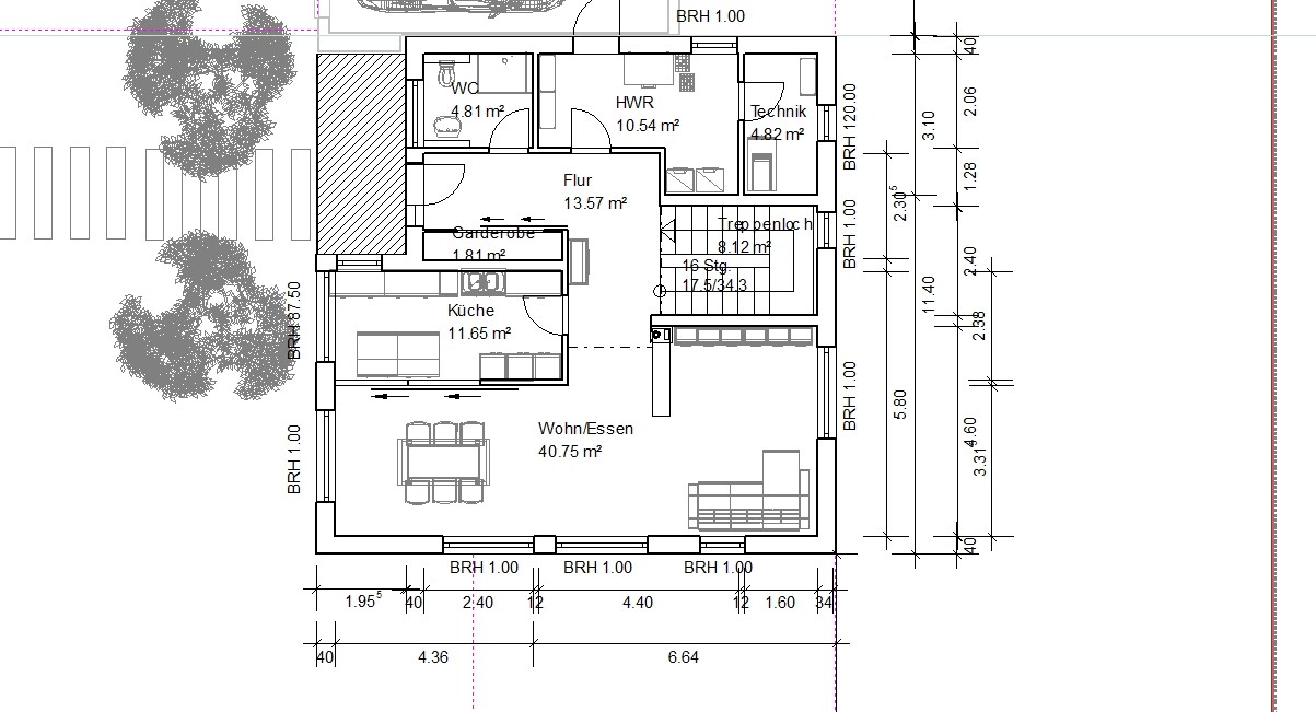
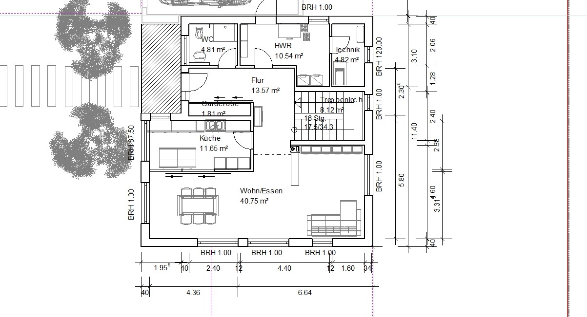
Ich habe jetzt zwei Varianten: einmal mit der Küche im Osten:

Edit: in der Ostansicht seht ihr noch zwei komische Treppenfenster. Diese bitte als ein Fensterband oder ähnliches vorstellen - mein Programm streikt hinsichtlich der EG-Decke und will dort kein durchgängiges Fenster setzen
ich stell mal einen Entwurf einer Stadtvilla zur Diskussion zur Verfügung.
Fakten: planes Grundstück von 27 Meter Breite, 29 Meter Tiefe. Strasse im Westen, links und rechts, also im Norden und Süden Nachbarbebauung, im Osten schöner Ausblick auf Wiesen.
Bebauungsplan keine relevanten Einschränkungen.
Wunsch:
Stadtvilla, klassisch weisser Putz, anthrazitfarbenes Dach, klassischer Aufbau mit 3 Schlafräumen (2 Kinderzimmern) im OG, Ankleide, ein Bad für die Familie. Im EG Dusch-WC, gern auch ein privater Büroraum.
Eigentlich Keller, aber wegen Sparmaßnahmen gern Verzicht bei grossem Hauswirtschaftsraum mit viel (TK-Möglichkeit )
Podest-Treppe mit Fenster wurde im Osten favorisiert, aber durch die Zeit wieder verworfen. Offener Wohnbereich mit viel Licht...
Doppelgarage mit etwas Werkstattplatz und Durchgang Garage ins Haus.
Optimale Platzierung des Hauses mit Süd/West-Garten.
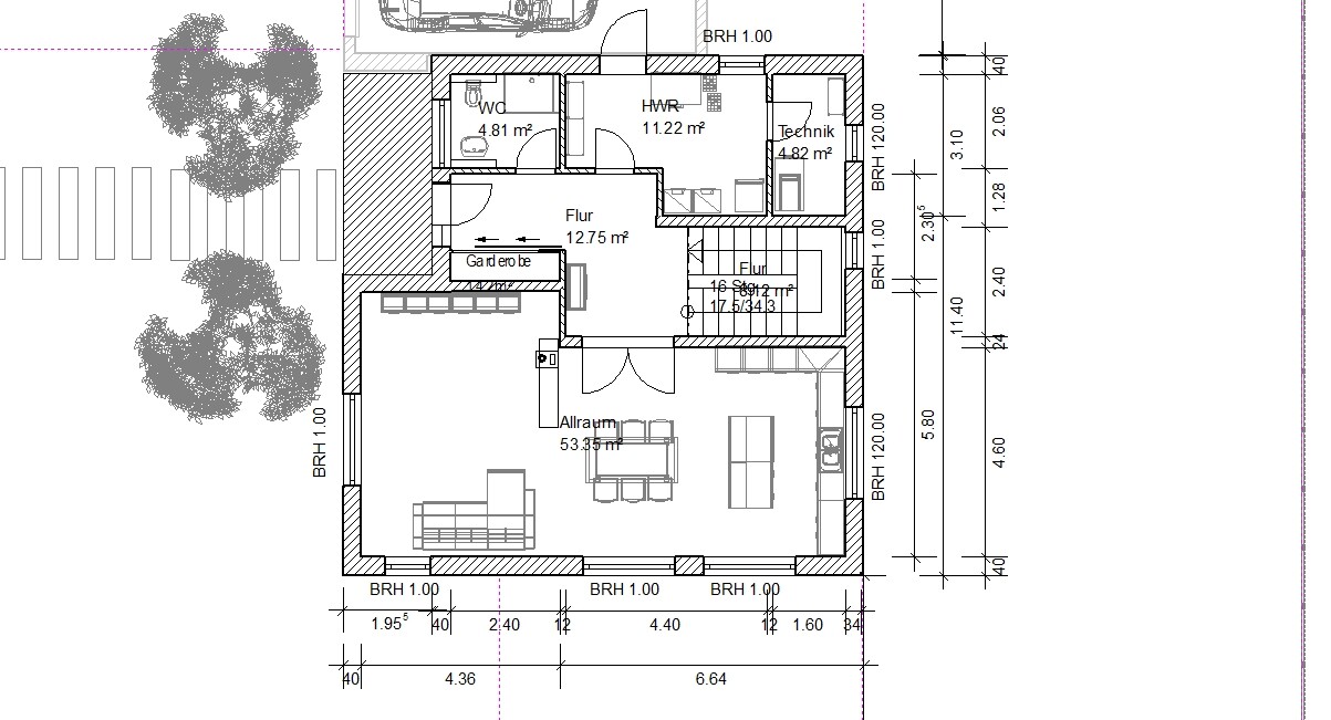
Ich habe jetzt zwei Varianten: einmal mit der Küche im Osten:
Edit: in der Ostansicht seht ihr noch zwei komische Treppenfenster. Diese bitte als ein Fensterband oder ähnliches vorstellen - mein Programm streikt hinsichtlich der EG-Decke und will dort kein durchgängiges Fenster setzen
...einmal nach vorne im Westen. Letztere Version mit teilgeschlossener Küche, dafür der Wohnbereich ohne Tür.

Die Maße können etwas verrutscht sein, aber das Wichtigste ist erkennbar.
Welche Variante findet Ihr besser?
Was könnte man ändern?
Büro war anfangs ein kleinerer Abstellraum, aber im Süden? so hab ich den Platz getauscht und das Büro im Süden etwas vergrößert, sodass die Kinderzimmers etwas gelitten haben. Schwerwiegend?
Die Optik im Süden durch die Fensterlage macht auch Kopfzerbrechen: oben kann man die Fenster nicht einfach überall hinschieben, Gleichmäßigkeit ist mir eh zuwider, finde Spannung durch Fensterladen besser...
Die Maße können etwas verrutscht sein, aber das Wichtigste ist erkennbar.
Welche Variante findet Ihr besser?
Was könnte man ändern?
Büro war anfangs ein kleinerer Abstellraum, aber im Süden? so hab ich den Platz getauscht und das Büro im Süden etwas vergrößert, sodass die Kinderzimmers etwas gelitten haben. Schwerwiegend?
Die Optik im Süden durch die Fensterlage macht auch Kopfzerbrechen: oben kann man die Fenster nicht einfach überall hinschieben, Gleichmäßigkeit ist mir eh zuwider, finde Spannung durch Fensterladen besser...
S
Sascha aus H05.11.16 15:59Ich frage mich, warum ihr das Haus nicht weiter nach hinten (also Richtung Osten) setzt. Der benutzte Bereich des Gartens ist doch zum größten Teil Süd/West und im Osten ist so viel Platz über, dafür der Westbereich aber recht eng.
Ähnliche Themen