W
Mein Konto
Hausbau - Ratgeber
Bauherrenhilfe
- Bauherrenhilfe vor Vertragsabschluss
-- Warum einen unabhängigen Baubetreuer?
-- Vertragsgrundlagen
-- Bausumme
-- Zahlungsplan zur Kostenkontrolle
-- Pflichten des Bauherren vor Vertragsabschluss
-- Unterlagen beim Hausbau vor Vertragsabschluss
- Bauherrenhilfe nach Vertragsabschluss
-- Bauantrag bei Behörden
-- Bau-Genehmigungsverfahren bei Baubehörden
-- Bauspezifische Versicherungen
-- Bauzeitenplan
-- Baubeginn - die Letzten Pflichten der Bauherrschaft
- Bauherrenhilfe während der Bauzeit
- Gewährleistungsansprüche
- Bauabnahme
Baufinanzierung
- Baufinanzierung - Allgemeine Fragen
- Kreditarten
- Kredit-Konditionen
- Bausparen
- Staatliche Förderungen
- Verkehrswert
- Haushaltsrechnung und Bonität
Hausbau Planung
- Haustypen
- Hausbau Vorbereitungsarbeiten
- Das Baugrundstück
- Baugrund beim Hausbau
- Baurecht
- Gebäudeschutz
- Erdarbeiten und Wasserhaltung
- Stützmauern
- Einfriedung
- Untergeschoss
- Kanalisation
- Tragende Elemente
- Nichttragende Innenwände
- Fundation / Fundament
- Deckenkonstruktionen
- Dächer
- Kaminanlagen
- Treppen Rampen Leitern
- Dachbeläge und Spengler
- Fenster
- Sonnen und Wetterschutz
- Aussenputze
- Einbauten, Küchen, Türen
- Bodenbeläge und Unterlagsböden
- Parkett
- Gips, Wand, Decke
Haustechnik und Energie
- Heiztechnik
- Lüftung und Klimatechnik
- Sanitärtechnik
- Elektrotechnik
- Erneuerbare Energie
Whirlpools / Jacuzzi
Hausbau Magazin
- Baufinanzierung trotz Krise?
- Das Blockhaus
- Moderne Dämmstoffe im Vergleich
- Erker Vor- und Nachteile
- Glasflächen beim Hausbau
- Günstig ein Haus Bauen
- Mediterraner Hausbaustil
- Mehrgenerationenhaus
- Moderne Architektur
- Gartengestaltung leicht gemacht
- Traditioneller Ziegelbau
- Villa als höchster Traum
- Im Eigenheim Ruhestand geniessen
- Altbau sanieren
- Kauf einer Holzgarage
- Immobilienmakler
- Arbeitshandschuhe für den Winter
- Zuhause verschönern
- Outdoor-Plissees
- Schlafzimmer planen
- Terrassenüberdachung
- Wohngebäudeversicherung
- Zaunarten und Eigenschaften
- Hauseingang gestalten
- Der perfekte Grundriss
- Sparsamer heizen im Altbau
- Einfamilienhaus smart finanzieren
- Planung einer PV-Anlage
- Neues Haus
- Immobilienfinanzierung
- Installation einer Photovoltaikanlage
- Asbest erkennen und entfernen
- Sauna im Fokus - Wellness zuhause
- Erfolgreich vermieten
- Die perfekte Winterbekleidung
- Das Niedrigenergiehaus
- Der April und seine Stürme
- Architektonische Vielfalt
- Ökologisch und nachhaltig bauen
- Das perfekte Schlafzimmer
- Nachhaltige Energieversorgung
- Zukunftsorientiert bauen
- Nachhaltigkeit beim Hausbau
- Tiny Houses
- Wärmepumpen als nachhaltige Heizvariante
- Maßgeschneiderten Kleiderschrank
- Der richtige Baukredit
- Ratgeber für erfolgreichen Hausbau
- Haus als Altersvorsorge
Do-it-yourself Anleitungen
- Verlegeanleitung für Bodenbeläge und Parkett
- Bodenbeläge und Parkett reinigen und pflegen
- Malerarbeiten am Haus
- Garten Tipps
- Umzug und Reinigung

ᐅ Grundriss Einfamilienhaus, Verbesserung


Erstellt am: 16.12.14 11:28

Sonnenblu16.12.14 11:28
Hallo zusammen,

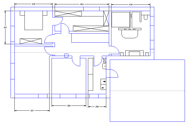
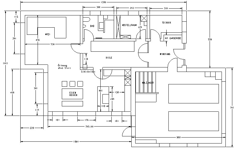
wir haben von unserem Planer einen Grundriss bekommen mit dem wir nicht ganz zufrieden waren. Jetzt hab ich ein bißchen selbst rumgezeichnet. Was sagt ihr dazu? Die Fenster sind noch nicht eingezeichnet bzw. von manchen nur die ungefähre Stelle.

LG
Sonnenblu

2D-Grundrissplan eines Hauses mit Küche, Wohnzimmer, Bad und Garage.


Grundriss eines Hauses mit Schlaf- und Ankleidezimmer, Küche, Bad mit Sauna und Speicher
Manu197616.12.14 11:45
Mann, das wird langweilig. Auch hier gibts nix zu meckern. Gefällt mir. Und Technik vom Hauswirtschaftsraum getrennt - sehr sehr gut.
Sonnenblu16.12.14 11:48
Also, jetzt noch ein paar Fakten :-)
Wir sind zwei Erwachsene und ein Kind. Es werden aber hoffentlich mal zwei. Wir möchten Küche und Essbereich in einem Raum haben, das Wohnzimmer aber abtrennbar. Unten möchten wir noch ein WC mit Dusche, eine Abstellraum und den Technikraum haben. Die Terrasse sollte von der Küche zugänglich sein und ein bißchen überdacht sein. Wir brauchen eine große Garage weil wir ohne Keller bauen. Die Garage sollte einen direkten Zugang zum Haus haben.
Im OG brauchen wir zwei Kinderzimmer, Schlafzimmer mit Ankleidezimmer (Mann ist Schichtarbeiter), ein Bad mit Sauna und einen Hauswirtschaftsraum. Der Speicher über der Garage sollten auch vom Haus zugänglich sein. Das Ankleidezimmer sollte im Fall der Fälle auch als Kinderzimmer nutzbar sein. Eigentlich sollten es nicht mehr als zwei Kinder werden, aber man weiß ja nie...
Sonnenblu16.12.14 11:57
Danke, Manu.
Aber wie bekommen wir Licht in die Diele im OG?
Bauexperte16.12.14 12:04
Hallo,
Sonnenblu schrieb:

Aber wie bekommen wir Licht in die Diele im OG?
Bei Sattel-, Walm- oder Zeltdachaufbau durch einen Tageslichtspot; bei Flachdach durch ein Doppelflügelfenster.

Das war jetzt einfach 😀

Grüße, Bauexperte
Jochen10416.12.14 12:07
Sonnenblu schrieb:
Danke, Manu.
Aber wie bekommen wir Licht in die Diele im OG?
Welche Dachform bekommt ihr den? Eventuell könnt ihr ein Dachfenster oder einen Lichtschacht einbauen
garagehauswirtschaftsraumküchekinderzimmerankleidezimmer