ᐅ Grundriss Einfamilienhaus - schmaler möglich? Erste Ideen
Erstellt am: 04.05.20 23:05
Hallo zusammen,
ich möchte ich heute meinen ersten Grundrissversuch (EG) mit euch teilen.
Das Objekt wird ein 1,5 geschossenes Einfamilienhaus mit Satteldach und das größte Problem für uns ist der Grundriss für das EG.
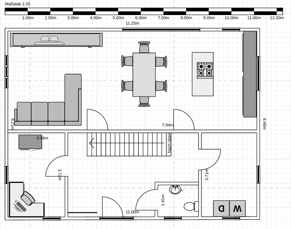
Anbei ist die halb bemaßte Skizze.
Vor dem Bildschirm ist es für mich relativ schwierig abzuschätzen, ob der Grundriss so alltagstauglich ist.
Folgende Anmerkungen vorab zum Grundriss:
- Die Türen zum Wohn- und Essbereich sollen Schiebetüren werden (Zum sofa hin ist die Treppe schon über 2 m Höhe)
- Die gerade Treppe im Flur soll ein Eyecatcher werden
- Das Sofa und die Wohnwand sind maßstabsgerecht
- Die Fenster sind nur Platzhalter
- Die Haustür soll spiegelverkehrt aufgehen, das konnte das Programm leider nicht
- Der Hauswirtschaftsraum ist 2,50 m breit
- Norden ist unten beim Eingang
Folgende Wünsche/Vorstellungen:
- Hebe-Schiebe-Tür ca. 3,50 m lang (idealerweise mittig - das wird aufgrund des Wohnbereichs allerdings nichts)
- Esstisch mit 2 m Länge
- Küche mit Insel
- Gäste-WC so klein wie möglich (oben sind zwei Bäder geplant)
- am liebsten hätte ich das Haus 1 m schmaler (7,45 statt 8,45)
Frage:
- ist genug Bewegungsfreiheit vorhanden?
- Kann das Haus ca. 1 m schmaler werden? Hier geht es uns vorrangig um Verkleinerung der Grundfläche und die Optik. Wir möchten das Haus gerne schmaler, scheitern aber an der Umsetzung aufgrund der Treppe.
- was würdet ihr ändern?
Teil 2 würde ich danach angehen und dann alles komplett mit ausgefülltem Fragebogen hochladen.

ich möchte ich heute meinen ersten Grundrissversuch (EG) mit euch teilen.
Das Objekt wird ein 1,5 geschossenes Einfamilienhaus mit Satteldach und das größte Problem für uns ist der Grundriss für das EG.
Anbei ist die halb bemaßte Skizze.
Vor dem Bildschirm ist es für mich relativ schwierig abzuschätzen, ob der Grundriss so alltagstauglich ist.
Folgende Anmerkungen vorab zum Grundriss:
- Die Türen zum Wohn- und Essbereich sollen Schiebetüren werden (Zum sofa hin ist die Treppe schon über 2 m Höhe)
- Die gerade Treppe im Flur soll ein Eyecatcher werden
- Das Sofa und die Wohnwand sind maßstabsgerecht
- Die Fenster sind nur Platzhalter
- Die Haustür soll spiegelverkehrt aufgehen, das konnte das Programm leider nicht
- Der Hauswirtschaftsraum ist 2,50 m breit
- Norden ist unten beim Eingang
Folgende Wünsche/Vorstellungen:
- Hebe-Schiebe-Tür ca. 3,50 m lang (idealerweise mittig - das wird aufgrund des Wohnbereichs allerdings nichts)
- Esstisch mit 2 m Länge
- Küche mit Insel
- Gäste-WC so klein wie möglich (oben sind zwei Bäder geplant)
- am liebsten hätte ich das Haus 1 m schmaler (7,45 statt 8,45)
Frage:
- ist genug Bewegungsfreiheit vorhanden?
- Kann das Haus ca. 1 m schmaler werden? Hier geht es uns vorrangig um Verkleinerung der Grundfläche und die Optik. Wir möchten das Haus gerne schmaler, scheitern aber an der Umsetzung aufgrund der Treppe.
- was würdet ihr ändern?
Teil 2 würde ich danach angehen und dann alles komplett mit ausgefülltem Fragebogen hochladen.
PyneBite schrieb:
ich möchte ich heute meinen ersten Grundrissversuch (EG) mit euch teilen.Eigentlich freut mich das, leider kann ich die Zeichnung jedoch nicht nachvollziehen. Fünf Kästchen sind wohl so ungefähr 1,07 m (?), was auch als englisches Maß keinen rechten Sinn macht. Die eingeschriebenen Maße dienen ebenfalls nicht der Aufklärung, sodaß weder Maßstab noch Maßangaben nützlich sind. Visuell bin ich mir dennoch sicher, daß Deine Wandstärken nicht tauglich sind - insofern wäre eine Änderung nun auch noch in Richtung Verkleinerung wohl abzulehnen. Warum sind es denn hier nach Deinem Planverständnis im Ergebnis 8,45 m und wo soll da noch ein ganzer einsparbarer Meter herkommen ?Wer abrutscht, darf noch mal, pflegte meine Großmutter selig zu sagen.
https://www.instagram.com/11antgmxde/
https://www.linkedin.com/company/bauen-jetzt/
11ant schrieb:
Eigentlich freut mich das, leider kann ich die Zeichnung jedoch nicht nachvollziehen. Fünf Kästchen sind wohl so ungefähr 1,07 m (?), was auch als englisches Maß keinen rechten Sinn macht. Die eingeschriebenen Maße dienen ebenfalls nicht der Aufklärung, sodaß weder Maßstab noch Maßangaben nützlich sind. Visuell bin ich mir dennoch sicher, daß Deine Wandstärken nicht tauglich sind - insofern wäre eine Änderung nun auch noch in Richtung Verkleinerung wohl abzulehnen. Warum sind es denn hier nach Deinem Planverständnis im Ergebnis 8,45 m und wo soll da noch ein ganzer einsparbarer Meter herkommen ?
Wer abrutscht, darf noch mal, pflegte meine Großmutter selig zu sagen.also der Maßstab ist oben doch berücksichtigt?
Die Außenwände passen leider tatsächlich nicht, weil das Programm keine dickeren hatte.
Stand jetzt müssten das 9m sein, ich wünsche mir aber nur 8 m. Länge 11,5m. Ich hab die Differenz für den Innenraum passend abgezogen. Leider etwas kompliziert gewesen.
PyneBite schrieb:
also der Maßstab ist oben doch berücksichtigt?Du hast einen Maßstab angelegt, der zu Deinen textlichen Angaben authentisch ist. Des Weiteren liegt unter der Zeichnung ein Gitter, von dem man naiv erwarten würde, fünf Kästchen je 20 cm würden einen Meter darstellen sollen. Aber drei Meter bilden sich parallel auf 14 Kästchen ab, da war meine erste Assoziation, Dein Zeichenprogramm arbeite mit englischen Maßen - aber auch da machten 1,07 m keinen Sinn. Dem Betrachter verhagelt das die hilfsweise Orientierung, wo Maße fehlen oder keinen Strecken zuordenbar sind.PyneBite schrieb:
Die Außenwände passen leider tatsächlich nicht, weil das Programm keine dickeren hatte.Welche Software hast Du denn hier zweckentfremdet ?https://www.instagram.com/11antgmxde/
https://www.linkedin.com/company/bauen-jetzt/
A
Alessandro05.05.20 08:43was wenn du die Treppe auf der anderen Seite der Wand (im EZ) platzierst und dir einen Durchgang sparst?
Dann könntest du den einen Meter eventuell im Eingangsbereich einsparen und hast genug Platz für eine anständige Garderobe.
Die Treppe würde auf die Distanz sowieso kaum wirken.
Wenn du schon eine Treppe als Hingucker machst, dann wollte ich die gerne im Wohn-/Essbereich sehen und nicht nur beim Reinkommen
Dann könntest du den einen Meter eventuell im Eingangsbereich einsparen und hast genug Platz für eine anständige Garderobe.
Die Treppe würde auf die Distanz sowieso kaum wirken.
Wenn du schon eine Treppe als Hingucker machst, dann wollte ich die gerne im Wohn-/Essbereich sehen und nicht nur beim Reinkommen
Ähnliche Themen