ᐅ Grundriss Einfamilienhaus Satteldach 1 Vollgeschoss 140qm
Erstellt am: 04.07.19 18:55
D
dumdidum!04.07.19 18:55Hallo miteinander.
Wir planen bereits seid längerer Zeit ein kuschliges Heim, nach dem abgeschlossenen Studium meiner Freundin soll es nun endlich losgehen.
Das Grundstück haben wir geschenkt bekommen und ist an sich toll (Abmaße 16x60m, Nord/Südausrichtung), leider aber etwas schmal. Da es eine Lückenbebauung ist und links und rechts Riesenklopper stehen, haben wir uns entschieden, die Fensterflächen eher nach vorn und hinten auszurichten, um nicht nur auf Beton zu schauen und die tolle Südlage genießen zu können.
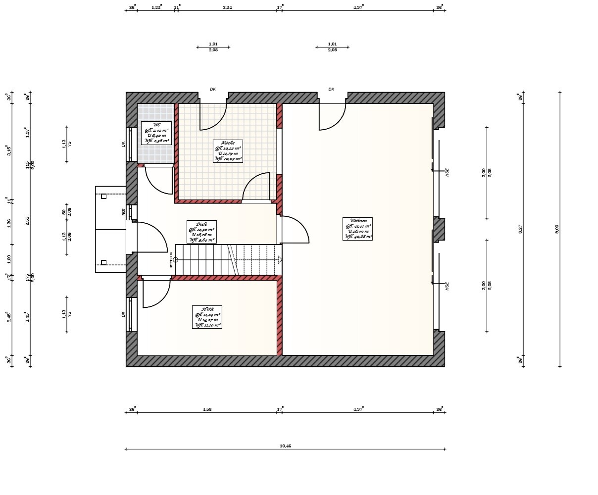
Ideal wäre für diese Voraussetzungen eine Stadtvilla, leider ist im Bebauungsplan nur 1geschossige Bauweise vorgeschrieben. Wir werden nun einen 1 1/2 Geschosser quer zur Straße "reindrehen", mit einem Eingang an der Giebelseite.
Wir waren nun bei ein paar Baufirmen und haben uns mal ein paar Entwürfe zeichnen lassen, so richtig 100% zufrieden sind wir aber noch nicht.
Bebauungsplan/Einschränkungen
Größe des Grundstücks = 1060qm
Hang = Nein
Baufenster, Baulinie und -grenze = 3m von der Grenze
Randbebauung = Nein
Anzahl Stellplatz = 2
Geschossigkeit = 1 Vollgeschoss
Dachform = egal
Stilrichtung = normal 1 1/2 Geschosser
Anforderungen der Bauherren
Stilrichtung, Dachform, Gebäudetyp = Satteldach
Keller, Geschosse = Keller Nein; 1 Vollgeschoss
Anzahl der Personen, Alter = 2 + in Zukunft 1 Kind, um die 30
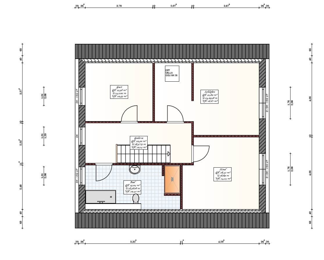
Ankleidezimmer = JA
Treppenform = Gerade
Büro: Familiennutzung oder Homeoffice? = Nein
Schlafgäste pro Jahr = Gästezimmer erwünscht
offene Küche, Kochinsel = offen
Anzahl Essplätze = 8
Kamin = Nein
Musik/Stereowand = Ja
Balkon, Dachterrasse = Nein
Garage, Carport = Carport
Nutzgarten, Treibhaus = Nutzgarten
Hausentwurf
Von wem stammt die Planung:
-Planer eines Bauunternehmens = Grundentwurf nach unseren Vorstellungen
Persönliches Preislimit fürs Haus, inkl Ausstattung: = 300000Euro
favorisierte Heiztechnik: = Gas/Brennwert
Grundsätzlich unterscheiden sich beide Varianten in der Frage der Lage des Gästebads im EG, sowie der Zugang des Bades im OG.
Wichtig sind für uns die gerade verlaufende Treppe und eine Ankleide im OG
Ich würde gerne mal eure Meinungen dazu hören, was mehr Sinn ergibt oder was ihr ansprechender findet.




Wir planen bereits seid längerer Zeit ein kuschliges Heim, nach dem abgeschlossenen Studium meiner Freundin soll es nun endlich losgehen.
Das Grundstück haben wir geschenkt bekommen und ist an sich toll (Abmaße 16x60m, Nord/Südausrichtung), leider aber etwas schmal. Da es eine Lückenbebauung ist und links und rechts Riesenklopper stehen, haben wir uns entschieden, die Fensterflächen eher nach vorn und hinten auszurichten, um nicht nur auf Beton zu schauen und die tolle Südlage genießen zu können.
Ideal wäre für diese Voraussetzungen eine Stadtvilla, leider ist im Bebauungsplan nur 1geschossige Bauweise vorgeschrieben. Wir werden nun einen 1 1/2 Geschosser quer zur Straße "reindrehen", mit einem Eingang an der Giebelseite.
Wir waren nun bei ein paar Baufirmen und haben uns mal ein paar Entwürfe zeichnen lassen, so richtig 100% zufrieden sind wir aber noch nicht.
Bebauungsplan/Einschränkungen
Größe des Grundstücks = 1060qm
Hang = Nein
Baufenster, Baulinie und -grenze = 3m von der Grenze
Randbebauung = Nein
Anzahl Stellplatz = 2
Geschossigkeit = 1 Vollgeschoss
Dachform = egal
Stilrichtung = normal 1 1/2 Geschosser
Anforderungen der Bauherren
Stilrichtung, Dachform, Gebäudetyp = Satteldach
Keller, Geschosse = Keller Nein; 1 Vollgeschoss
Anzahl der Personen, Alter = 2 + in Zukunft 1 Kind, um die 30
Ankleidezimmer = JA
Treppenform = Gerade
Büro: Familiennutzung oder Homeoffice? = Nein
Schlafgäste pro Jahr = Gästezimmer erwünscht
offene Küche, Kochinsel = offen
Anzahl Essplätze = 8
Kamin = Nein
Musik/Stereowand = Ja
Balkon, Dachterrasse = Nein
Garage, Carport = Carport
Nutzgarten, Treibhaus = Nutzgarten
Hausentwurf
Von wem stammt die Planung:
-Planer eines Bauunternehmens = Grundentwurf nach unseren Vorstellungen
Persönliches Preislimit fürs Haus, inkl Ausstattung: = 300000Euro
favorisierte Heiztechnik: = Gas/Brennwert
Grundsätzlich unterscheiden sich beide Varianten in der Frage der Lage des Gästebads im EG, sowie der Zugang des Bades im OG.
Wichtig sind für uns die gerade verlaufende Treppe und eine Ankleide im OG
Ich würde gerne mal eure Meinungen dazu hören, was mehr Sinn ergibt oder was ihr ansprechender findet.
dumdidum! schrieb:
links und rechts Riesenklopperdumdidum! schrieb:
Bebauungsplan nur 1geschossige Bauweise??? Das ist doch ein Widerspruch! Oder was sind für Dich Riesenklopper?Ich sehe in der Zeichnung einen 2-Geschosser ops:
D
dumdidum!04.07.19 20:18Es sind gut 30 Jahre alte Häuser mit Unterkellerung, der aber nur in zur Hälfte im Boden eingelassen ist. Dadurch sind die Häuser auch ziemlich hoch. Grundmass ca. 15x10m. Das sind schon ziemliche Brocken.
Ich meinte 1 Vollgeschoss. Also erlaubt sind nur 1 1/2 Geschosser lt. Bebauungsplan!
Ich meinte 1 Vollgeschoss. Also erlaubt sind nur 1 1/2 Geschosser lt. Bebauungsplan!
N
NatureSys04.07.19 20:50So wie das Obergeschoss aktuell geplant ist, müsste es sich dabei auch um ein Vollgeschoss handeln.
N
NatureSys04.07.19 20:58Wenn planrechts Süden ist, dann wird es abends im Wohn- und Essbereich ziemlich dunkel.
Es empfiehlt sich auf jeden Fall dort irgendwo ein Fenster nach Westen vorzusehen.
Es empfiehlt sich auf jeden Fall dort irgendwo ein Fenster nach Westen vorzusehen.
ypg schrieb:
Ich sehe in der Zeichnung einen 2-Geschdumdidum! schrieb:
Ich meinte 1 Vollgeschoss. Also erlaubt sind nur 1 1/2 Geschosser lt. BebauungsplanStell doch mal bitte den Lageplan bzw Zeichnung vom Grundstück ein
Ähnliche Themen