Hausbau - Ratgeber
Bauherrenhilfe
- Bauherrenhilfe vor Vertragsabschluss
-- Warum einen unabhängigen Baubetreuer?
-- Vertragsgrundlagen
-- Bausumme
-- Zahlungsplan zur Kostenkontrolle
-- Pflichten des Bauherren vor Vertragsabschluss
-- Unterlagen beim Hausbau vor Vertragsabschluss
- Bauherrenhilfe nach Vertragsabschluss
-- Bauantrag bei Behörden
-- Bau-Genehmigungsverfahren bei Baubehörden
-- Bauspezifische Versicherungen
-- Bauzeitenplan
-- Baubeginn - die Letzten Pflichten der Bauherrschaft
- Bauherrenhilfe während der Bauzeit
- Gewährleistungsansprüche
- Bauabnahme
Baufinanzierung
- Baufinanzierung - Allgemeine Fragen
- Kreditarten
- Kredit-Konditionen
- Bausparen
- Staatliche Förderungen
- Verkehrswert
- Haushaltsrechnung und Bonität
Hausbau Planung
- Haustypen
- Hausbau Vorbereitungsarbeiten
- Das Baugrundstück
- Baugrund beim Hausbau
- Baurecht
- Gebäudeschutz
- Erdarbeiten und Wasserhaltung
- Stützmauern
- Einfriedung
- Untergeschoss
- Kanalisation
- Tragende Elemente
- Nichttragende Innenwände
- Fundation / Fundament
- Deckenkonstruktionen
- Dächer
- Kaminanlagen
- Treppen Rampen Leitern
- Dachbeläge und Spengler
- Fenster
- Sonnen und Wetterschutz
- Aussenputze
- Einbauten, Küchen, Türen
- Bodenbeläge und Unterlagsböden
- Parkett
- Gips, Wand, Decke
Haustechnik und Energie
- Heiztechnik
- Lüftung und Klimatechnik
- Sanitärtechnik
- Elektrotechnik
- Erneuerbare Energie
Whirlpools / Jacuzzi
Hausbau Magazin
- Baufinanzierung trotz Krise?
- Das Blockhaus
- Moderne Dämmstoffe im Vergleich
- Erker Vor- und Nachteile
- Glasflächen beim Hausbau
- Günstig ein Haus Bauen
- Mediterraner Hausbaustil
- Mehrgenerationenhaus
- Moderne Architektur
- Gartengestaltung leicht gemacht
- Traditioneller Ziegelbau
- Villa als höchster Traum
- Im Eigenheim Ruhestand geniessen
- Altbau sanieren
- Kauf einer Holzgarage
- Immobilienmakler
- Arbeitshandschuhe für den Winter
- Zuhause verschönern
- Outdoor-Plissees
- Schlafzimmer planen
- Terrassenüberdachung
- Wohngebäudeversicherung
- Zaunarten und Eigenschaften
- Hauseingang gestalten
- Der perfekte Grundriss
- Sparsamer heizen im Altbau
- Einfamilienhaus smart finanzieren
- Planung einer PV-Anlage
- Neues Haus
- Immobilienfinanzierung
- Installation einer Photovoltaikanlage
- Asbest erkennen und entfernen
- Gartenpflege im Frühling – worauf achten
- Sauna im Fokus - Wellness zuhause
- Erfolgreich vermieten
- Die perfekte Winterbekleidung
- Das Niedrigenergiehaus
- Der April und seine Stürme
- Architektonische Vielfalt
- Ökologisch und nachhaltig bauen
- Das perfekte Schlafzimmer
- Nachhaltige Energieversorgung
- Zukunftsorientiert bauen
- Nachhaltigkeit beim Hausbau
- Tiny Houses
- Wärmepumpen als nachhaltige Heizvariante
- Maßgeschneiderten Kleiderschrank
- Der richtige Baukredit
- Ratgeber für erfolgreichen Hausbau
- Haus als Altersvorsorge
Do-it-yourself Anleitungen
- Verlegeanleitung für Bodenbeläge und Parkett
- Bodenbeläge und Parkett reinigen und pflegen
- Malerarbeiten am Haus
- Garten Tipps
- Umzug und Reinigung

ᐅ Grundriss Einfamilienhaus mit Keller - Eure Meinungen bitte

Erstellt am: 09.01.14 21:16
A
Atti
A
Atti
09.01.14 21:16
Hallo,
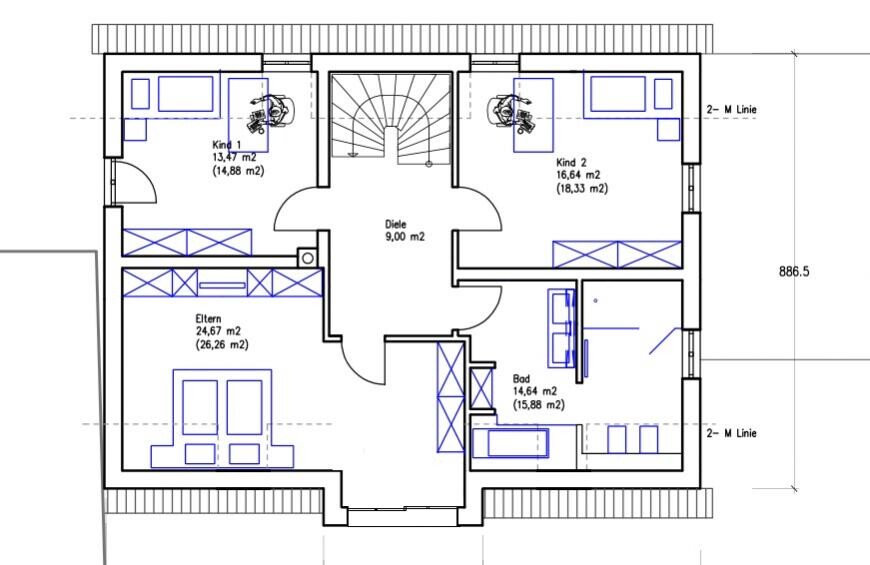
die Graphik zum Dachgeschoss lässt sich nicht laden. Hier noch mal:


2D-Grundriss eines Hauses mit Schlafzimmern, Bad, Diele und Treppen
A
Atti
11.01.14 16:17
Hallo,

hat niemand eine Meinung zu unserem Grundriss???? 😕
M
Mycraft
11.01.14 16:23
Hmm also mir als Laien fallen die Unterschiedlichen Kinderzimmergrössen auf...das könnte später zu Streit führen...
W
Wanderdüne
11.01.14 21:26
Leider kann ich mir die Situation auf dem Grundstück nicht so ganz vorstellen. Wäre es möglich, das Gebäude weiter nach Norden zu verschieben, um mehr Garten im Süden zu haben?

Ansonsten ist der Eingang interessant, aber nicht wirklich praktisch. Zwei getrennte Treppen sind zwar sehr angenehm, aber hier ist die Garderobe zu klein, wo soll man Schuhe verstauen, sich mal hinsetzen und Kleidung für 4 Personen verstauen? Außerdem verdeckt die Garderobe die Treppe was etwas unschön aussieht.

Die Küche als reiner Zweizeiler wäre besser nutzbar, die Fresswarze macht keinen Sinn, der Essbereich ist durch die Schiebetür nicht sehr gemütlich, und das Wohnzimmer ist eher etwas für Leute, die nicht gerne Fernsehen.

Insgesamt ist die Ausrichtung der Räume fraglich. Es wäre vielleicht besser, wenn das Wohnzimmer weitgehend nach planunten verschoben würde, Außenwand bündig mit Nachbargebäude, damit ein langer Ausblick in den Garten nach Süden ermöglicht wird.

Das OG ist erklärungsbedürftig. Was soll im Schlafzimmer passieren, daß es so aussieht, wie es ist. Warum liegt das Bad da wo es liegt, das Kinderzimmer 1 im Norden, und wieso so ein Slalom im Bad, und kleine Fenster?

WD
B
bau-bau
16.01.14 19:04
Was ist eine Fresswarze? 😕

Meine Ideen hierzu in Kurzfassung, auf Anfrage werde ich gern ausführlicher ;-)

1.) Wie sieht der Keller aus? Ich frage wegen Abstellmöglichkeiten.

2.) Ggf. geschlossene Treppe zum OG und dann darin eine kleine Garderobe für Schuhe/Jacke, die man oft, aber nicht täglich anzieht.

3.) Warum Tresen in Küche, wenn Esstisch gleich nebenan ist?

4.) Bedeutet "Raff", dass ihr zur Südseite innen Raffrollos anbringen wollt, statt Außenjalousien?

5.) Wie erfolgt Beschattung des großen Südfensters im Schlafzimmer?

6.) Bad wird zu dunkel: Bei den Waschbecken wird kein Licht ankommen. Ich würde dort ein Dachfenster mit Außenjalousie anbringen.
Vielleicht Dachgaube? Habt ihr eigentlich auch Pläne Außenansicht Südseite?

7.) Flur oben wird sehr dunkel, da alle 4 Türen geschlossen sind.
Das Fenster von unten wird nicht reichen.
Da auch das Schlafzimmer sehr groß ist (unfair den Kindern gegenüber, die viel mehr Zeit in ihren Zimmern verbringen), warum macht ihr das Schlafzimmer nicht kleiner (quadratisch), dafür oben offene Leseecke, 2 Gauben für Bad und Schlafzimmer und zudem Richtung Richtung Bad und Schlafzimmer oben an der Wand zur Leseecke hin auch hoher Höhe Lichtschächte? Verstehst Du mich? 😀
B
Bauexperte
16.01.14 20:59
Noch mal guten Abend,
bau-bau schrieb:

... auf Anfrage werde ich gern ausführlicher ;-)
???

Grüße, Bauexperte
schlafzimmergarderobegartentreppeküchefresswarzewohnzimmerfensterleseecke