Guten Abend,
nachdem ich länger mitlese möchte ich jetzt endlich selber einen Thread erstellen und unseren aktuellen Grundriss zur Diskussion stellen, angefangen mit den Daten:
Bebauungsplan/Einschränkungen:
Größe des Grundstücks: 961 m²
Hang: ja, ca. 3 m auf die über 40 m nach Süden abfallend
Baufenster, Baulinie, -grenze, Ausrichtung: s. Abb.
Anzahl Stellplatz: 2
Geschossigkeit: 1,5
Dachform: Satteldach
Anforderungen der Bauherren:
Stilrichtung, Dachform, Gebäudetyp: klassisches Einfamilienhaus mit Satteldach
Keller, Geschosse: Keller, 1,5 Geschosse
Anzahl der Personen, Alter: zwei Erwachsene (je 34 Jahre), zwei Kinder (0,7 + 3 Jahre)
Raumbedarf im EG: Küche-/Essen, Wohnzimmer, Gäste-WC, Büro OG: Schlafzimmer, 2 Kinderzimmer + Bad
Büro: überwiegend Familiennutzung
Schlafgäste pro Jahr: zu vernachlässigen
offene oder geschlossene Architektur: offene Architektur Wohnbereich, geschlossener Flur
konservativ oder moderne Bauweise: konservativ
offene Küche, Kochinsel: offene Küche ohne Insel
Anzahl Essplätze: 4
Kamin: ja
Musik/Stereowand: nein
Balkon, Dachterrasse: nein
Garage, Carport: Garage, siehe Entwurf
Nutzgarten, Treibhaus: werden wir später sicher anlegen
weitere Wünsche/Besonderheiten/Tagesablauf, gern auch Begründungen, warum dieses oder das nicht sein soll:
Wichtig wäre uns eine Speise die von der Küche aus zu erreichen ist sowie ein kleiner Hauswirtschaftsraum im Bad bzw daran angrenzend, um die Wäsche dort zu waschen wo sie auch anfällt.
weitere Wünsche: Zugangsmöglichkeit über die Garage sowie ein ebenerdiger Eingang in den Keller,
daneben ein Kamin sowie ein funktionales Büro im EG
Hausentwurf:
Von wem stammt die Planung: Planer eines Bauunternehmens
Was gefällt besonders? Warum?
- Küche/Speise, Zugang Garage, "faire" Raumaufteilung OG, Kellerzugang
Was gefällt nicht? Warum?
- Verhältnis Büro/Wohnzimmerbereich, Treppe, Badplanung
Preisschätzung lt Architekt/Planer: ca. 350000 mit Keller und Garage, mittlerer Ausbaustandard
Persönliches Preislimit fürs Haus, inkl Ausstattung: hätten wir ziemlich erreicht
favorisierte Heiztechnik: Gas + Solar + Kamin (wassergeführt)
Wenn Ihr verzichten müsst, auf welche Details/Ausbauten:
Ein Büro könnte man notfalls (wie aktuell beispielhaft im Entwurf dargestellt) auch im Keller einrichten.
Warum ist der Entwurf so geworden, wie er jetzt ist? ZB
Anhand einer groben Skizze und den Wünschen unsererseits.
Was macht ihn in Euren Augen besonders gut oder schlecht?
Es wird durchaus versucht alle Wünsche unter einen Hut zu bringen, jedoch haben wir das Gefühl, dass die ganze Sache noch nicht stimmig ist.
Was ist die wichtigste/grundlegende Frage zum Grundriss in 130 Zeichen zusammengefasst?
Auf uns wirkt der Wohnzimmerbereich zu klein, dafür könnte man beim Büro gern noch etwas abzwicken. Hauptproblem: Die Treppe und damit der Zugang sind im Weg.
Zur Geschichte:
Wir haben vor gut zwei Monaten unseren ersten Planungsentwurf bekommen, der an und für sich einen vielversprechenden Ansatz darstellte. Aktuell, nach zwei Änderungen, haben wir aber irgendwie das Gefühl man dreht sich etwas im Kreis. Den Grundriss von 8,5 x 10,5 auf 9 x 11 Metern zu erhöhen und damit mehr Spielraum bei der Raumplanung zu haben, hat im EG nicht wirklich gezündet. Das Büro fällt zwar nun noch größer aus, aber der Wohnzimmerbereich gefällt uns nach wie vor nicht hundertprozentig. Hier hätten wir gern etwas mehr Raum gewonnen, so dass dieser quasi ums Eck beim Kamin in die Tiefe geht - zumal die Schiebetür in Richtung Küche gestrichen wurde. Die Treppe doch wieder anders platzieren und dafür auch wieder offener halten oder einen Zugangsweg übers Wohnzimmer wählen? Das große Büro bietet zwar den Vorteil notfalls als weiteres (Kinder)Zimmer herhalten zu können. Aber da die Planung egtl. abgeschlossenen ist, würde hier auch deutlich weniger reichen.
Im Obergeschoss sind die Räume jetzt sicher großzügig genug. Allerdings stellt sich jetzt im Bad die Frage, ob der Zugangsweg mit einer weiteren Tür so sinnvoll gelöst wurde. Im allerersten Entwurf war der kleine Hauswirtschaftsraum komplett separat, im zweiten wurde er aus Platzgründen dagegen entfernt. In jedem Fall favorisieren wir eine "T-Lösung" von Toilette/Dusche/Waschbecken, so dass man auch hier noch mal eingreifen muss.
Von Außen kann ich leider nur den letzten Entwurf präsentieren. In Bezug auf den Keller würde ich gerne noch den Zugang (geschützt) unter die Terrasse verlagern.
Soviel zur aktuellen Situation. Ich habe die beiden Entwürfe fürs EG/OG jeweils im Vergleich hochgeladen.
Wären für Ratschläge, Vorschläge und natürlich auch Kritik sehr offen. Aktuell fragen wir uns, ob wir einfach viel zu viel in ein Haus dieser Größenordnung reinpacken wollen und sehen irgendwie den Wald vor lauter Bäumen nicht mehr. Darum wäre eine objektive Betrachtung von außen sehr willkommen.





nachdem ich länger mitlese möchte ich jetzt endlich selber einen Thread erstellen und unseren aktuellen Grundriss zur Diskussion stellen, angefangen mit den Daten:
Bebauungsplan/Einschränkungen:
Größe des Grundstücks: 961 m²
Hang: ja, ca. 3 m auf die über 40 m nach Süden abfallend
Baufenster, Baulinie, -grenze, Ausrichtung: s. Abb.
Anzahl Stellplatz: 2
Geschossigkeit: 1,5
Dachform: Satteldach
Anforderungen der Bauherren:
Stilrichtung, Dachform, Gebäudetyp: klassisches Einfamilienhaus mit Satteldach
Keller, Geschosse: Keller, 1,5 Geschosse
Anzahl der Personen, Alter: zwei Erwachsene (je 34 Jahre), zwei Kinder (0,7 + 3 Jahre)
Raumbedarf im EG: Küche-/Essen, Wohnzimmer, Gäste-WC, Büro OG: Schlafzimmer, 2 Kinderzimmer + Bad
Büro: überwiegend Familiennutzung
Schlafgäste pro Jahr: zu vernachlässigen
offene oder geschlossene Architektur: offene Architektur Wohnbereich, geschlossener Flur
konservativ oder moderne Bauweise: konservativ
offene Küche, Kochinsel: offene Küche ohne Insel
Anzahl Essplätze: 4
Kamin: ja
Musik/Stereowand: nein
Balkon, Dachterrasse: nein
Garage, Carport: Garage, siehe Entwurf
Nutzgarten, Treibhaus: werden wir später sicher anlegen
weitere Wünsche/Besonderheiten/Tagesablauf, gern auch Begründungen, warum dieses oder das nicht sein soll:
Wichtig wäre uns eine Speise die von der Küche aus zu erreichen ist sowie ein kleiner Hauswirtschaftsraum im Bad bzw daran angrenzend, um die Wäsche dort zu waschen wo sie auch anfällt.
weitere Wünsche: Zugangsmöglichkeit über die Garage sowie ein ebenerdiger Eingang in den Keller,
daneben ein Kamin sowie ein funktionales Büro im EG
Hausentwurf:
Von wem stammt die Planung: Planer eines Bauunternehmens
Was gefällt besonders? Warum?
- Küche/Speise, Zugang Garage, "faire" Raumaufteilung OG, Kellerzugang
Was gefällt nicht? Warum?
- Verhältnis Büro/Wohnzimmerbereich, Treppe, Badplanung
Preisschätzung lt Architekt/Planer: ca. 350000 mit Keller und Garage, mittlerer Ausbaustandard
Persönliches Preislimit fürs Haus, inkl Ausstattung: hätten wir ziemlich erreicht
favorisierte Heiztechnik: Gas + Solar + Kamin (wassergeführt)
Wenn Ihr verzichten müsst, auf welche Details/Ausbauten:
Ein Büro könnte man notfalls (wie aktuell beispielhaft im Entwurf dargestellt) auch im Keller einrichten.
Warum ist der Entwurf so geworden, wie er jetzt ist? ZB
Anhand einer groben Skizze und den Wünschen unsererseits.
Was macht ihn in Euren Augen besonders gut oder schlecht?
Es wird durchaus versucht alle Wünsche unter einen Hut zu bringen, jedoch haben wir das Gefühl, dass die ganze Sache noch nicht stimmig ist.
Was ist die wichtigste/grundlegende Frage zum Grundriss in 130 Zeichen zusammengefasst?
Auf uns wirkt der Wohnzimmerbereich zu klein, dafür könnte man beim Büro gern noch etwas abzwicken. Hauptproblem: Die Treppe und damit der Zugang sind im Weg.
Zur Geschichte:
Wir haben vor gut zwei Monaten unseren ersten Planungsentwurf bekommen, der an und für sich einen vielversprechenden Ansatz darstellte. Aktuell, nach zwei Änderungen, haben wir aber irgendwie das Gefühl man dreht sich etwas im Kreis. Den Grundriss von 8,5 x 10,5 auf 9 x 11 Metern zu erhöhen und damit mehr Spielraum bei der Raumplanung zu haben, hat im EG nicht wirklich gezündet. Das Büro fällt zwar nun noch größer aus, aber der Wohnzimmerbereich gefällt uns nach wie vor nicht hundertprozentig. Hier hätten wir gern etwas mehr Raum gewonnen, so dass dieser quasi ums Eck beim Kamin in die Tiefe geht - zumal die Schiebetür in Richtung Küche gestrichen wurde. Die Treppe doch wieder anders platzieren und dafür auch wieder offener halten oder einen Zugangsweg übers Wohnzimmer wählen? Das große Büro bietet zwar den Vorteil notfalls als weiteres (Kinder)Zimmer herhalten zu können. Aber da die Planung egtl. abgeschlossenen ist, würde hier auch deutlich weniger reichen.
Im Obergeschoss sind die Räume jetzt sicher großzügig genug. Allerdings stellt sich jetzt im Bad die Frage, ob der Zugangsweg mit einer weiteren Tür so sinnvoll gelöst wurde. Im allerersten Entwurf war der kleine Hauswirtschaftsraum komplett separat, im zweiten wurde er aus Platzgründen dagegen entfernt. In jedem Fall favorisieren wir eine "T-Lösung" von Toilette/Dusche/Waschbecken, so dass man auch hier noch mal eingreifen muss.
Von Außen kann ich leider nur den letzten Entwurf präsentieren. In Bezug auf den Keller würde ich gerne noch den Zugang (geschützt) unter die Terrasse verlagern.
Soviel zur aktuellen Situation. Ich habe die beiden Entwürfe fürs EG/OG jeweils im Vergleich hochgeladen.
Wären für Ratschläge, Vorschläge und natürlich auch Kritik sehr offen. Aktuell fragen wir uns, ob wir einfach viel zu viel in ein Haus dieser Größenordnung reinpacken wollen und sehen irgendwie den Wald vor lauter Bäumen nicht mehr. Darum wäre eine objektive Betrachtung von außen sehr willkommen.
Denn Esstisch würde ich vorne direkt neben der Arbeitsfläche der Küche lassen und die Terrassentür evtl. noch etwas nach links verschieben. Wird dann davon abhängen welche Kaminofenform sich am besten anbietet und wie weit wir da in den Raum kommen. Müssen wir wie gesagt noch mal mit dem Küchenplaner besprechen, um zu sehen wie wir dann hinkommen.
Der Kniestock im OG sollte kein Problem darstellen, sind über 2 m beim Eingang der Dusche.
Der Kamin im Schlafzimmer ist aber wie gesagt ungünstig, den werden wir anders platzieren müssen.
Der Kniestock im OG sollte kein Problem darstellen, sind über 2 m beim Eingang der Dusche.
Der Kamin im Schlafzimmer ist aber wie gesagt ungünstig, den werden wir anders platzieren müssen.
Juhu,
wir haben die letzten Monate viel Zeit mit Bemusterung, Angeboten, Finanzierung etc. verbracht.
Und in diesem Zusammenhang bekamen wir vor kurzem endlich einen Termin bzgl. Bayernlabo im Landratsamt, wofür natürlich der Plan auch eine entscheidende Rolle spielt.
Das Fazit war, dass für uns zumindest das Zinsverbilligungsprogramm in Frage käme. Von den qm geht es sich gerade so aus, wobei sie "Kinderzimmer egtl. nur bis 15 qm fördern" (womit anscheinend ein gewisser Ermessensspielraum besteht).
Deshalb kam auch des Thema drittes Kinderzimmer ins Spiel, das man gern auch berücksichtigen könne, wenn man zumindest "prinzipiell über weiteren Nachwuchs nachdenken würde".
Vor diesem Hintergrund haben wir den Punkt beim Gespräch letzte Woche mit der Baufirma aufgebracht und wollten uns so eine Alternative ins OG mit einplanen lassen, um zu sehen ob es überhaupt Sinn macht.
Auf den ersten Blick hat mir die Idee sehr gut gefallen, aber nach etwas genauerer Betrachtung sind wir uns nicht mehr so sicher, ob wir diese Lösung nicht doch bereuen.
Deshalb hier noch mal die aktuellen Geschossentwürfe mit Fragen/Erklärungen. Über Optimierungsideen von eurer Seite würden wir uns freuen, wollten dann gerne die nächsten Wochen den Antrag einreichen um im Frühjahr starten zu können.
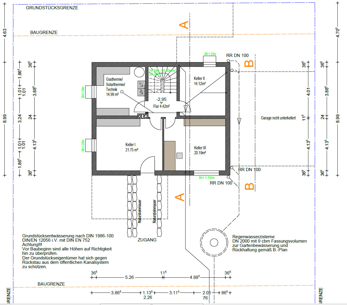
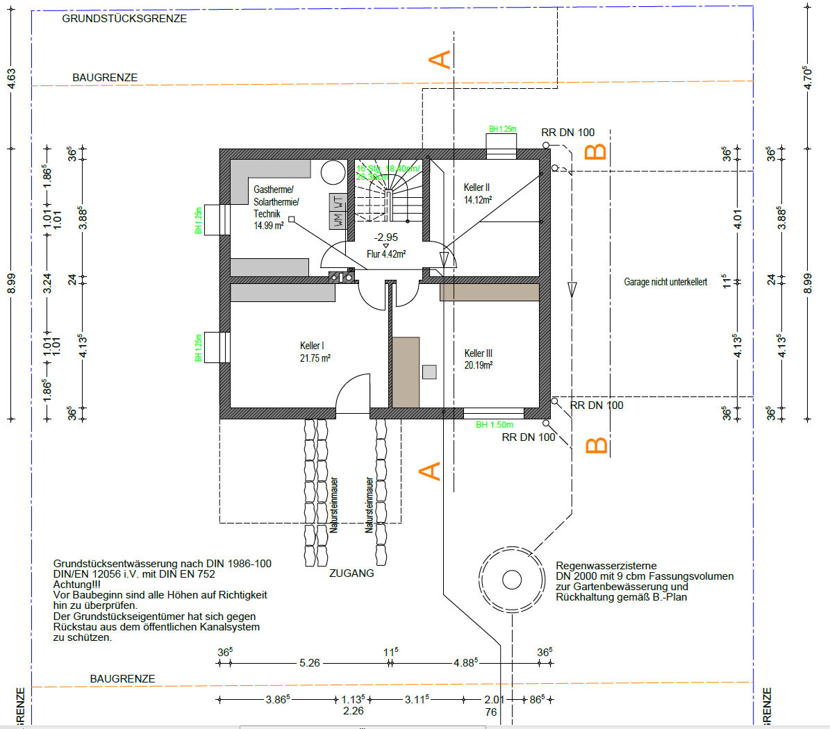
KG:
Bin ich soweit ganz glücklich, evtl. lassen wir in "Keller I" doch noch ein kleines Fenster neben der Außentür einplanen, auch wenn es von der Terrasse verschattet wird.
Denkt ihr die 14,99 m² reichen für den Technikraum (Gas + Puffer + Lüftung)? Waschmaschine/WT müssen da nicht rein, keine Ahnung warum da der Zeichner so kreativ war.
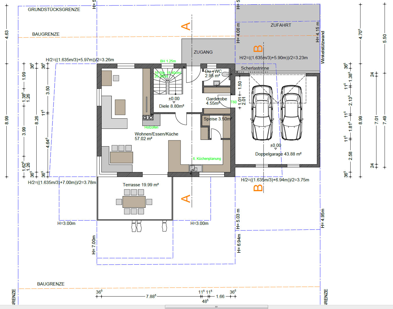
EG:
Mit dem "L" für Kochen/Wohnen mit dem Eckfenster sind wir soweit auch recht zufrieden. Die Idee mit einem abgetrennten Büro haben wir verworfen - zur Not kann man sich auch so eine kleine Schreibtischnische einbauen wie beispielhaft dargestellt.
An den Küchenproportionen muss noch nachgebessert werden - die lange Seite soll natürlich nicht bis direkt zur Terrassentür gehen, da fällt das gute Stück auf der Zeichnung deutlich zu lang aus.
Den Punkt wollte ich noch berichtigen lassen, auch wenns für die Genehmigung keine Rolle spielt.
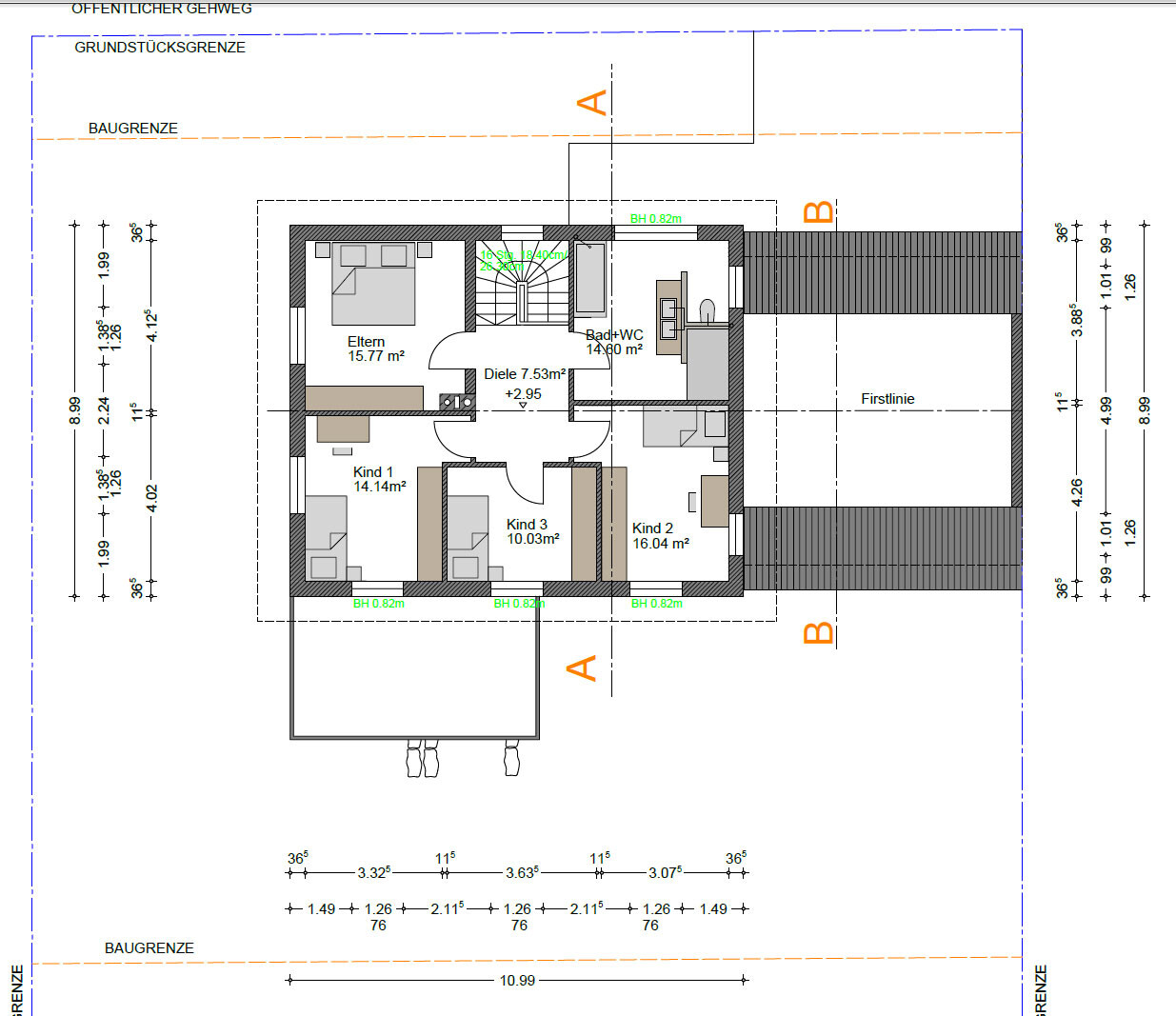
OG:
Hier hätte ich den aktuellen und letzten Entwurf als Vergleich angehängt.
Ich finde, dass beides seinen Reiz hat - jetzt mal ganz abgesehen von irgendwelchen Förderungen oder einem möglichen Kinderwunsch:
Im alten Entwurf (OG4a) gefällt mir die klare Struktur und die wie ich finde sehr gelungene (faire) Aufteilung.
Der neue (OG5) schafft auf den ersten Blick mehr Flexibilität, egal ob für ein weiteres Kind, für ein Gästezimmer, als Büro oder um bei Bedarf trotzdem (später mal) Waschmaschine/WT ins OG zu holen.
letzteres bringt mir allerdings alles nichts, wenn dann die anderen beiden Kinderzimmer nicht mehr richtig funktionieren. Der Kniestock von ca. 2m kann lässt ja bspw. nicht zu, dass man Schränke nach Lust und Laune reinstellt. In Bezug auf die Betten könnte man die kleinen Lichtbänder im Süden evtl. noch etwas verschieben ...
Wie denkt ihr als Außenstehende über die beiden Varianten?




wir haben die letzten Monate viel Zeit mit Bemusterung, Angeboten, Finanzierung etc. verbracht.
Und in diesem Zusammenhang bekamen wir vor kurzem endlich einen Termin bzgl. Bayernlabo im Landratsamt, wofür natürlich der Plan auch eine entscheidende Rolle spielt.
Das Fazit war, dass für uns zumindest das Zinsverbilligungsprogramm in Frage käme. Von den qm geht es sich gerade so aus, wobei sie "Kinderzimmer egtl. nur bis 15 qm fördern" (womit anscheinend ein gewisser Ermessensspielraum besteht).
Deshalb kam auch des Thema drittes Kinderzimmer ins Spiel, das man gern auch berücksichtigen könne, wenn man zumindest "prinzipiell über weiteren Nachwuchs nachdenken würde".
Vor diesem Hintergrund haben wir den Punkt beim Gespräch letzte Woche mit der Baufirma aufgebracht und wollten uns so eine Alternative ins OG mit einplanen lassen, um zu sehen ob es überhaupt Sinn macht.
Auf den ersten Blick hat mir die Idee sehr gut gefallen, aber nach etwas genauerer Betrachtung sind wir uns nicht mehr so sicher, ob wir diese Lösung nicht doch bereuen.
Deshalb hier noch mal die aktuellen Geschossentwürfe mit Fragen/Erklärungen. Über Optimierungsideen von eurer Seite würden wir uns freuen, wollten dann gerne die nächsten Wochen den Antrag einreichen um im Frühjahr starten zu können.
KG:
Bin ich soweit ganz glücklich, evtl. lassen wir in "Keller I" doch noch ein kleines Fenster neben der Außentür einplanen, auch wenn es von der Terrasse verschattet wird.
Denkt ihr die 14,99 m² reichen für den Technikraum (Gas + Puffer + Lüftung)? Waschmaschine/WT müssen da nicht rein, keine Ahnung warum da der Zeichner so kreativ war.
EG:
Mit dem "L" für Kochen/Wohnen mit dem Eckfenster sind wir soweit auch recht zufrieden. Die Idee mit einem abgetrennten Büro haben wir verworfen - zur Not kann man sich auch so eine kleine Schreibtischnische einbauen wie beispielhaft dargestellt.
An den Küchenproportionen muss noch nachgebessert werden - die lange Seite soll natürlich nicht bis direkt zur Terrassentür gehen, da fällt das gute Stück auf der Zeichnung deutlich zu lang aus.
Den Punkt wollte ich noch berichtigen lassen, auch wenns für die Genehmigung keine Rolle spielt.
OG:
Hier hätte ich den aktuellen und letzten Entwurf als Vergleich angehängt.
Ich finde, dass beides seinen Reiz hat - jetzt mal ganz abgesehen von irgendwelchen Förderungen oder einem möglichen Kinderwunsch:
Im alten Entwurf (OG4a) gefällt mir die klare Struktur und die wie ich finde sehr gelungene (faire) Aufteilung.
Der neue (OG5) schafft auf den ersten Blick mehr Flexibilität, egal ob für ein weiteres Kind, für ein Gästezimmer, als Büro oder um bei Bedarf trotzdem (später mal) Waschmaschine/WT ins OG zu holen.
letzteres bringt mir allerdings alles nichts, wenn dann die anderen beiden Kinderzimmer nicht mehr richtig funktionieren. Der Kniestock von ca. 2m kann lässt ja bspw. nicht zu, dass man Schränke nach Lust und Laune reinstellt. In Bezug auf die Betten könnte man die kleinen Lichtbänder im Süden evtl. noch etwas verschieben ...
Wie denkt ihr als Außenstehende über die beiden Varianten?
Ich würde auch ein 3. Zimmer planen, statt des HWRs. Wenn ich schon einen teuren Keller baue, dann soll der mir den Platz in den oberen Geschossen von Technik und Gedöns freihalten.
Allerdings ist die Sache nicht zu Ende gedacht. Wenn wirklich ein 3. Kind käme, wollt Ihr Euch zu fünft jeden früh um ein Bad prügeln? Das ist bei 4 Mann schon eine Katastrophe. Da würde ja eine Dusche im EG Abhilfe schaffen (aber man kann sich vermutlich nicht von dem Eingang über die Garage trennen, von daher steht man lieber am Bad an). Aber bei 5 wird es haarsträubend.
Das ist alles so chaotisch. Ein 3. Kinderzimmer, aber nur 1 Bad für alle, Büro wurde gestrichen, was als Ausweichraum ganz gut gewesen wäre, dafür jetzt oben die Kinderzimmers kleiner und immer noch keine 2. Dusche. Komm da nicht mehr mit.
Allerdings ist die Sache nicht zu Ende gedacht. Wenn wirklich ein 3. Kind käme, wollt Ihr Euch zu fünft jeden früh um ein Bad prügeln? Das ist bei 4 Mann schon eine Katastrophe. Da würde ja eine Dusche im EG Abhilfe schaffen (aber man kann sich vermutlich nicht von dem Eingang über die Garage trennen, von daher steht man lieber am Bad an). Aber bei 5 wird es haarsträubend.
Das ist alles so chaotisch. Ein 3. Kinderzimmer, aber nur 1 Bad für alle, Büro wurde gestrichen, was als Ausweichraum ganz gut gewesen wäre, dafür jetzt oben die Kinderzimmers kleiner und immer noch keine 2. Dusche. Komm da nicht mehr mit.
Das Thema Bad sehen wir als unkritisch, da wir eine zusätzliche Nasszelle bzw. Dusche im Keller schaffen werden, weshalb eine solche auch aus dem EG rausgeflogen ist (Stichwort: "Schmutzschleuse mit Duschmöglichkeit").
Mir ging es wirklich primär um die Frage der Sinnhaftigkeit eines kleineren 10 qm Zimmers, das zum Beispiel als Büro oder eben auch zur Not als zusätzliches Kinderzimmer (in ein paar Jahren) für einen kleinen Wurm in den ersten Lebensjahren herhalten kann. Auf Dauer ist die Lösung sowieso nie praktikabel, so dass man in 10 - 15 Jahren in jedem Fall umdisponieren müsste - vorausgesetzt unser dann (fast) Volljähriger ältester Sohn zieht nicht schon wieder aus.
Die Bedenken liegen halt wirklich darin, die vorhandenen Kinderzimmer mit der Maßnahme zu stark einzuschränken ....
Mir ging es wirklich primär um die Frage der Sinnhaftigkeit eines kleineren 10 qm Zimmers, das zum Beispiel als Büro oder eben auch zur Not als zusätzliches Kinderzimmer (in ein paar Jahren) für einen kleinen Wurm in den ersten Lebensjahren herhalten kann. Auf Dauer ist die Lösung sowieso nie praktikabel, so dass man in 10 - 15 Jahren in jedem Fall umdisponieren müsste - vorausgesetzt unser dann (fast) Volljähriger ältester Sohn zieht nicht schon wieder aus.
Die Bedenken liegen halt wirklich darin, die vorhandenen Kinderzimmer mit der Maßnahme zu stark einzuschränken ....
Ähnliche Themen