Grundriss Einfamilienhaus 180qm mit Doppelgarage

4,80 Stern(e) 5 Votes
Zuletzt aktualisiert 21.11.2025
Sie befinden sich auf der Seite 3 der Diskussion zum Thema: Grundriss Einfamilienhaus 180qm mit Doppelgarage
>> Zum 1. Beitrag <<

M

matte

Dass du keine Diskussion über den Sinn oder Unsinn einer Speisekammer willst, verstehe ich. Allerdings machst du den Eindruck als würdest du dir von der Speisekammer im neuen Haus die gleichen Vorteile erwarten, wie die deiner Jetzigen. Und das ist einfach durch die moderne Bauweise nicht mehr gegeben.
Als Rümpelkammer ok, aber zum Lagern von Speisen wird sie ihren ursprünglichen Zweck schlicht und ergreifend nicht erfüllen können.
 
H

hakkinen

Ein kleines Update von mir:
Nachdem wir nun beim Küchenbauer und Badplaner waren, habe ich nun den Grundriss entsprechend aktualisiert. Vor allem der Eingangsbereich in die Küche sollte nun stimmiger sein.
Treppe müsste nun auch passen.

-Aktuell überlegen wir noch, ob wir auf die Terrassentür im Wohnbereich verzichten, da man ohnehin über die danebenliegende große Schiebetür nach draußen kann.
-Von den Dachfenster sind wir mittlerweile auch etwas abgekommen und verzichten vertml. darauf (DEcke nun komplett über das OG)
-Kaminofen ist noch nicht im Detail geplant, da haben wir demnächst einen Termin

Würd mich über ein paar Meinungen freuen


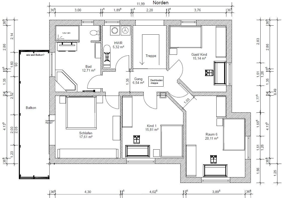
Grundriss eines Hauses mit Doppelgarage, Werkstatt, Küche, Esszimmer, Wohnzimmer, Büro und Bad.

Grundriss eines Hauses mit Treppe, Schlafen, Bad, Kind 1, Gast/Kind, Raum 6, Balkon
 
C

Curly

der Bereich vor der Dusche ist sicherlich öfters nass und macht es nicht angenehm das WC zu benutzen.

LG
Sabine
 
H

hakkinen

Hm... sonst keiner mehr irgendeine Meinung dazu oder Verbesserungsvorschläge?
Oder gibts irgendwas was gut gefällt?
 
Y

ypg

Wo kommt der E-Schrank mit dieser 2 Meter-Fallfläche davor hin? Der muss, falls der Elektriker einen Schlag bekommt, einen Sicherheitsabstand davor von ca. 2 Metern (oder waren es 1,80?) haben.

Ansonsten noch der Hinweis: es kann irgendwann störend sein, nur durch die Küche das WZ zu betreten. Ich persönlich habe nichts dagegen.
Und oben ist es immer noch ne Katastrophe. Bitte frag nicht, warum oder wie man das ändern kann. Am besten alles neu da oben
 
kbt09

kbt09

Das Problem mit oben, ist der Grundriss unten mit der Ecke rechts unten. Die ist halt oben echt schlecht zu erschließen. Ich finde oben nämlich auch ... na ja
 
Zuletzt aktualisiert 21.11.2025
Im Forum Grundrissplanung / Grundstücksplanung gibt es 2535 Themen mit insgesamt 87978 Beiträgen


Ähnliche Themen zu Grundriss Einfamilienhaus 180qm mit Doppelgarage
Nr.ErgebnisBeiträge
1Speisekammer vs. größere Küche vs. Hauswirtschaftsraum 13
2Grundriss: Speisekammer oder größere Küche? Erfahrungen? - Seite 314
3Küche & Preis - Schnelle Einschätzung erwünscht!! - Seite 13165
4Wohn-/Essbereich und Küche - Sinnvolle Aufteilung - Seite 336
5Erker in der Küche - Umsetzungsvorschläge - Seite 247
6Versteckter Durchgang in Speisekammer - Erfahrungen gesucht - Seite 228
7Grundriss: Planung Türen Wohnraum + Speisekammer 17
8Grundriss mit Speisekammer innenliegend - Was beachten? 14
9Speisekammer: Heizschleife bei Kontrollierte-Wohnraumlüftung sinnvoll? 14
10Geschlossene oder offene Küche ? 11
11Grundriss, Ideen zur räumlichen Trennung innerhalb der Küche 23
12Varianten für eine Ecklösung in der Küche 18
13Wohnen/Essen/Küche: Wie wohnt ihr oder werdet ihr wohnen? 52
14Planung Wohnraum & Küche eines Doppelhaushälfte in Nürnberg 13
15Probleme bei der aufteilung Küche, Essen , Wohnen 16
16Grundriss Halboffene Küche mit großem Essbereich - Detailfragen 12
17Beleuchtung in Diele und Küche: Deckeneinbau-Strahler benötigt? - Seite 219
18Feedback zur Ikea-Küche - Seite 8167
19Next 125 Küche Erfahrungen / Preiseinschätzung - Seite 339
20Heizkreise/Thermostate für Wohnen/Essen/Küche bei Fußbodenheizung/Wärmepumpe 35

Oben