Hausbau - Ratgeber
Bauherrenhilfe
- Bauherrenhilfe vor Vertragsabschluss
-- Warum einen unabhängigen Baubetreuer?
-- Vertragsgrundlagen
-- Bausumme
-- Zahlungsplan zur Kostenkontrolle
-- Pflichten des Bauherren vor Vertragsabschluss
-- Unterlagen beim Hausbau vor Vertragsabschluss
- Bauherrenhilfe nach Vertragsabschluss
-- Bauantrag bei Behörden
-- Bau-Genehmigungsverfahren bei Baubehörden
-- Bauspezifische Versicherungen
-- Bauzeitenplan
-- Baubeginn - die Letzten Pflichten der Bauherrschaft
- Bauherrenhilfe während der Bauzeit
- Gewährleistungsansprüche
- Bauabnahme
Baufinanzierung
- Baufinanzierung - Allgemeine Fragen
- Kreditarten
- Kredit-Konditionen
- Bausparen
- Staatliche Förderungen
- Verkehrswert
- Haushaltsrechnung und Bonität
Hausbau Planung
- Haustypen
- Hausbau Vorbereitungsarbeiten
- Das Baugrundstück
- Baugrund beim Hausbau
- Baurecht
- Gebäudeschutz
- Erdarbeiten und Wasserhaltung
- Stützmauern
- Einfriedung
- Untergeschoss
- Kanalisation
- Tragende Elemente
- Nichttragende Innenwände
- Fundation / Fundament
- Deckenkonstruktionen
- Dächer
- Kaminanlagen
- Treppen Rampen Leitern
- Dachbeläge und Spengler
- Fenster
- Sonnen und Wetterschutz
- Aussenputze
- Einbauten, Küchen, Türen
- Bodenbeläge und Unterlagsböden
- Parkett
- Gips, Wand, Decke
Haustechnik und Energie
- Heiztechnik
- Lüftung und Klimatechnik
- Sanitärtechnik
- Elektrotechnik
- Erneuerbare Energie
Whirlpools / Jacuzzi
Hausbau Magazin
- Baufinanzierung trotz Krise?
- Das Blockhaus
- Moderne Dämmstoffe im Vergleich
- Erker Vor- und Nachteile
- Glasflächen beim Hausbau
- Günstig ein Haus Bauen
- Mediterraner Hausbaustil
- Mehrgenerationenhaus
- Moderne Architektur
- Gartengestaltung leicht gemacht
- Traditioneller Ziegelbau
- Villa als höchster Traum
- Im Eigenheim Ruhestand geniessen
- Altbau sanieren
- Kauf einer Holzgarage
- Immobilienmakler
- Arbeitshandschuhe für den Winter
- Zuhause verschönern
- Outdoor-Plissees
- Schlafzimmer planen
- Terrassenüberdachung
- Wohngebäudeversicherung
- Zaunarten und Eigenschaften
- Hauseingang gestalten
- Der perfekte Grundriss
- Sparsamer heizen im Altbau
- Einfamilienhaus smart finanzieren
- Planung einer PV-Anlage
- Neues Haus
- Immobilienfinanzierung
- Installation einer Photovoltaikanlage
- Asbest erkennen und entfernen
- Gartenpflege im Frühling – worauf achten
- Sauna im Fokus - Wellness zuhause
- Erfolgreich vermieten
- Die perfekte Winterbekleidung
- Das Niedrigenergiehaus
- Der April und seine Stürme
- Architektonische Vielfalt
- Ökologisch und nachhaltig bauen
- Das perfekte Schlafzimmer
- Nachhaltige Energieversorgung
- Zukunftsorientiert bauen
- Nachhaltigkeit beim Hausbau
- Tiny Houses
- Wärmepumpen als nachhaltige Heizvariante
- Maßgeschneiderten Kleiderschrank
- Der richtige Baukredit
- Ratgeber für erfolgreichen Hausbau
- Haus als Altersvorsorge
Do-it-yourself Anleitungen
- Verlegeanleitung für Bodenbeläge und Parkett
- Bodenbeläge und Parkett reinigen und pflegen
- Malerarbeiten am Haus
- Garten Tipps
- Umzug und Reinigung

ᐅ Grundriss Einfamilienhaus 1,5 + Keller / 1. Vorentwurf - Vorschläge?

Erstellt am: 06.01.22 19:25
A
Andi1980
A
Andi1980
07.01.22 19:31
Hangman schrieb:

Ich finde es angenehm unaufgeregt und schlicht. Ich schliesse mich allerdings @ypg bei folgenden Punkten an:



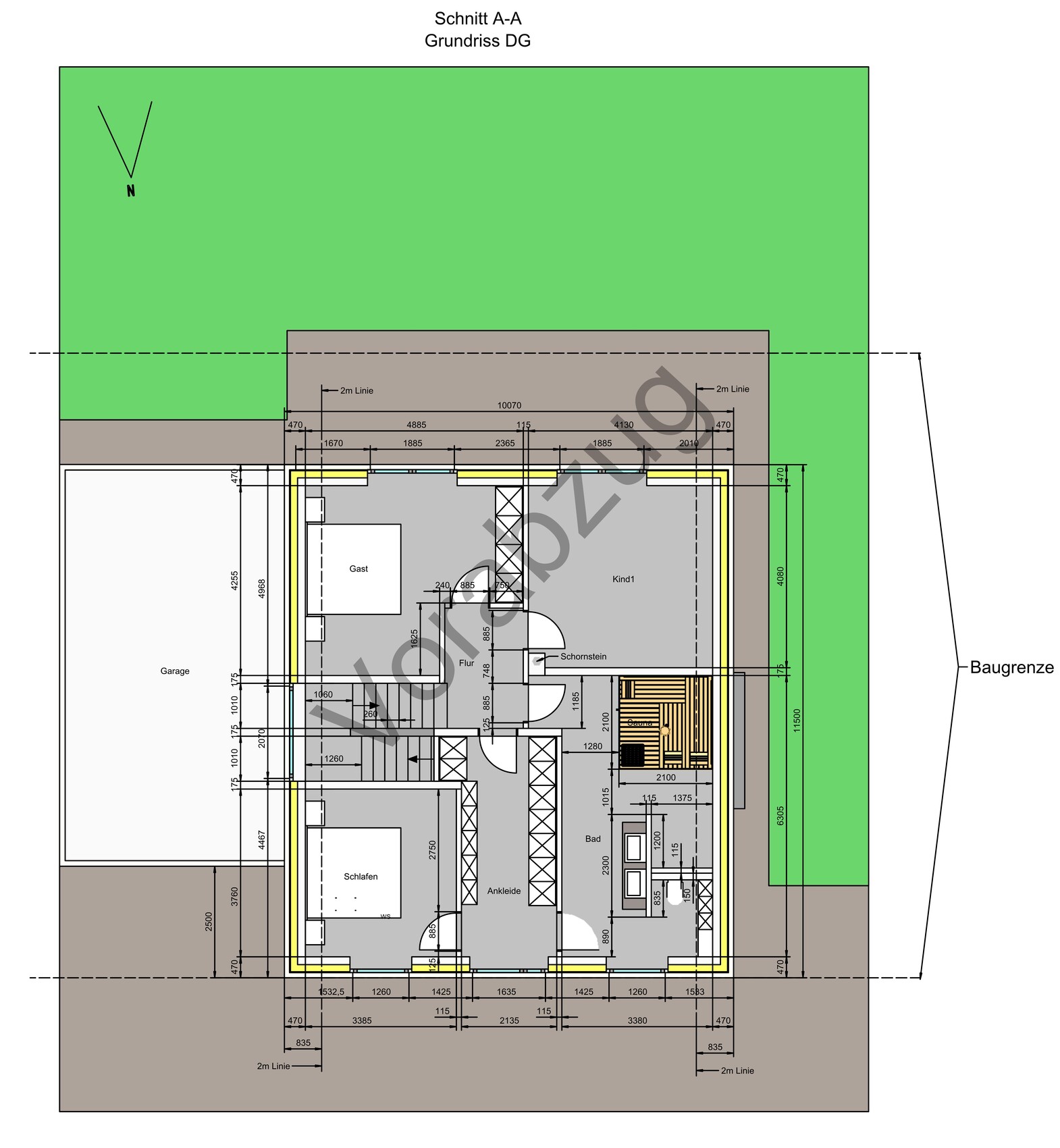
V.a. der Punkt mit dem 2-Geschosser bedarf allerdings der Klärung bevor wir hier weiter diskutieren. Wo verläuft die 2m Linie im DG?


Hallo, Danke Dir für Deine Anmerkungen!
Wir empfinden die Lösung mit der Tür Garage / Büro als vorteilhaft, da man so trockenen Fußes ins Haus gelangen kann. Warum würdest Du diese Tür streichen? In der Speisekammer wollen wir Dinge des täglichen Bedarfs (Küchentutensilien) und Lebensmittel, Getränke etc. lagern.
Bzgl. der Geschossigkeit: Ich bearbeite die Pläne nochmal, dann wird auch die 2 m Linien eingetragen sein (sorry, das war leider in den in den aktuellen Ansichten übersehen worden).
A
Andi1980
07.01.22 19:39
Berufsbedingt und auf Grund von diversen anderen täglichen Verpflichtungen haben wir nur abends genug Ruhe und Zeit alle Fragen zu beantworten.
A
Andi1980
07.01.22 19:48
Hallo,
ich hoffe, dass die Beantwortung der Fragen mit der Funktion "Zitieren" richtig war.
Falls es einen einfacheren Weg gibt, gebt mir bitte einen kurzen Hinweis. Danke.
A
Andi1980
07.01.22 20:56
Hallo,
ich habe jetzt die Ansichten vom Grundriss EG und DG verkleinert und außerdem wurde noch die 2m Linie im Grundriss DG ergänzt.
Freue mich auf Feedback.

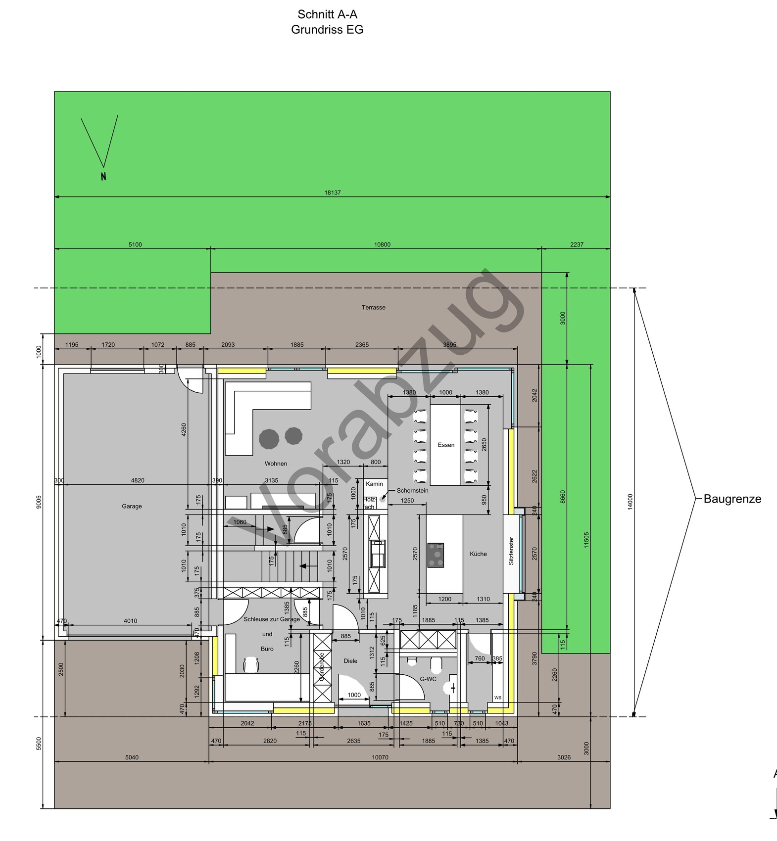
Grundriss EG mit Terrasse, Gartenfläche und Wohn-, Ess- und Küchenbereich.


Grundriss DG: Zimmerplan mit Schlafen, Gast, Kind 1, Bad, Ankleide, Flur, Garage.
Z
Zubi123
07.01.22 21:18
Andi1980 schrieb:

Wie könnten man den "trüben" Eingangsbereich deiner Meinung nach optimieren.

Ich würde das Wohnzimmerfenster weiter nach rechts schieben, so dass man vom Eingang direkt einen Blick durchs ganze Haus nach draußen in den Garten hat.

Ansonsten finde ich den Wurf schon gelungen.

Tür zwischen Haus und Garage finde ich aus den gleichen Gründen wie du auch sehr vorteilhaft. Allerdings wird das Büro so zu einem Durchgangsraum für Garderobe und Co. Ein echten Büro für HomeOffice sehe ich bei diesem Grundriss daher nicht!
Y
ypg
07.01.22 22:52
Andi1980 schrieb:

Hallo,
ich hoffe, dass die Beantwortung der Fragen mit der Funktion "Zitieren" richtig war.
Falls es einen einfacheren Weg gibt, gebt mir bitte einen kurzen Hinweis. Danke.
Du musst nicht jedem hier das Gleiche schreiben. Es liest ja jeder wie in einer Unterhaltung mit.
Andi1980 schrieb:

Wir empfinden die Lösung mit der Tür Garage / Büro als vorteilhaft, da man so trockenen Fußes ins Haus gelangen kann.
Andi1980 schrieb:

Warum würdest Du diese Tür streichen?

Weil Dein Argument/Empfinden aus der Luft gegriffen ist. Es regnet in Deutschland zwar sehr häufig, aber meist nachts. Du bist nicht der einzige, der denkt, es regnet JEDES Mal, wenn er nach Hause kommt und 4 Meter an der Hauswand lassen Dich klitschnass werden. Es ist nicht so!
Und ein Büro oder einen anderen Raum, der nicht Flur ist, als Flur zu missbrauchen, mindert den Raum für einen persönlich im Wohnwert, da er dann genauso pflegeintensiv wird wie ein Hausflur und muss mit Fußabtreter und Stiefelknecht ausgestattet sein. Du gehst ja auch nicht in die Küche zum Pipi machen.
Andi1980 schrieb:

In der Speisekammer ist kein Gefrierschrank o.ä. vorgesehen, hier wollen wir Dinge des täglichen Bedarfs (Küchentutensilien) und Lebensmittel, Getränke etc. lagern.
Du ziehst nicht jetzt ein, Du baust auch nicht für ein Jahr, sondern hoffentlich für mind. zwei Generationen. Und wenn es nur 20 Jahre sind: das Leben wird sich verändern, in Anschaffung, Werten und besonders auch in der Lebensmittelherstellung und -bevorratung.
Andi1980 schrieb:

Die Türbreiten lassen wir uns nochmal durch den Kopf gehen.
Türbreiten sind uA Standard. Wie willst Du denn Deine Heizung bei Euch reinbekommen?
Andi1980 schrieb:

Bzgl. der Geschossigkeit: Ich bearbeite die Pläne nochmal, dann wird auch die 2 m Linien eingetragen sein (sorry, das war leider in den in den aktuellen Ansichten übersehen worden).
Wenn die Angaben hier richtig sind mit 40 Grad Dachneigung, dann ist Deine 2-Meter-Marke schlicht falsch! Du hast einen max. Kniestock von 130cm... bei also innen eingerücktes Maß von ca. 80 cm hast Du Deine 2 Meter. Und auf der Höhe sehe ich mit Sicherheit keine Duscharmatur. Oder möchtest Du jetzt sagen, dass Deine Fenster oben und unten die gleichen Höhen aufweisen oder die beiden Fenster im OG 3 Meter hoch sind?

Außenfassade eines mehrstöckigen Hauses mit schrägem Dach, blauen Fenstern und Tür; Maßlinien.
Andi1980 schrieb:

Wie könnten man den "trüben" Eingangsbereich deiner Meinung nach optimieren.
Ich mache mir nicht viel Gedanken, was eh nicht gebaut wird. Ich habe es schon erwähnt: Das Budget lässt einen Keller nicht zu. Insofern muss neu geplant werden.
türgaragegrundrissflurfenster