ᐅ 3D-Bilder und Grundriss Einfamilienhaus
Erstellt am: 20.09.15 18:26
Hallo liebes Forum,
ohne langen Einführungstext möchte ich euch den Entwurf eines Einfamilienhaus mit einem Grundriss von 14 m x 9 m vorstellen und würde mich über ein paar Meinungen, Anregungen und Verbesserungsvorschläge freuen.
vor allem der Wohn- und Essbereich soll der zentrale Punkt des Hauses sein.
Viel Spaß beim Ansehen der 3D-Bilder und des Grundrisses :-)
Zur Info:
Bei den Bildern des Wohnbereichs wurde die Treppe nur angedeutet (2 Stufen), da ich nicht wusste, wie ich das im Programm realisieren soll... ;-)
Außerdem habe ich 2 Versionen des Wohnbereiches angehängt, einmal mit "gerader" Tür zum Flur, und einmal mit "schräger" Tür zum Flur...










ohne langen Einführungstext möchte ich euch den Entwurf eines Einfamilienhaus mit einem Grundriss von 14 m x 9 m vorstellen und würde mich über ein paar Meinungen, Anregungen und Verbesserungsvorschläge freuen.
vor allem der Wohn- und Essbereich soll der zentrale Punkt des Hauses sein.
Viel Spaß beim Ansehen der 3D-Bilder und des Grundrisses :-)
Zur Info:
Bei den Bildern des Wohnbereichs wurde die Treppe nur angedeutet (2 Stufen), da ich nicht wusste, wie ich das im Programm realisieren soll... ;-)
Außerdem habe ich 2 Versionen des Wohnbereiches angehängt, einmal mit "gerader" Tür zum Flur, und einmal mit "schräger" Tür zum Flur...
W
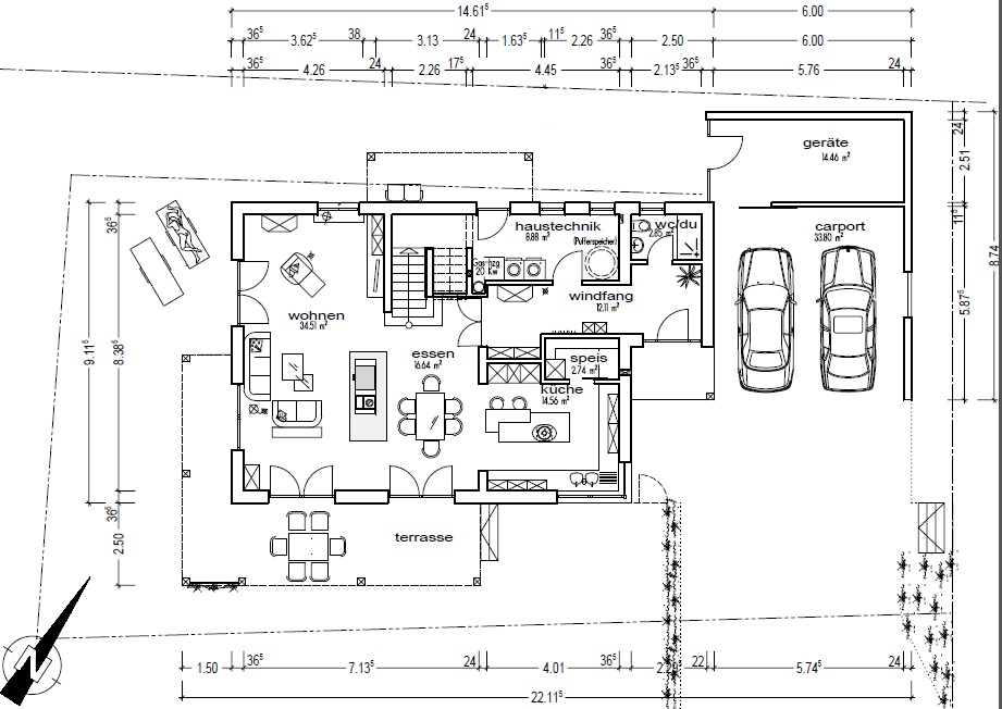
Watcher7820.09.15 18:38Maße wäre ganz toll um das ganze besser einschätzen zu können.
T
toxicmolotof20.09.15 20:29Der Essbereich ist das Tor zur Hölle. Wenn der Ofen an ist, hast du nach 30 Minuten ein Brathähnchen am Tisch sitzen. Der Bereich ist nicht breit genug, es sei denn so ein Minitisch soll es wirklich sein. Passt aber nicht zum Rest des Hauses.
Die Küche ist maximal unergonomisch, es sei denn Reise nach Jerusalem ist Euer Lieblingsspiel.
Der Hauswirtschaftsraum ist zu 50% nicht nutzbar. Fenster??? Wofür? Was für Technik soll da noch rein? Pufferspeicher? Heizung? Stromzähler? Sicherungen? Da wirds kompakt.
Leider fehlt das OG, damit endet meine Beurteilung hier.
Die Küche ist maximal unergonomisch, es sei denn Reise nach Jerusalem ist Euer Lieblingsspiel.
Der Hauswirtschaftsraum ist zu 50% nicht nutzbar. Fenster??? Wofür? Was für Technik soll da noch rein? Pufferspeicher? Heizung? Stromzähler? Sicherungen? Da wirds kompakt.
Leider fehlt das OG, damit endet meine Beurteilung hier.
K
Karlstraße20.09.15 20:39Hi,ich würde den Tisch und Kamin anders ausrichten, längs zur Terrasse. Dann entgehst du das "Platzproblem", obwohl du über 60qm hast. Ansonsten finde ich es nicht schlecht. Insgesamt finde ich so einen großen Windfang allerdings Quatsch, ist meine persönliche Meinung. Die vielen Fenster usw. finde ich großartig!
Sag mal, mit welchen Programm hast Du das gemacht?
Sag mal, mit welchen Programm hast Du das gemacht?
Ähnliche Themen