Hallöchen,
Nach langem Lesen und zwischenzeitlichem adacta legen unseres Bauvorhaben, hat uns eine Aktion doch wieder begeistert, dass wir den Schritt wagen wollen.
Das Grundstück ist jetzt mit unserem Wohnhaus (Bj. 1957) bebaut und zumindest ich wohne hier schon fast 18 Jahre, mein Mann seit 5 Jahren. Vor drei Jahren hatten wir mal die Babauung im hinteren Teil mit Grundstücksteilung in Betracht gezogen. Das wurde uns auf Vorabfrage negativ beschieden. Jetzt ist also Abriss und Neubau geplant.
Danke im Voraus
Bebauungsplan/Einschränkungen
Größe des Grundstücks: 1800m² Haus Nr. 10 oder Flustück 21
Hang: Nein
Grundflächenzahl: keine Bebauungsplan vorhanden
Baufenster, Baulinie und -grenze : Auf Höhe des jetzigen Hauses
Anzahl Stellplatz: 1, bisherige Garage soll bestehen bleiben
Geschossigkeit: 1
Dachform: Walmdach
Ausrichtung: Süd
Anforderungen der Bauherren
Stilrichtung, Dachform, Gebäudetyp: Barierearm, Bungalow
Keller, Geschosse: 1, kein Keller
Anzahl der Personen, Alter: 2 (Er: 35, Sie; 45, keine Kinder geplant)
Raumbedarf im EG, OG: 110, kommen jetzt mit weniger aus
Büro: Familiennutzung ganzjährig, im Winter zusätzlich Homeoffice
Schlafgäste pro Jahr: 0
Garage bereits vorhanden, im Gegensatz zum jetzigen Gebäude soll man gerade in die Garage fahren können.
weitere Wünsche/Besonderheiten/Tagesablauf: Wir verzichten bewusst auf ein Speisezimmer. Wir benutzen es einfach nicht, obwohl wir eins haben. Der Tisch wird meist als willige Ablagefläche für alles genutzt, für das man zu faul ist direkt wegzupacken
Hausentwurf
Von wem stammt die Planung:
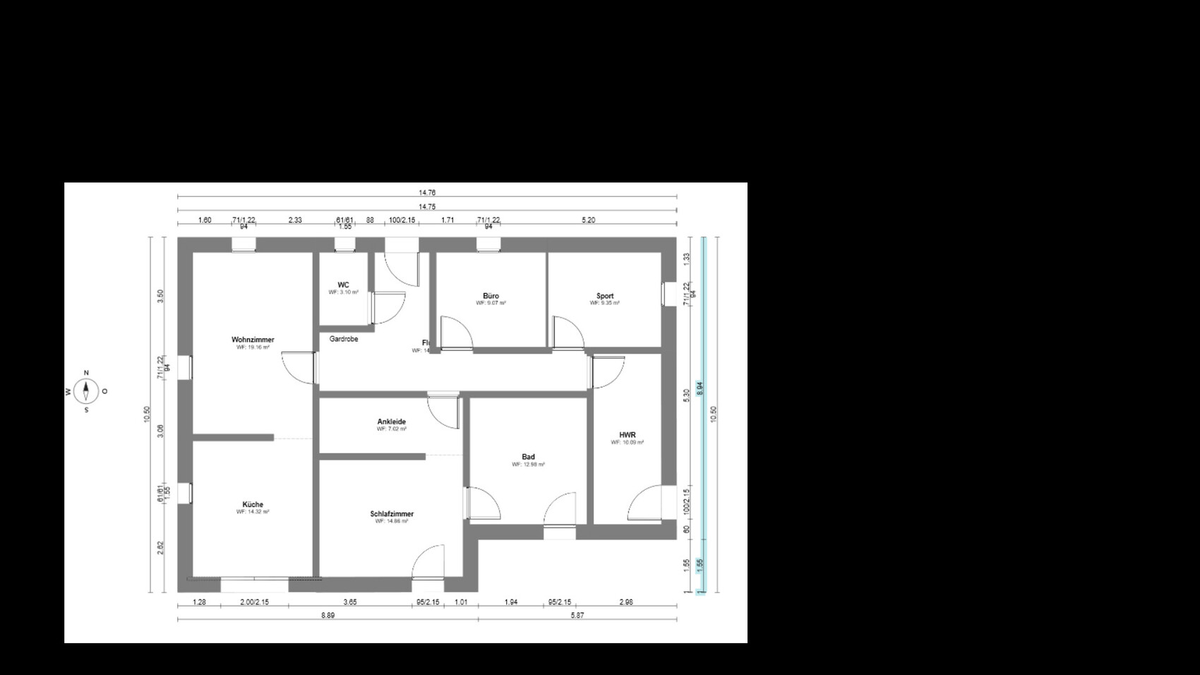
Hausgrundgriss stammt vom Planer eines Bauunternehmens, Raumverteilung ist Do-it-Yourself
Was gefällt besonders? Warum? Direkter Zugang von Küche und Bad auf die Terrasse, Schlafzimmer mittig, da nervige Nachbarskinder
Was gefällt nicht? Warum? Das das Badezimmer zur überdachten Terrasse führt, hätte ich lieber auf der Küchenseite.
Preisschätzung laut Architekt/Planer: Ab 285.000 Euro (Sommer-Aktion) zzgl. Ausstattung
Persönliches Preislimit fürs Haus, inkl. Ausstattung: 375.000 Euro
favorisierte Heiztechnik: Erd-Wärme, wird aber finanziell denke eher Luftwärmepumpe
Wenn Ihr verzichten müsst, auf welche Details/Ausbauten
-könnt Ihr verzichten: Erd-Wärme, Dampfdusche, farbige Fenster, elektr. Rollläden
-könnt Ihr nicht verzichten: Nebeneingang in Haustechnikraum
Warum ist der Entwurf so geworden, wie er jetzt ist? ZB
Der originale Hausentwurf der Aktion hatte uns sehr angesprochen. Eigentlich auch die Raumaufteilung. Bis uns auffiel, dass das Schlafzimmer kein bodentiefes Fenster braucht und dann auch die Lage genau des jetzigen entspricht und die Nachbarn zu der Seite mal dezent anstrengend fürs Ausschlafen sind.


Nach langem Lesen und zwischenzeitlichem adacta legen unseres Bauvorhaben, hat uns eine Aktion doch wieder begeistert, dass wir den Schritt wagen wollen.
Das Grundstück ist jetzt mit unserem Wohnhaus (Bj. 1957) bebaut und zumindest ich wohne hier schon fast 18 Jahre, mein Mann seit 5 Jahren. Vor drei Jahren hatten wir mal die Babauung im hinteren Teil mit Grundstücksteilung in Betracht gezogen. Das wurde uns auf Vorabfrage negativ beschieden. Jetzt ist also Abriss und Neubau geplant.
Danke im Voraus
Bebauungsplan/Einschränkungen
Größe des Grundstücks: 1800m² Haus Nr. 10 oder Flustück 21
Hang: Nein
Grundflächenzahl: keine Bebauungsplan vorhanden
Baufenster, Baulinie und -grenze : Auf Höhe des jetzigen Hauses
Anzahl Stellplatz: 1, bisherige Garage soll bestehen bleiben
Geschossigkeit: 1
Dachform: Walmdach
Ausrichtung: Süd
Anforderungen der Bauherren
Stilrichtung, Dachform, Gebäudetyp: Barierearm, Bungalow
Keller, Geschosse: 1, kein Keller
Anzahl der Personen, Alter: 2 (Er: 35, Sie; 45, keine Kinder geplant)
Raumbedarf im EG, OG: 110, kommen jetzt mit weniger aus
Büro: Familiennutzung ganzjährig, im Winter zusätzlich Homeoffice
Schlafgäste pro Jahr: 0
Garage bereits vorhanden, im Gegensatz zum jetzigen Gebäude soll man gerade in die Garage fahren können.
weitere Wünsche/Besonderheiten/Tagesablauf: Wir verzichten bewusst auf ein Speisezimmer. Wir benutzen es einfach nicht, obwohl wir eins haben. Der Tisch wird meist als willige Ablagefläche für alles genutzt, für das man zu faul ist direkt wegzupacken
Hausentwurf
Von wem stammt die Planung:
Hausgrundgriss stammt vom Planer eines Bauunternehmens, Raumverteilung ist Do-it-Yourself
Was gefällt besonders? Warum? Direkter Zugang von Küche und Bad auf die Terrasse, Schlafzimmer mittig, da nervige Nachbarskinder
Was gefällt nicht? Warum? Das das Badezimmer zur überdachten Terrasse führt, hätte ich lieber auf der Küchenseite.
Preisschätzung laut Architekt/Planer: Ab 285.000 Euro (Sommer-Aktion) zzgl. Ausstattung
Persönliches Preislimit fürs Haus, inkl. Ausstattung: 375.000 Euro
favorisierte Heiztechnik: Erd-Wärme, wird aber finanziell denke eher Luftwärmepumpe
Wenn Ihr verzichten müsst, auf welche Details/Ausbauten
-könnt Ihr verzichten: Erd-Wärme, Dampfdusche, farbige Fenster, elektr. Rollläden
-könnt Ihr nicht verzichten: Nebeneingang in Haustechnikraum
Warum ist der Entwurf so geworden, wie er jetzt ist? ZB
Der originale Hausentwurf der Aktion hatte uns sehr angesprochen. Eigentlich auch die Raumaufteilung. Bis uns auffiel, dass das Schlafzimmer kein bodentiefes Fenster braucht und dann auch die Lage genau des jetzigen entspricht und die Nachbarn zu der Seite mal dezent anstrengend fürs Ausschlafen sind.
Summer27 schrieb:
Der originale Hausentwurf der Aktion hatte uns sehr angesprochen.Was hat denn angesprochen? Welche Aktion von welchem Häuslebauer?Wie ist der Originalgrundriss?
Summer27 schrieb:
und die Nachbarn zu der Seite mal dezent anstrengend fürs Ausschlafen sind.Welche Nachbarn auf welcher Seite?Summer27 schrieb:
überdachten TerrasseWo wäre denn die?Summer27 schrieb:
Das das Badezimmer zur überdachten Terrasse führt, hätte ich lieber auf der Küchenseite.Das Badezimmer oder die überdachte Terrasse?Summer27 schrieb:
Raumverteilung ist Do-it-YourselfJa, ehrlich gesagt: das sieht man. Da stimmt zum einen die ganze Zonierung nicht, zum anderen die Ausrichtungen der Räume.Des Weiteren bekommt man durch Lage von einigen Türen das wenigste an Nutzfläche der Räume (mind. Küche, Büro, Ankleide). Maße funktionieren nicht in ihrem Nutzen (mind. TK, Ankleide)
Die Fenster erreichen nicht die DIN. Und überhaupt: wo ist denn die Offenheit und Großzügigkeit, die ein Einfamilienhaus ausmacht?
Wie schon gesagt: interessant ist der Ausgangsentwurf (nicht nur Grundriss, sondern ganzes Haus)
Summer27 schrieb:
Gebäudetyp: Barierearm,Was verstehst Du darunter? Barrierearmut sehe ich jetzt erst einmal nicht, dazu gibt es zu viele Wände, kleine Räume und Schlauchräume. Wenn erst einmal Möbel eingezeichnet werden, sieht man Engpässe. Einfaches und offensichtliches Beispiel: wenn in der Ankleide erst einmal ein Schrank steht, wird es eng!Zur Zonierung: schlecht, wenn man vom Durchgang TK erst durchs ganze Haus muss.
Schlecht, wenn man das WZ als Durchgangszimmer plant. Mag ohne Kinder nicht gravierend sein, aber schön ist die Aufteilung nicht.
N
nordanney08.07.24 13:22Wohnraum als der Aufenthaltsraum mächtig klein im Verhältnis zu Bad oder Schlafzimmer.
ypg schrieb:Passt...
Was verstehst Du darunter? Barrierearmut sehe ich jetzt erst einmal nicht, dazu gibt es zu viele Wände, kleine Räume und Schlauchräume. Wenn erst einmal Möbel eingezeichnet werden, sieht man Engpässe. Einfaches und offensichtliches Beispiel: wenn in der Ankleide erst einmal ein Schrank steht, wird es eng!
Zur Zonierung: schlecht, wenn man vom Durchgang TK erst durchs ganze Haus muss.
Schlecht, wenn man das WZ als Durchgangszimmer plant. Mag ohne Kinder nicht gravierend sein, aber schön ist die Aufteilung nicht.
H
hanghaus202308.07.24 19:18Gibt es Abmessungen vom Grundstück und bestehenden Haus?
H
hanghaus202308.07.24 19:32Ist die Garage an der Grenze? Ist der laute Nachbar im Osten oder Westen?
ypg schrieb:
Was hat denn angesprochen? Welche Aktion von welchem Häuslebauer?
Wie ist der Originalgrundriss?Das war der Aktionsgrundriss von Öhaus.
Angesprochen hat uns der eigene Bereich mit Schlafzimmer/Ankleide/Badezimmer. Zusätzlich der überdachte Terrassenbereich, hier an den Wohnbereich angrenzend. Wobei wir auch überlegt hatten hier Wohnbereich und Küche zu tauschen. Sowie zwei weitere freie Zimmer.
Wo der Esstisch eingezeichnet ist, hatten wir den Bereich als frei, ich will nicht verschwendet sagen, betrachtet. Wie eingangs bereits erwähnt, nutzen wir das jetzige Esszimmer auch nicht.
ypg schrieb:
Welche Nachbarn auf welcher Seite?Es sind die Nachbarn auf der Westseite. Das Zeitfenster in dem mit laufendem Motor, drölftausend Mal Autotüren auf und zu geschlagen werden und die Kinder kreischen liegt zwischen 5:00 Uhr und 7:30 Uhr. Da das Bestandsgebäude die ältesten Fenster im jetzigen Schlafzimmer im OG zu der Seite hat (auch ein Grund für den Abriss) fanden wir die Verlegung in die Mitte sinnvoll. Zumal ich ja auch nie ausschließen kann, dass ich den gleichen Spass nochmal mit neuen Nachbarn auf der Ostseite habe. Im Wohnbereich, der im jetzigen Haus im EG zu der gleichen Seite liegt, höre wir die jypg schrieb:
Ja, ehrlich gesagt: das sieht man.Das hab ich nicht anders erwartet. Fenster hab ich nur irgendwo rein gemacht, damit der Raum überhaupt eins hat. Ich hab nicht geglaubt dass ich eine unentdeckte Inselbegabung habe, für etwas für das man mehrere Jahre studiert oder zumindest ne Ausbildung zum Bauzeichner macht.Unter Barrierearm hatten wir uns aktuell vorgestellt in hoffentlich mehr als 30 Jahre auch noch mit dem Rollator überall gut im Haus hin zu kommen. Die Bestandsimmobilie hat zum einen eine Treppe und zum anderen Türen mit gerade mal 75 cm Breite.
ypg schrieb:
Des Weiteren bekommt man durch Lage von einigen Türen das wenigste an Nutzfläche der Räume (mind. Küche, Büro, Ankleide). Maße funktionieren nicht in ihrem Nutzen (mind. TK, Ankleide)Kannst du das nochmal erläutern, das versteh ich tatsächlich gerade nicht. Danke.hanghaus2023 schrieb:
Ist die Garage an der Grenze?Die Garage ist an der Grundstücksgrenze im Osten.Zum Thema Zonierung gebe ich Euch komplett recht. Das haben wir aktuell nicht berücksichtigt. Das jetzige Wohnzimmer liegt auch in der gleichen Ecke mit Nord-West-Ausrichtung im EG. Generell kommt bei uns dazu, dass wir beide Gamer sind. Das heißt nach dem Abendessen sind wir in über 80% der Abende dann im Büro. Die übrigen 20 % sind wir dann im Wohnzimmer bzw. jetzt im Sommer im Garten.
hanghaus2023 schrieb:
Gibt es Abmessungen vom Grundstück und bestehenden Haus?Das Grundstück hat ca. 24mx75m. Das jetzige Haus müsste ich mal nachmessen.Danke auf jeden Fall schon mal für die Antworten
Ähnliche Themen