ᐅ Grundriss, 3D Bilder Stadtvilla 160m². Bitte um Feedback:)
Erstellt am: 08.06.19 13:44
Hallo liebe Forengemeinde,
meine Frau und ich planen in ein paar Monaten mit dem Beginn unseres Bauvorhabens. Hierbei handelt es sich um eine Stadtvilla mit ca. 160 m² Wohnfläche.
Das Grundstück (540m²) haben wir bereits erworben und befinden uns nun in der Planungsphase. Wir wollen gerne mit einem Generalunternehmer bauen und sind mit
unserem aktuellen eigentlich ganz zufrieden.
Nur bzgl. des Grundrisses sind wir uns einfach nicht ganz sicher, ob das so stimmig ist. Das ist unser erstes (und hoffentlich letztes) Bauvorhaben. Gerne würden wir ein
Feedback von vielleicht etwas erfahreren Leuten hören, die uns noch einige Tipps geben können. Vielen Dank schon mal im voraus!










meine Frau und ich planen in ein paar Monaten mit dem Beginn unseres Bauvorhabens. Hierbei handelt es sich um eine Stadtvilla mit ca. 160 m² Wohnfläche.
Das Grundstück (540m²) haben wir bereits erworben und befinden uns nun in der Planungsphase. Wir wollen gerne mit einem Generalunternehmer bauen und sind mit
unserem aktuellen eigentlich ganz zufrieden.
Nur bzgl. des Grundrisses sind wir uns einfach nicht ganz sicher, ob das so stimmig ist. Das ist unser erstes (und hoffentlich letztes) Bauvorhaben. Gerne würden wir ein
Feedback von vielleicht etwas erfahreren Leuten hören, die uns noch einige Tipps geben können. Vielen Dank schon mal im voraus!
Bitte den Fragebogen ausfüllen
https://www.hausbau-forum.de/threads/grundrissplanung-unbedingt-vor-Beitrag-Erstellung-lesen.11714/
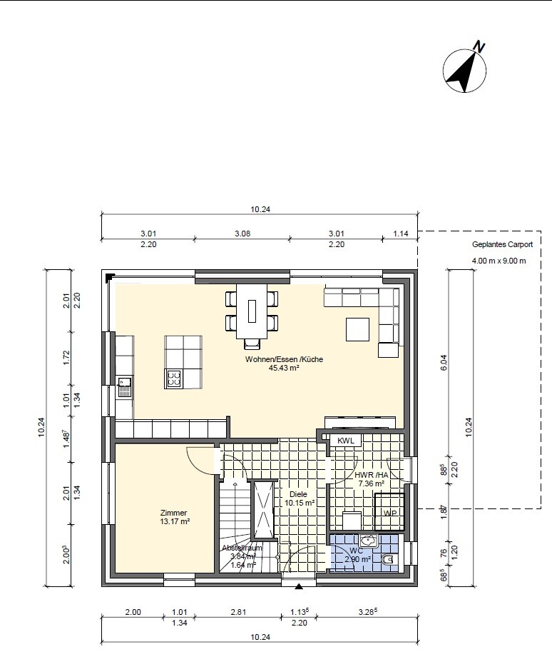
Der Essplatz ist zu schmal. Auf Höhe der Kücheninsel wird es eng.
Ankleide wirkt sehr schmal
Zeichnet unbedingt die richtigen Möbel im Maßstab ein.
Mir fehlt Abstellfläche
https://www.hausbau-forum.de/threads/grundrissplanung-unbedingt-vor-Beitrag-Erstellung-lesen.11714/
Der Essplatz ist zu schmal. Auf Höhe der Kücheninsel wird es eng.
Ankleide wirkt sehr schmal
Zeichnet unbedingt die richtigen Möbel im Maßstab ein.
Mir fehlt Abstellfläche
Ich finde die Konstellation im Koch/Wohnbereich ungünstig. Bin ein Freund freier, gerader Laufwege und um zur Terrasse zu kommen, muss man ganz schön herum tänzeln. Letztlich ist das aber nur ein Symptom, finde die Möblierung im Raum generell falsch. Würde für deutlich mehr Öffnung Richtung Westen sorgen und da nicht die Küche hinsetzen.
Oh sorry, das hatte ich übersehen. Hier der Fragebogen.
Bebauungsplan/Einschränkungen
Größe des Grundstücks 540m²
Hang nein
Anzahl Stellplatz 1
Geschossigkeit 2
Dachform Zeltdach
Stilrichtung modern
Anforderungen der Bauherren
Keller, Geschosse nein, 2
Anzahl der Personen, Alter 2, beide 32
Raumbedarf im EG, OG 80 , 80
Büro: Familiennutzung
offene Küche, Kochinsel offene Küche mit Kochinsel
Anzahl Essplätze 1
Kamin nein
Musik/Stereowand nein
Balkon, Dachterrasse nein
Garage, Carport Carport
Nutzgarten, Treibhaus nein
Hausentwurf
Von wem stammt die Planung:
-Planer eines Bauunternehmens ja
-Do-it-Yourself nein
Was gefällt nicht? Warum? Der Essbereich erscheint mir zu klein, ebenso wie die Wohnwand. Die Ausrichtung vom Garten ist Norden, sodass der Garten
seitlich gelegen ist
Preisschätzung lt Architekt/Planer: 368.000 inkl. Baunebenkosten
favorisierte Heiztechnik: Wärmepumpe
Wenn Ihr verzichten müsst, auf welche Details/Ausbauten
-könnt Ihr verzichten: ggf. könnte das Zimmer unten kleiner werden
-könnt Ihr nicht verzichten: offener Wohn/Essbereich
Danke erst mal für die schnelle Rückmeldung. Wie könnte man es schaffen, dass man den Essbereich etwas größer bekommt? Stellplatz ist auch so
ein Ding. Sollten wir uns von dem Wohnraum im EG verabschieden und dort ggf die Küche installieren?
Bebauungsplan/Einschränkungen
Größe des Grundstücks 540m²
Hang nein
Anzahl Stellplatz 1
Geschossigkeit 2
Dachform Zeltdach
Stilrichtung modern
Anforderungen der Bauherren
Keller, Geschosse nein, 2
Anzahl der Personen, Alter 2, beide 32
Raumbedarf im EG, OG 80 , 80
Büro: Familiennutzung
offene Küche, Kochinsel offene Küche mit Kochinsel
Anzahl Essplätze 1
Kamin nein
Musik/Stereowand nein
Balkon, Dachterrasse nein
Garage, Carport Carport
Nutzgarten, Treibhaus nein
Hausentwurf
Von wem stammt die Planung:
-Planer eines Bauunternehmens ja
-Do-it-Yourself nein
Was gefällt nicht? Warum? Der Essbereich erscheint mir zu klein, ebenso wie die Wohnwand. Die Ausrichtung vom Garten ist Norden, sodass der Garten
seitlich gelegen ist
Preisschätzung lt Architekt/Planer: 368.000 inkl. Baunebenkosten
favorisierte Heiztechnik: Wärmepumpe
Wenn Ihr verzichten müsst, auf welche Details/Ausbauten
-könnt Ihr verzichten: ggf. könnte das Zimmer unten kleiner werden
-könnt Ihr nicht verzichten: offener Wohn/Essbereich
Danke erst mal für die schnelle Rückmeldung. Wie könnte man es schaffen, dass man den Essbereich etwas größer bekommt? Stellplatz ist auch so
ein Ding. Sollten wir uns von dem Wohnraum im EG verabschieden und dort ggf die Küche installieren?
Ähnliche Themen