Hausbau - Ratgeber
Bauherrenhilfe
- Bauherrenhilfe vor Vertragsabschluss
-- Warum einen unabhängigen Baubetreuer?
-- Vertragsgrundlagen
-- Bausumme
-- Zahlungsplan zur Kostenkontrolle
-- Pflichten des Bauherren vor Vertragsabschluss
-- Unterlagen beim Hausbau vor Vertragsabschluss
- Bauherrenhilfe nach Vertragsabschluss
-- Bauantrag bei Behörden
-- Bau-Genehmigungsverfahren bei Baubehörden
-- Bauspezifische Versicherungen
-- Bauzeitenplan
-- Baubeginn - die Letzten Pflichten der Bauherrschaft
- Bauherrenhilfe während der Bauzeit
- Gewährleistungsansprüche
- Bauabnahme
Baufinanzierung
- Baufinanzierung - Allgemeine Fragen
- Kreditarten
- Kredit-Konditionen
- Bausparen
- Staatliche Förderungen
- Verkehrswert
- Haushaltsrechnung und Bonität
Hausbau Planung
- Haustypen
- Hausbau Vorbereitungsarbeiten
- Das Baugrundstück
- Baugrund beim Hausbau
- Baurecht
- Gebäudeschutz
- Erdarbeiten und Wasserhaltung
- Stützmauern
- Einfriedung
- Untergeschoss
- Kanalisation
- Tragende Elemente
- Nichttragende Innenwände
- Fundation / Fundament
- Deckenkonstruktionen
- Dächer
- Kaminanlagen
- Treppen Rampen Leitern
- Dachbeläge und Spengler
- Fenster
- Sonnen und Wetterschutz
- Aussenputze
- Einbauten, Küchen, Türen
- Bodenbeläge und Unterlagsböden
- Parkett
- Gips, Wand, Decke
Haustechnik und Energie
- Heiztechnik
- Lüftung und Klimatechnik
- Sanitärtechnik
- Elektrotechnik
- Erneuerbare Energie
Whirlpools / Jacuzzi
Hausbau Magazin
- Baufinanzierung trotz Krise?
- Das Blockhaus
- Moderne Dämmstoffe im Vergleich
- Erker Vor- und Nachteile
- Glasflächen beim Hausbau
- Günstig ein Haus Bauen
- Mediterraner Hausbaustil
- Mehrgenerationenhaus
- Moderne Architektur
- Gartengestaltung leicht gemacht
- Traditioneller Ziegelbau
- Villa als höchster Traum
- Im Eigenheim Ruhestand geniessen
- Altbau sanieren
- Kauf einer Holzgarage
- Immobilienmakler
- Arbeitshandschuhe für den Winter
- Zuhause verschönern
- Outdoor-Plissees
- Schlafzimmer planen
- Terrassenüberdachung
- Wohngebäudeversicherung
- Zaunarten und Eigenschaften
- Hauseingang gestalten
- Der perfekte Grundriss
- Sparsamer heizen im Altbau
- Einfamilienhaus smart finanzieren
- Planung einer PV-Anlage
- Neues Haus
- Immobilienfinanzierung
- Installation einer Photovoltaikanlage
- Asbest erkennen und entfernen
- Gartenpflege im Frühling – worauf achten
- Sauna im Fokus - Wellness zuhause
- Erfolgreich vermieten
- Die perfekte Winterbekleidung
- Das Niedrigenergiehaus
- Der April und seine Stürme
- Architektonische Vielfalt
- Ökologisch und nachhaltig bauen
- Das perfekte Schlafzimmer
- Nachhaltige Energieversorgung
- Zukunftsorientiert bauen
- Nachhaltigkeit beim Hausbau
- Tiny Houses
- Wärmepumpen als nachhaltige Heizvariante
- Maßgeschneiderten Kleiderschrank
- Der richtige Baukredit
- Ratgeber für erfolgreichen Hausbau
- Haus als Altersvorsorge
Do-it-yourself Anleitungen
- Verlegeanleitung für Bodenbeläge und Parkett
- Bodenbeläge und Parkett reinigen und pflegen
- Malerarbeiten am Haus
- Garten Tipps
- Umzug und Reinigung

ᐅ Grundriss 200qm mit integriertem Wintergarten und Galerie

Erstellt am: 24.04.15 23:53
M
merlin83
Y
ypg
25.04.15 11:03
so viel Wohnfläche... Aber wenn das 5te Kind da ist (also, wenn es gut läuft ), dann muss man Büro zum Kinderzimmer machen. Für Räume, die man braucht, wird es im Haus eng, dafür hat man (Re-)Präsentationsfläche im Überfluss. Galerie ist nett, aber ihr habt zu viel Ecken, die im normalen Leben mit gängigem Tagesablauf einfach nur verstauben. Bei so großer Wohnfläche könnte man eine funktionellere Küche planen und Flächen einplanen, die man ggf mit Trennwand umfunktionieren kann.
M
merlin83
25.04.15 11:34
ypg schrieb:
so viel Wohnfläche... Aber wenn das 5te Kind da ist (also, wenn es gut läuft ), dann muss man Büro zum Kinderzimmer machen. Für Räume, die man braucht, wird es im Haus eng, dafür hat man (Re-)Präsentationsfläche im Überfluss. Galerie ist nett, aber ihr habt zu viel Ecken, die im normalen Leben mit gängigem Tagesablauf einfach nur verstauben. Bei so großer Wohnfläche könnte man eine funktionellere Küche planen und Flächen einplanen, die man ggf mit Trennwand umfunktionieren kann.


Hallo ypg,

vielen Dank für Deinen Rat.

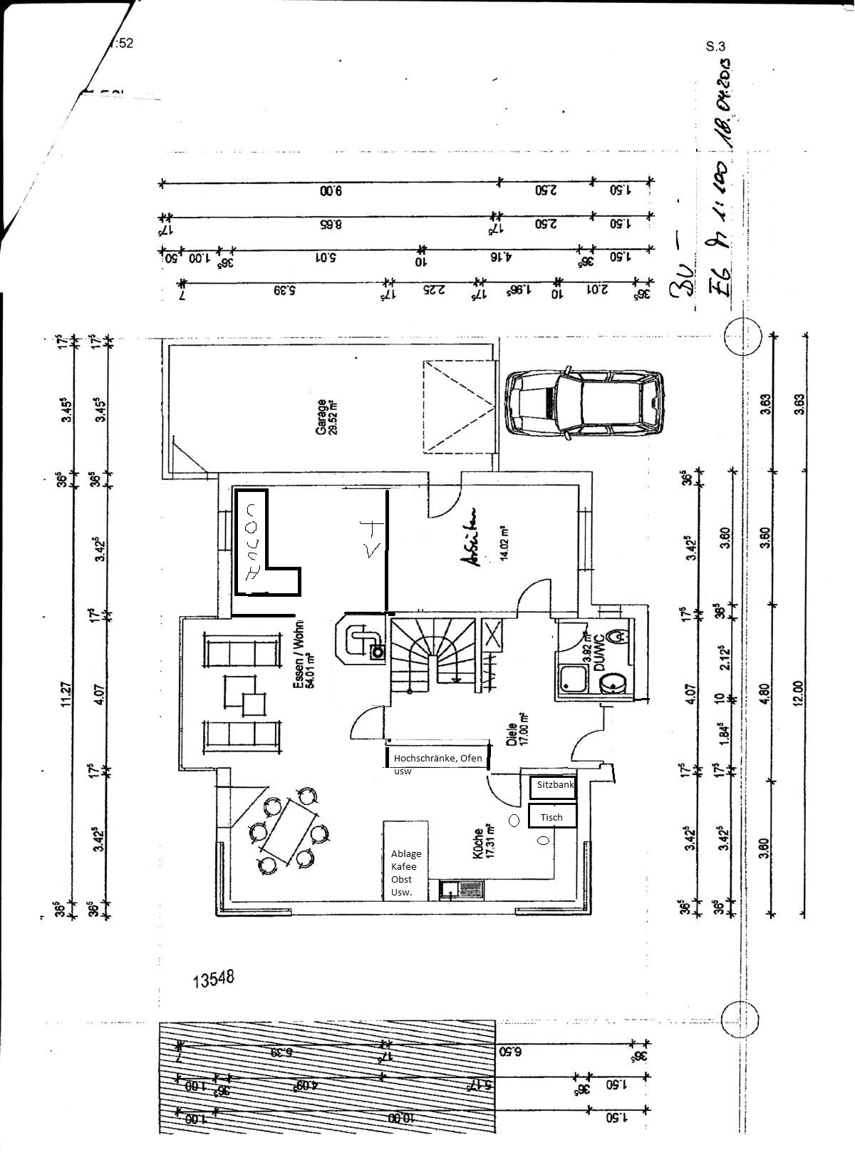
Würde das so schon besser funktionieren (siehe Anhang)? Oder muss das komplett neu?

Grundriss eines Einfamilienhauses mit Garage, Carport, Küche, Essen/Wohnen, Diele und Bad.
M
merlin83
25.04.15 11:36
ypg schrieb:
so viel Wohnfläche... Aber wenn das 5te Kind da ist (also, wenn es gut läuft ), dann muss man Büro zum Kinderzimmer machen. Für Räume, die man braucht, wird es im Haus eng, dafür hat man (Re-)Präsentationsfläche im Überfluss. Galerie ist nett, aber ihr habt zu viel Ecken, die im normalen Leben mit gängigem Tagesablauf einfach nur verstauben. Bei so großer Wohnfläche könnte man eine funktionellere Küche planen und Flächen einplanen, die man ggf mit Trennwand umfunktionieren kann.


Hallo ypg,

vielen Dank für Deinen Rat.

Würde das so schon besser funktionieren (siehe Anhang)? Oder muss das komplett neu?

Das Arbeits bzw. 3. Kinderzimmer wäre jetzt wohl bei knapp 18 qm. Den TV Bereich könnte ich mir vorstellen, könnte man mit einer Schiebetür schließen.
L
Legurit
25.04.15 12:24
Also wir haben 187 m² und 4 vollwertige (~16m²) Zimmer im OG und ein Elternschlafzimmer mit Bad-en-Suite (schreibt man das so? auf jeden fall mit kleinem separatem Duschbad nur aus dem Schlafzimmer zugänglich) im EG. Wohn-Ess-Kochbereich haben bei uns 55 m² (irgendwo muss man ja qm einsparen ). Wir haben sowohl im EG als auch im OG noch jeweils einen etwa 8 m² großen Hauswirtschaftsraum. Das Bad im OG ist bei uns allerdings kleiner.

Wenn das euren Ansprüchen entspricht und ihr das Geld dafür habt, finde ich den Grundriss schön. Ändern würde ich noch Ankleide und Schlafzimmer - lieber das Schlafzimmer als gefangenen Raum und die Ankleide als "Brücke" zum Bad. Das Ablauf Ankleide - Bad - Ankleide - Bad etc. wird öfter vorkommen als dass man noch mal ins Schlafzimmer muss. Darüber hinaus stört man dann auch nicht den, der noch im Schlafzimmer nächtigt, während einer sich fertig macht.
Thema is ggf. noch Laufwege Küche - wieso stehen denn da zweimal Stühle am Tresen? Macht das Ganze nicht funktionaler.
M
Manu1976
25.04.15 12:35
Schonmal in einem Haus mit Galerie gewohnt? Privatsphäre gibt es da nicht. Gerade mit Kinder. Essensgerüche, Gespräche, TV-Geräusche, Kindergeschrei, Kindermusik usw. werden 1a von unten nach oben und umgekehrt getragen. nicht zu vergessen, ihr sitzt gerade mit Gästen gemütlich im Wintergarten trinkt nen Schluck Wein und das evtl. pubertierende Kind muss dann im Schlafanzug, Shirt, mit Handtuch ganz schnell an der Galerie vorbei um ins Bad (oder andersrum) zu kommen.
Ich würde auf die Galerie verzichten und stattdessen irgendwie noch ein Kinderbad einplanen. Galerie mit Kinder ist verschwendeter Platz - meine Meinung.
Y
ypg
25.04.15 12:52
Küchenwege sind einfach zu lang. Ablage für Backblech neben dem Ofen fehlt zum Ablegen, übergießen dazu legen etc. Wo kommt der Herd hin? Wo ist dann die Arbeitsfläche? Auf jedem Fall funktioniert das Arbeitsdreieck Zubereiten, lagern (Kühlschrank) und spülen nicht. Tresen wird als Musecke hergehalten.
Gruß Yvonne
schlafzimmerankleidewohnflächekinderzimmerküchetresen