Hausbau - Ratgeber
Bauherrenhilfe
- Bauherrenhilfe vor Vertragsabschluss
-- Warum einen unabhängigen Baubetreuer?
-- Vertragsgrundlagen
-- Bausumme
-- Zahlungsplan zur Kostenkontrolle
-- Pflichten des Bauherren vor Vertragsabschluss
-- Unterlagen beim Hausbau vor Vertragsabschluss
- Bauherrenhilfe nach Vertragsabschluss
-- Bauantrag bei Behörden
-- Bau-Genehmigungsverfahren bei Baubehörden
-- Bauspezifische Versicherungen
-- Bauzeitenplan
-- Baubeginn - die Letzten Pflichten der Bauherrschaft
- Bauherrenhilfe während der Bauzeit
- Gewährleistungsansprüche
- Bauabnahme
Baufinanzierung
- Baufinanzierung - Allgemeine Fragen
- Kreditarten
- Kredit-Konditionen
- Bausparen
- Staatliche Förderungen
- Verkehrswert
- Haushaltsrechnung und Bonität
Hausbau Planung
- Haustypen
- Hausbau Vorbereitungsarbeiten
- Das Baugrundstück
- Baugrund beim Hausbau
- Baurecht
- Gebäudeschutz
- Erdarbeiten und Wasserhaltung
- Stützmauern
- Einfriedung
- Untergeschoss
- Kanalisation
- Tragende Elemente
- Nichttragende Innenwände
- Fundation / Fundament
- Deckenkonstruktionen
- Dächer
- Kaminanlagen
- Treppen Rampen Leitern
- Dachbeläge und Spengler
- Fenster
- Sonnen und Wetterschutz
- Aussenputze
- Einbauten, Küchen, Türen
- Bodenbeläge und Unterlagsböden
- Parkett
- Gips, Wand, Decke
Haustechnik und Energie
- Heiztechnik
- Lüftung und Klimatechnik
- Sanitärtechnik
- Elektrotechnik
- Erneuerbare Energie
Whirlpools / Jacuzzi
Hausbau Magazin
- Baufinanzierung trotz Krise?
- Das Blockhaus
- Moderne Dämmstoffe im Vergleich
- Erker Vor- und Nachteile
- Glasflächen beim Hausbau
- Günstig ein Haus Bauen
- Mediterraner Hausbaustil
- Mehrgenerationenhaus
- Moderne Architektur
- Gartengestaltung leicht gemacht
- Traditioneller Ziegelbau
- Villa als höchster Traum
- Im Eigenheim Ruhestand geniessen
- Altbau sanieren
- Kauf einer Holzgarage
- Immobilienmakler
- Arbeitshandschuhe für den Winter
- Zuhause verschönern
- Outdoor-Plissees
- Schlafzimmer planen
- Terrassenüberdachung
- Wohngebäudeversicherung
- Zaunarten und Eigenschaften
- Hauseingang gestalten
- Der perfekte Grundriss
- Sparsamer heizen im Altbau
- Einfamilienhaus smart finanzieren
- Planung einer PV-Anlage
- Neues Haus
- Immobilienfinanzierung
- Installation einer Photovoltaikanlage
- Asbest erkennen und entfernen
- Gartenpflege im Frühling – worauf achten
- Sauna im Fokus - Wellness zuhause
- Erfolgreich vermieten
- Die perfekte Winterbekleidung
- Das Niedrigenergiehaus
- Der April und seine Stürme
- Architektonische Vielfalt
- Ökologisch und nachhaltig bauen
- Das perfekte Schlafzimmer
- Nachhaltige Energieversorgung
- Zukunftsorientiert bauen
- Nachhaltigkeit beim Hausbau
- Tiny Houses
- Wärmepumpen als nachhaltige Heizvariante
- Maßgeschneiderten Kleiderschrank
- Der richtige Baukredit
- Ratgeber für erfolgreichen Hausbau
- Haus als Altersvorsorge
Do-it-yourself Anleitungen
- Verlegeanleitung für Bodenbeläge und Parkett
- Bodenbeläge und Parkett reinigen und pflegen
- Malerarbeiten am Haus
- Garten Tipps
- Umzug und Reinigung

ᐅ Grundriss 165 m² mit Keller eure Meinung


Erstellt am: 28.04.21 08:10

W
wolverine1987
28.04.21 08:10
Hallo!

- Was haltet ihr von unserem Plan (Carport steht im Norden) ?
- Was könnte man optimieren oder wo seht ihr Probleme?
- Wir wissen auch noch nicht ob wir vom Wohnbereich oder vom Vorhaus in das Obergeschoss gehen sollen? Was meint ihr dazu?


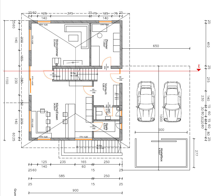
Grundriss eines Hauses mit Wohnzimmer, Küche/Essen, Bad, Diele, Treppe und Doppelgarage.

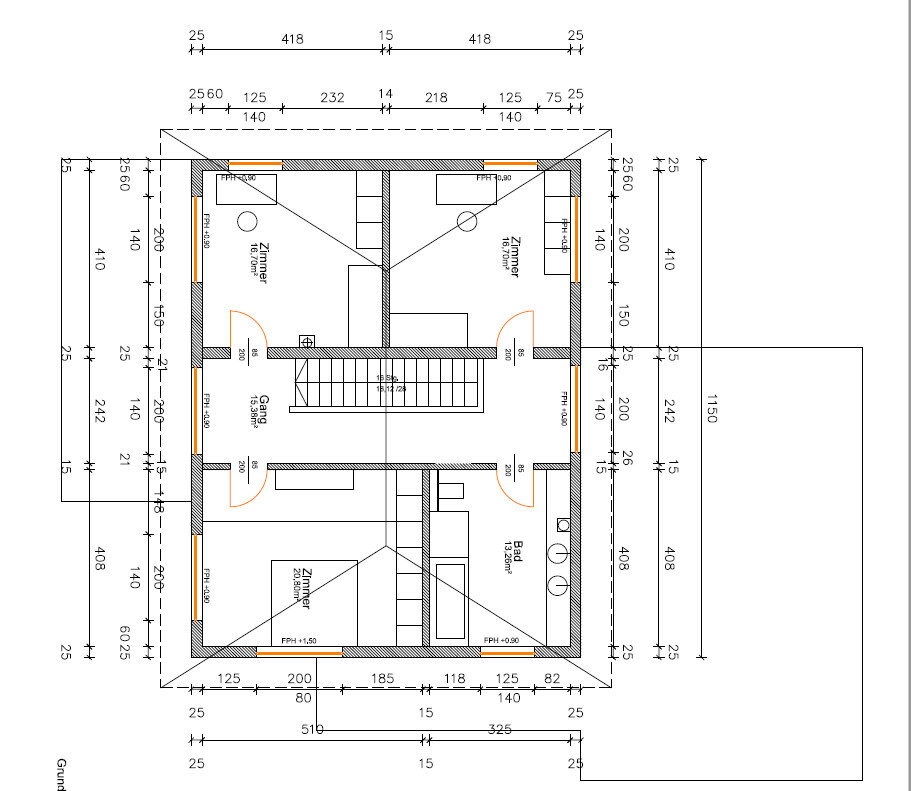
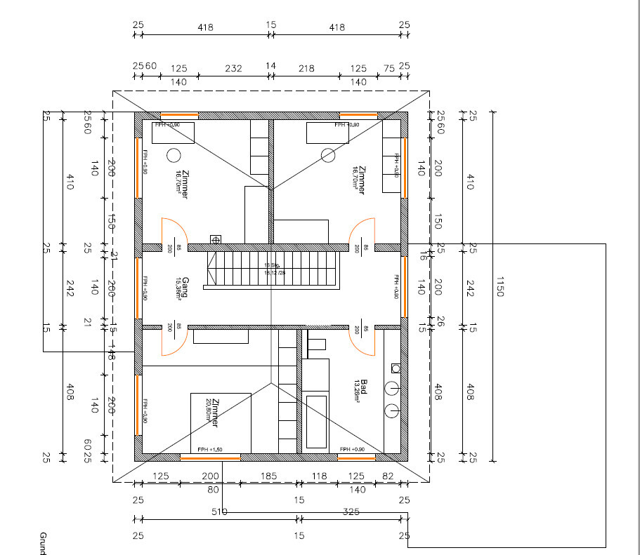
Grundriss eines Wohnhauses: Zimmer, Bad, Gang, Treppe, Türen.

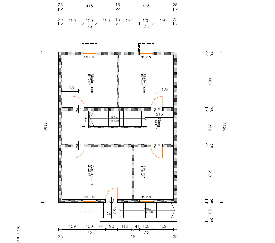
Grundriss einer Etage: zentrale Treppe, vier Räume (Abstell-/Technikräume) und Türen.




















Danke LG
M
majuhenema
28.04.21 08:59
Jetzt schreib ichs auch endlich mal:
Bitte den Fragebogen ausfüllen!

Auf die Schnelle:
- Ich mag die Aufteilung und die Größe
- Der Weg in die Speis ist zu weit und angesichts der Tatsache, dass ihr auch noch einen Keller habt, unpraktisch
- Ich finde die Kinderzimmer sehr großzügig. Hier würde ich schauen, ob ich das OG nicht etwas umgeplant bekomme, so dass ein Elterntrakt entsteht und den Kindern ein kleines Bad spendieren. Ich bin mir sicher, dass sichert mehr Familienharmonie als knapp 17m2 große Kinderzimmer.
- Aus offenslichtlichen Gründen würde ich auf keinen Fall die Treppe vom Wohnzimmer aus nach oben laufen lassen.

Edit:
majuhenema schrieb:

Jetzt schreib ichs auch endlich mal:
Bitte den Fragebogen ausfüllen!
haydee schrieb:

Bitte den Fragebogen ausfüllen
ᐅ Grundrissplanung - unbedingt vor Beitrag-Erstellung lesen! | Erfahrungen von Bauherren und Bauexperten (hausbau-forum.de)
haydee 🙁 😀
A
Alessandro
28.04.21 09:03
schöner Grundriss. Die Hochschränke der Küche würde ich auf jeden Fall einkoffern.
M
Myrna_Loy
28.04.21 09:36
Ich bin jetzt nicht davon so angetan, immer vom Eingang aus durch die Küche zu müssen, um ins Wohnzimmer zu kommen. Und den Eingang ins Haus nur von der Garagenecke aus ist auch nicht so chic... auch wenn da zwei 911er stehen 😉 - oder lese ich den Plan falsch.
vorhauskinderzimmerwohnzimmerkücheeingang