D
DragonyxXL02.10.15 11:16Liebe Leute,
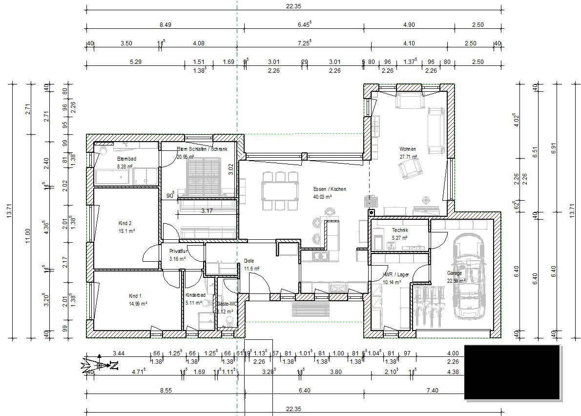
ich würde mich freuen, wenn ihr mal euren Senf zu unserem Grundriss dazugeben könntet. Wir wollen den Grundriss (zumindest die entscheidenden Aspekte, wie Außenwände) in den nächsten 2-3 Wochen festzurren. Die gepunktete Linie stellt den 70cm Dachüberstand dar.
Bebauungsplan/Einschränkungen
Größe des Grundstücks: 1350m²
Grundflächenzahl: 0,25
Geschossflächenzahl: 0,4
Baufenster von 15m mit 5m Abstand zur Straße
Anzahl Stellplatz: 2
Geschossigkeit: 2
Dachform: Satteldach
Ausrichtung. Hauses: SO (Skizzen sind genordet)
Maximale Höhen/Begrenzungen: Traufhöhe 4,5m
Anforderungen der Bauherren
Geschosse: 1
Anzahl der Personen: 2 Erwachsene (28-30J) + 2-3 Kinder (geplant)
Raumbedarf: 160m² Wohnfläche
Büro: Familiennutzung
Schlafgäste pro Jahr: 15-25
offene Küche ggf. mit Kochinsel
Anzahl Essplätze: 5-8
Kamin: ja
Doppelgarage mit Satteldach
eventuell Nutzgarten/Treibhaus
weitere Wünsche/Besonderheiten/
Tagesablauf: Wir sind beide voll berufstätig
Hausentwurf
Von wem stammt die Planung: Architektanwerter
Was gefällt besonders?: Raumausrichtung unter Einbeziehung des Grundstücks und unserer persönlichen Wünsche mit Ankleide/Hauswirtschaftsraum/Bäder nach NW und Wohnräumen Richtung SW/SO, Platz für große Familienversammlungen in WZ/Küche, der Wohn-/Essbereich als Lebensmittelpunkt und trotzdem die Möglichkeit sich zurückziehen zu können
Was gefällt nicht?: Die Offenheit zwischen Wohnzimmer und Flur und alternativ die Enge falls man dort eine Wand/Tür einbaut
Preisschätzung lt Architekt/Planer: 240.000€ ohne Garage
favorisierte Heiztechnik: Erdwärmepumpe mit Tiefenbohrung, Gemütlichkeitskamin
Wenn Ihr verzichten müsst, auf welche Details/Ausbauten
-könnt Ihr verzichten: KFW 55, vorübergehend auf Kamin, sehr breiten Dachüberstand
-könnt Ihr nicht verzichten:KfW 70, Wohnfläche


ich würde mich freuen, wenn ihr mal euren Senf zu unserem Grundriss dazugeben könntet. Wir wollen den Grundriss (zumindest die entscheidenden Aspekte, wie Außenwände) in den nächsten 2-3 Wochen festzurren. Die gepunktete Linie stellt den 70cm Dachüberstand dar.
Bebauungsplan/Einschränkungen
Größe des Grundstücks: 1350m²
Grundflächenzahl: 0,25
Geschossflächenzahl: 0,4
Baufenster von 15m mit 5m Abstand zur Straße
Anzahl Stellplatz: 2
Geschossigkeit: 2
Dachform: Satteldach
Ausrichtung. Hauses: SO (Skizzen sind genordet)
Maximale Höhen/Begrenzungen: Traufhöhe 4,5m
Anforderungen der Bauherren
Geschosse: 1
Anzahl der Personen: 2 Erwachsene (28-30J) + 2-3 Kinder (geplant)
Raumbedarf: 160m² Wohnfläche
Büro: Familiennutzung
Schlafgäste pro Jahr: 15-25
offene Küche ggf. mit Kochinsel
Anzahl Essplätze: 5-8
Kamin: ja
Doppelgarage mit Satteldach
eventuell Nutzgarten/Treibhaus
weitere Wünsche/Besonderheiten/
Tagesablauf: Wir sind beide voll berufstätig
Hausentwurf
Von wem stammt die Planung: Architektanwerter
Was gefällt besonders?: Raumausrichtung unter Einbeziehung des Grundstücks und unserer persönlichen Wünsche mit Ankleide/Hauswirtschaftsraum/Bäder nach NW und Wohnräumen Richtung SW/SO, Platz für große Familienversammlungen in WZ/Küche, der Wohn-/Essbereich als Lebensmittelpunkt und trotzdem die Möglichkeit sich zurückziehen zu können
Was gefällt nicht?: Die Offenheit zwischen Wohnzimmer und Flur und alternativ die Enge falls man dort eine Wand/Tür einbaut
Preisschätzung lt Architekt/Planer: 240.000€ ohne Garage
favorisierte Heiztechnik: Erdwärmepumpe mit Tiefenbohrung, Gemütlichkeitskamin
Wenn Ihr verzichten müsst, auf welche Details/Ausbauten
-könnt Ihr verzichten: KFW 55, vorübergehend auf Kamin, sehr breiten Dachüberstand
-könnt Ihr nicht verzichten:KfW 70, Wohnfläche
Da muß der Architektenanwärter aber noch einiges lernen.
- schränke vor Türen
- Küchenschränke unter 60cm Tiefe?
- Wo werden Duschen eingeplant?
- Türen werden nur teilweise eingezeichnet oder bewußt weggelassen(insbesondere an Problemstellen)
- Wohnzimmergestaltung fehlt
- was ist das für eine Trennung im Wohnzimmer zum Flur zwischen Wand und Schornstein? Ist das der Kamin oder Möbel?
- keine Möglichkeit für Nachttische neben Bett
- Ansichten fehlen
- Wo soll die Terrasse und der Zugang realisiert werden?
Die Sachen von hbf12 wiederhole ich an der Stelle nicht noch mal
Mir persönlich sagt der Grundriss nicht zu. Da gibt es mit Abstand sinnvollere Lösungen bei 160m²
- schränke vor Türen
- Küchenschränke unter 60cm Tiefe?
- Wo werden Duschen eingeplant?
- Türen werden nur teilweise eingezeichnet oder bewußt weggelassen(insbesondere an Problemstellen)
- Wohnzimmergestaltung fehlt
- was ist das für eine Trennung im Wohnzimmer zum Flur zwischen Wand und Schornstein? Ist das der Kamin oder Möbel?
- keine Möglichkeit für Nachttische neben Bett
- Ansichten fehlen
- Wo soll die Terrasse und der Zugang realisiert werden?
Die Sachen von hbf12 wiederhole ich an der Stelle nicht noch mal
Mir persönlich sagt der Grundriss nicht zu. Da gibt es mit Abstand sinnvollere Lösungen bei 160m²
S
Sebastian7902.10.15 12:38Fast alle Türen im Kleinformat - warum?
D
DragonyxXL02.10.15 13:49Danke schon mal für die hilfreichen Anmerkungen.
Ja, die schlafen im Büro. Die Stellung der Schränke ist dort nur exemplarisch. Da kommt eine Ausziehcouch rein.
Garderobe ist in der Tat ein Diskussionspunkt. Ein Teil könnte vermutlich im Windfang untergebracht werden. Zusätzlich könnten Kinderjacken auch im Kinderflur hängen. Dennoch scheint die Garderobenfläche knapp bemessen.
Wir hatten irgendwann schon mal über Tageslichtspots (reichen Tageslicht in den Innenraum durch) nachgedacht. Wäre das vielleicht etwas für den Kinderflur?
Der Zugang vom Windfang zum Wohnzimmer soll an "Weite" gewinnen durch den Tunnelkamin der sich geradezu befindet. Wir wollen ungern zusätzliche Flurfläche schaffen, weil man mit der ja eigentlich wenig anfangen kann.
Das "Spielen"-Areal ist kein designierter Spielplatz. In Verbindung mit der weiten Öffnung zum Wohnbereich soll somit der Flur eine zusätzliche Funktion (bspw. Spielen) erhalten. Ob man diesen Hauptverkehrsweg tatsächlich um nutzen kann ist eine gute Frage.
Schränke vor Türen sehe ich eigentlich nicht als problematisch an. Kommt wirklich auf die Konstruktion/Wirkung darauf an. Es entstehen dadurch Durchgänge die Platz sparen. Will man aber durch eine "Art" Schrank hindurchlaufen? Ich kann es mir vorstellen.
Die Küchensektion zum Flur hin können wir ja problemlos auf 60cm anpassen. Im Küchenstudio sind wir erst nächste Woche, aber eine teure Bastellösung macht natürlich wenig Sinn.
Im großen Bad befindet sich die Dusche hinter der Glaswand. Im Kinderbad irgendwo an der Kinderzimmerseite. Beide Badgrundrisse können durchaus angepasst werden.
Die einzige Tür die fehlt ist am Wohnzimmer oder sehe ich das falsch? Wohin die Türen vom Elternbad und Schlafzimmer aufgehen erscheint mir eher unproblematisch.
In der Wohnzimmergestaltung stecken wir gerade, abe man kann sich eine Sitzecke am Kamin vorstellen. Fernseher/Projektionsfläche vermutlich über dem Kaminfenster oder in der Ecke.
Die Trennung ist der Kamin. Aktuell als Tunnelkamin geplant. Beim Kaminbauer sind wir nächste Woche zum ersten Mal.
Nachttische sind überbewertet. Nee quatsch, auf der einen Seite passt einer hin, die andere Seite ist etwas dünn. Es wird keinen Schrank brauchen, aber wenigstens eine 20-30cm breite Abstellfläche. Da müssen wir wohl noch mal ran.
Ansichten kommen noch. An dieser Stelle vielleicht der nicht unwichtige Hinweis, dass wir den Architektenanwärter nicht über eine vertragliche Grundlage vergüten, sondern dass es sich um ein Familienmitglied handelt, welches sich im Lernprozess befindet und sehr viel seiner Freizeit opfert, um uns alle Wünsche recht zu machen. Ansichten, 3D-Modelle, Maßstabsmodelle aus Pappe/Styropor, etc. wird/wurde alles nach Bedarf angefertigt.
Die Terrasse ist noch nicht endgültig definiert, aber wird sich vermutlich hauptsächlich vor dem Wohnzimmer erstrecken. Der Zugang soll über eine Schiebetür beim Essbereich erfolgen. (aktuell noch ca. 3m, künftig eventuell 4m, 2m davon die Schiebetür und 2m festes Element)
Hättest du zufällig einen Link zu einer solchen sinnvolleren Lösung? Oder könntest du alternativ kurz beschreiben, was du mit sinnvoller meinst? Oder auch umgekehrt was an unserem Grundriss nicht sinnvoll ist, nun da ich für viele Aspekte auch Lösungsansätze aufgeführt habe?
hbf12 schrieb:
Hallo,
Folgendes ist mir aufgefallen:
Wo Schlafen die Schlafgäste? Im Büro?
Ich sehe keine Garderobe oder ist das das vor dem Kinderbad?
Dunkler enger Kinderflur.
Enger Wohnzimmereingang
Spielen im Hauptverkehrsweg?
Ja, die schlafen im Büro. Die Stellung der Schränke ist dort nur exemplarisch. Da kommt eine Ausziehcouch rein.
Garderobe ist in der Tat ein Diskussionspunkt. Ein Teil könnte vermutlich im Windfang untergebracht werden. Zusätzlich könnten Kinderjacken auch im Kinderflur hängen. Dennoch scheint die Garderobenfläche knapp bemessen.
Wir hatten irgendwann schon mal über Tageslichtspots (reichen Tageslicht in den Innenraum durch) nachgedacht. Wäre das vielleicht etwas für den Kinderflur?
Der Zugang vom Windfang zum Wohnzimmer soll an "Weite" gewinnen durch den Tunnelkamin der sich geradezu befindet. Wir wollen ungern zusätzliche Flurfläche schaffen, weil man mit der ja eigentlich wenig anfangen kann.
Das "Spielen"-Areal ist kein designierter Spielplatz. In Verbindung mit der weiten Öffnung zum Wohnbereich soll somit der Flur eine zusätzliche Funktion (bspw. Spielen) erhalten. Ob man diesen Hauptverkehrsweg tatsächlich um nutzen kann ist eine gute Frage.
Musketier schrieb:
Da muß der Architektenanwärter aber noch einiges lernen.
- Schränke vor Türen
- Küchenschränke unter 60cm Tiefe?
- Wo werden Duschen eingeplant?
- Türen werden nur teilweise eingezeichnet oder bewußt weggelassen(insbesondere an Problemstellen)
- Wohnzimmergestaltung fehlt
- was ist das für eine Trennung im Wohnzimmer zum Flur zwischen Wand und Schornstein? Ist das der Kamin oder Möbel?
- keine Möglichkeit für Nachttische neben Bett
- Ansichten fehlen
- Wo soll die Terrasse und der Zugang realisiert werden?
Die Sachen von hbf12 wiederhole ich an der Stelle nicht noch mal
Mir persönlich sagt der Grundriss nicht zu. Da gibt es mit Abstand sinnvollere Lösungen bei 160m²
Schränke vor Türen sehe ich eigentlich nicht als problematisch an. Kommt wirklich auf die Konstruktion/Wirkung darauf an. Es entstehen dadurch Durchgänge die Platz sparen. Will man aber durch eine "Art" Schrank hindurchlaufen? Ich kann es mir vorstellen.
Die Küchensektion zum Flur hin können wir ja problemlos auf 60cm anpassen. Im Küchenstudio sind wir erst nächste Woche, aber eine teure Bastellösung macht natürlich wenig Sinn.
Im großen Bad befindet sich die Dusche hinter der Glaswand. Im Kinderbad irgendwo an der Kinderzimmerseite. Beide Badgrundrisse können durchaus angepasst werden.
Die einzige Tür die fehlt ist am Wohnzimmer oder sehe ich das falsch? Wohin die Türen vom Elternbad und Schlafzimmer aufgehen erscheint mir eher unproblematisch.
In der Wohnzimmergestaltung stecken wir gerade, abe man kann sich eine Sitzecke am Kamin vorstellen. Fernseher/Projektionsfläche vermutlich über dem Kaminfenster oder in der Ecke.
Die Trennung ist der Kamin. Aktuell als Tunnelkamin geplant. Beim Kaminbauer sind wir nächste Woche zum ersten Mal.
Nachttische sind überbewertet. Nee quatsch, auf der einen Seite passt einer hin, die andere Seite ist etwas dünn. Es wird keinen Schrank brauchen, aber wenigstens eine 20-30cm breite Abstellfläche. Da müssen wir wohl noch mal ran.
Ansichten kommen noch. An dieser Stelle vielleicht der nicht unwichtige Hinweis, dass wir den Architektenanwärter nicht über eine vertragliche Grundlage vergüten, sondern dass es sich um ein Familienmitglied handelt, welches sich im Lernprozess befindet und sehr viel seiner Freizeit opfert, um uns alle Wünsche recht zu machen. Ansichten, 3D-Modelle, Maßstabsmodelle aus Pappe/Styropor, etc. wird/wurde alles nach Bedarf angefertigt.
Die Terrasse ist noch nicht endgültig definiert, aber wird sich vermutlich hauptsächlich vor dem Wohnzimmer erstrecken. Der Zugang soll über eine Schiebetür beim Essbereich erfolgen. (aktuell noch ca. 3m, künftig eventuell 4m, 2m davon die Schiebetür und 2m festes Element)
Hättest du zufällig einen Link zu einer solchen sinnvolleren Lösung? Oder könntest du alternativ kurz beschreiben, was du mit sinnvoller meinst? Oder auch umgekehrt was an unserem Grundriss nicht sinnvoll ist, nun da ich für viele Aspekte auch Lösungsansätze aufgeführt habe?
Sebastian79 schrieb:Gibt's eigentlich keinen Grund für. In der nächsten Revision werden wir das wohl umarbeiten. Der Platz dafür scheint mir überall zu sein.
Fast alle Türen im Kleinformat - warum?
Sinnvoll wären zunächst ein paar Maße, damit man die Raumgrößen besser abschätzen kann.
Türdurchgänge alle nur mit 76 cm halte ich auch für sehr knapp. Schon, wenn man mal mit Krücke laufen muss, weil man ein gebrochenes Bein oder so hat, wird das ungemütlich.
Dann macht es durchaus Sinn, Stellen, wo Schränke geplant sind, mit Tiefen von 65 cm zu planen. Dann passen da nämlich auch Schränke
Ein Kamin direkt ggü. der Eingangstür zum Hauptwohnraum, Abstand kein Meter, schafft meiner Meinung nach eher Enge als Weite.
Mangelnde Garderobe sehe ich auch. Und, da es keinen Keller geben wird, ihr die Kinder noch bekommen wollt, sollte man auch an so Sachen wie Kinderwagen, Sitzschale etc. denken. Auch denke ich, dass in den ersten Kinderjahren ein die Entfernung Eltern/Kinderschlafzimmer suboptimal ist.
------------
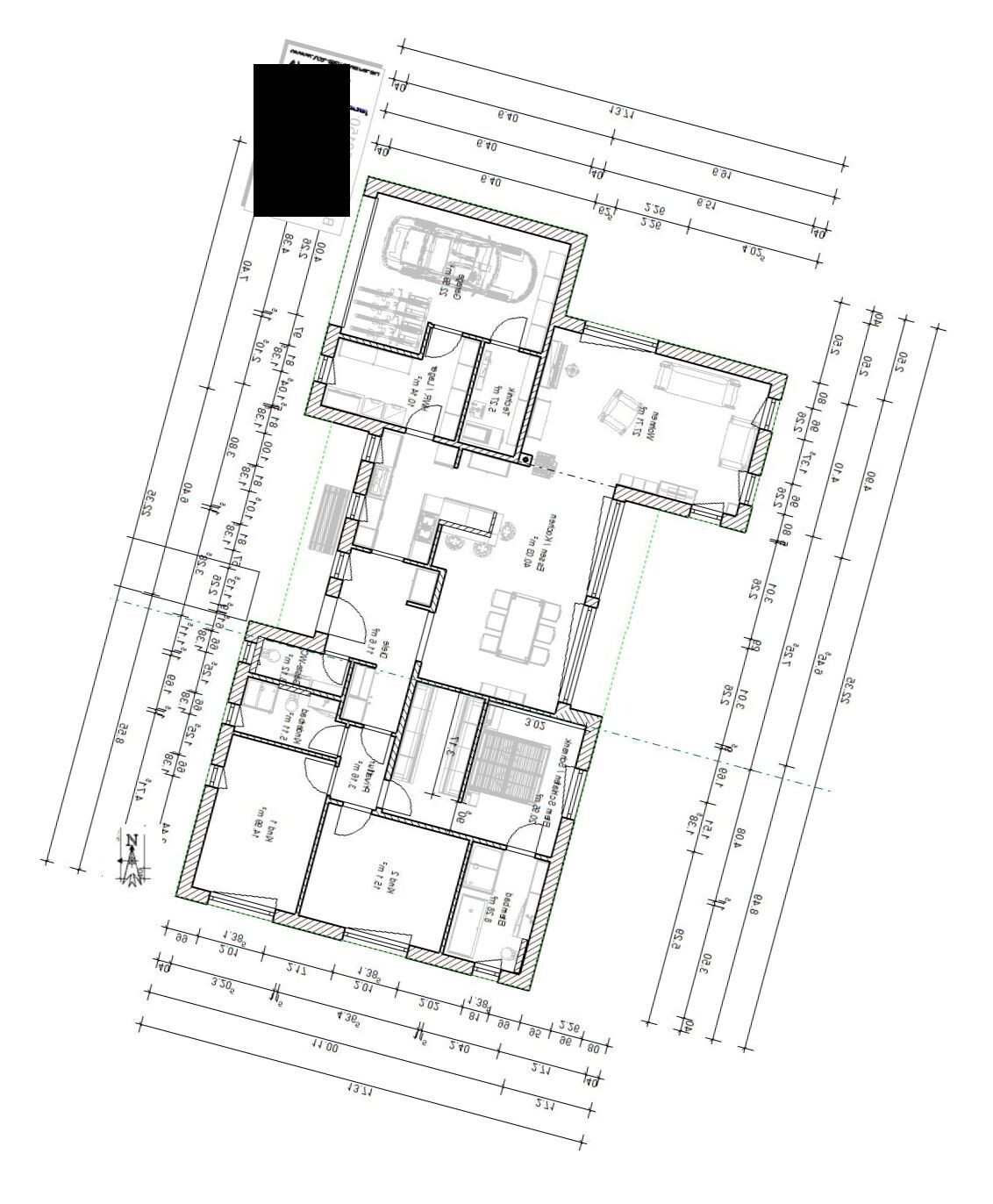
Ich habe mal für ein anderes Projekt einen Bungalow skizziert. Der könnte vom Grundprinzip ganz gut passen. Es fehlt halt das Gäste/Arbeitszimmer. Evtl. liesse sich da im / am Wohnbereich etwas ergänzen.
Damals war es eine andere Ausrichtung, zur Veranschaulichung für euer Grundstück habe ich es jetzt mal gespiegelt und leicht gedreht. Mit integrierter Garage, auch für Fahrräder, ist das eine Wohnfläche von 188 qm.
Zum besseren Erkennen, dann die Originaldateien ... Dach sollte man nicht so ernst nehmen, das kann ich einfach nicht







Türdurchgänge alle nur mit 76 cm halte ich auch für sehr knapp. Schon, wenn man mal mit Krücke laufen muss, weil man ein gebrochenes Bein oder so hat, wird das ungemütlich.
Dann macht es durchaus Sinn, Stellen, wo Schränke geplant sind, mit Tiefen von 65 cm zu planen. Dann passen da nämlich auch Schränke
Ein Kamin direkt ggü. der Eingangstür zum Hauptwohnraum, Abstand kein Meter, schafft meiner Meinung nach eher Enge als Weite.
Mangelnde Garderobe sehe ich auch. Und, da es keinen Keller geben wird, ihr die Kinder noch bekommen wollt, sollte man auch an so Sachen wie Kinderwagen, Sitzschale etc. denken. Auch denke ich, dass in den ersten Kinderjahren ein die Entfernung Eltern/Kinderschlafzimmer suboptimal ist.
------------
Ich habe mal für ein anderes Projekt einen Bungalow skizziert. Der könnte vom Grundprinzip ganz gut passen. Es fehlt halt das Gäste/Arbeitszimmer. Evtl. liesse sich da im / am Wohnbereich etwas ergänzen.
Damals war es eine andere Ausrichtung, zur Veranschaulichung für euer Grundstück habe ich es jetzt mal gespiegelt und leicht gedreht. Mit integrierter Garage, auch für Fahrräder, ist das eine Wohnfläche von 188 qm.
Zum besseren Erkennen, dann die Originaldateien ... Dach sollte man nicht so ernst nehmen, das kann ich einfach nicht
Ähnliche Themen