ᐅ Einfamilienhaus in Hanglage, Grundriss: Holzständerbau und Betonfertigkeller
Erstellt am: 15.04.15 00:28
U
Uwe82Hallo zusammen,
ich habe hier schon einiges mitgelesen und würde gern unsere aktuelle Bauplanung zur Diskussion stellen, eventuell ergeben sich noch ein paar gute Anregungen .
Erstmal zu den Eckdaten:
Größe des Grundstücks: 439m² in Hanglage
Grundflächenzahl: 0,35
Geschossflächenzahl: nicht vorgegeben
Baufenster ist in den Zeichnungen blau dargestellt
Anzahl Stellplatz: 2
Geschossigkeit: 2
Dachform: Satteldach mit 35°
Stilrichtung:
Ausrichtung: Südwest
Maximale Höhen/Begrenzungen: FH 8,25m/TH 4m
Hausentwurf
Von wem stammt die Planung: Architekt eines Bauunternehmens
favorisierte Heiztechnik: Luft-Wasser-Wärmepumpe mit Solarkollektoren
Aktueller Budget-Plan: 420.000€ all in
Haustyp: Holzständerbauweise und Betonfertigkeller
An der Außengestaltung können wir nicht mehr viel ändern, da der Bauantrag bereits gestellt wurde, aber das passt für uns auch so. Der Hausgrundriss gefällt uns grundsätzlich auch so, allerdings werden wir folgende Änderungen vornehmen bzw. haben noch offene Punkte:

ich habe hier schon einiges mitgelesen und würde gern unsere aktuelle Bauplanung zur Diskussion stellen, eventuell ergeben sich noch ein paar gute Anregungen .
Erstmal zu den Eckdaten:
Größe des Grundstücks: 439m² in Hanglage
Grundflächenzahl: 0,35
Geschossflächenzahl: nicht vorgegeben
Baufenster ist in den Zeichnungen blau dargestellt
Anzahl Stellplatz: 2
Geschossigkeit: 2
Dachform: Satteldach mit 35°
Stilrichtung:
Ausrichtung: Südwest
Maximale Höhen/Begrenzungen: FH 8,25m/TH 4m
Hausentwurf
Von wem stammt die Planung: Architekt eines Bauunternehmens
favorisierte Heiztechnik: Luft-Wasser-Wärmepumpe mit Solarkollektoren
Aktueller Budget-Plan: 420.000€ all in
Haustyp: Holzständerbauweise und Betonfertigkeller
An der Außengestaltung können wir nicht mehr viel ändern, da der Bauantrag bereits gestellt wurde, aber das passt für uns auch so. Der Hausgrundriss gefällt uns grundsätzlich auch so, allerdings werden wir folgende Änderungen vornehmen bzw. haben noch offene Punkte:
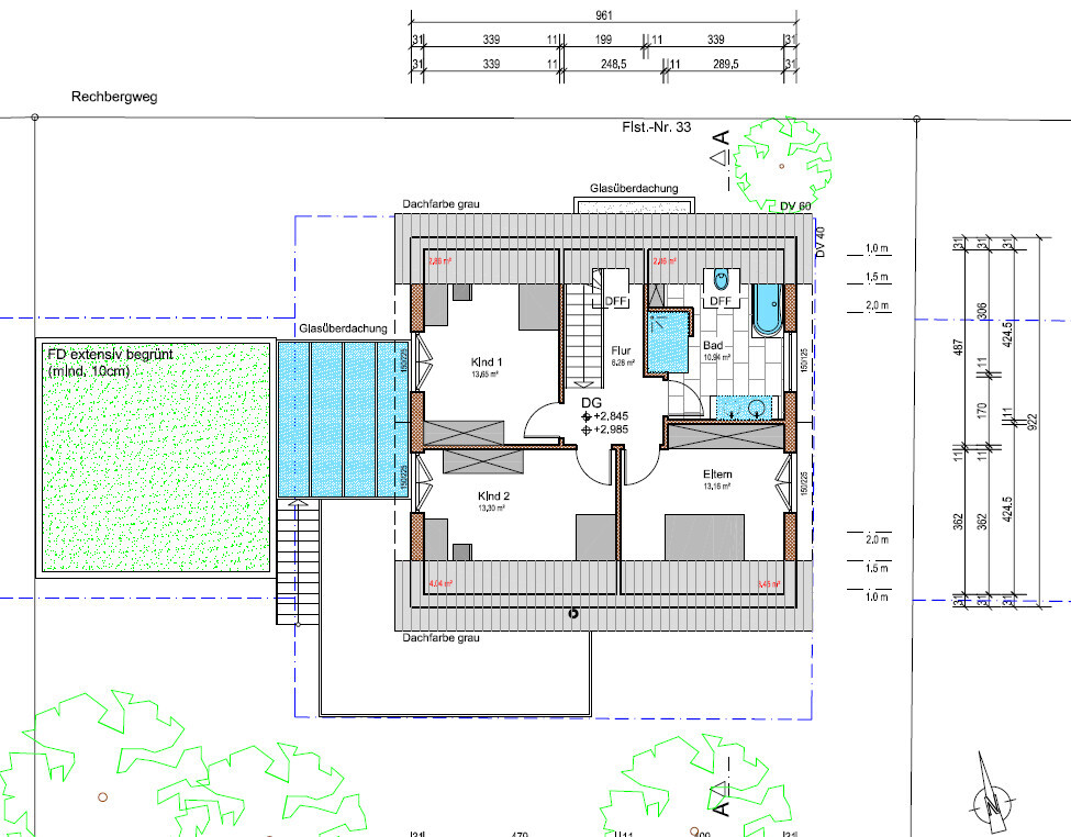
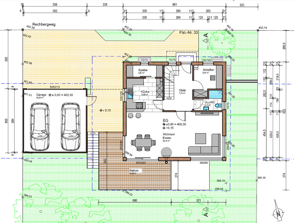
- Technikraum im UG ist wahrscheinlich etwas klein. Wir könnten das Bad noch etwas verkleinern und nach Süden schieben um etwa 3,5m Wandfläche zu bekommen. Hintergrund: Da kommt eventuell noch eine Kontrollierte-Wohnraumlüftung rein, das ist aber noch offen.
- Im EG-Bad kommt die Dusche weg, die brauchen wir dort nicht, weil im Büro sowieso kein Platz für eine Gästecouch ist
- Für die Küche überlegen wir noch die rechte Wand 40cm nach unten zu verlängern in den Wohnraum hinein, um für die Küche mehr Platz zu schaffen
- Im OG-Schlafzimmer hätten wir ursprünglich gerne einen begehbaren Kleiderschrank gehabt, aber daraus wird wohl nichts bei den Außenmaßen
- Das Bad würden wir gern noch umgestalten: Die Dusche etwas kleiner, darüber dann die Toilette und die Badewanne 45° unter das Doppelflügelfenster, denn auf der Toilette habe ich von dem Doppelflügelfenster nichts *g*
- Die Fenster im Wohnraum werden wohl von 80 auf 120cm Höhe vergrößert
Ich finde den Grundriss nicht schlecht.
Mich stören auf den ersten Blick nur 3 Dinge.
- Ihr habt keine Garderobe bzw. keinen Platz um eine zu stellen
- Die Speisekammer ist verschwendeter Platz. Fast nur Wegfläche und fast kein Platz irgendwas zu stellen.
- Die Tür vom Bad ins Gästezimmer würde ich weglassen
Mich stören auf den ersten Blick nur 3 Dinge.
- Ihr habt keine Garderobe bzw. keinen Platz um eine zu stellen
- Die Speisekammer ist verschwendeter Platz. Fast nur Wegfläche und fast kein Platz irgendwas zu stellen.
- Die Tür vom Bad ins Gästezimmer würde ich weglassen
Ja, das mit der Garderobe ist richtig. Wir hatten uns überlegt, da wir die Dusche aus dem Bad entfernen, die Toilette zu verkleinern: Die Wand mit der Tür ziehen wir etwa 80cm nach rechts, die Tür wird nach außen öffnend. Diese Wand führen wir im Arbeitszimmer weiter bis zu dessen Tür, es geht also ein Teil des jetzt eingezeichneten Schranks weg. Und genau an diese Stelle kommt eine kleine Garderobe. Eine andere Lösung hatte ich bisher nicht.
Speise: In der aktuellen Wohnung haben das ähnlich, da ist es sogar noch enger. Ich würde links und rechts 80cm-Regale hinmachen und die Verkehrsfläche wird sowieso eingeschränkt durch Putzsachen, Staubsauger, Gelber Sack usw.. Ganz ohne die Speise würde ich nicht wollen, aber die Küche verkleinern wäre auch wieder nichts .
Ach ja, das hatte ich vergessen zu schreiben: Die Türen im Keller zwischen Gast und Bad, Gast und Hobby werden erst mal zu gemacht. Wir hatten uns überlegt vorzusehen später aus den drei Zimmern eine Einliegerwohnung zu machen. Wir sind inzwischen aber eher davon abgekommen. Die Türen kann man aber ignorieren
Vielen Dank schon mal.
Speise: In der aktuellen Wohnung haben das ähnlich, da ist es sogar noch enger. Ich würde links und rechts 80cm-Regale hinmachen und die Verkehrsfläche wird sowieso eingeschränkt durch Putzsachen, Staubsauger, Gelber Sack usw.. Ganz ohne die Speise würde ich nicht wollen, aber die Küche verkleinern wäre auch wieder nichts .
Ach ja, das hatte ich vergessen zu schreiben: Die Türen im Keller zwischen Gast und Bad, Gast und Hobby werden erst mal zu gemacht. Wir hatten uns überlegt vorzusehen später aus den drei Zimmern eine Einliegerwohnung zu machen. Wir sind inzwischen aber eher davon abgekommen. Die Türen kann man aber ignorieren
Vielen Dank schon mal.
Generell finde ich es auch charmant. WC ist m.E. zu schmal mit 1,14 für ein so ausgerichtetes Waschbecken. Kopfende Bett bei 1m wird evtl. nicht funktionieren bzw. ihr haut euch den Kopf an
Tür zwischen Gast und WC würde ich auch entfernen. Speis finde ich eigentlich okay (wenn man eine braucht)
Unklar ob Luft-Wasser-Wärmepumpe sein muss - aber gut.
Tür zwischen Gast und WC würde ich auch entfernen. Speis finde ich eigentlich okay (wenn man eine braucht)
Unklar ob Luft-Wasser-Wärmepumpe sein muss - aber gut.
Guter Hinweis: Das Waschbecken machen wir wahrscheinlich sehr schmal, habe da bei Bekannten schon sehr charmante Lösungen gesehen. Ich möchte halt nur wegen dem WC nicht im Wohnzimmer und Arbeitszimmer noch mehr Platz verlieren. Wir nutzen mit dem Balkon schon die komplette Länge des Baufensters aus, das Grundstück ist halt nicht riesig (aber trotzdem teuer ).
Das Kopfende mit dem Bett klappt. Wir haben momentan das Bett an einem 80cm-Kniestock, da ist das eine Verbesserung . Aber mehr Kniestock geht nicht, weil Traufhöhe festgeschrieben ist und wir um 20cm raus zu holen bereits das Haus um 20cm "tiefergelegt" haben.
Was wäre denn die Alternative als Heizsystem? Gas gibt es bei uns nicht, einen Tank möchte ich nicht (also kein Öl, Flüssiggas, ...) und bei Pellets bin ich skeptisch was die langfristige Entwicklung angeht und habe zudem wieder einen Tank.
Das Kopfende mit dem Bett klappt. Wir haben momentan das Bett an einem 80cm-Kniestock, da ist das eine Verbesserung . Aber mehr Kniestock geht nicht, weil Traufhöhe festgeschrieben ist und wir um 20cm raus zu holen bereits das Haus um 20cm "tiefergelegt" haben.
Was wäre denn die Alternative als Heizsystem? Gas gibt es bei uns nicht, einen Tank möchte ich nicht (also kein Öl, Flüssiggas, ...) und bei Pellets bin ich skeptisch was die langfristige Entwicklung angeht und habe zudem wieder einen Tank.
Dann bleibt nur die Bohrung Erkundigt euch mal nach den Bodenverhältnissen bei euch (wie viel W/m es da gibt) - mit der neuen Förderung (4,5 T€ für WPs mit einer Jahresarbeitszahl > 4.5) könnte sich das eher lohnen als die Luft-Wasser-Wärmepumpe.
Klinge fast schon wie ein Sole-Wasser-Wärmepumpe-Verkäufer aber nee, macht ggf. wirklich mehr Sinn.
Klinge fast schon wie ein Sole-Wasser-Wärmepumpe-Verkäufer aber nee, macht ggf. wirklich mehr Sinn.
Ähnliche Themen