Hallo zusammen, wir meine Frau und ich haben vor ein Haus zu bauen.
Wir haben nun den ersten entwurf vom Architekt bekommen und sind schon sehr zufrieden.
Zu verbessern wird es aber bestimmt immer was geben.
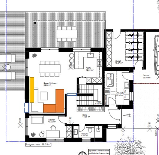
Mit der Garage/Carport lösung sind wir uns nicht ganz glüclklich hier hoffe ich auf noch ein paar Ideen.
Leider ist der Plan ohne Maße "erster Plan ist immer ohne Maße" bei diesem Architekt
Bebauungsplan/Einschränkungen
Größe des Grundstücks: 597qm
Hang: leicht abfallend nach Norden max. 1,5M auf 25m länge
Grundflächenzahl: 0,4
Geschossflächenzahl: 0,8
Baufenster, Baulinie und -grenze: Siehe Plan
Randbebauung
Anzahl Stellplatz: pro Wohneinheit 1,5
Geschossigkeit: 2
Dachform: Satteldach zwischen 20-30°
Stilrichtung
Ausrichtung: Fürst ist Ost-West Ausrichtung
Maximale Höhen/Begrenzungen maximale Höhe 9 meter
weitere Vorgaben. Pflanze einen Baum
Anforderungen der Bauherren
Stilrichtung, Dachform, Gebäudetyp: Holzständerbauweise
Keller, Geschosse 2
Anzahl der Personen, Alter : 4-5 (Aktuell 3/ 26/26/1Monat)
Raumbedarf im EG, OG: Insgesamt max. 160qm für L-Bank Förderung
Büro: Familiennutzung oder Homeoffice? (Spielzimmer für Kinder/ anfänglich Home Office bei einem Kind)
Schlafgäste pro Jahr: so gut wie keine
offene oder geschlossene Architektur: Offener Bereich mit Küche Essen Wohnen
konservativ oder moderne Bauweise
offene Küche, Kochinsel: U-Küche
Anzahl Essplätze: Mindestens 6 besser 8-10
Kamin: Nein
Musik/Stereowand: Wohnwand mit Fernseher
Garage, Carport : Abstellraum für Fahrräder usw.
Hausentwurf
Von wem stammt die Planung:
-Architekt
Was gefällt besonders? Warum? Die Ansicht von Außen ist sehr gelungen, im Norden der eingangs Bereich mit der Holzvertäfelung lockert es auf. Großer Flur zum ankommen/ Podest Treppe/ wenn nötig 3 Kinderzimmer (mit unten)
Was gefällt nicht? Warum? Bad im EG Dusche mit waschbecken tauschen/ Wir sind uns noch nicht sicher bei der Carportlösung/ Im OG kommt noch eine Tür von ankleide ins Schlafzimmer.
Preisschätzung lt Architekt/Planer: 650.000€
Persönliches Preislimit fürs Haus, inkl. Ausstattung: 750.000€ mit Grundstück
favorisierte Heiztechnik: Luftwärmepumpe und Solar/Speicher (KFW40+)
Wenn Ihr verzichten müsst, auf welche Details/Ausbauten
-könnt Ihr verzichten:
-könnt Ihr nicht verzichten:
Warum ist der Entwurf so geworden, wie er jetzt ist? ZB
Entsprechende/Welche Wünsche wurden vom Architekten umgesetzt?
Unsere Wünsche wurden vom Architekten umgesetzt.
Küche Wohnen Essen in L Form/ Möglichkeit für 3 Kinder
Was macht ihn in Euren Augen besonders gut oder schlecht?
Viel Stauraum auch ohne Keller
Was ist die wichtigste/grundlegende Frage zum Grundriss in 130 Zeichen zusammengefasst?
Was würde euch noch bei dem Grundriss stören.
Ist noch irgendwo Platz verschenkt.
Sind irgendwelche Kostentreiber welche auch weggelassen werden könnten.
Vielen dank schon einmal!



Wir haben nun den ersten entwurf vom Architekt bekommen und sind schon sehr zufrieden.
Zu verbessern wird es aber bestimmt immer was geben.
Mit der Garage/Carport lösung sind wir uns nicht ganz glüclklich hier hoffe ich auf noch ein paar Ideen.
Leider ist der Plan ohne Maße "erster Plan ist immer ohne Maße" bei diesem Architekt
Bebauungsplan/Einschränkungen
Größe des Grundstücks: 597qm
Hang: leicht abfallend nach Norden max. 1,5M auf 25m länge
Grundflächenzahl: 0,4
Geschossflächenzahl: 0,8
Baufenster, Baulinie und -grenze: Siehe Plan
Randbebauung
Anzahl Stellplatz: pro Wohneinheit 1,5
Geschossigkeit: 2
Dachform: Satteldach zwischen 20-30°
Stilrichtung
Ausrichtung: Fürst ist Ost-West Ausrichtung
Maximale Höhen/Begrenzungen maximale Höhe 9 meter
weitere Vorgaben. Pflanze einen Baum
Anforderungen der Bauherren
Stilrichtung, Dachform, Gebäudetyp: Holzständerbauweise
Keller, Geschosse 2
Anzahl der Personen, Alter : 4-5 (Aktuell 3/ 26/26/1Monat)
Raumbedarf im EG, OG: Insgesamt max. 160qm für L-Bank Förderung
Büro: Familiennutzung oder Homeoffice? (Spielzimmer für Kinder/ anfänglich Home Office bei einem Kind)
Schlafgäste pro Jahr: so gut wie keine
offene oder geschlossene Architektur: Offener Bereich mit Küche Essen Wohnen
konservativ oder moderne Bauweise
offene Küche, Kochinsel: U-Küche
Anzahl Essplätze: Mindestens 6 besser 8-10
Kamin: Nein
Musik/Stereowand: Wohnwand mit Fernseher
Garage, Carport : Abstellraum für Fahrräder usw.
Hausentwurf
Von wem stammt die Planung:
-Architekt
Was gefällt besonders? Warum? Die Ansicht von Außen ist sehr gelungen, im Norden der eingangs Bereich mit der Holzvertäfelung lockert es auf. Großer Flur zum ankommen/ Podest Treppe/ wenn nötig 3 Kinderzimmer (mit unten)
Was gefällt nicht? Warum? Bad im EG Dusche mit waschbecken tauschen/ Wir sind uns noch nicht sicher bei der Carportlösung/ Im OG kommt noch eine Tür von ankleide ins Schlafzimmer.
Preisschätzung lt Architekt/Planer: 650.000€
Persönliches Preislimit fürs Haus, inkl. Ausstattung: 750.000€ mit Grundstück
favorisierte Heiztechnik: Luftwärmepumpe und Solar/Speicher (KFW40+)
Wenn Ihr verzichten müsst, auf welche Details/Ausbauten
-könnt Ihr verzichten:
-könnt Ihr nicht verzichten:
Warum ist der Entwurf so geworden, wie er jetzt ist? ZB
Entsprechende/Welche Wünsche wurden vom Architekten umgesetzt?
Unsere Wünsche wurden vom Architekten umgesetzt.
Küche Wohnen Essen in L Form/ Möglichkeit für 3 Kinder
Was macht ihn in Euren Augen besonders gut oder schlecht?
Viel Stauraum auch ohne Keller
Was ist die wichtigste/grundlegende Frage zum Grundriss in 130 Zeichen zusammengefasst?
Was würde euch noch bei dem Grundriss stören.
Ist noch irgendwo Platz verschenkt.
Sind irgendwelche Kostentreiber welche auch weggelassen werden könnten.
Vielen dank schon einmal!
B
Benzeller22.06.22 12:55Vielen dank schon mal zu den anregungen/verbesserungen.
Bei der Garage wissen wir halt selber noch nicht genau was wir wollen. Als änderung für den nächsten Plan haben wir nun neben dem Abstellraum eine Garage hinzugefügt, und dann noch ein Carport welches auf 3 Säulen stehen soll ohen Rückwand.
Unters Dach soll eine Bühne kommen.
Treppe haätte ich gerne als Podesttreppe (war auch so im Elternhaus)
Ankleide: Wir haben unsere schränke aktuell vermessen und kommen gerade mal auf 3,5M Schrank in denen Wir alles haben was wir zum Anziehen haben deshalb sollte des mit der Türe noch funktionieren.
Die Fassade will meine Frau so ihr ist es wichtig das alles symmetrisch ist.
Zu der Vertäfelung die soll laut Architekt ca. 20.000 € kosten
Bei der Garage wissen wir halt selber noch nicht genau was wir wollen. Als änderung für den nächsten Plan haben wir nun neben dem Abstellraum eine Garage hinzugefügt, und dann noch ein Carport welches auf 3 Säulen stehen soll ohen Rückwand.
Unters Dach soll eine Bühne kommen.
Treppe haätte ich gerne als Podesttreppe (war auch so im Elternhaus)
ypg schrieb:
- Ein großes Haus, aber keine Möglichkeit bzw Option, mal einen Side By Side Kühlschrank zu stellen, finde ich auch nicht optimal
-Tür Ankleide/Schlafzimmer verhaut Dir die Ankleide.
- wenig Abstellfläche
- sehr anstrengende Fassade für mich (mit den scheinbaren Balken, zu viel Gleichheit, keinerlei Spannung)
Ich schau mir das mal heute Abend in Ruhe an… so jetzt kann ich mangels Auflösung noch nicht mal die Qm erkennen.
Ankleide: Wir haben unsere schränke aktuell vermessen und kommen gerade mal auf 3,5M Schrank in denen Wir alles haben was wir zum Anziehen haben deshalb sollte des mit der Türe noch funktionieren.
Die Fassade will meine Frau so ihr ist es wichtig das alles symmetrisch ist.
K a t j a schrieb:
Davon abgesehen sind die vielen Holzvertäfelungen recht hübsch - je nach Geschmack, aber ich würde gern mal wissen, was die kosten sollen. Schon mal gefragt? Wenn die aus Kostengründen wegfallen, ist die Optik nur noch halb so schick.
Zu der Vertäfelung die soll laut Architekt ca. 20.000 € kosten
A
allstar8322.06.22 14:54Finde es ganz gut. Bekannte haben ähnlichen Grundriss. Folgende Punkte ggfs. Mal durchdenken:
Spüle Küche und Türe:
Aktuell müsst ihr über Eck an die Schränke zur Terrasse. Wenn ihr keine U Küche sondern eine zweiteilige Küche macht habt ihr keine Ecken und kommt super an alles hin. Des Weiteren könntet ihr von Küche eine Türe zur Terrasse raus machen. Find ich super. Haben wir selbst. Auch zum Lüften sehr gut.
Fenster Lichtachse:
Ggfs. könnte mit einem Fenster gen Terrasse der Flur Richtung Wohnzimmer eine Lichtachse werden sofern gewünscht.
Türe Terrasse Schuppen:
Warum geht die Türe von Schuppen nicht Gen Terrasse raus?
Eingangstüre:
Warum ist der Anschlag der Türe nicht andersrum?
Türe Schuppen:
Mit Fahrrad ist die Türe echt klein vermutlich. Wir haben eine Schiebetür das wird jedoch bei euch etwas schwer zu realisieren.
Küche Türe Vorrat:
Mit der versteckten Türe in Küche fällt halt auch ein Stauraum weg. Ein Zugang über eine Türe im Flur wäre ggfs. ja auch gut möglich

Spüle Küche und Türe:
Aktuell müsst ihr über Eck an die Schränke zur Terrasse. Wenn ihr keine U Küche sondern eine zweiteilige Küche macht habt ihr keine Ecken und kommt super an alles hin. Des Weiteren könntet ihr von Küche eine Türe zur Terrasse raus machen. Find ich super. Haben wir selbst. Auch zum Lüften sehr gut.
Fenster Lichtachse:
Ggfs. könnte mit einem Fenster gen Terrasse der Flur Richtung Wohnzimmer eine Lichtachse werden sofern gewünscht.
Türe Terrasse Schuppen:
Warum geht die Türe von Schuppen nicht Gen Terrasse raus?
Eingangstüre:
Warum ist der Anschlag der Türe nicht andersrum?
Türe Schuppen:
Mit Fahrrad ist die Türe echt klein vermutlich. Wir haben eine Schiebetür das wird jedoch bei euch etwas schwer zu realisieren.
Küche Türe Vorrat:
Mit der versteckten Türe in Küche fällt halt auch ein Stauraum weg. Ein Zugang über eine Türe im Flur wäre ggfs. ja auch gut möglich
Insgesamt ein schöner erster Entwurf. Da hat sich der Architekt auch mal Gedanken um das Grundstück gemacht.
Die schon angemerkten Kommentare zum langen Schlauch zum Wohnen würde ich wie in der Skizze "entschärfen"

Zum Wohnzimmer dann evtl. eine (Glas-) Schiebetür. Vielleicht kann man ja auch den Garderobenbereich etwas kürzen und die Mauer so gestalten, dass die ersten beiden Treppenstufen "ums Eck" gehen. Damit wird dieser Bereich offener.
Im Wohnzimmer würde ich (!) noch die Ausrichtung des sofas ändern. In meiner Skizze kann man auf dem Sofa nämlich nicht nur TV sondern auch Garten/Terrasse sehen. Je nach gewünschter TV Größe müsste dann das kleine Südfenster verschoben werden oder zum Fenster im Essbereich dazugeschlagen.
Die schon angemerkten Kommentare zum langen Schlauch zum Wohnen würde ich wie in der Skizze "entschärfen"
Zum Wohnzimmer dann evtl. eine (Glas-) Schiebetür. Vielleicht kann man ja auch den Garderobenbereich etwas kürzen und die Mauer so gestalten, dass die ersten beiden Treppenstufen "ums Eck" gehen. Damit wird dieser Bereich offener.
Im Wohnzimmer würde ich (!) noch die Ausrichtung des sofas ändern. In meiner Skizze kann man auf dem Sofa nämlich nicht nur TV sondern auch Garten/Terrasse sehen. Je nach gewünschter TV Größe müsste dann das kleine Südfenster verschoben werden oder zum Fenster im Essbereich dazugeschlagen.
RomeoZwo schrieb:
Insgesamt ein schöner erster Entwurf. Da hat sich der Architekt auch mal Gedanken um das Grundstück gemacht.
Die schon angemerkten Kommentare zum langen Schlauch zum Wohnen würde ich wie in der Skizze "entschärfen"
[ATTACH alt="grundriss-155qm-in-baden-wuerttemberg-tippsverbesserungen-581846-1.jpg"]72865[/ATTACH]
Zum Wohnzimmer dann evtl. eine (Glas-) Schiebetür. Vielleicht kann man ja auch den Garderobenbereich etwas kürzen und die Mauer so gestalten, dass die ersten beiden Treppenstufen "ums Eck" gehen. Damit wird dieser Bereich offener.
Im Wohnzimmer würde ich (!) noch die Ausrichtung des Sofas ändern. In meiner Skizze kann man auf dem Sofa nämlich nicht nur TV sondern auch Garten/Terrasse sehen. Je nach gewünschter TV Größe müsste dann das kleine Südfenster verschoben werden oder zum Fenster im Essbereich dazugeschlagen.Durch Wand einkürzen wird dat Dingen ned besser. Da muss ein halber Reset her (siehe ypg)driver55 schrieb:
Durch Wand einkürzen wird dat Dingen ned besser. Da muss ein halber Reset her (siehe ypg)genau: Flurstummerl und kein nettes WZ mehr.Ähnliche Themen