Hausbau - Ratgeber
Bauherrenhilfe
- Bauherrenhilfe vor Vertragsabschluss
-- Warum einen unabhängigen Baubetreuer?
-- Vertragsgrundlagen
-- Bausumme
-- Zahlungsplan zur Kostenkontrolle
-- Pflichten des Bauherren vor Vertragsabschluss
-- Unterlagen beim Hausbau vor Vertragsabschluss
- Bauherrenhilfe nach Vertragsabschluss
-- Bauantrag bei Behörden
-- Bau-Genehmigungsverfahren bei Baubehörden
-- Bauspezifische Versicherungen
-- Bauzeitenplan
-- Baubeginn - die Letzten Pflichten der Bauherrschaft
- Bauherrenhilfe während der Bauzeit
- Gewährleistungsansprüche
- Bauabnahme
Baufinanzierung
- Baufinanzierung - Allgemeine Fragen
- Kreditarten
- Kredit-Konditionen
- Bausparen
- Staatliche Förderungen
- Verkehrswert
- Haushaltsrechnung und Bonität
Hausbau Planung
- Haustypen
- Hausbau Vorbereitungsarbeiten
- Das Baugrundstück
- Baugrund beim Hausbau
- Baurecht
- Gebäudeschutz
- Erdarbeiten und Wasserhaltung
- Stützmauern
- Einfriedung
- Untergeschoss
- Kanalisation
- Tragende Elemente
- Nichttragende Innenwände
- Fundation / Fundament
- Deckenkonstruktionen
- Dächer
- Kaminanlagen
- Treppen Rampen Leitern
- Dachbeläge und Spengler
- Fenster
- Sonnen und Wetterschutz
- Aussenputze
- Einbauten, Küchen, Türen
- Bodenbeläge und Unterlagsböden
- Parkett
- Gips, Wand, Decke
Haustechnik und Energie
- Heiztechnik
- Lüftung und Klimatechnik
- Sanitärtechnik
- Elektrotechnik
- Erneuerbare Energie
Whirlpools / Jacuzzi
Hausbau Magazin
- Baufinanzierung trotz Krise?
- Das Blockhaus
- Moderne Dämmstoffe im Vergleich
- Erker Vor- und Nachteile
- Glasflächen beim Hausbau
- Günstig ein Haus Bauen
- Mediterraner Hausbaustil
- Mehrgenerationenhaus
- Moderne Architektur
- Gartengestaltung leicht gemacht
- Traditioneller Ziegelbau
- Villa als höchster Traum
- Im Eigenheim Ruhestand geniessen
- Altbau sanieren
- Kauf einer Holzgarage
- Immobilienmakler
- Arbeitshandschuhe für den Winter
- Zuhause verschönern
- Outdoor-Plissees
- Schlafzimmer planen
- Terrassenüberdachung
- Wohngebäudeversicherung
- Girokonto für Bauherren finden
- Hauseingang gestalten
- Zaunarten und Eigenschaften
- Der perfekte Grundriss
- Sparsamer heizen im Altbau
- Einfamilienhaus smart finanzieren
- Planung einer PV-Anlage
- Neues Haus
- Immobilienfinanzierung
- Installation einer Photovoltaikanlage
- Asbest erkennen und entfernen
- Gartenpflege im Frühling – worauf achten
- Sauna im Fokus - Wellness zuhause
- Erfolgreich vermieten
- Die perfekte Winterbekleidung
- Das Niedrigenergiehaus
- Der April und seine Stürme
- Architektonische Vielfalt
- Ökologisch und nachhaltig bauen
- Das perfekte Schlafzimmer
- Nachhaltige Energieversorgung
- Zukunftsorientiert bauen
- Nachhaltigkeit beim Hausbau
- Tiny Houses
- Wärmepumpen als nachhaltige Heizvariante
- Maßgeschneiderten Kleiderschrank
- Der richtige Baukredit
- Ratgeber für erfolgreichen Hausbau
- Haus als Altersvorsorge
Do-it-yourself Anleitungen
- Verlegeanleitung für Bodenbeläge und Parkett
- Bodenbeläge und Parkett reinigen und pflegen
- Malerarbeiten am Haus
- Garten Tipps
- Umzug und Reinigung

ᐅ Generelle Kritik zu Architektur, Raumaufteilung, Außenoptik

Erstellt am: 29.11.18 13:55
C
Christian K.
C
Christian K.
29.11.18 13:55
Hausentwurf
Von wem stammt die Planung: Architekt
Was gefällt besonders: Raumaufteilung, viel Licht, Funktional trotz Designaspekt, Platzsparend (mehr Garten)
Was gefällt nicht: Teile der Außenoptik, viele Treppen

Warum ist der Entwurf so geworden, wie er jetzt ist?
Bauhausstil gefällt uns grundsätzlich, jedoch nicht eintönige Bauten. Da wir nicht den Platz für ein schönes Haus im Bauhausstill haben, wollten wir lieber eine Stadtvilla, oder ein modernes Satteldach. Wir haben dann aber Entwürfe mit einem Staffelgeschoss gesehen, was uns wiederum gefiel.
Vorteil beim Staffelgeschoss: Schlafzimmer und Bad getrennt (von den Kindern etc), schöner Ausblick, Grundfläche des Hauses muss nicht so groß sein, Photovoltaikanlage leichter zu installieren
Nachteil beim Staffelgeschoss: Viele Treppen (später vor allem im Alter), Kein Dach als Abstellfläche

Was macht ihn in Euren Augen besonders gut oder schlecht?
Gut: Ausrichtung: z.B. Treppe im Norden, Helle Treppe und kein dunkles Loch, Bäder mit Morgenlicht, Eckfenster für z.B. mehr Licht am Abend
Schlecht: Vordere Außenfassade

Unser "Problem"
Der Architekt hat unsere Anforderungen umgesetzt (Anzahl Zimmer, Unterbringung vorhandener Schränke, etc.) und sein Entwurf sah am Anfang noch hübscher aus, aber wir wollten z.B. in den Kinderzimmern keine bodentiefen Fenster und die Brüstungshöhe ist optisch nicht Optimal, aber besser für die Raumnutzung.

Unser Problem ist, dass wir uns unschlüssig über den Entwurf sind, weil er doch spezieller ist. Auch im Hinblick auf einen möglichen Verkauf. Sicherlich wollen wir das Haus nicht verkaufen, aber im Notfall kann das passieren und dann ist die Frage, ob man nicht mit so einem Design viele Käufer abschreckt.
Würden wir z.B. eine Stadtvilla oder ein Satteldach machen, hätten wir vermutlich das Problem nicht und hätten auch Stauraum etc. dafür weniger Garten.
Vielleicht hadern wir auch etwas, weil wir nur diese eine Alternative haben und uns irgendwie dazu gezwungen fühlen diese zu nehmen. Kann natürlich sein, dass wenn wir noch einen Entwurf mit Stadtvilla und Satteldach bekommen, wir uns doch für den Entwurf entscheiden, weil wir dann Auswählen könnten und die Alternativen mal gesehen haben. Versteht ihr was ich meine?

Was ist die wichtigste/grundlegende Frage zum Grundriss in 130 Zeichen zusammengefasst?
1. Denkt ihr es könnte Probleme mit der Architektur geben, sollten wir das Haus verkaufen wollen?
2. Habt ihr generelle Anmerkungen zum Entwurf?

P.S. Die Farbe der Fassade soll Grau werden und keinen Braunton wie in den Zeichnungen haben.


Moderne dreistöckige Villa mit weißer Fassade, grauem Obergeschoss, Carport und rotem Auto.

Modernes dreistöckiges Haus mit Carport; schwarzer PKW darunter, roter Wagen davor.

Moderne dreistöckige Villa mit großen Glasfronten, Carport und grünem Garten.

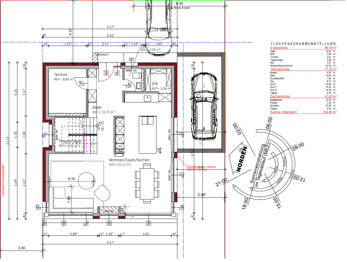
Grundriss eines Hauses: Wohnbereich, Küche, Diele, Technik und Garage mit Maßen.

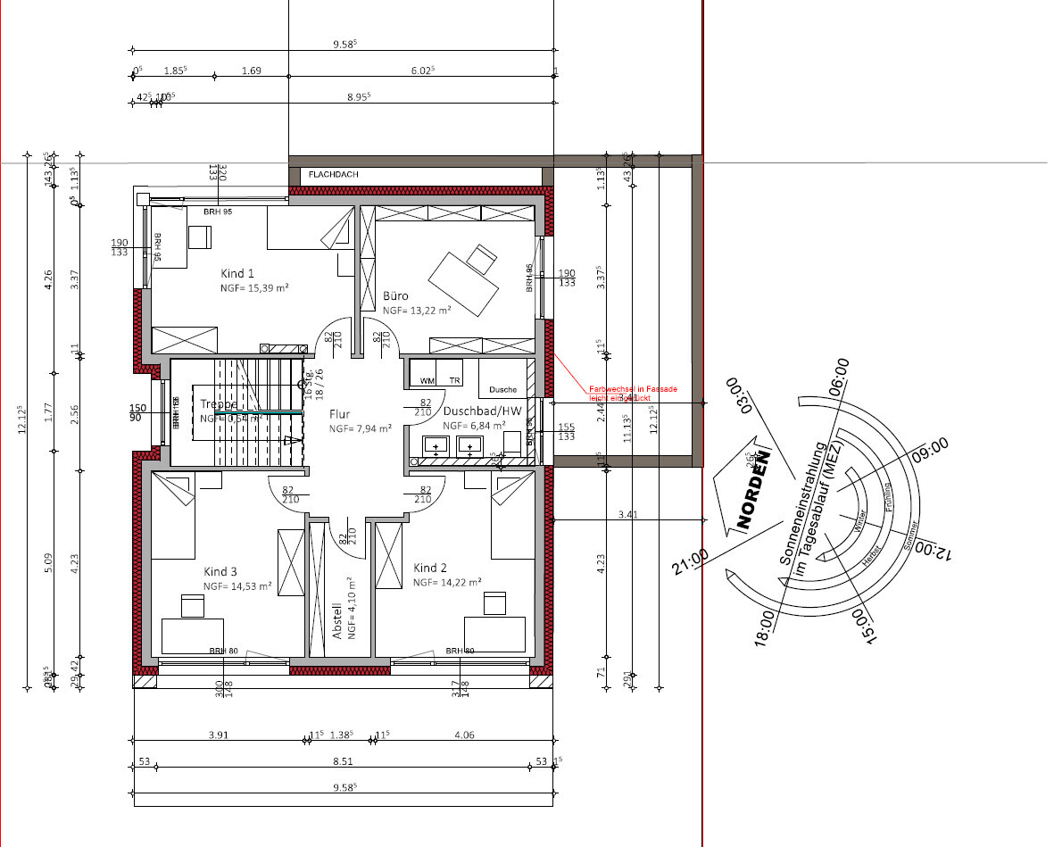
Grundriss eines Wohnhauses mit Flur, Treppe, Bad, Abstellraum und Nordausrichtung.

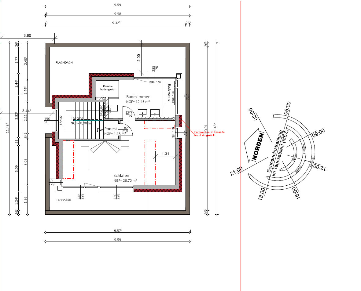
Grundriss eines Schlafzimmers mit Bad, Terrasse und Treppenhaus; Nordpfeil vorhanden.
Climbee29.11.18 14:15
Ich find's cool.

Frag mich allerdings, wie das Auto in die Garage kommt - da ist eine Mauer zu viel, oder?

Ihr habt 26qm Schlafzimmer. Sehr komfortionös - da würde ich ich schon eine extra Ankleide überlegen. Hat den Vorteil, daß man gut getrennt aufstehen kann.
Bei der Dachterrasse würde ich mir eine dort stehende Outdoor-Sauna überlegen *hach*

Kinderzimmer: Fenster mit normaler Brüstungshöhe finde ich da echt bieder und nachdem nur nach vorn Fenster geplant sind, auch irgendwie zu wenig. Wenn's nicht bodentief sein soll, schon mal über Sitzfenster nachgedacht?
Kind 1 und Büro tauschen. Das arme Kind 1 kriegt sonst gar keine Sonne.

Insgesamt ist das "Kindergeschoß" das einzige, da würd ich ggf. noch mal etwas basteln.
Jetzt haben Büro und Duschbad die Sahneseite, auch die Abstellkammer kriegt gut Sonne, beide Kinderzimmer im Nordwesten sind dagegen rel. dunkel. Das kann man evtl. noch optimieren.
kaho67429.11.18 14:19
Ich find's cool. Aber ob ich's kaufen würde? Weiß nich.
Ich mag die Ansicht vom Garten aus nicht so. Das weiße Viereck ist mir zu wuchtig. Die anderen Ansichten find ich aber toll.

Treppe im Wohnbereich bei 3 Kindern, das wurde hier schon mehrfach diskutiert. Diejenigen mit Erfahrung lehnen das größtenteils ab, weil zu laut in den Geschossen.

Ich persönlich mag auch nicht, wenn die Badtür direkt aus dem Schlafzimmer abgeht. U.U. muss der Partner im Halbschlaf nachts oder früh meine Darmgeräusche ertragen. Blöd.

Dieser Miniabstellraum zwischen Kind 2 und 3 soll wohl Schallschutz sein. Den find ich nun aber wiederum Quatsch.
Die Wäsche im Kinderbad find ich semi-gut gelöst. Das wär mir zu eng. Aber der Abstellraum als Ausweich ist noch enger. Hmm.

Technikraum ohne Fenster geht gar nicht.

Ansonsten find ich's großartig.
Y
ypg
29.11.18 14:22
Grundsätzlich ein schöner Grundriss. Ich würde definitiv in diesem Fall zw WZ und Treppe eine geschlossene Tür setzen, da bei geöffneter Eingangstür (oder Glastür) Dir der Postbote oder Hermesmann direkt aufs Sofa schauen kann oder Dir die Kinder-Teenager auf den Keks gehen. Das würde mir Unbehagen auslösen. Das kann man aber wohl auch nachrüsten, wenn jetzt die Einsicht fehlt
Intuitiv würde ich in der Küche hochschränke mit der Spülzeile tauschen.

Und zur Ansicht: das Staffelgeschoss ist nach meinem Empfinden zu hoch. Es passt nicht zu den übrigen Proportionen. Das Haus an sich ist ja nicht gross... wenn die Grundflächenzahl es zulässt, würde ich auf das Staffelgeschoss verzichten und im EG noch "was ransetzen"
H
haydee
29.11.18 14:40
Könnte mir Vorstellen das im Wohnzimmerbereich etwas Stauraum und Platz fehlt.
Sofa für 5 Personen
TV, DVD-Sammlung, Stereoanlage, Kommode oder Schrank mit Spielen, Bastelzeugs, Musiknoten etc.
C
Christian K.
29.11.18 15:30
Climbee schrieb:
Ich find's cool.
...
Ansonsten find ich's großartig.
Danke

Climbee schrieb:

Frag mich allerdings, wie das Auto in die Garage kommt - da ist eine Mauer zu viel, oder?
Es ist ein Carport, keine Garage. Man könnte den Carport sogar noch verlängern, sodass 2 Autos hintereinander und 2 Autos vor dem Haus stehen. Wir wollen aber hinter den Carport eine Gartenhütte für Fahrräder etc. bauen.
Climbee schrieb:

Ihr habt 26qm Schlafzimmer. Sehr komfortionös - da würde ich ich schon eine extra Ankleide überlegen. Hat den Vorteil, daß man gut getrennt aufstehen kann.
Bei der Dachterrasse würde ich mir eine dort stehende Outdoor-Sauna überlegen *hach*
In de Zeichnungen sind rote Linien eingezeichnet. Dort könnten unsere Schränke platziert werden, sodass dahinter ein "(Stau)Raum" entsteht. Wir müssen aber schauen, ob wir das brauchen/wollen. Wir sind nicht so Fans von Ankleidezimmer. Ja, ein Ankleidezimmer ist nett, aber die "richtigen" Ankleidezimmer sind dann meistens etwas größer und das Schlafzimmer auch. Wir wollen lieber ein großes Zimmer. In Katalogen etc. werden Schränke und Betten auch immer in großen Zimmern präsentiert. Lieber 1 großes anstelle zwei kleine. Man hat dann Nachts auch mehr Sauerstoff etc.
Outdoor-Sauna wurde auf die Wunschliste angehängt
Climbee schrieb:
Kinderzimmer: Fenster mit normaler Brüstungshöhe finde ich da echt bieder und nachdem nur nach vorn Fenster geplant sind, auch irgendwie zu wenig. Wenn's nicht bodentief sein soll, schon mal über Sitzfenster nachgedacht?
Kind 1 und Büro tauschen. Das arme Kind 1 kriegt sonst gar keine Sonne.
Insgesamt ist das "Kindergeschoß" das einzige, da würd ich ggf. noch mal etwas basteln.
Jetzt haben Büro und Duschbad die Sahneseite, auch die Abstellkammer kriegt gut Sonne, beide Kinderzimmer im Nordwesten sind dagegen rel. dunkel. Das kann man evtl. noch optimieren.
[/QUOTE]
Ein Sitzfenster haben wir im EG in der Mitte. Die Fenster im OG bei den Kindern sind echt so eine Sache. Mir gefällt es auch nicht so sehr, aber Bodentief möchte meine Frau nicht und den unteren Bereich mit Sichtschutz abkleben gefällt ihr auch nicht. Hm...
Bzgl. Kind 1: Das wird ein Arbeits-/Gästezimmer und notfalls das dritte Kinderzimmer. Man weiß ja nie wie viele es so werden Büro ist zur Straßenseite, daher haben die Kinderzimmer Gartenblick und ab 12 Uhr dann Sonne. Würde mich wundern, wenn die mal früher aufstehen
Climbee schrieb:

Treppe im Wohnbereich bei 3 Kindern, das wurde hier schon mehrfach diskutiert. Diejenigen mit Erfahrung lehnen das größtenteils ab, weil zu laut in den Geschossen.
Ich persönlich mag auch nicht, wenn die Badtür direkt aus dem Schlafzimmer abgeht. U.U. muss der Partner im Halbschlaf nachts oder früh meine Darmgeräusche ertragen. Blöd.
Dieser Miniabstellraum zwischen Kind 2 und 3 soll wohl Schallschutz sein. Den find ich nun aber wiederum Quatsch.
Die Wäsche im Kinderbad find ich semi-gut gelöst. Das wär mir zu eng. Aber der Abstellraum als Ausweich ist noch enger. Hmm.
Technikraum ohne Fenster geht gar nicht.
Ja, die Treppe war immer so ein Punkt. wir wollten möglichst wenig Schall in die Obergeschosse bekommen. Ist nicht so einfach. Mit einem Staffelgeschoss ist das anders schwer zu realisieren, da sie sonst immer blöd gelegen war. Der Schall sollte sich nicht so gut ausdehnen können und wenn doch, dann will ich die Treppe mit schallschluckenden Materialien versehen. Z.B. gibt es Steinwände etc. die den Schall brechen.

Climbee schrieb:

Dieser Miniabstellraum zwischen Kind 2 und 3 soll wohl Schallschutz sein. Den find ich nun aber wiederum Quatsch.
Die Wäsche im Kinderbad find ich semi-gut gelöst. Das wär mir zu eng. Aber der Abstellraum als Ausweich ist noch enger. Hmm.
Technikraum ohne Fenster geht gar nicht.
Nein, normalerweise waren die Kinderzimmer noch größer, aber wir finden 15m² ausreichend und haben so noch eine Abstellkammer. Wir haben keinen Keller, da braucht man Staufläche.
Die Wäsche sollte im OG, da sie dort entsteht und wieder benötigt wird. Finde es Quatsch, die dreckige Wäsche erst die Treppe runter zu tragen, um dann später wieder alles hoch zu schleppen
Climbee schrieb:
Technikraum ohne Fenster geht gar nicht.
Muss der Bauleiter entscheiden. Er hat das auch schon mit einem ? angemerkt.

ypg schrieb:
Grundsätzlich ein schöner Grundriss. Ich würde definitiv in diesem Fall zw WZ und Treppe eine geschlossene Tür setzen, da bei geöffneter Eingangstür (oder Glastür) Dir der Postbote oder Hermesmann direkt aufs Sofa schauen kann oder Dir die Kinder-Teenager auf den Keks gehen. Das würde mir Unbehagen auslösen. Das kann man aber wohl auch nachrüsten, wenn jetzt die Einsicht fehlt
Auch hier erst mal Danke
Ich müsste es noch einmal prüfen, aber bei der Innenansicht, konnte man von der Tür aus nicht auf das Sofa schauen. Man muss erst paar Schritte in die Wohnung machen und dann sieht man das Sofa. Das ist aber extra so, weil dadurch mehr Raum und Sichtweite entsteht. Der Architekt hat die Wand unten bei der Treppe reingezogen und aus dem Flur wurde direkt ein "schmaler" Gang. Daher haben wir uns dagegen entschieden. Aber ja, notfalls kann man da nachträglich eine Schiebetür installieren. Die Option haben wir uns offen gehalten Was euch so auffällt...
ypg schrieb:

Intuitiv würde ich in der Küche Hochschränke mit der Spülzeile tauschen.
Vergrößert den Laufweg zur Abstellkammer. Die Hochschränke sind der Kühlschrank, Backofen etc. Aber wir besprechen das mal. Hatten es nie so konkret betrachtet, da die Küchenplanung erst noch aussteht. Das ist nur der Vorschlag vom Architekten, damit wir sehen, dass alles reinpasst.


ypg schrieb:

Und zur Ansicht: das Staffelgeschoss ist nach meinem Empfinden zu hoch. Es passt nicht zu den übrigen Proportionen. Das Haus an sich ist ja nicht gross... wenn die Grundflächenzahl es zulässt, würde ich auf das Staffelgeschoss verzichten und im EG noch "was ransetzen"
Ja, die Überlegung haben wir auch. Aktuell ist EG 2,8m lichte Raumhöhe und OG/SG 2,6m. Ich würde das SG auf 2,5m senken. Unsere Schränke sind 2,4m. Also wäre Max. 2,45m möglich.
EG vergrößern kostet uns Garten und dann würden wir vermutlich den ganzen Grundriss ändern. Schwer...
haydee schrieb:
Könnte mir Vorstellen das im Wohnzimmerbereich etwas Stauraum und Platz fehlt.
Sofa für 5 Personen
TV, DVD-Sammlung, Stereoanlage, Kommode oder Schrank mit Spielen, Bastelzeugs, Musiknoten etc.
Hm, unter der Treppe haben wir einen Stauraum (die Lila Linie symbolisiert eine Tür. Davor sollten so Treppe mit 1-2 Stufen mit Platz zum verstauen, hinsetzen oder hinstellen von Deko.
Das mittlere Fenster ist ein Sitzfenster und dort kommt erst mal eine Kinderecke hin. Aber ja, Musiknoten etc. wird schwer. Hm...
Beim Eingang ist Platz für Deckenhöhe Schränke und auf der gegenüberliegenden Seite Platz für einen Spiegel. Schrank mit Spiele... Daran haben wir nicht gedacht, da sie aktuell auch nicht im Wohnzimmer sind. Aber hier würde sich die Fernsehwand anbieten. Der Fernseher wird eh an der Wand hängen und darunter ist dann Platz für Spiele etc. DVD-Sammlung ist eher gering. Wir gehen häufig ins Kino bzw. Streamen.

Danke für die Anregungen Es hilft den Plan zu verfeinern.
treppensitzfensterhochschränkeentwurfstaffelgeschosskinderzimmerankleidezimmergartenschlafzimmersofa