Hausbau - Ratgeber
Bauherrenhilfe
- Bauherrenhilfe vor Vertragsabschluss
-- Warum einen unabhängigen Baubetreuer?
-- Vertragsgrundlagen
-- Bausumme
-- Zahlungsplan zur Kostenkontrolle
-- Pflichten des Bauherren vor Vertragsabschluss
-- Unterlagen beim Hausbau vor Vertragsabschluss
- Bauherrenhilfe nach Vertragsabschluss
-- Bauantrag bei Behörden
-- Bau-Genehmigungsverfahren bei Baubehörden
-- Bauspezifische Versicherungen
-- Bauzeitenplan
-- Baubeginn - die Letzten Pflichten der Bauherrschaft
- Bauherrenhilfe während der Bauzeit
- Gewährleistungsansprüche
- Bauabnahme
Baufinanzierung
- Baufinanzierung - Allgemeine Fragen
- Kreditarten
- Kredit-Konditionen
- Bausparen
- Staatliche Förderungen
- Verkehrswert
- Haushaltsrechnung und Bonität
Hausbau Planung
- Haustypen
- Hausbau Vorbereitungsarbeiten
- Das Baugrundstück
- Baugrund beim Hausbau
- Baurecht
- Gebäudeschutz
- Erdarbeiten und Wasserhaltung
- Stützmauern
- Einfriedung
- Untergeschoss
- Kanalisation
- Tragende Elemente
- Nichttragende Innenwände
- Fundation / Fundament
- Deckenkonstruktionen
- Dächer
- Kaminanlagen
- Treppen Rampen Leitern
- Dachbeläge und Spengler
- Fenster
- Sonnen und Wetterschutz
- Aussenputze
- Einbauten, Küchen, Türen
- Bodenbeläge und Unterlagsböden
- Parkett
- Gips, Wand, Decke
Haustechnik und Energie
- Heiztechnik
- Lüftung und Klimatechnik
- Sanitärtechnik
- Elektrotechnik
- Erneuerbare Energie
Whirlpools / Jacuzzi
Hausbau Magazin
- Baufinanzierung trotz Krise?
- Das Blockhaus
- Moderne Dämmstoffe im Vergleich
- Erker Vor- und Nachteile
- Glasflächen beim Hausbau
- Günstig ein Haus Bauen
- Mediterraner Hausbaustil
- Mehrgenerationenhaus
- Moderne Architektur
- Gartengestaltung leicht gemacht
- Traditioneller Ziegelbau
- Villa als höchster Traum
- Im Eigenheim Ruhestand geniessen
- Altbau sanieren
- Kauf einer Holzgarage
- Immobilienmakler
- Arbeitshandschuhe für den Winter
- Zuhause verschönern
- Outdoor-Plissees
- Schlafzimmer planen
- Terrassenüberdachung
- Wohngebäudeversicherung
- Girokonto für Bauherren finden
- Hauseingang gestalten
- Zaunarten und Eigenschaften
- Der perfekte Grundriss
- Sparsamer heizen im Altbau
- Einfamilienhaus smart finanzieren
- Planung einer PV-Anlage
- Neues Haus
- Immobilienfinanzierung
- Installation einer Photovoltaikanlage
- Asbest erkennen und entfernen
- Gartenpflege im Frühling – worauf achten
- Sauna im Fokus - Wellness zuhause
- Erfolgreich vermieten
- Die perfekte Winterbekleidung
- Das Niedrigenergiehaus
- Der April und seine Stürme
- Architektonische Vielfalt
- Ökologisch und nachhaltig bauen
- Das perfekte Schlafzimmer
- Nachhaltige Energieversorgung
- Zukunftsorientiert bauen
- Nachhaltigkeit beim Hausbau
- Tiny Houses
- Wärmepumpen als nachhaltige Heizvariante
- Maßgeschneiderten Kleiderschrank
- Der richtige Baukredit
- Ratgeber für erfolgreichen Hausbau
- Haus als Altersvorsorge
Do-it-yourself Anleitungen
- Verlegeanleitung für Bodenbeläge und Parkett
- Bodenbeläge und Parkett reinigen und pflegen
- Malerarbeiten am Haus
- Garten Tipps
- Umzug und Reinigung

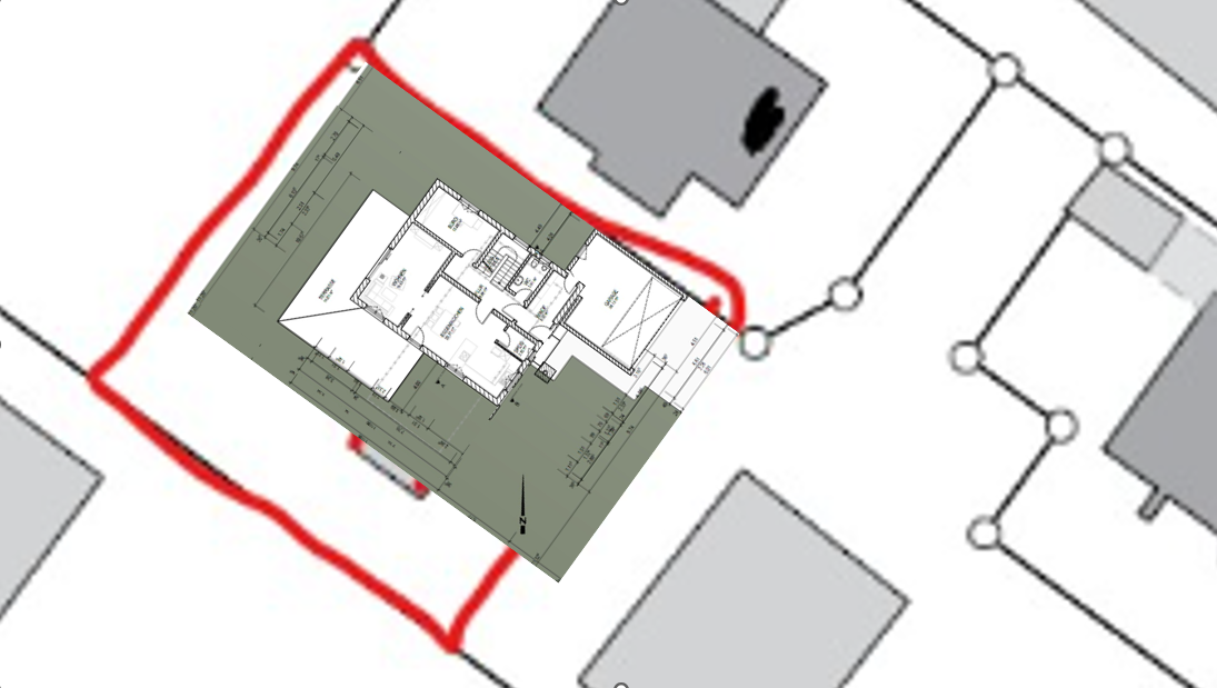
ᐅ Feedback zum 1. Grundrissentwurf (Einfamilienhaus, Stadtvilla, Keller + 2 Vollgeschosse)

Erstellt am: 29.03.26 20:57
M
Messi_37
Servus zusammen,

wir möchten euch unseren ersten Grundrissentwurf vorstellen und um euer ehrliches Feedback bitten.
Das Haus ist für 2 Erwachsene + zukünftig eventuell 2 Kinder geplant und soll auf einem Grundstück in 2ter Reihe auf dem Land entstehen. Wir sind aktuell in der Entwurfsphase und freuen uns über alle konstruktiven Rückmeldungen und Verbesserungsvorschläge.

Bebauungsplan/Einschränkungen
Größe des Grundstücks: ca. 1.000m2
Hang: nein, ebenes Gelände
Grundflächenzahl: 0,4
Geschossflächenzahl: 0,5
Baufenster, Baulinie und -grenze: 6m hinter Nachbarbebauung
Anzahl Stellplatz: 2
Geschossigkeit: 2 Vollgeschosse
Dachform: Sattel- oder Walmdach

Anforderungen der Bauherren
Stilrichtung, Dachform, Gebäudetyp: Einfamilienhaus mit Walmdach, Stadtvilla
Keller, Geschosse: Keller (Technik, Hauswirtschaftsraum) mit 2 Vollgeschossen
Anzahl der Personen, Alter: 2 Erwachsene + 2 Kleinkinder
Raumbedarf im EG: offene Küche mit Essbereich, abtrennbares Wohnzimmer, Büro für Homeoffice und später ggf. Schlafmöglichkeit im EG, Gäste-WC möglichst mit Dusche, Schmutzschleuse (direkter Zugang zur Garage)
Raumbedarf im OG: Bad, Eltern-Schlafzimmer mit Ankleidezimmer, 2 Kinderzimmer
Büro: Familiennutzung oder Homeoffice? Notwendig für Homeoffice
Schlafgäste pro Jahr: keine
offene oder geschlossene Architektur: EG offen (Ausnahme Wohnzimmer), OG geschlossen
konservativ oder moderne Bauweise: eher konservativ
Küche: offene Küche mit Kochinsel, Wohnzimmer abtrennbar
Anzahl Essplätze: 6-8
Kamin: nicht notwendig
Musik/Stereowand: nicht notwendig
Balkon, Dachterrasse: nicht notwendig
Garage, Carport: Wunsch Doppelgarage
Nutzgarten, Treibhaus: ja, ausreichend Platz vorhanden. Terrasse nach Süden und Westen

Hausentwurf
Von wem stammt die Planung: Architekt
Was gefällt besonders? Süd-/Westausrichtung Wohnbereich EG
Was gefällt nicht? Schnitt Büro/Gästezimmer, Kinderzimmer im OG sehr groß
Preisschätzung laut Architekt/Planer: noch nicht vorhanden
Persönliches Preislimit fürs Haus, inkl. Ausstattung: 750k
favorisierte Heiztechnik: Flächen-Erdwärme

Wenn Ihr verzichten müsst, auf welche Details/Ausbauten
-könnt Ihr verzichten: Schmutzschleuse bzw. direkter Zugang zur Garage, Dusche im Gäste-WC (hat im aktuellen Plan ohnehin keinen Platz gefunden), Speisekammer im Essbereich (könnte ggf. auch in Windfang verlagert werden)
-könnt Ihr nicht verzichten:

Warum ist der Entwurf so geworden, wie er jetzt ist? 
Standardentwurf vom Planer? nein
Entsprechende/Welche Wünsche wurden vom Architekten umgesetzt? Nahezu alle, bis auf Dusche im Gäste-WC
Was macht ihn in Euren Augen besonders gut oder schlecht?
Positiv: Süd-/Westausrichtung von Wohn-/Essbereich, alle „Wunsch-Räume“ wurden untergebracht
Negativ: Haus insgesamt trotz Keller schon etwas zu großzügig, Kinderzimmer viel zu groß, Büro im EG nicht schön geschnitten, Küche (U-Form) etwas schmal , Bad im OG auch nicht gerade klein, ggf. noch mehr Fensterflächen im EG (Süd/West) möglich
Uns ist bewusst das z.B. das Problem der großen Kinderzimmer verhältnismäßig einfach gelöst werden könnten (Verzicht auf Keller, Hauswirtschaftsraum im OG), jedoch möchten wir wenns einigermaßen ins Budget passt auf den Keller nicht verzichten

Wir freuen uns auf euer ehrliches Feedback!
Was würdet ihr verbessern oder anders anordnen?
Danke schon jetzt für eure Zeit und eure Anregungen!!






M
MachsSelbst
31.03.26 00:07
Messi_37 schrieb:
Gehofft hatten wir das 750k inkl. Baunebenkosten reichen
Geplant ist jedoch nicht schlüsselfertig, sondern eigenständige Vergabe der Gewerke inkl. Koordination und Eigenleistung (einfache Hiwi Tätigkeiten wie Helfer bei Rohbau/Elektro, Bodenlegen, Malerarbeiten)

Oh oh... ist das nur "geplant" oder auch schon halbwegs eingetütet, weil man entsprechende Handwerker im Familien- und/oder Freundeskreis hat? 
Oder bist du selbst Handwerker und weißt, worauf du dich als "Hiwi" bei einem Kollegen einlässt? Alleine dass du von "HiWi" sprichst, also wissenschaftliche Hilfskraft, deutet darauf hin, dass du mit Handwerk und körperlicher Arbeit keinen Berührungspunkt hast...

Denn wenn du absoluter Laie bist, stehst du dem professionellen Handwerker in aller Regel nur im Weg, der wird dich gar nicht als Helfer haben wollen, denn die Bauhelfer hat er selber.... du bremst nur. 
Was anderes wäre es, wenn du Vorarbeiten fachgerecht ausführen könntest, aber das stelle ich mal vorsichtig in Frage...

Das kalkuliert der Handwerker natürlich in sein Angebot mit ein... das heißt er lässt dich "mitmachen", nimmt dafür aber in Summe vielleicht 5% weniger. Da verdienst du mit deiner normalen pro Stunde mehr, als du mit einer "HiWi"-Tätigkeit sparst 😉
11ant31.03.26 00:22
Messi_37 schrieb:
ich lade hierzu nochmal ein Bild hoch

"Von hinten durch die Brust ins Auge" - diese Erschließung nimmt ja einen regelrechten Prozessionsweg. Da braucht es aber einige GFL-Rechte, einen bunten Strauß geradezu. Schon für die Baugenehmigung ist das außergewöhnlich, und das "ja" der Versorger empfiehlt sich im Vorfeld einzuholen. Wenn Ihr das Fahr- und Gehrecht so buchstäblich weitläufig haben wollt, nun ja, Geschmackssache. Aber ein Leitungsrecht empfiehlt sich wohl irgendwie geradliniger zu organisieren. Mindestens der Wasserversorger wird von derlei Umwegen nicht begeistert sein. Mir ist gerade der Name entfallen, aber wir hatten hier vor einem oder zwei Jahren schon einmal einen ähnlichen Fall, Mitgliedsname und/oder Avatarbild machten den Eindruck ziemlich schräger Vögel. Da war die Erschließung auch irgendwie crazy verzweigt und folgte wohl den nachbarlichen Verwandtschaftsverhältnissen, und der praktische Weg wich vom logischen weit ab (soweit ich recht - und jedenfalls nur dunkel - erinnere).
https://www.instagram.com/11antgmxde/
https://www.linkedin.com/company/bauen-jetzt/
Y
ypg
31.03.26 01:19
Messi_37 schrieb:
Vom Ausschauen her gefällt mir die mit Ziegeldach überdachte Terrasse sehr gut,

Was gefällt denn daran? Wer will denn darunter sitzen? Denn auch drunter und nicht nur die Räume im Haus sind ja dunkel.
wenn man so etwas über 15qm macht und dann eben drauf achtet, dass Ausgleichsfenster Licht ins Haus lässt, dann wäre es ok. Hier aber sind ja alle Fenster im Wohn- und Essbereich abgeschottet. Zudem muss man ja auch sagen, dass wir hier von Westbund Nord sprechen. Bedeutet, dass im Winter bzw von O bis O nichts an Sonnenlicht diese Räume erreicht. Essbereich ist eh etwas wenig an Fensterfläche. Mindestens sollte man 10% der Raumfläche an Fensterfläche haben. Heutzutage hat man es aber so, dass man eher auf 20% und mehr für die Hauptaufenthaltsräume an Fensterfläche generiert.

Messi_37 schrieb:
jedoch habe ich eben auch Angst das ich mir dadurch das ganze Licht nehme.

Ja, aber sicher. Das ist ja offensichtlich.

Messi_37 schrieb:
möglichst hell haben in den Wohnräumen auf Süd/Westseite

Also, Dein Wohnraum liegt im Norden. Wir sprechen also von West/Nordseite.

Messi_37 schrieb:
sorry blöde Frage, welche Vorteile hätte denn z.B. die Verlagerung des Eingangsbereichs Richtung Nord/Ost? Dadurch das Esszimmer noch breiter machen?

Wenn ich so etwas schreibe, dann bedeutet das generell. Es ist eben suboptimal, wenn die Aufenthaltsräume gen Norden liegen, da (siehe oben) in der dunkleren Jahreszeit nix an wertvollem Licht diese Räume trifft.

Messi_37 schrieb:
mehr Flexibilität zu haben (falls später mal zusätzlicher Raum für was auch immer notwendig wird), zusätzlicher Party-/Aufenthaltsraum/Hobbyraum.

Ein Keller ist nicht flexibel. Wir sprechen hier ja von einem Keller-Keller, nicht von einem ausgebauten Keller. Der wäre eh zu kostspielig.
Es ist Raum unter der Erde - auch nicht hell mit Tageslicht gesegnet. Partykeller hat man in den 60ern gehabt. Vor über 60 Jahren. 

Und ich habe ja eine Alternative, nämlich Ausgleichsräume, zb zw Garage und Haus oder auch hinter der Garage vorgeschlagen. Das verwundert mich jetzt, wenn ich bessere Optionen benenne, darauf aber gar nicht eingegangen wird und Du anscheinend überhaupt nicht flexibel im Denken bist, dass es auch alles anders gehen könnte. Und zudem besser und günstiger.

Schon allein wegen des mangelnden Tageslichtes würde ich anders planen.

Messi_37 schrieb:
Mit der Garage auf der rechten Seite wollten wir eine Art Sichtschutz (u.a. für den Eingangsbereich) schaffen, da direkt an der Grenze die Terasse/Wintergarten vom Nachbar ist.


Dann würde ich auch diesen Gedanken mal durchspielen. Sichtschutz kann und macht man ja eher mit Büschen und Hecke oder einer Sichtschutzwand aus Holz. Jaa, man kann auch ein Nebengebäude an die Grenze stellen. Aber ehrlich gesagt empfinde ich es als Affront dem Nachbarn gegenüber, dem eine massive Wand vor seine Terrasse zu setzen, so dass er kein Licht mehr bekommt, nur damit Ihr Euren Eingangsbereich abschotten wollt. Damit ist eigentlich der Nachbarschaftskrieg eröffnet. Es schadet Euch in keinster Weise, wenn Ihr die Garage weiter nach hinten plant und den Eingang in den Osten, sodass ihr tatsächlich dann eine SW-Ausrichtung der Räume bekommt. Sichtschutz dann für die Auffahrt und Eingang mit einer netten Hecke, die jedem gut tut.

Vielleicht solltest Du Dich mehr mit Tageslicht und seiner Bedeutung für den Menschen, also Euch, auseinandersetzen.
K
kbt09
31.03.26 08:16
ypg schrieb:
Ein Keller ist nicht flexibel. Wir sprechen hier ja von einem Keller-Keller, nicht von einem ausgebauten Keller. Der wäre eh zu kostspielig.
Es ist Raum unter der Erde - auch nicht hell mit Tageslicht gesegnet. Partykeller hat man in den 60ern gehabt. Vor über 60 Jahren.

Und ich habe ja eine Alternative, nämlich Ausgleichsräume, zb zw Garage und Haus oder auch hinter der Garage vorgeschlagen.

Ebenerdige Ausgleichsräume haben auch den Vorteil, dass sie in aller Regel viel einfacher nutzbar und zugänglich sind, um Sachen wie Fahrräder, im Winter die Gartenmöbel, Rasenmäher, Gartenzeugs allgemein unterzubringen.
Y
ypg
31.03.26 13:10
Nur mal so als Beispiel mit der Überdachung und Nebenräumen. (Bitte nicht als von mir guten Entwurf sehen, denn er ersetzt nur eine Skizze.. und die Antwortmentalität hier im Forum lohnt eine weitere Entwicklung nicht )

Süden ist ja planunten. Dort wird eine Überdachung gebraucht. Im Norden, wo anscheinend ein Ausblick vorhanden ist, braucht es keine Überdachung, aber bietet sich dann natürlich als Zweit- bzw. als Terrasse für den Chillmodus an.
Hier wäre im Süden eine Überdachung für die Küchenterrasse gewährleistet, sogar mit einer Überdachung des Eingangsbereiches (wenn Du das über Eck so leiden magst und haben möchtest - angedeutet mit den beiden Eckchen planunten und geht bis zum Eingangsbereich), aber es kommt genug Tages- und Sonnenlicht von Süd, West und Nord in Deine wichtigen Bereiche. So bindet man eigentlich eine integrierte Terrassenüberdachung, und sei es auch nur aus optischen Gründen an.
Der Messi hat Raum, sich zu entfalten, könnte aber auch vor dem Umzug ausmisten.

H
hanghaus2023
31.03.26 13:36
Mein Vorschlag Garage an die Grenze und Haus auch so nahe als möglich.



Ohne Keller dann reicht auch das Budget.
kellerüberdachunggarageeingangsbereichfensterflächeerschließungessbereichtageslichtsichtschutzhecke