Hausbau - Ratgeber
Bauherrenhilfe
- Bauherrenhilfe vor Vertragsabschluss
-- Warum einen unabhängigen Baubetreuer?
-- Vertragsgrundlagen
-- Bausumme
-- Zahlungsplan zur Kostenkontrolle
-- Pflichten des Bauherren vor Vertragsabschluss
-- Unterlagen beim Hausbau vor Vertragsabschluss
- Bauherrenhilfe nach Vertragsabschluss
-- Bauantrag bei Behörden
-- Bau-Genehmigungsverfahren bei Baubehörden
-- Bauspezifische Versicherungen
-- Bauzeitenplan
-- Baubeginn - die Letzten Pflichten der Bauherrschaft
- Bauherrenhilfe während der Bauzeit
- Gewährleistungsansprüche
- Bauabnahme
Baufinanzierung
- Baufinanzierung - Allgemeine Fragen
- Kreditarten
- Kredit-Konditionen
- Bausparen
- Staatliche Förderungen
- Verkehrswert
- Haushaltsrechnung und Bonität
Hausbau Planung
- Haustypen
- Hausbau Vorbereitungsarbeiten
- Das Baugrundstück
- Baugrund beim Hausbau
- Baurecht
- Gebäudeschutz
- Erdarbeiten und Wasserhaltung
- Stützmauern
- Einfriedung
- Untergeschoss
- Kanalisation
- Tragende Elemente
- Nichttragende Innenwände
- Fundation / Fundament
- Deckenkonstruktionen
- Dächer
- Kaminanlagen
- Treppen Rampen Leitern
- Dachbeläge und Spengler
- Fenster
- Sonnen und Wetterschutz
- Aussenputze
- Einbauten, Küchen, Türen
- Bodenbeläge und Unterlagsböden
- Parkett
- Gips, Wand, Decke
Haustechnik und Energie
- Heiztechnik
- Lüftung und Klimatechnik
- Sanitärtechnik
- Elektrotechnik
- Erneuerbare Energie
Whirlpools / Jacuzzi
Hausbau Magazin
- Baufinanzierung trotz Krise?
- Das Blockhaus
- Moderne Dämmstoffe im Vergleich
- Erker Vor- und Nachteile
- Glasflächen beim Hausbau
- Günstig ein Haus Bauen
- Mediterraner Hausbaustil
- Mehrgenerationenhaus
- Moderne Architektur
- Gartengestaltung leicht gemacht
- Traditioneller Ziegelbau
- Villa als höchster Traum
- Im Eigenheim Ruhestand geniessen
- Altbau sanieren
- Kauf einer Holzgarage
- Immobilienmakler
- Arbeitshandschuhe für den Winter
- Zuhause verschönern
- Outdoor-Plissees
- Schlafzimmer planen
- Terrassenüberdachung
- Wohngebäudeversicherung
- Zaunarten und Eigenschaften
- Hauseingang gestalten
- Der perfekte Grundriss
- Sparsamer heizen im Altbau
- Einfamilienhaus smart finanzieren
- Planung einer PV-Anlage
- Neues Haus
- Immobilienfinanzierung
- Installation einer Photovoltaikanlage
- Asbest erkennen und entfernen
- Gartenpflege im Frühling – worauf achten
- Sauna im Fokus - Wellness zuhause
- Erfolgreich vermieten
- Die perfekte Winterbekleidung
- Das Niedrigenergiehaus
- Der April und seine Stürme
- Architektonische Vielfalt
- Ökologisch und nachhaltig bauen
- Das perfekte Schlafzimmer
- Nachhaltige Energieversorgung
- Zukunftsorientiert bauen
- Nachhaltigkeit beim Hausbau
- Tiny Houses
- Wärmepumpen als nachhaltige Heizvariante
- Maßgeschneiderten Kleiderschrank
- Der richtige Baukredit
- Ratgeber für erfolgreichen Hausbau
- Haus als Altersvorsorge
Do-it-yourself Anleitungen
- Verlegeanleitung für Bodenbeläge und Parkett
- Bodenbeläge und Parkett reinigen und pflegen
- Malerarbeiten am Haus
- Garten Tipps
- Umzug und Reinigung

ᐅ Feedback zu Grundrissen

Erstellt am: 18.06.16 08:46
N
nolimits
N
nolimits
18.06.16 08:46
Hallo liebe Community,

wir sind nun in der weiteren Detailplanung für unser Haus (innen) und haben uns für ein Bauunternehmen entschieden - die Grundrisse sind erst mal "nur" die Grob-Planung und es geht nun an die Optimierung. Daher wäre es klasse, wenn ihr Eure Optimierungsvorschläge posten würdet um uns Anregungen für Verbesserungen zu geben.

Viele Grüße,
Thomas
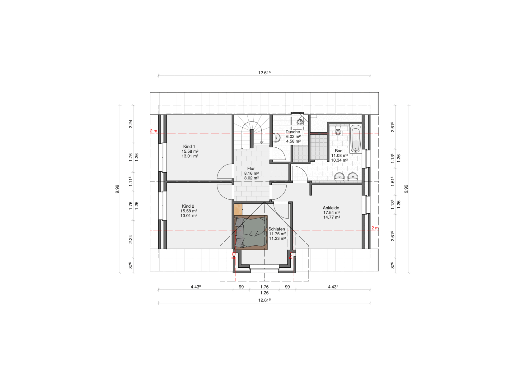
Grundriss-Obergeschoss: Schlafen, Ankleide, Bad, Dusche, Flur, zwei Kinderzimmer

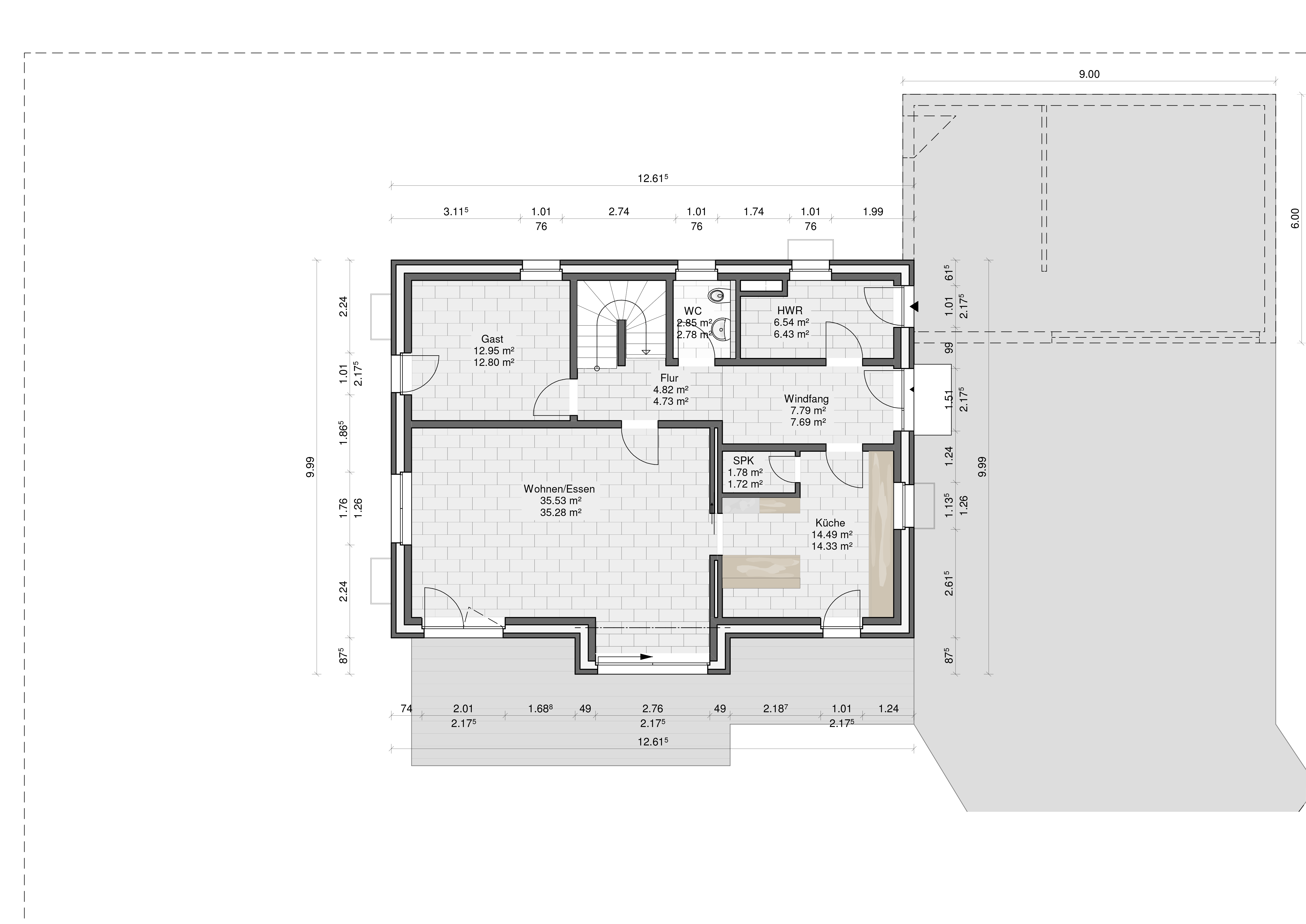
Grundriss Erdgeschoss: Gast, Wohnen/Essen, Küche, Flur, WC, HWR, Windfang.

Grundriss Kellergeschoss mit Arbeiten, Keller 1, Keller 2, Technik und Flur.
M
MarcWen
18.06.16 11:45
Irgendwie kommt mir der Grundriss bekannt vor. War da nicht mal die Überlegung einer Einliegerwohnung im Keller?

Ansonsten auch hier:

https://www.hausbau-forum.de/threads/grundrissplanung-bitte-vor-Thread-Erstellung-lesen.11714/
N
nolimits
18.06.16 14:39
Den Grundriss poste ich hier zum ersten Mal - Grundlage ist das Edition 425 Wohnidee von Viebrockhaus in der 1.5geschossigen Variante - dies haben wir umgeplant mit Giebeleingang, da ansonsten der Eingang direkt von Süden wäre, wo wir den Wohn/Essbereich + Terrasse haben möchten.

Die Fragen aus dem geposteten Thread sind aus meiner Sicht zu großen Teilen nicht relevant, da die grundsätzliche Kubatur schon steht und nur der Grundriss innen zur Diskussion steht, bzw. marginale Änderungen an der Kubatur unproblematisch wären. Trotzdem hier die relevanten Infos:

Bebauungsplan/Einschränkungen
Größe des Grundstücks - 743 m²
Hang - nein
Grundflächenzahl 0,3
Anzahl Stellplatz - Doppelgarage 6x6 + Abstellraum
Geschossigkeit - 1geschossig (Traufhöhe Max. 4m = Sparrenanschnittspunkt)
Dachform - Satteldach
Ausrichtung - S - SO
Maximale Höhen/Begrenzungen: Traufhöhe (Sparrenanschnittspunkt 4M), Giebelhöhe 9m
weitere Vorgaben

Anforderungen der Bauherren
Anzahl der Personen, Alter - 4 - 2 Erwachsene 38, 2 Kinder 5 + 8
Raumbedarf im EG, OG: EG = Küche, Hauswirtschaftsraum, Gäste, Wohnen/Essen, Gäste-WC, Garage, Abstellraum
Büro: Homeoffice
offene Küche, Kochinsel - Kochinsel: nein; offen: durch Innenlaufende Schiebetür trennbar
Kamin - nein
Musik/Stereowand - optional
Balkon, Dachterrasse - nein
Garage, Carport - ja, Doppelgarage + Abstellraum, insgesamt 6x9
Nutzgarten, Treibhaus - nein
weitere Wünsche/Besonderheiten/Tagesablauf - separater Elternbereich im OG, zweites Bad im DG, Gäste-WC ohne Dusche, Speisekammer in Küche; Hauswirtschaftsraum für Trockner + Waschmaschine, restliche Technik im KG; Bussystem, Photovoltaikanlage + Speicher, zentrale Kontrollierte-Wohnraumlüftung, Fußbodenheizung (alles im Keller)

Hausentwurf
Was gefällt nicht? - Aufteilung OG, insbesondere Bäder + Aufteilung Elternbereich; Hauswirtschaftsraum könnte etwas größer sein
favorisierte Heiztechnik: Luft-/Wasser Wärmepumpe mit Photovoltaik (ca. 6.7kwP + Speicher, ca. 8kw), 300l WW-Speicher
K
kbt09
20.06.16 01:59
... und Küche??? was ist das für ein Plan?

Gästezimmer=Büro?

Warum soll der Hauswirtschaftsraum größer sein? Ihr habt doch einen Keller. Man sollte sich allerdings fragen, ob bei der Konstellation Garage/Hauseingang, der Zugang Hauswirtschaftsraum durch die Garage nötig ist. Und, wenn in diesem Hauswirtschaftsraum auch die Waschmaschine etc. steht, würde ich den eher Streichen und eher einen Ausgang nach draußen planen ... Stichwort Wäsche mal draußen aufhängen.

Was gefällt denn genau nicht an der Aufteilung im OG?

Der Ankleideraum ist eher eine reine Platzverschwendung und es ist irgendwie schade um den Südwohnraum. Wie sollen denn da Schränke gestellt werden?

Die Wand zwischen den Kinderzimmern ermöglicht es nicht, dort Schränke zu stellen. Da Abstand Wand/Fenster zu gering.

Wie hoch wird denn die Kniestockhöhe sein?
C
Curly
20.06.16 07:53
Hallo,

mir gefällt der kleine Zugang zum Wohnzimmer im Erdgeschoss nicht. Im Obergeschoss ist die Ankleide der größte Raum und kann nur mit einer schrankwand möbliert werden. Der Rest vielleicht mit niedrigen Kommoden und in der Mitte ist ungenutzter Raum. Ich finde rechteckige Ankleiden, die rechts und links mit einer Schrankwand möbliert werden viel sinnvoller. Da würde ich die Wand zur Ankleide lieber weglassen um wenigstens ein großes Schlafzimmer zu haben. Im Schlafzimmer kann nur einer ein Nachtschränkchen neben das Bett stellen und mir persönlich wäre es auch zu klein. Im Kinderzimmer passt eine 2m Schrankwand schlecht hin. Im Badezimmer würde ich nicht gerne in Augenhöhe mit der Toilettenschüssel in der Badewanne liegen.

LG
Sabine
L
Legurit
20.06.16 09:37
De facto hättet ihr nichts verloren, wenn ihr das Bett wieder in die Ankleide verschiebt und im Erker ein Büro macht. Die Ankleide lässt sich nämlich nicht wirklich möblieren...
Ich würde den ganzen Erker entfernen und viel Geld sparen. Dachfenster ins "Büro" und gut; Wand etwas zurückschieben und Eingang zum Schlafzimmer so dass hinter der Tür eine gute Schrankreihe passt - Badzugang dann natürlich vom Flur.. Kinderbad weg, ordentlicher Flur und schwups ist man wieder beim Musterhaus

Will sagen, dass sich Grundrisse nicht einfach so verbiegen lassen. Habt ihr andere Anforderungen muss ein anderer, darauf ausgelegter, Grundriss her.
gäste-wcdoppelgaragehauswirtschaftsraumgrundrissekücheankleidekellerabstellraumspeicherschrankwand