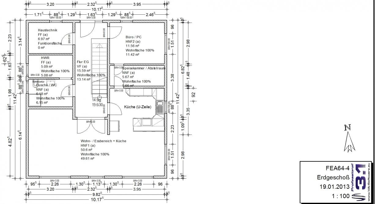
Hallo eigentlich ganz einfach, ich bitte euch um Meinungen zum Grundriss. Die Verwendung der Räume sollte eigentlich klar aus den Beschriftungen hervorgehen. Möbel haben wir im Moment nur Maßstabsgetreu "offline" gezeichnet. Zu unseren eigenen Vorstellungen möchte ich erst mal nichts schreiben, da ich gerne unvoreingenommene Meinungen hören würde, wie der Grundriss ankommt. Danke!
Zu den Bewohnern: 2 Erwachsene (vorhanden), 2 Kinder (geplant), >= 5 Katzen (vorhanden)
Hinweis: Die Dämmung kommt zum Außenmaß hinzu, im Grundriss ist nur der massive Wandanteil der Außenwand eingezeichnet.





Zu den Bewohnern: 2 Erwachsene (vorhanden), 2 Kinder (geplant), >= 5 Katzen (vorhanden)
Hinweis: Die Dämmung kommt zum Außenmaß hinzu, im Grundriss ist nur der massive Wandanteil der Außenwand eingezeichnet.
Hallo Chris,
Fenster harmonieren nicht.
14 Stufen sind nicht bequem begehbar.
Kinderzimmer sind schlecht möblierbar.
Garderobe? Unter der Treppe?
Flure erscheinen mir als zu schmal.
Türen bei Kind 1 und Eltern mal andersrum planen, ansonsten viel ungenutzte Fläche hinter Türen... Wozu muss man aus dem Büro in die Speisekammer? Technik, Hauswirtschaftsraum UND Speis? Technik und Hauswirtschaftsraum zusammen, dann sparst Du Dir die unsinnige Tür vom Gäste-Bad. Soll das auch als Kinderbad dienen?
Dachneigung gefällt nicht.
Es gibt bestimmt noch mehr...
Fenster harmonieren nicht.
14 Stufen sind nicht bequem begehbar.
Kinderzimmer sind schlecht möblierbar.
Garderobe? Unter der Treppe?
Flure erscheinen mir als zu schmal.
Türen bei Kind 1 und Eltern mal andersrum planen, ansonsten viel ungenutzte Fläche hinter Türen... Wozu muss man aus dem Büro in die Speisekammer? Technik, Hauswirtschaftsraum UND Speis? Technik und Hauswirtschaftsraum zusammen, dann sparst Du Dir die unsinnige Tür vom Gäste-Bad. Soll das auch als Kinderbad dienen?
Dachneigung gefällt nicht.
Es gibt bestimmt noch mehr...
Hallo, danke für das Feedback. Kurz zu deinen Fragen:
- Eigentlich sind es 15 Stufen, das Programm rechnet da irgendwie die Decke komisch und "verschluckt" da eine Stufe. Der Plan ist von mir muss ich dazu sagen, im Plan von der Hausbaufirma sind es 15 Stufen.
- Garderobe ist unter der Treppe neben der Bürotur angedacht, genau.
- Hauswirtschaftsraum ist ein eigener Raum, da sich dort Katzen mit Zugang zum Außengehege aufhalten. Im Technikraum sollen sich keine Katzen aufhalten. Ist natürlich sehr speziell und kann man nicht wissen ohne das ich es dazu sage .
Danke für den Hinweis mit Tür Kind 1, die habe ich anders herum als gedacht gezeichnet.
- Eigentlich sind es 15 Stufen, das Programm rechnet da irgendwie die Decke komisch und "verschluckt" da eine Stufe. Der Plan ist von mir muss ich dazu sagen, im Plan von der Hausbaufirma sind es 15 Stufen.
- Garderobe ist unter der Treppe neben der Bürotur angedacht, genau.
- Hauswirtschaftsraum ist ein eigener Raum, da sich dort Katzen mit Zugang zum Außengehege aufhalten. Im Technikraum sollen sich keine Katzen aufhalten. Ist natürlich sehr speziell und kann man nicht wissen ohne das ich es dazu sage .
Danke für den Hinweis mit Tür Kind 1, die habe ich anders herum als gedacht gezeichnet.
ypg schrieb:
Wo ist denn Süden? Wo die grossen Fensterflächen sind? Gibt es keine schönen Westfenster bei Euch?Es ist ein Nordpfeil auf der Karte, d.h. das Wohnzimmer zeigt fast direkt nach Süden. Im Westen sind Bäume sehr nahe am Haus, die wesentlich höher als das Haus sind, daher machen all zu viele Fenster nicht so viel Sinn. Deswegen gibt es auch nur 1 Wohnraum (Kind 1) im Westen, was aber gleichzeitig ein schönes Südfenster hat.
Ähnliche Themen