ᐅ Erster Grundriss – bitte um Kritik/Tipps
Erstellt am: 23.08.15 21:06
P
Project_IV23.08.15 21:06Hallo zusammen,
nachdem wir uns selbst einige Gedanken zu unseren Grundrissen gemacht haben und diese auch bereits in Gesprächen mit Bauträgern/Fertighausanbietern besprochen haben, möchten wir nun gerne auf diesem Wege ein paar Meinungen einholen.
Wir hoffen, dass wir Euch mit den folgenden Angaben/Anhängen genug Infos geben und gleichzeitig die Forumsregeln einhalten. Die angehängten Skizzen stellen unsere bisherigen Gedankengänge gut dar, stimmen von der Bemaßung aber nicht „auf den letzten Zentimeter“.
Bebauungsplan/Einschränkungen
Größe des Grundstücks => 530 qm
Hang => nein (allerdings ca. 1 m an einer Ecke abfallend)
Grundflächenzahl => 0,3
Geschossflächenzahl => 0,6
Dachform => Satteldach (Vorgabe 45 – 48°)
weitere Vorgaben => Kniestock bis Max. 1,50 m, Gebäudelängsseite mind. 11 m
Anforderungen der Bauherren
Stilrichtung, Dachform, Gebäudetyp => gerne nur 42° Dachneigung (= Abweichung von Vorgabe um 3°)
Außenmaße => Längsseite = 10 m (= Abweichung von Vorgabe um 1 m)
Keller, Geschosse => Keller + 2 Geschosse
Anzahl der Personen, Alter => 2 – perspektivisch 4
Raumbedarf im EG, OG => ca. 75 qm
Büro: Familiennutzung oder Homeoffice? => Familiennutzung
offene oder geschlossene Architektur => Küche offen, ansonsten geschlossen
konservativ oder moderne Bauweise => moderne Bauweise
offene Küche, Kochinsel => ja, offene Küche (Kochstelle mindestens zu drei Seiten freistehend)
Anzahl Essplätze => 6 - 8
Kamin => ja, Schwedenofen
Musik/Stereowand => ja
Balkon, Dachterrasse => nein
Garage, Carport => ja, Garage, Carport und Stellplatz
Nutzgarten, Treibhaus => nein
Hausentwurf
Von wem stammt die Planung:
- Do-it-Yourself von uns (nach Gesprächen mit verschiedenen Bauträgern/Fertighausanbietern)
Was gefällt besonders?:
- offene Küche, Arbeits-/Gästezimmer im EG
Was gefällt nicht/Was ist noch optimierungsbedürftig?:
Anordnung Carport
- ursprünglich geplant war, die Garage und das Carport direkt neben das Haus zu setzen -> eine möglichst große Gartenfläche zur Südseite bedingt aber, das Haus möglichst weit Richtung Norden zu setzen
=> mittlerweile sehen wir das Carport vor dem Haus nicht mehr ganz so negativ, da dies als Abschottung zur Straße dient (ca. 600 Fahrzeuge pro Tag), allerdings wäre eine Anordnung direkt am Haus wünschenswert (steht aber im Konflikt mit dem geplanten Küchenfenster)
Anordnung Fenster
- der Blick aus dem Küchenfenster geht direkt auf den Carport
- die Anordnung der Couch im Bereich der Fenster zur Terrasse ist noch nicht ganz klar, d. h. aktuell steht die Couch direkt vor den Fenstern
- ein Einbau von Dachfenstern (im Bereich der Schlafzimmer bzw. im Bereich des Treppenaufganges) steht noch zur Diskussion
Erdgeschoss
- das Wohnzimmer ist mit einer Breite von 4 m evtl. zu schmal und könnte „schlauchartig“ wirken
- aktuell gibt es keinen Abstellraum im EG
Obergeschoss
- Abstellraum ist derzeit zwischen den beiden Kinderzimmern geplant (aktuell kein Fenster)
Preisschätzung lt. Architekt/Planer:
- im Bereich von 300 – 350 TEUR
Persönliches Preislimit fürs Haus, inkl. Ausstattung:
- 350 TEUR (= absolutes Maximum)
favorisierte Heiztechnik:
- Gastherme/Solar vs. Wärmepumpe (Luft/Wasser)
Wenn Ihr verzichten müsst, auf welche Details/Ausbauten
… könnt Ihr verzichten:
- Abstellkammer im OG
… könnt Ihr nicht verzichten:
- offene Küche, Arbeits-/Gästezimmer im EG
Vielen herzlichen Dank für Eure Beiträge!





nachdem wir uns selbst einige Gedanken zu unseren Grundrissen gemacht haben und diese auch bereits in Gesprächen mit Bauträgern/Fertighausanbietern besprochen haben, möchten wir nun gerne auf diesem Wege ein paar Meinungen einholen.
Wir hoffen, dass wir Euch mit den folgenden Angaben/Anhängen genug Infos geben und gleichzeitig die Forumsregeln einhalten. Die angehängten Skizzen stellen unsere bisherigen Gedankengänge gut dar, stimmen von der Bemaßung aber nicht „auf den letzten Zentimeter“.
Bebauungsplan/Einschränkungen
Größe des Grundstücks => 530 qm
Hang => nein (allerdings ca. 1 m an einer Ecke abfallend)
Grundflächenzahl => 0,3
Geschossflächenzahl => 0,6
Dachform => Satteldach (Vorgabe 45 – 48°)
weitere Vorgaben => Kniestock bis Max. 1,50 m, Gebäudelängsseite mind. 11 m
Anforderungen der Bauherren
Stilrichtung, Dachform, Gebäudetyp => gerne nur 42° Dachneigung (= Abweichung von Vorgabe um 3°)
Außenmaße => Längsseite = 10 m (= Abweichung von Vorgabe um 1 m)
Keller, Geschosse => Keller + 2 Geschosse
Anzahl der Personen, Alter => 2 – perspektivisch 4
Raumbedarf im EG, OG => ca. 75 qm
Büro: Familiennutzung oder Homeoffice? => Familiennutzung
offene oder geschlossene Architektur => Küche offen, ansonsten geschlossen
konservativ oder moderne Bauweise => moderne Bauweise
offene Küche, Kochinsel => ja, offene Küche (Kochstelle mindestens zu drei Seiten freistehend)
Anzahl Essplätze => 6 - 8
Kamin => ja, Schwedenofen
Musik/Stereowand => ja
Balkon, Dachterrasse => nein
Garage, Carport => ja, Garage, Carport und Stellplatz
Nutzgarten, Treibhaus => nein
Hausentwurf
Von wem stammt die Planung:
- Do-it-Yourself von uns (nach Gesprächen mit verschiedenen Bauträgern/Fertighausanbietern)
Was gefällt besonders?:
- offene Küche, Arbeits-/Gästezimmer im EG
Was gefällt nicht/Was ist noch optimierungsbedürftig?:
Anordnung Carport
- ursprünglich geplant war, die Garage und das Carport direkt neben das Haus zu setzen -> eine möglichst große Gartenfläche zur Südseite bedingt aber, das Haus möglichst weit Richtung Norden zu setzen
=> mittlerweile sehen wir das Carport vor dem Haus nicht mehr ganz so negativ, da dies als Abschottung zur Straße dient (ca. 600 Fahrzeuge pro Tag), allerdings wäre eine Anordnung direkt am Haus wünschenswert (steht aber im Konflikt mit dem geplanten Küchenfenster)
Anordnung Fenster
- der Blick aus dem Küchenfenster geht direkt auf den Carport
- die Anordnung der Couch im Bereich der Fenster zur Terrasse ist noch nicht ganz klar, d. h. aktuell steht die Couch direkt vor den Fenstern
- ein Einbau von Dachfenstern (im Bereich der Schlafzimmer bzw. im Bereich des Treppenaufganges) steht noch zur Diskussion
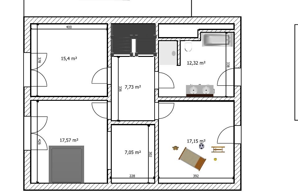
Erdgeschoss
- das Wohnzimmer ist mit einer Breite von 4 m evtl. zu schmal und könnte „schlauchartig“ wirken
- aktuell gibt es keinen Abstellraum im EG
Obergeschoss
- Abstellraum ist derzeit zwischen den beiden Kinderzimmern geplant (aktuell kein Fenster)
Preisschätzung lt. Architekt/Planer:
- im Bereich von 300 – 350 TEUR
Persönliches Preislimit fürs Haus, inkl. Ausstattung:
- 350 TEUR (= absolutes Maximum)
favorisierte Heiztechnik:
- Gastherme/Solar vs. Wärmepumpe (Luft/Wasser)
Wenn Ihr verzichten müsst, auf welche Details/Ausbauten
… könnt Ihr verzichten:
- Abstellkammer im OG
… könnt Ihr nicht verzichten:
- offene Küche, Arbeits-/Gästezimmer im EG
Vielen herzlichen Dank für Eure Beiträge!
Hallo,
Carport sehe ich jetzt nicht als Problem an, da sich hier eine Art Hof bildet, den man schön als (blickdichte) Frühstücksterrasse nutzen kann.
Dennoch würde ich Deine eigenen Einwände als Anlass nehmen, alles neu zu planen.
Küchenweg zur Terrasse ausserdem zu lang, Abstellraum im EG für Putzkrams wird dringend benötigt, Flur im OG viel zu schlauchig.
Naja, dann sind da noch Kleinigkeiten (Türpositionen zB oder Treppe, die wohl nur als Platzhalter gezeichnet ist, aber dennoch zu schmal), aber zu allererst wichtiger zu bedenken solltet Ihr den Kniestock: laut Ansicht scheint er nicht hoch zu sein, sodass der Gang ins Bett oder zur Toilette schwer sein wird.
Gruss Yvonne
Project_IV schrieb:
Was gefällt nicht/Was ist noch optimierungsbedürftig?:
Anordnung Carport
- ursprünglich geplant war, die Garage und das Carport direkt neben das Haus zu setzen -> eine möglichst große Gartenfläche zur Südseite bedingt aber, das Haus möglichst weit Richtung Norden zu setzen
=> mittlerweile sehen wir das Carport vor dem Haus nicht mehr ganz so negativ, da dies als Abschottung zur Straße dient (ca. 600 Fahrzeuge pro Tag), allerdings wäre eine Anordnung direkt am Haus wünschenswert (steht aber im Konflikt mit dem geplanten Küchenfenster)
Anordnung Fenster
- der Blick aus dem Küchenfenster geht direkt auf den Carport
- die Anordnung der Couch im Bereich der Fenster zur Terrasse ist noch nicht ganz klar, d. h. aktuell steht die Couch direkt vor den Fenstern
- ein Einbau von Dachfenstern (im Bereich der Schlafzimmer bzw. im Bereich des Treppenaufganges) steht noch zur Diskussion
Erdgeschoss
- das Wohnzimmer ist mit einer Breite von 4 m evtl. zu schmal und könnte „schlauchartig“ wirken
- aktuell gibt es keinen Abstellraum im EG
Obergeschoss
- Abstellraum ist derzeit zwischen den beiden Kinderzimmern geplant (aktuell kein Fenster)
Carport sehe ich jetzt nicht als Problem an, da sich hier eine Art Hof bildet, den man schön als (blickdichte) Frühstücksterrasse nutzen kann.
Dennoch würde ich Deine eigenen Einwände als Anlass nehmen, alles neu zu planen.
Küchenweg zur Terrasse ausserdem zu lang, Abstellraum im EG für Putzkrams wird dringend benötigt, Flur im OG viel zu schlauchig.
Naja, dann sind da noch Kleinigkeiten (Türpositionen zB oder Treppe, die wohl nur als Platzhalter gezeichnet ist, aber dennoch zu schmal), aber zu allererst wichtiger zu bedenken solltet Ihr den Kniestock: laut Ansicht scheint er nicht hoch zu sein, sodass der Gang ins Bett oder zur Toilette schwer sein wird.
Gruss Yvonne
Das mit der vermutlich nicht passenden Dachschräge zur Nutzung der Räume darunter ist mir auch gleich aufgefallen.
Ich gehe mal davon aus, dass der Lageplan eingenordet ist, dann würde ich das zweite Kinderzimmer eher Richtung Süden bringen.
Treppe zu schmal und nicht passend. Wo ist Garderobe? Flur im OG mit Rohbaumaß von 96 cm ... nöö.
Kücheneinrichtung sehr unpraktisch. Weg aus Küche bis zur Terrasse am Ofen vorbei finde ich gerade mit Kindern auch ungünstig. Tisch könnte zu nah an Ofen sein, denn, wenn dieser mal an ist, wird er ganz schön Hitze abstrahlen.
Ich gehe mal davon aus, dass der Lageplan eingenordet ist, dann würde ich das zweite Kinderzimmer eher Richtung Süden bringen.
Treppe zu schmal und nicht passend. Wo ist Garderobe? Flur im OG mit Rohbaumaß von 96 cm ... nöö.
Kücheneinrichtung sehr unpraktisch. Weg aus Küche bis zur Terrasse am Ofen vorbei finde ich gerade mit Kindern auch ungünstig. Tisch könnte zu nah an Ofen sein, denn, wenn dieser mal an ist, wird er ganz schön Hitze abstrahlen.
Funktionierender Standardgrundriss ohne Überraschungen.
Der Flur im OG wäre mir auch zu schlauchig. Ich mag diese reine Mini-Verteilerflure in den OGs nicht. Das drückt einfach alles.
Und wie schon angesprochen wurde, steht das Bett an der Stelle wahrscheinlich ziemlich ungünstig. Wie breit ist denn die Ankleide?
Bad sollte so funktionieren, wenn über das WC noch ein Dachfenster gemacht wird - haben wir auch so.
Würde auch noch ein kleines Fenster im Garderobenbereich vor dem WC machen. Und noch beim Treppenaufgang damit das OG noch belichtet wird. Evtl. Dachfenster über dem Treppenbereich.
Die Fenster im Wohn-Essbereich gefallen mir auch nicht so besonders. Einen Terrassenzugang hinter oder direkt press neben der Couch gehen gar nicht. Ich würde am Esstisch und in Raummitte jeweils eine doppelte Terrassentür machen und hinter der Couch nur ein doppeltes Fenster. Die Terrassentür links würde ich weiter nach Planoben schieben.
Überhaupt würde ich den Grundriss spiegeln, wenn ihr auf der linken Seite die Terrasse machen wollt. Finde es vorteilhafter vom Essbereich auf die Terrasse zu können, als vom Wohnbereich aus.
Ansonsten sind die Türpositionen noch nicht ausgereift - aber das sind Kleinigkeiten.
Der Flur im OG wäre mir auch zu schlauchig. Ich mag diese reine Mini-Verteilerflure in den OGs nicht. Das drückt einfach alles.
Und wie schon angesprochen wurde, steht das Bett an der Stelle wahrscheinlich ziemlich ungünstig. Wie breit ist denn die Ankleide?
Bad sollte so funktionieren, wenn über das WC noch ein Dachfenster gemacht wird - haben wir auch so.
Würde auch noch ein kleines Fenster im Garderobenbereich vor dem WC machen. Und noch beim Treppenaufgang damit das OG noch belichtet wird. Evtl. Dachfenster über dem Treppenbereich.
Die Fenster im Wohn-Essbereich gefallen mir auch nicht so besonders. Einen Terrassenzugang hinter oder direkt press neben der Couch gehen gar nicht. Ich würde am Esstisch und in Raummitte jeweils eine doppelte Terrassentür machen und hinter der Couch nur ein doppeltes Fenster. Die Terrassentür links würde ich weiter nach Planoben schieben.
Überhaupt würde ich den Grundriss spiegeln, wenn ihr auf der linken Seite die Terrasse machen wollt. Finde es vorteilhafter vom Essbereich auf die Terrasse zu können, als vom Wohnbereich aus.
Ansonsten sind die Türpositionen noch nicht ausgereift - aber das sind Kleinigkeiten.
P
Project_IV25.08.15 22:23Hallo zusammen,
vielen Dank für Eure Meinungen. Wir haben uns - auch auf Basis des Inputs - weitere Gedanken gemacht, die zu folgendem neuen Grundriss für das EG geführt haben (siehe Anlage).
Die Änderungen nachfolgend kurz zusammengefasst:
- das Arbeitszimmer wurde gespiegelt
- die Küche ist näher an der Terrasse, das Wohnzimmer näher am Garten
- innerhalb des Wohnzimmers gibt es jetzt eine sehr schöne Ecke für Couch und Fernseh/Stereowand (bisher gab es hier einen Konflikt mit dem Terrassenzugang)
=> unklar ist, ob im Wohnzimmer in Richtung Norden ein weiteres Fenster benötigt werden würde (eher nicht machbar wegen der Garage)
Noch nicht komplett klar ist allerdings, wie der restliche Bereich im EG idealerweise gestaltet werden sollte. Offen ist die genaue Anordnung der Treppe, der Haustür, der Garderobe und des Gäste-WC (eine Abstellkammer fehlt auch noch). Da die Treppe wohl hinter die Wand zum Wohnzimmer angeordnet werden sollte verschiebt sich die Haustür weiter weg von der Garage (wodurch die Überdachung von der Garage zur Haustür größer werden müsste).
Die Auswirkungen der ganzen Änderungen auf das OG sind noch nicht dargestellt. Das kommt dann in einem zweiten Schritt.
Der Kompass (auf den Dokumenten) wurde nochmals leicht angepasst, sodass die Ausrichtung jetzt stimmt.
Für weitere Tipps sind wir sehr dankbar.

vielen Dank für Eure Meinungen. Wir haben uns - auch auf Basis des Inputs - weitere Gedanken gemacht, die zu folgendem neuen Grundriss für das EG geführt haben (siehe Anlage).
Die Änderungen nachfolgend kurz zusammengefasst:
- das Arbeitszimmer wurde gespiegelt
- die Küche ist näher an der Terrasse, das Wohnzimmer näher am Garten
- innerhalb des Wohnzimmers gibt es jetzt eine sehr schöne Ecke für Couch und Fernseh/Stereowand (bisher gab es hier einen Konflikt mit dem Terrassenzugang)
=> unklar ist, ob im Wohnzimmer in Richtung Norden ein weiteres Fenster benötigt werden würde (eher nicht machbar wegen der Garage)
Noch nicht komplett klar ist allerdings, wie der restliche Bereich im EG idealerweise gestaltet werden sollte. Offen ist die genaue Anordnung der Treppe, der Haustür, der Garderobe und des Gäste-WC (eine Abstellkammer fehlt auch noch). Da die Treppe wohl hinter die Wand zum Wohnzimmer angeordnet werden sollte verschiebt sich die Haustür weiter weg von der Garage (wodurch die Überdachung von der Garage zur Haustür größer werden müsste).
Die Auswirkungen der ganzen Änderungen auf das OG sind noch nicht dargestellt. Das kommt dann in einem zweiten Schritt.
Der Kompass (auf den Dokumenten) wurde nochmals leicht angepasst, sodass die Ausrichtung jetzt stimmt.
Für weitere Tipps sind wir sehr dankbar.
Ähnliche Themen