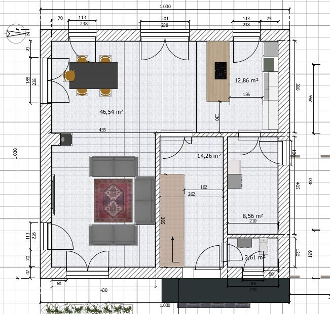
Hallo Hausbau-Forum Freunde,
Ich habe hier ein Entwurf geplant und bitte um Tipps zum Entwurf des einer Stadtvilla 10,3x10,3m.
- Unglücklich bin ich mit Hausfront. Die Fensteranordnung der Front finde ich mäßig. Aber wie die Proportion behalten zur Tür.
- Der Kaminzug macht mir sorgen, aber besseren Platz finde ich nicht.
- Bestehen solche L-Form Vordächer aus Werkstoff Trespa?
- Muss man bei L-Form Vordächer die Baugrenze beachten? (hier 3m zur Straße)
- Wie kann man so ein Vordach mit 5m Breite beim Klinkermauerwerk anbringen?
- Wer hat noch Tipps für mich?
Bebauungsplan/Einschränkungen
Größe des Grundstücks: 500qm
Hang: Nein
Grundflächenzahl: 0,3
Geschossflächenzahl: 2
Baufenster, Baulinie und -grenze: 3m zur Straße
Randbebauung: nein
Anzahl Stellplatz: 1
Geschossigkeit: 2
Dachform: Zeltdach 30°
Stilrichtung: Stadtvilla, KFW55
Ausrichtung: Südliche Längsachse
Maximale Höhen/Begrenzungen: 10,5m
Anforderungen der Bauherren
Stilrichtung (Stadtvilla), Dachform (Zelt-oder Walmdach),
Gebäudetyp (quadratisch wegen Längsachse und Eingang von Straßenseite)
Keller (nein), Geschosse (2)
Anzahl der Personen, Alter: 4 (2 Erwachsene und 2 Kleinkinder)
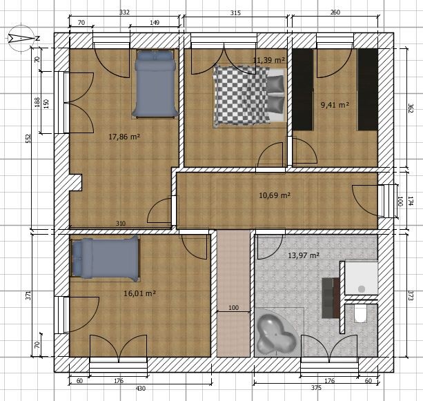
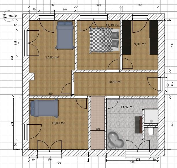
Raumbedarf im EG, OG: ca. 160qm
Büro: Familiennutzung oder Homeoffice? Familiennutzung
Schlafgäste pro Jahr: selten
offene oder geschlossene Architektur: kein Plan
konservativ oder moderne Bauweise: modern
offene Küche, Kochinsel: ja
Anzahl Essplätze: 6 Personen
Kamin: ja
Carport
Hausentwurf
Von wem stammt die Planung: Do-it-Yourself
Was gefällt besonders? Warum? Viele bodentiefe Fenster. Offene Küche.
Was gefällt nicht? Warum? Hausfront, die Fenster sind nicht optimal platziert. Der Kaminzug, aber besser gehts nicht.
Persönliches Preislimit fürs Haus, inkl Ausstattung: 300.000€
favorisierte Heiztechnik: Gas-Therme
Wenn Ihr verzichten müsst, auf welche Details/Ausbauten
-könnt Ihr verzichten: Gästeraum
-könnt Ihr nicht verzichten: Bodentiefe Fenster
Warum ist der Entwurf so geworden, wie er jetzt ist?
10,3x10,3m. Irgendwie muss ja alles reinpassen.






Ich habe hier ein Entwurf geplant und bitte um Tipps zum Entwurf des einer Stadtvilla 10,3x10,3m.
- Unglücklich bin ich mit Hausfront. Die Fensteranordnung der Front finde ich mäßig. Aber wie die Proportion behalten zur Tür.
- Der Kaminzug macht mir sorgen, aber besseren Platz finde ich nicht.
- Bestehen solche L-Form Vordächer aus Werkstoff Trespa?
- Muss man bei L-Form Vordächer die Baugrenze beachten? (hier 3m zur Straße)
- Wie kann man so ein Vordach mit 5m Breite beim Klinkermauerwerk anbringen?
- Wer hat noch Tipps für mich?
Bebauungsplan/Einschränkungen
Größe des Grundstücks: 500qm
Hang: Nein
Grundflächenzahl: 0,3
Geschossflächenzahl: 2
Baufenster, Baulinie und -grenze: 3m zur Straße
Randbebauung: nein
Anzahl Stellplatz: 1
Geschossigkeit: 2
Dachform: Zeltdach 30°
Stilrichtung: Stadtvilla, KFW55
Ausrichtung: Südliche Längsachse
Maximale Höhen/Begrenzungen: 10,5m
Anforderungen der Bauherren
Stilrichtung (Stadtvilla), Dachform (Zelt-oder Walmdach),
Gebäudetyp (quadratisch wegen Längsachse und Eingang von Straßenseite)
Keller (nein), Geschosse (2)
Anzahl der Personen, Alter: 4 (2 Erwachsene und 2 Kleinkinder)
Raumbedarf im EG, OG: ca. 160qm
Büro: Familiennutzung oder Homeoffice? Familiennutzung
Schlafgäste pro Jahr: selten
offene oder geschlossene Architektur: kein Plan
konservativ oder moderne Bauweise: modern
offene Küche, Kochinsel: ja
Anzahl Essplätze: 6 Personen
Kamin: ja
Carport
Hausentwurf
Von wem stammt die Planung: Do-it-Yourself
Was gefällt besonders? Warum? Viele bodentiefe Fenster. Offene Küche.
Was gefällt nicht? Warum? Hausfront, die Fenster sind nicht optimal platziert. Der Kaminzug, aber besser gehts nicht.
Persönliches Preislimit fürs Haus, inkl Ausstattung: 300.000€
favorisierte Heiztechnik: Gas-Therme
Wenn Ihr verzichten müsst, auf welche Details/Ausbauten
-könnt Ihr verzichten: Gästeraum
-könnt Ihr nicht verzichten: Bodentiefe Fenster
Warum ist der Entwurf so geworden, wie er jetzt ist?
10,3x10,3m. Irgendwie muss ja alles reinpassen.
Warum fehlt b) der Hinweis auf den Ursprung https://www.hausbau-forum.de/threads/bitte-um-Tipps-zum-Entwurf-eg-Grundriss.33375/page-6 bzw. geht es a) nicht einfach dort weiter ?
https://www.instagram.com/11antgmxde/
https://www.linkedin.com/company/bauen-jetzt/
https://www.instagram.com/11antgmxde/
https://www.linkedin.com/company/bauen-jetzt/
Hallo Curly, ja die Treppe ist viertelgewendelt. Das Programm kann es nicht darstellen. Sweet3d
11ant, das ist eine andere eher finale Fassung. Daher habe ich es neu eingestellt. Die Probleme und Aspekte sind andere.
Um mit dem ersten Post nicht zu verwirren habe ich kein Verweis darauf.
11ant, das ist eine andere eher finale Fassung. Daher habe ich es neu eingestellt. Die Probleme und Aspekte sind andere.
Um mit dem ersten Post nicht zu verwirren habe ich kein Verweis darauf.
mondbau schrieb:
Um mit dem ersten Post nicht zu verwirren habe ich kein Verweis darauf.So ein Blödsinn. Die Leser sind ja erwachsen und können dem Verweis auch ihre Gefolgschaft verweigern. Aber sie quasi dumm zu halten, in dem man einen zweiten Teil der Diskussion gewissermaßen mit dem Unterschlagen des ersten Teils "beginnt", ist wenig nett. Bedenke, daß die allerwenigsten Forenteilnehmer mit einem 11antengedächtnis geschlagen sind.https://www.instagram.com/11antgmxde/
https://www.linkedin.com/company/bauen-jetzt/
11ant ich verstehe die Problematik nicht. Wo steht bitte das man pro Person nur einmal ein Thema eröffnen darf ohne ein Verweis auf ein ähnliches Thema zu setzen? Der erste Thread ist gegessen, aus und vorbei. Das ist hier ein neues Thread mit neuem Entwurf, neuem Umfeld, neuem Aspekten und Themen. Corona tut hier keinem gut anscheint, alle auf Krawall gebürstet. Wenn der Mod das möchte das Lösche ich das hier wieder, solche Unterhaltungen kann ich verzichten. Ich möchte nicht auf dem ersten Thread hinweisen, wenn ich eine Frage habe ob L-Form Vordächer aus Werkstoff Trespa hergestellt werden!?! Wenn ich ein Thema von vor 4 Monaten nicht aufgreifen möchte, weil es kein Sinn macht, heißt das nicht das alle hier dumm sind... Das spiegelt nicht meine Meinung, aber anscheint anderen Personen Denkweise.
Ähnliche Themen