ᐅ Klassisches Einfamilienhaus 200qm (plus Keller) Tipps?
Erstellt am: 07.02.21 08:37
M
MucBauherr07.02.21 08:37Hallo liebes Forum,
nach einiger Zeit des stillen Mitlesens ist die Zeit gekommen (endlich) hier unsere ersten Entwürfe für unser Haus zu posten.
Grundsätzlich sind wir schon sehr zufrieden mit den Entwürfen, insbesondere mit dem EG. Aber genau das ist das Problem: Wir erkennen keine Alternativen mehr und würden uns daher sehr freuen, wenn das Forum die Entwürfe ungefiltert kritisch hinterfragt.
Ich werde den Hausbau, der gerade am Anfang steht, versuchen auch weiter hier up-to-date zu halten.
Vielen Dank und liebe Grüße aus Bayern.
Bebauungsplan/Einschränkungen
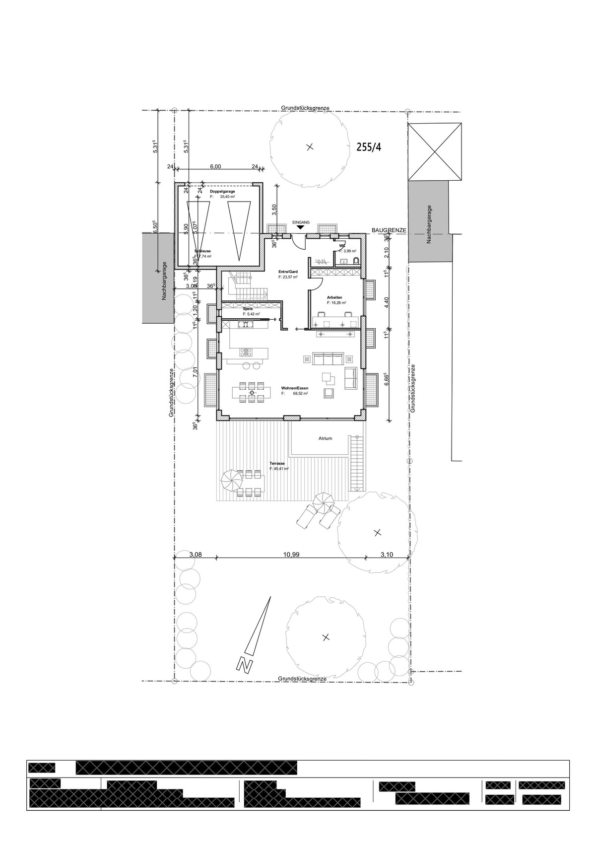
Größe des Grundstücks: 727qm
Hang: nein
Grundflächenzahl: 0,10-0,24
Geschossflächenzahl: 0,38
Baufenster, Baulinie und -grenze: 9 Meter von der Straße weg (im Norden); gilt nicht für Garagen
Randbebauung: Nebengebäude (Garagen)
Anzahl Stellplatz:
Geschossigkeit:
Dachform:
Stilrichtung:
Ausrichtung: Süd-West
Maximale Höhen/Begrenzungen: k.a
weitere Vorgaben: Bebaubarkeit nach § 34 Baugesetzbuch; Entwürfe lt. Aussage Baubehörde so ohne Probleme realisierbar.
Anforderungen der Bauherren
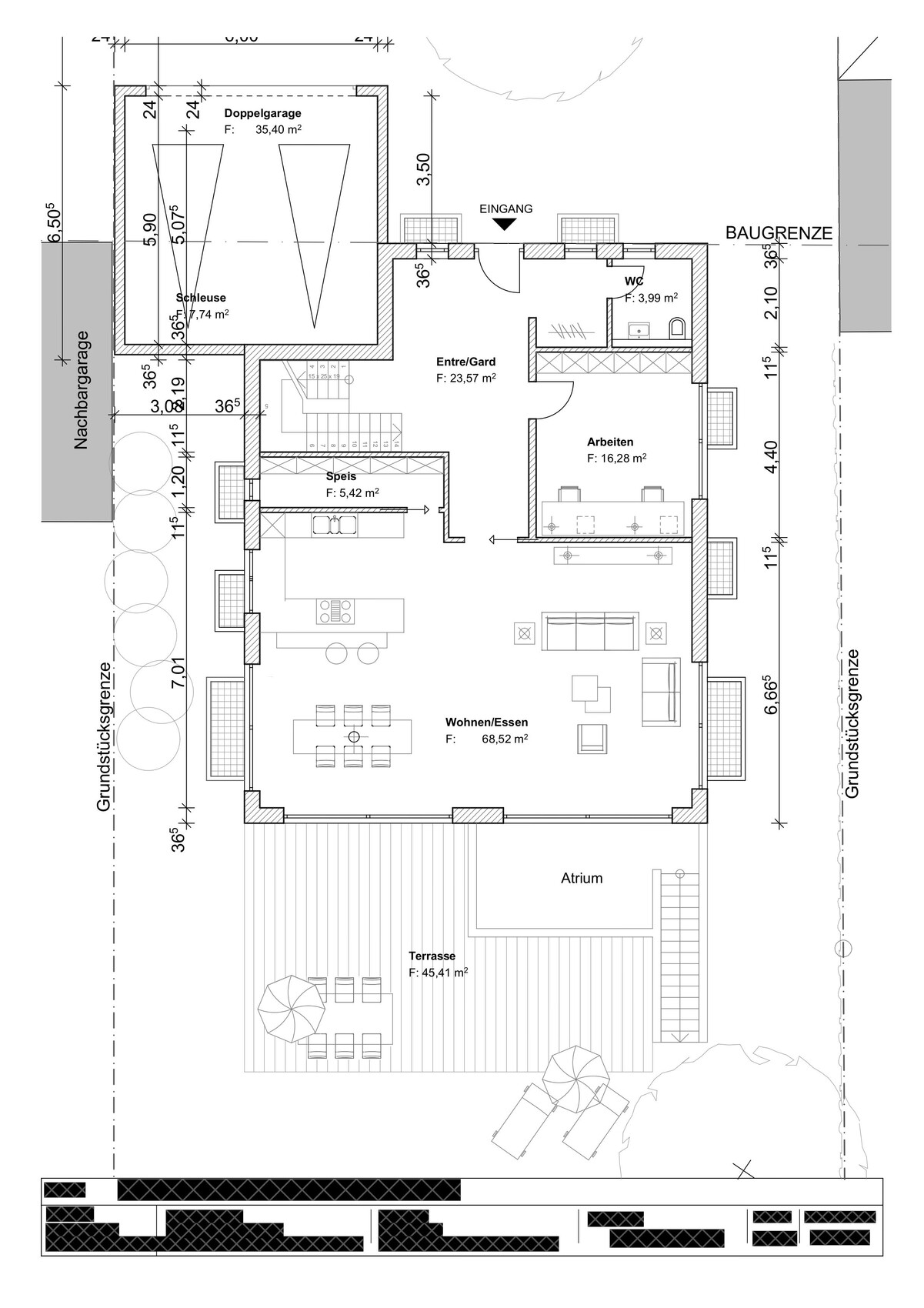
Stilrichtung, Dachform, Gebäudetyp: Klassisches Einfamilienhaus mit, Satteldach.
Keller, Geschosse: KG+EG+DG (2 Vollgeschosse)
Anzahl der Personen, Alter: drei Personen: 32, 30, 2 (+0)
Raumbedarf im EG, OG: 200qm +
Büro: Familiennutzung oder Homeoffice?: Homeoffice-Möglichkeit für 2 Arbeitende
Schlafgäste pro Jahr: 20
offene oder geschlossene Architektur: offen
konservativ oder moderne Bauweise: modern
offene Küche, Kochinsel: offene Küche
Anzahl Essplätze: mind. 6
Kamin: ja (fehlt aktuell in der Planung. Soll aber im Wohnzimmer zwischen den beiden großen Fensterelementen realisiert werden.
Musik/Stereowand: nein
Balkon, Dachterrasse: ja (Balkon in der aktuellen Planung gefällt uns nicht; würden eventuell das OG "kürzer" planen und so den gewonnenen Platz als Balkon nutzen
Garage, Carport: Doppelgarage
Nutzgarten, Treibhaus: nein
weitere Wünsche/Besonderheiten/Tagesablauf, gern auch Begründungen, warum dieses oder das nicht sein soll
Hausentwurf
Von wem stammt die Planung: Architekt
Was gefällt besonders? Warum?: Das Erdgeschoss finden wir toll mit den großen Fensterfläche Richtung Süden
Was gefällt nicht? Warum?: Unentschlossenheit im OG; Eventuell alles zu voll gepackt?
Preisschätzung lt Architekt/Planer: 800.000
Persönliches Preislimit fürs Haus, inkl Ausstattung: max. 1.000.000 (dann aber mit Außenanlage)
favorisierte Heiztechnik: nicht festgelegt; (bin persönlich kein Fan von Luft-Wasser-Wärmepumpe)
Wenn Ihr verzichten müsst, auf welche Details/Ausbauten
-könnt Ihr verzichten: Atrium Keller, Bad im Keller bereits jetzt ausbauen, Holz/Aluminium-Fenster, die riesige Terrasse, Südlichen Fensterelemente in Form einzelner Glasflächen
-könnt Ihr nicht verzichten: Auf die insgesamte Größe
Warum ist der Entwurf so geworden, wie er jetzt ist? ZB
Standardentwurf vom Planer?
Entsprechende/Welche Wünsche wurden vom Architekten umgesetzt? Basierend auf einem Raumprogamm, welches wir dem Architekten vorab zur Verfügung gestellt haben.
Ein Gemisch aus vielen Beispielen aus div. Magazinen...
Was macht ihn in Euren Augen besonders gut oder schlecht?: Eventuell fehlt das gewisse extra.
Was ist die wichtigste/grundlegende Frage zum Grundriss in 130 Zeichen zusammengefasst?:
1. Ist die Preisschätzung vom Architekten so in etwa in Ordnung?
2. Gibt es aus eurer Sicht grundlegende Sachen, die nicht funktionieren?
3. Wie könnten wir den Entwurf noch ein wenig auflockern?
PS: Die Möbel im Entwurf sind teilweise noch sehr wild verteilt. Das ist alles noch nicht final. Auch fehlen noch einzelne Fenster bzw. teilweise sind diese noch an falschen Stellen und zu groß dimenisioniert.
Ich freue mich auf eure Anmerkungen. Ich werde insbesondere am Wochenende versuchen die Fragen ausführlich zu beantworten.
LG aus Bayern!




nach einiger Zeit des stillen Mitlesens ist die Zeit gekommen (endlich) hier unsere ersten Entwürfe für unser Haus zu posten.
Grundsätzlich sind wir schon sehr zufrieden mit den Entwürfen, insbesondere mit dem EG. Aber genau das ist das Problem: Wir erkennen keine Alternativen mehr und würden uns daher sehr freuen, wenn das Forum die Entwürfe ungefiltert kritisch hinterfragt.
Ich werde den Hausbau, der gerade am Anfang steht, versuchen auch weiter hier up-to-date zu halten.
Vielen Dank und liebe Grüße aus Bayern.
Bebauungsplan/Einschränkungen
Größe des Grundstücks: 727qm
Hang: nein
Grundflächenzahl: 0,10-0,24
Geschossflächenzahl: 0,38
Baufenster, Baulinie und -grenze: 9 Meter von der Straße weg (im Norden); gilt nicht für Garagen
Randbebauung: Nebengebäude (Garagen)
Anzahl Stellplatz:
Geschossigkeit:
Dachform:
Stilrichtung:
Ausrichtung: Süd-West
Maximale Höhen/Begrenzungen: k.a
weitere Vorgaben: Bebaubarkeit nach § 34 Baugesetzbuch; Entwürfe lt. Aussage Baubehörde so ohne Probleme realisierbar.
Anforderungen der Bauherren
Stilrichtung, Dachform, Gebäudetyp: Klassisches Einfamilienhaus mit, Satteldach.
Keller, Geschosse: KG+EG+DG (2 Vollgeschosse)
Anzahl der Personen, Alter: drei Personen: 32, 30, 2 (+0)
Raumbedarf im EG, OG: 200qm +
Büro: Familiennutzung oder Homeoffice?: Homeoffice-Möglichkeit für 2 Arbeitende
Schlafgäste pro Jahr: 20
offene oder geschlossene Architektur: offen
konservativ oder moderne Bauweise: modern
offene Küche, Kochinsel: offene Küche
Anzahl Essplätze: mind. 6
Kamin: ja (fehlt aktuell in der Planung. Soll aber im Wohnzimmer zwischen den beiden großen Fensterelementen realisiert werden.
Musik/Stereowand: nein
Balkon, Dachterrasse: ja (Balkon in der aktuellen Planung gefällt uns nicht; würden eventuell das OG "kürzer" planen und so den gewonnenen Platz als Balkon nutzen
Garage, Carport: Doppelgarage
Nutzgarten, Treibhaus: nein
weitere Wünsche/Besonderheiten/Tagesablauf, gern auch Begründungen, warum dieses oder das nicht sein soll
Hausentwurf
Von wem stammt die Planung: Architekt
Was gefällt besonders? Warum?: Das Erdgeschoss finden wir toll mit den großen Fensterfläche Richtung Süden
Was gefällt nicht? Warum?: Unentschlossenheit im OG; Eventuell alles zu voll gepackt?
Preisschätzung lt Architekt/Planer: 800.000
Persönliches Preislimit fürs Haus, inkl Ausstattung: max. 1.000.000 (dann aber mit Außenanlage)
favorisierte Heiztechnik: nicht festgelegt; (bin persönlich kein Fan von Luft-Wasser-Wärmepumpe)
Wenn Ihr verzichten müsst, auf welche Details/Ausbauten
-könnt Ihr verzichten: Atrium Keller, Bad im Keller bereits jetzt ausbauen, Holz/Aluminium-Fenster, die riesige Terrasse, Südlichen Fensterelemente in Form einzelner Glasflächen
-könnt Ihr nicht verzichten: Auf die insgesamte Größe
Warum ist der Entwurf so geworden, wie er jetzt ist? ZB
Standardentwurf vom Planer?
Entsprechende/Welche Wünsche wurden vom Architekten umgesetzt? Basierend auf einem Raumprogamm, welches wir dem Architekten vorab zur Verfügung gestellt haben.
Ein Gemisch aus vielen Beispielen aus div. Magazinen...
Was macht ihn in Euren Augen besonders gut oder schlecht?: Eventuell fehlt das gewisse extra.
Was ist die wichtigste/grundlegende Frage zum Grundriss in 130 Zeichen zusammengefasst?:
1. Ist die Preisschätzung vom Architekten so in etwa in Ordnung?
2. Gibt es aus eurer Sicht grundlegende Sachen, die nicht funktionieren?
3. Wie könnten wir den Entwurf noch ein wenig auflockern?
PS: Die Möbel im Entwurf sind teilweise noch sehr wild verteilt. Das ist alles noch nicht final. Auch fehlen noch einzelne Fenster bzw. teilweise sind diese noch an falschen Stellen und zu groß dimenisioniert.
Ich freue mich auf eure Anmerkungen. Ich werde insbesondere am Wochenende versuchen die Fragen ausführlich zu beantworten.
LG aus Bayern!
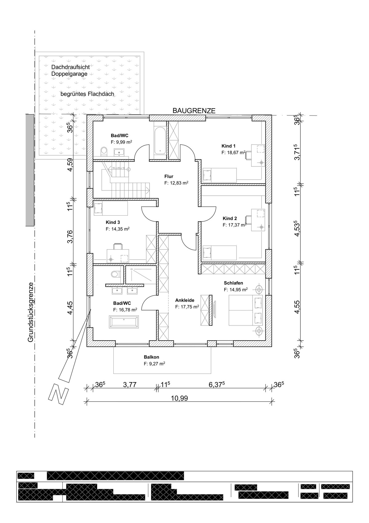
hm .... was mir sofort aufgefallen ist ... Treppe 15 Steigungen 25x19 ... = Geschosshöhe von 285 cm = Fertigraumhöhe gut 250 cm und das in einem über 60 qm großem Raum ... wäre mir zu wenig.
Als nächstes .. im OG gönnt ihr 10 m Schrank, einem Bett und einem Bad die schöne Sonnenseite und 50 qm Wohnhfläche. Kind 1 hat da nur Nordfenster .. sind eigentlich Kind 2 und 3 noch geplant oder sind das schon Alternativen für Arbeits-/Gästezimmer?
Kinderbad ... da würde ich über die Aufteilung noch sehr nachdenken.
EG - Wohnzimmer ... wenn da an dem Süd-Wandstück noch ein Kamin hinkommt, dann wird es rund um den Esstisch schon weniger großzügig. Die eingezeichnete Küche ist überdenkenswert, die Speisekammer mit einer Rohbautiefe von 120 cm für jeden ausgelagerten Kühl/TK-Schrank unbrauchbar.
Riesenflur, letztendlich aber nur ca. 150 cm Garderobenecke effektiv nutzbar.
Büro ... wenn 2 im Homeoffice arbeiten, würde ich lieber 2 kleinere Räume planen, als 2 Arbeitende in einem Raum. Telefonmeetings usw. sind dann einfach ruhiger durchzuführen.
Als nächstes .. im OG gönnt ihr 10 m Schrank, einem Bett und einem Bad die schöne Sonnenseite und 50 qm Wohnhfläche. Kind 1 hat da nur Nordfenster .. sind eigentlich Kind 2 und 3 noch geplant oder sind das schon Alternativen für Arbeits-/Gästezimmer?
Kinderbad ... da würde ich über die Aufteilung noch sehr nachdenken.
EG - Wohnzimmer ... wenn da an dem Süd-Wandstück noch ein Kamin hinkommt, dann wird es rund um den Esstisch schon weniger großzügig. Die eingezeichnete Küche ist überdenkenswert, die Speisekammer mit einer Rohbautiefe von 120 cm für jeden ausgelagerten Kühl/TK-Schrank unbrauchbar.
Riesenflur, letztendlich aber nur ca. 150 cm Garderobenecke effektiv nutzbar.
Büro ... wenn 2 im Homeoffice arbeiten, würde ich lieber 2 kleinere Räume planen, als 2 Arbeitende in einem Raum. Telefonmeetings usw. sind dann einfach ruhiger durchzuführen.
Wird das ein 2-Geschosser ohne Dachschrägen oben? Ich bin zu faul zum addieren: wieviel Grundfläche und wieviel Wohnfläche hat es?
Was ist mit der flexiblen Grundflächenzahl? Kleiner Wert fürs Haus, großer Wert für die Nebenanlagen?
Wurde das rigoros ignoriert?
Wie sieht denn die Umgebung aus? Was für Häuser stehen da?
Zum Entwurf: schön groß 😉 Für mich hat der Allraum zu wenig Struktur. Hat hier eher Hallenatmosphäre und könnte Probleme mit dem Hall Küche/TV geben.
Im OG würde ich auch eher mal die Ausrichtung der Räume betrachten - da ist ein Missverhältnis.
Zur Einrichtung selbst muss man ja nichts sagen, wenn noch nicht einmal die Fenster feststehen...
Im EG drauf achten, dass eine Terrassentür frei zugänglich ist und nicht mit Möbeln wie Esstisch blockiert wird.
Was ist mit der flexiblen Grundflächenzahl? Kleiner Wert fürs Haus, großer Wert für die Nebenanlagen?
Wurde das rigoros ignoriert?
Wie sieht denn die Umgebung aus? Was für Häuser stehen da?
Zum Entwurf: schön groß 😉 Für mich hat der Allraum zu wenig Struktur. Hat hier eher Hallenatmosphäre und könnte Probleme mit dem Hall Küche/TV geben.
Im OG würde ich auch eher mal die Ausrichtung der Räume betrachten - da ist ein Missverhältnis.
Zur Einrichtung selbst muss man ja nichts sagen, wenn noch nicht einmal die Fenster feststehen...
Im EG drauf achten, dass eine Terrassentür frei zugänglich ist und nicht mit Möbeln wie Esstisch blockiert wird.
M
motorradsilke07.02.21 10:34Ich würde auf jeden Fall noch einen direkten Zugang von der Garage aus einplanen.
M
MucBauherr07.02.21 10:40Hallo Danke für die Antworten!
- Raumhöhe wird angepasst
- Ein Kind kommt sicher noch
- Küche wird geplant als Hochschränke zur Speisekammer (mit verstecktem Durchgang) Ansonsten Kücheninsel vorne und Spüle zur Seite
- Küche wird geplant als Hochschränke zur Speisekammer (mit verstecktem Durchgang) Ansonsten Kücheninsel vorne und Spüle zur Seite
- Esszimmer ist quasi 4x4. Ist das zu klein?
- Kinderzimmer oben werden größer. Da nehmen wir insbesondere von Bad und Ankleide weg. Ausrichtung soll aber so bleiben. Klar wären die Kinderzimmer nach Süden besser aber es ist nun mal unser Haus und Kinder ziehen aus.
- Wie könnte man den Allraum (Wohnzimmer) besser strukturieren?
- Grundfläche sind ca. 11 auf 13
- Umgebung alles Einfamilienhaus mit zwei Vollgeschossendie (Grundflächenzahl so unterschiedlich, da verschieden Häuser und Grundstücke mit diesen Werten vorhanden. Die Abmessungen entsprechen aber exakt dem was aktuell auch auf dem Grundstück steht aber abgerissen werden muss. Mehr kann ich als Laie nicht dazu sagen.
M
MucBauherr07.02.21 10:56Noch eine Anmerkung: Haus wird gebaut mit 2 Vollgeschossen. Sichtdachstuhl derzeit nicht geplant. Kommt auch auf die Dachneigung an.
Ähnliche Themen