Hallo allerseits,
wir planen dieses Jahr ein Einfamilienhaus zu bauen - wir sind 2 Erwachsene mit 2 Kindern.
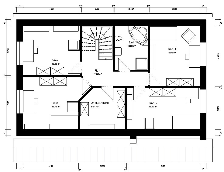
Vorgabe ist eingeschossige Bebauung.
Wir haben uns für ein klassisches Satteldach entschieden, da kompakter und langlebiger (als Stadtvilla mit Flachdachanbau o.Ä.). Jedoch haben wir einen hohen Drempel eingeplant, damit die schrägen Wände möglichst wenig stören.
Hier ist der letzte Entwurf unseres Planers!
In Gäste-WC und Küche fehlt noch je ein Fenster/Lichtband nach Westen.
Im OG fehlen noch die Dachfenster in Treppenhaus, Bad und Abstellraum.
Im OG sind die Flächenangaben noch Grundflächen, da die genaue Höhe des Drempel noch nicht feststeht.
Ich freue mich über Feedback! Wirkt das Haus stimmig und gibt es eventuell noch No-go's, die übersehen wurden?


wir planen dieses Jahr ein Einfamilienhaus zu bauen - wir sind 2 Erwachsene mit 2 Kindern.
Vorgabe ist eingeschossige Bebauung.
Wir haben uns für ein klassisches Satteldach entschieden, da kompakter und langlebiger (als Stadtvilla mit Flachdachanbau o.Ä.). Jedoch haben wir einen hohen Drempel eingeplant, damit die schrägen Wände möglichst wenig stören.
Hier ist der letzte Entwurf unseres Planers!
In Gäste-WC und Küche fehlt noch je ein Fenster/Lichtband nach Westen.
Im OG fehlen noch die Dachfenster in Treppenhaus, Bad und Abstellraum.
Im OG sind die Flächenangaben noch Grundflächen, da die genaue Höhe des Drempel noch nicht feststeht.
Ich freue mich über Feedback! Wirkt das Haus stimmig und gibt es eventuell noch No-go's, die übersehen wurden?
Fein, mir gefällt es! Eventuell ist die Garderobe und der Hauswirtschaftsraum etwas klein, wo wird denn gewaschen? Abstellfläche ist zumindest genug vorhanden, weil man ja noch Potential für Schränke in Büro und Gast hat
Wahrscheinlich wird der Platz unter der Treppe für Jacken herhalten müssen, aber es gibt schlimmeres...
Ich finde den Elterntrakt im EG sehr schön, gab es hier in der letzten Zeit schon einmal.
Gruß Yvonne
Edith: wird das WZ auch so eingerichtet?
Wahrscheinlich wird der Platz unter der Treppe für Jacken herhalten müssen, aber es gibt schlimmeres...
Ich finde den Elterntrakt im EG sehr schön, gab es hier in der letzten Zeit schon einmal.
Gruß Yvonne
Edith: wird das WZ auch so eingerichtet?
Danke für die Rückmeldungen!
Die Einrichtung im Wohnzimmer ist erst mal eine Idee, die Möbel haben wir noch gar nicht. Wir haben derzeit in unserer Mietwohnung eine 3 m schrankwand, sowie ein 3 m Sofa (das soll aber ersetzt werden).
Eigentlich soll im HAR im Erdgeschoss Gewaschen und getrocknet werden. Das Haus wird mit einer Wärmepumpe beheizt. Ist dann der HAR zu klein? Unser Planer hat stark davon abgeraten, die Treppe weiter zu verschieben, da sonst die Bäder sehr schmal würden. Weiter meinte er, dass man mindestens 2,25 m Treppenbreite für eine halbgewendelte Treppe planen sollte, da sonst die Treppe ungemütlich wirkt.
Um Garderobe und HAR größer zu machen, könnten wir also entweder den Durchgang - derzeit 1,4 m - schmaler machen, oder die Westwand verschieben. Damit würde dann aber natürlich das ganze Haus größer werden...es hat aber jetzt bereits ca. 183 m².
Die Garderobe muss zumindest nur die "aktuellen" Jacken und Schuhe fassen, die Sommer-/Winter-/Wechselsachen können beispielsweise im Schlafzimmer in der Riesen Schrankwand unterkommen oder auch im HAR in einem Regal. Dann sollte das mit 1,7 m Garderobe (und eventuell unter der Treppe noch Haken) doch reichen, oder?
Die Einrichtung im Wohnzimmer ist erst mal eine Idee, die Möbel haben wir noch gar nicht. Wir haben derzeit in unserer Mietwohnung eine 3 m schrankwand, sowie ein 3 m Sofa (das soll aber ersetzt werden).
Eigentlich soll im HAR im Erdgeschoss Gewaschen und getrocknet werden. Das Haus wird mit einer Wärmepumpe beheizt. Ist dann der HAR zu klein? Unser Planer hat stark davon abgeraten, die Treppe weiter zu verschieben, da sonst die Bäder sehr schmal würden. Weiter meinte er, dass man mindestens 2,25 m Treppenbreite für eine halbgewendelte Treppe planen sollte, da sonst die Treppe ungemütlich wirkt.
Um Garderobe und HAR größer zu machen, könnten wir also entweder den Durchgang - derzeit 1,4 m - schmaler machen, oder die Westwand verschieben. Damit würde dann aber natürlich das ganze Haus größer werden...es hat aber jetzt bereits ca. 183 m².
Die Garderobe muss zumindest nur die "aktuellen" Jacken und Schuhe fassen, die Sommer-/Winter-/Wechselsachen können beispielsweise im Schlafzimmer in der Riesen Schrankwand unterkommen oder auch im HAR in einem Regal. Dann sollte das mit 1,7 m Garderobe (und eventuell unter der Treppe noch Haken) doch reichen, oder?
Der Planer soll Euch mal die Technik im Hauswirtschaftsraum einzeichnen, inklusive Elektriker-Schrank und Ablesegeräte Strom und Wasser. Habt Ihr eine Lüftungsanlage? Die könnte man hängen. Ich selbst weiss jetzt nicht, wie viel Platz eine Wärmepumpe so braucht. Das ist doch das Teil, welches draußen steht? Braucht man da keinen Warmwasserspeicher? Im Hauswirtschaftsraum sollte dann ja auch noch Vorräte und kleines Werkzeug Platz haben.
Den Durchgang würde ich nicht schmälern. Ihr müsst nur in der Garderobe mit einer Tiefe von 60 cm für Jacken auf Bügel rechnen, Schuhe für 4 Personen, Schals, Mützen, Taschen und Handschuhe. Eine grosse Kommode unter der Treppen könnte dies abfangen... oder gleich eine geschlossene Treppe mit viel Platz darunter und eine Tür davor
Gruss Yvonne
Den Durchgang würde ich nicht schmälern. Ihr müsst nur in der Garderobe mit einer Tiefe von 60 cm für Jacken auf Bügel rechnen, Schuhe für 4 Personen, Schals, Mützen, Taschen und Handschuhe. Eine grosse Kommode unter der Treppen könnte dies abfangen... oder gleich eine geschlossene Treppe mit viel Platz darunter und eine Tür davor
Gruss Yvonne
Hallo,
ich find den Entwurf auch schön. Es gibt ein paar kleine Stellen, die mir nicht gefallen: Der Flur oben ist sehr dunkel, da kein Fenster. Hier würde ich die Türen von Gast und Büro mit Milchglas-Türeinsetzen versehen oder Dachfenster möglich?
Gibts unterm Dach in Bad und Abstell ein Dachfenster?
Das Schlafzimmer unter dem Kindergetrampel braucht eine Spezialdecke, die besonders Schallarm ist. Sonst war's das für's Ausschlafen.
45°-Schrägen bei Wänden find ich wie immer blöd, aber ist ja nur die eine Tür oben
Die Fensteranordnung an der Treppe/Bad unten ist mir noch unklar - weder sinnvolle Abstände noch ideal angeordnet. Gibts da Ansichten?
Schornstein braucht Ihr nicht?
Sonst wirklich nicht schlecht, finde ich.
ich find den Entwurf auch schön. Es gibt ein paar kleine Stellen, die mir nicht gefallen: Der Flur oben ist sehr dunkel, da kein Fenster. Hier würde ich die Türen von Gast und Büro mit Milchglas-Türeinsetzen versehen oder Dachfenster möglich?
Gibts unterm Dach in Bad und Abstell ein Dachfenster?
Das Schlafzimmer unter dem Kindergetrampel braucht eine Spezialdecke, die besonders Schallarm ist. Sonst war's das für's Ausschlafen.
45°-Schrägen bei Wänden find ich wie immer blöd, aber ist ja nur die eine Tür oben
Die Fensteranordnung an der Treppe/Bad unten ist mir noch unklar - weder sinnvolle Abstände noch ideal angeordnet. Gibts da Ansichten?
Schornstein braucht Ihr nicht?
Sonst wirklich nicht schlecht, finde ich.
Ähnliche Themen