Entwurf des Planers für unser Einfamilienhaus

4,70 Stern(e) 3 Votes
Zuletzt aktualisiert 25.11.2025
Sie befinden sich auf der Seite 5 der Diskussion zum Thema: Entwurf des Planers für unser Einfamilienhaus
>> Zum 1. Beitrag <<

Y

ypg

Das Haus steht schon Die Außenanlagen werden grad gebuddelt - Fotos hier und dort hatte ich ja auch schon mal eingestellt - folgen aber noch mehr, sobald ich mich wieder ums Haus bewegen kann.
Gebretz ist im Übrigen meine Frau.
Hihi, jetzt, wo Du es sagst... Ich hatte mir vorhin nur das OG angeschaut und tatsächlich Ähnlichkeit mit Deinem OG festgestellt... Allerdings ist in diesen letzten Beiträgen ein kleinerer Kniestock angezeigt
 
L

Legurit

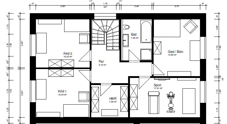
Der Grundriss ist es geworden:

Grundriss eines Obergeschosses mit Treppenhaus, Flur, Bad, Gäste/Büro, 2 Kinderzimmer, HWR, Sportraum

Grundriss eines Hauses mit Küche/Essen, Wohnen, Schlafen, Diele, Garderobe, HAR und WCs.

Der Rohbau:

Unterkonstruktion eines Hauses: Backsteinpfosten, offene Garagen, Holzdachrahmen, Baufolie.

Mehrstöckiger Rohbau mit Gerüst aus Metall und roter Backsteinfassade bei Bauarbeiten.


Innenaufnahme eines Rohbaus: linke Betontreppe, rechts offenes Mauerwerk, Baukonstruktion sichtbar.

Der Innenausbau:

Unfertiger Dachgeschossraum mit Trockenbauwänden, Fenster und Spachtelarbeiten

Weißer Innenraum mit schräger Wand, rechteckige Nische, dunkler Hintergrund und grünem Eimer.

Mit Fenstern:

Ziegelhaus mit Satteldach, zwei große Fensterfronten und Baum rechts im Vordergrund.

Zweigeschossiges Backsteinhaus mit blauem Ziegeldach, großen Glasfronten und Terrasse


Küche:

Moderne Küche mit Holzschränken, Insel und Backofen; Kartons stehen auf der Theke.


Nun bald folgend Außenanlagen und evtl. noch mal ein paar Fotos von drinnen.
 
MarcWen

MarcWen

Schön den Werdegang zu sehen...

Kannst du noch 2-3 Bilder vom Treppenhaus posten. Wollte mal wegen Licht und wie das gemauerte "Geländer" wirkt.
 
P

Payday

wirklich schönes Haus. sogar mit Sportraum, sehr cool was willste da reinstellen, bzw welche sportgeräte hast du ?
wieso eigentlich elternzimmer im EG? hat das einen speziellen Grund? weil das "große" Bad ist dann wohl für die Kinder only ?! dafür aber gleich 3x wc, nicht schlecht. gibts ja einiges zu putzen
 
Zuletzt aktualisiert 25.11.2025
Im Forum Grundrissplanung / Grundstücksplanung gibt es 2536 Themen mit insgesamt 88016 Beiträgen
Oben