W
Mein Konto
Hausbau - Ratgeber
Bauherrenhilfe
- Bauherrenhilfe vor Vertragsabschluss
-- Warum einen unabhängigen Baubetreuer?
-- Vertragsgrundlagen
-- Bausumme
-- Zahlungsplan zur Kostenkontrolle
-- Pflichten des Bauherren vor Vertragsabschluss
-- Unterlagen beim Hausbau vor Vertragsabschluss
- Bauherrenhilfe nach Vertragsabschluss
-- Bauantrag bei Behörden
-- Bau-Genehmigungsverfahren bei Baubehörden
-- Bauspezifische Versicherungen
-- Bauzeitenplan
-- Baubeginn - die Letzten Pflichten der Bauherrschaft
- Bauherrenhilfe während der Bauzeit
- Gewährleistungsansprüche
- Bauabnahme
Baufinanzierung
- Baufinanzierung - Allgemeine Fragen
- Kreditarten
- Kredit-Konditionen
- Bausparen
- Staatliche Förderungen
- Verkehrswert
- Haushaltsrechnung und Bonität
Hausbau Planung
- Haustypen
- Hausbau Vorbereitungsarbeiten
- Das Baugrundstück
- Baugrund beim Hausbau
- Baurecht
- Gebäudeschutz
- Erdarbeiten und Wasserhaltung
- Stützmauern
- Einfriedung
- Untergeschoss
- Kanalisation
- Tragende Elemente
- Nichttragende Innenwände
- Fundation / Fundament
- Deckenkonstruktionen
- Dächer
- Kaminanlagen
- Treppen Rampen Leitern
- Dachbeläge und Spengler
- Fenster
- Sonnen und Wetterschutz
- Aussenputze
- Einbauten, Küchen, Türen
- Bodenbeläge und Unterlagsböden
- Parkett
- Gips, Wand, Decke
Haustechnik und Energie
- Heiztechnik
- Lüftung und Klimatechnik
- Sanitärtechnik
- Elektrotechnik
- Erneuerbare Energie
Whirlpools / Jacuzzi
Hausbau Magazin
- Baufinanzierung trotz Krise?
- Das Blockhaus
- Moderne Dämmstoffe im Vergleich
- Erker Vor- und Nachteile
- Glasflächen beim Hausbau
- Günstig ein Haus Bauen
- Mediterraner Hausbaustil
- Mehrgenerationenhaus
- Moderne Architektur
- Gartengestaltung leicht gemacht
- Traditioneller Ziegelbau
- Villa als höchster Traum
- Im Eigenheim Ruhestand geniessen
- Altbau sanieren
- Kauf einer Holzgarage
- Immobilienmakler
- Arbeitshandschuhe für den Winter
- Zuhause verschönern
- Outdoor-Plissees
- Schlafzimmer planen
- Terrassenüberdachung
- Wohngebäudeversicherung
- Zaunarten und Eigenschaften
- Hauseingang gestalten
- Der perfekte Grundriss
- Sparsamer heizen im Altbau
- Einfamilienhaus smart finanzieren
- Planung einer PV-Anlage
- Neues Haus
- Immobilienfinanzierung
- Installation einer Photovoltaikanlage
- Asbest erkennen und entfernen
- Sauna im Fokus - Wellness zuhause
- Erfolgreich vermieten
- Die perfekte Winterbekleidung
- Das Niedrigenergiehaus
- Der April und seine Stürme
- Architektonische Vielfalt
- Ökologisch und nachhaltig bauen
- Das perfekte Schlafzimmer
- Nachhaltige Energieversorgung
- Zukunftsorientiert bauen
- Nachhaltigkeit beim Hausbau
- Tiny Houses
- Wärmepumpen als nachhaltige Heizvariante
- Maßgeschneiderten Kleiderschrank
- Der richtige Baukredit
- Ratgeber für erfolgreichen Hausbau
- Haus als Altersvorsorge
Do-it-yourself Anleitungen
- Verlegeanleitung für Bodenbeläge und Parkett
- Bodenbeläge und Parkett reinigen und pflegen
- Malerarbeiten am Haus
- Garten Tipps
- Umzug und Reinigung

ᐅ Entwurf des Planers für unser Einfamilienhaus


Erstellt am: 18.01.15 11:41

Gebretz18.01.15 11:41
Hallo allerseits,

wir planen dieses Jahr ein Einfamilienhaus zu bauen - wir sind 2 Erwachsene mit 2 Kindern.
Vorgabe ist eingeschossige Bebauung.
Wir haben uns für ein klassisches Satteldach entschieden, da kompakter und langlebiger (als Stadtvilla mit Flachdachanbau o.Ä.). Jedoch haben wir einen hohen Drempel eingeplant, damit die schrägen Wände möglichst wenig stören.

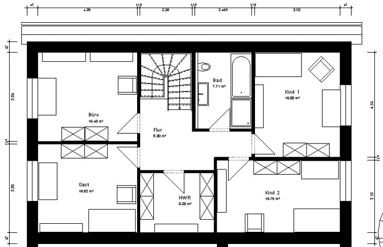
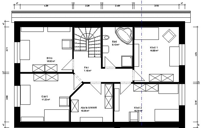
Hier ist der letzte Entwurf unseres Planers!
In Gäste-WC und Küche fehlt noch je ein Fenster/Lichtband nach Westen.
Im OG fehlen noch die Dachfenster in Treppenhaus, Bad und Abstellraum.
Im OG sind die Flächenangaben noch Grundflächen, da die genaue Höhe des Drempel noch nicht feststeht.

Ich freue mich über Feedback! Wirkt das Haus stimmig und gibt es eventuell noch No-go's, die übersehen wurden?

Grundriss einer Wohnung: Küche/Essen, Wohnen, Schlafen, Diele/Garderobe, HAR, zwei WCs.


Grundriss eines Hauses mit Flur, Bad, Büro, Gast, zwei Kinderzimmer, Abstellraum
ypg18.01.15 12:04
Fein, mir gefällt es! Eventuell ist die Garderobe und der Hauswirtschaftsraum etwas klein, wo wird denn gewaschen? Abstellfläche ist zumindest genug vorhanden, weil man ja noch Potential für Schränke in Büro und Gast hat
Wahrscheinlich wird der Platz unter der Treppe für Jacken herhalten müssen, aber es gibt schlimmeres...
Ich finde den Elterntrakt im EG sehr schön, gab es hier in der letzten Zeit schon einmal.

Gruß Yvonne

Edith: wird das WZ auch so eingerichtet?
Manu197618.01.15 12:17
Ich finde es auch gut.
Gebretz18.01.15 13:15
Danke für die Rückmeldungen!
Die Einrichtung im Wohnzimmer ist erst mal eine Idee, die Möbel haben wir noch gar nicht. Wir haben derzeit in unserer Mietwohnung eine 3 m Schrankwand, sowie ein 3 m Sofa (das soll aber ersetzt werden).
Eigentlich soll im HAR im Erdgeschoss Gewaschen und getrocknet werden. Das Haus wird mit einer Wärmepumpe beheizt. Ist dann der HAR zu klein? Unser Planer hat stark davon abgeraten, die Treppe weiter zu verschieben, da sonst die Bäder sehr schmal würden. Weiter meinte er, dass man mindestens 2,25 m Treppenbreite für eine halbgewendelte Treppe planen sollte, da sonst die Treppe ungemütlich wirkt.
Um Garderobe und HAR größer zu machen, könnten wir also entweder den Durchgang - derzeit 1,4 m - schmaler machen, oder die Westwand verschieben. Damit würde dann aber natürlich das ganze Haus größer werden...es hat aber jetzt bereits ca. 183 m².
Die Garderobe muss zumindest nur die "aktuellen" Jacken und Schuhe fassen, die Sommer-/Winter-/Wechselsachen können beispielsweise im Schlafzimmer in der Riesen Schrankwand unterkommen oder auch im HAR in einem Regal. Dann sollte das mit 1,7 m Garderobe (und eventuell unter der Treppe noch Haken) doch reichen, oder?
ypg18.01.15 13:38
Der Planer soll Euch mal die Technik im Hauswirtschaftsraum einzeichnen, inklusive Elektriker-Schrank und Ablesegeräte Strom und Wasser. Habt Ihr eine Lüftungsanlage? Die könnte man hängen. Ich selbst weiss jetzt nicht, wie viel Platz eine Wärmepumpe so braucht. Das ist doch das Teil, welches draußen steht? Braucht man da keinen Warmwasserspeicher? Im Hauswirtschaftsraum sollte dann ja auch noch Vorräte und kleines Werkzeug Platz haben.
Den Durchgang würde ich nicht schmälern. Ihr müsst nur in der Garderobe mit einer Tiefe von 60 cm für Jacken auf Bügel rechnen, Schuhe für 4 Personen, Schals, Mützen, Taschen und Handschuhe. Eine grosse Kommode unter der Treppen könnte dies abfangen... oder gleich eine geschlossene Treppe mit viel Platz darunter und eine Tür davor

Gruss Yvonne
kaho67418.01.15 15:41
Hallo,
ich find den Entwurf auch schön. Es gibt ein paar kleine Stellen, die mir nicht gefallen: Der Flur oben ist sehr dunkel, da kein Fenster. Hier würde ich die Türen von Gast und Büro mit Milchglas-Türeinsetzen versehen oder Dachfenster möglich?
Gibts unterm Dach in Bad und Abstell ein Dachfenster?
Das Schlafzimmer unter dem Kindergetrampel braucht eine Spezialdecke, die besonders Schallarm ist. Sonst war's das für's Ausschlafen.
45°-Schrägen bei Wänden find ich wie immer blöd, aber ist ja nur die eine Tür oben
Die Fensteranordnung an der Treppe/Bad unten ist mir noch unklar - weder sinnvolle Abstände noch ideal angeordnet. Gibts da Ansichten?
Schornstein braucht Ihr nicht?
Sonst wirklich nicht schlecht, finde ich.
treppedachfenstergarderobehauswirtschaftsraumdrempelentwurfschrankwandwärmepumpeplanerdurchgang