Einfamilienhaus Nordosthang 230m2 Satteldach

5,00 Stern(e) 11 Votes
H

hausbau2021

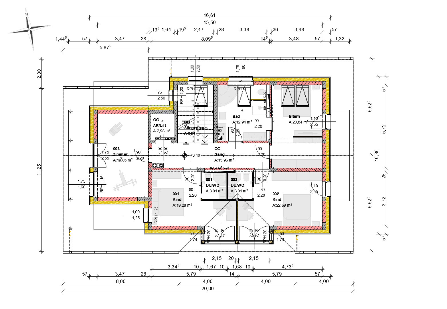
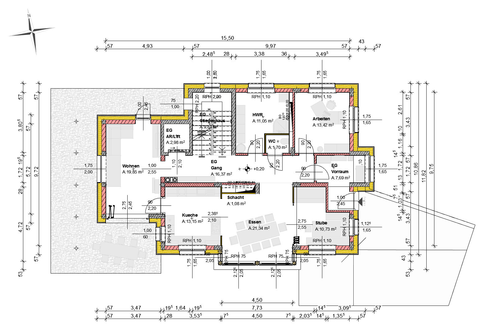
Habe nun noch ein wenig an der letzten Grundriss-Version (mit Wohn-Ess-Bereich im Obergeschoss) geschraubt. Auch dank der Kommentare aus dem Forum bin nun das erste Mal an einem Punkt, wo ich denke, es könnte halbwegs passen.

Größe ist gleich geblieben. Etwa 220 qm. Position am Grundstück wie zuletzt im Westen.

Geändert hat sich die Hausform, jetzt ohne Vor- oder Rücksprünge. Kleinwohnung im EG mit flexibler Nutzung durch eine Faltwand teilbar. Zum Beispiel als Kinderzimmer+Hauswirtschaftsraum, Gästezimmer+Hauswirtschaftsraum, komplette Einliegerwohnung, etc. Als Kinderzimmer sind grundsätzlich die beiden östlichen Räume im EG vorgesehen. Solange die Kinder klein sind, ist das Zimmer oben als Kinderzimmer gedacht.

Freue mich wie immer über alle kritischen, konstruktiven und weniger ernst gemeinten Kommentare!

Grundriss Kellergeschoss mit Technik, Waschküche, Schutzraum Hobby, Lift, Treppenhaus, Garderobe.


Grundriss eines Wohnhauses: Zimmer, Küche, Bad, Treppe, Lift, Vorhaus, Gang, Außenbereich


Grundriss eines Hauses mit Wohnzimmer, Küche, Bad, Schlafzimmer, Terrasse und Lift.


Modernes zweistöckiges Holzhaus auf Hanglage mit Balkon, Solarmodule und Auto auf der Einfahrt.
 
kaho674

kaho674

Ich finde das Monster hat sich ganz gut entwickelt.
Nur noch mal ein paar grundsätzliche Fragen - sorry wenn es schon erwähnt wurde. Wenn man mehrere Threads verfolgt, behält man nicht jedes Detail im Kopf:
Du willst ja unbedingt die Einliegerwohnung. Für wen war die jetzt gedacht? Das Kindermädchen? In #1 steht, Du willst die Möglichkeit haben, eine Wohnung zu vermieten und die Geschosse einfach zu trennen. Wird dieses Ziel noch verfolgt? Ich sehe hier nur die Einliegerwohnung abgetrennt. Soll später unten links und rechts getrennt vermietet werden?

Wenn man es sich jetzt ansieht, hat nur die Einliegerwohnung tatsächlich ein eigenes abgetrenntes Reich. Der Mieter rennt praktisch ständig direkt quer durch Euer Haus. Die Treppe als Trennung reicht nicht aus - das ist nicht ihre Aufgabe. Im Gegenteil, sie verbindet 2 Etagen. Das ist so, als wenn ein Fremder jeden Tag durch meinen Flur rennt. Der Mieter hört dementsprechend auch alles, was ihr da oben so treibt. Er nutzt Deine Garderobe mit, verstreut da seinen Dreck und wenn er Lust hat, schleicht er sich hoch und klaut Euch heimlich das Tafelsilber. Verstehst Du? Da ist keine Haustür zwischen Eurem Mieter und Euch. Das wäre für mich ein absolutes KO-Kriterium. Aber sonst find ich's ganz nett.

Sag noch mal schnell, warum Du alles selbst planst? Ist kein guter Architekt zu finden für das Mio-Projekt?
 
kaho674

kaho674

Was ich mich auch frage: Ich sehe keinen Grund, warum die Wohnräume nicht klassisch im EG an den Garten angebunden werden und die Schlafräume alle nach oben können?
 
Zuletzt aktualisiert 08.10.2025
Im Forum Grundrissplanung / Grundstücksplanung gibt es 2512 Themen mit insgesamt 87205 Beiträgen


Ähnliche Themen zu Einfamilienhaus Nordosthang 230m2 Satteldach
Nr.ErgebnisBeiträge
1Meinungen zum Einfamilienhaus mit Einliegerwohnung Grundrisse - Seite 254
2Grundriss Einfamilienhaus Einliegerwohnung als 3-Parteien-Haus - Seite 969
3Grundriss Einfamilienhaus mit optionaler Einliegerwohnung - Seite 544
4Grundriss - Haus mit Einliegerwohnung - Seite 223
5Neubau Stadtvilla mit Einliegerwohnung und Doppelgarage 72
6Definition für eine Einliegerwohnung 20
7Einliegerwohnung für Eltern: 210 m² Einfamilienhaus und 80 m² Einliegerwohnung - Seite 12129
8Grundriss Einfamilienhaus mit Einliegerwohnung 77
9Grundriss Bungalow mit Einliegerwohnung - Grundriss Feedback - Seite 570
10Einfamilienhaus mit Einliegerwohnung - Ideen gesucht 11
11Einfamilienhaus + Einliegerwohnung im Hang mit flexibler Nutzung 30
12Einfamilienhaus mit 75 qm Einliegerwohnung 47
13Verbesserungsvorschläge Einfamilienhaus 137 qm GF mit Einliegerwohnung - Seite 568
14Einfamilienhaus Freistehend am Hang mit Einliegerwohnung - Seite 325
15Großes Büro oder gleich eine Einliegerwohnung? - Seite 324
16Grundrisse Einfamilienhaus mit Einliegerwohnung bitte Tipps und Feedback 62
17Neubau mit Einliegerwohnung - GU schränkt Vermietung und KfW Förderung ein - Seite 251
18Grundriss-Planung Einfamilienhaus ca. 240qm mit Doppelgarage und Einliegerwohnung im Keller - Seite 216
19Einfamilienhaus-Neubau: Einliegerwohnung planen für spätere Familienerweiterung? 47
20Einliegerwohnung / Doppelhaus Vorteile - Seite 264

Oben