ᐅ Grundriss Einfamilienhaus mit Einliegerwohnung
Erstellt am: 22.05.17 10:40
Z
zwei&vierzig22.05.17 10:40Guten Tag in die Runde,
wir sind dabei ein Haus zu bauen und haben uns nach langem Hin und Her für Grundrisse entschieden. Gerne zeige ich euch die Pläne und bin gespannt auf eure sachlichen Meinungen.
Bitte nicht auf die Form der Küche eingehen. Wir sind momentan mitten in der Küchenplanung und so wie es im Plan eingezeichnet ist, wird es sicher nicht umgesetzt
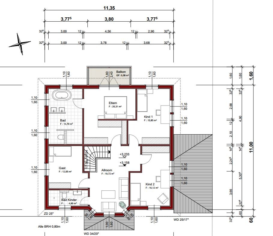
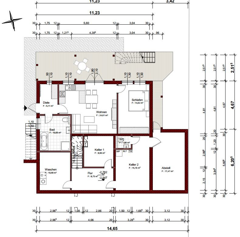
Das Grundstück hat ein starkes Gefälle von Nord nach Süd (zwischen Straße und der unteren Grundstücksgrenze liegen 8 Meter) und ein kleines Gefälle von Ost nach West (das ist die Straßenseite, hier sind es zwei 2 Meter Unterschied). Einen Zugang zum Garten hat nur der Mieter der Einliegerwohnung. Da das Haus recht groß geraten ist, haben wir uns entschieden im Keller eine Einliegerwohnung einzurichten und diese zu vermieten. Es gibt einen separaten Eingang zur Einliegerwohnung.
Uns war wichtig das Wohnzimmer vom Koch- und Essplatz zu trennen, da wir drei Katzen haben und ich gerne ein schönes Sofa anschaffen möchte ohne Rücksicht auf zerstörerische Katzenkrallen nehmen zu müssen Im OG war uns eine große Diele als 2. Wohnzimmer wichtig. Ich bin kein Fan von Fernseher oder Computern im Kinderzimmer.
Einen Bebauungsplan gibt es nicht. Die Garage wird direkt auf die Grenze gebaut.
Bebauungsplan/Einschränkungen
Größe des Grundstücks: 630 qm; Grundstück ist 18 m breit
Hang: Ja. starker Südhang.
Baufenster, Baulinie und -grenze:
Geschossigkeit: Keller/ Souterrain, zwei Vollgeschoss, Dachgeschoss
Geschosshöhe: 2,80 m
Dachform: 25 Grad Zeltdach
Stilrichtung: Schwedenhaus (Holzständerbauweise)
Ausrichtung: Süden
Anzahl der Personen, Alter: 2 Erwachsene und zwei Kinder (die noch nicht da sind)
Büro: Homeoffice.
offene oder geschlossene Architektur: moderne, aber eher geschlossene Architektur.
offene Küche, Kochinsel: groß Wohnküche mit Kochinsel; Wohnzimmer separat
Kamin: geplant
Balkon, Dachterrasse: Großer Balkon mit Zugang zum Garten und kleiner Balkon am Schlafzimmer
Garage: Doppelgarage
Ich hoffe ich habe alle wichtigen Punkte korrekt vorab beantwortet.
Liebe Grüße aus der Galaxis!



wir sind dabei ein Haus zu bauen und haben uns nach langem Hin und Her für Grundrisse entschieden. Gerne zeige ich euch die Pläne und bin gespannt auf eure sachlichen Meinungen.
Bitte nicht auf die Form der Küche eingehen. Wir sind momentan mitten in der Küchenplanung und so wie es im Plan eingezeichnet ist, wird es sicher nicht umgesetzt
Das Grundstück hat ein starkes Gefälle von Nord nach Süd (zwischen Straße und der unteren Grundstücksgrenze liegen 8 Meter) und ein kleines Gefälle von Ost nach West (das ist die Straßenseite, hier sind es zwei 2 Meter Unterschied). Einen Zugang zum Garten hat nur der Mieter der Einliegerwohnung. Da das Haus recht groß geraten ist, haben wir uns entschieden im Keller eine Einliegerwohnung einzurichten und diese zu vermieten. Es gibt einen separaten Eingang zur Einliegerwohnung.
Uns war wichtig das Wohnzimmer vom Koch- und Essplatz zu trennen, da wir drei Katzen haben und ich gerne ein schönes Sofa anschaffen möchte ohne Rücksicht auf zerstörerische Katzenkrallen nehmen zu müssen Im OG war uns eine große Diele als 2. Wohnzimmer wichtig. Ich bin kein Fan von Fernseher oder Computern im Kinderzimmer.
Einen Bebauungsplan gibt es nicht. Die Garage wird direkt auf die Grenze gebaut.
Bebauungsplan/Einschränkungen
Größe des Grundstücks: 630 qm; Grundstück ist 18 m breit
Hang: Ja. starker Südhang.
Baufenster, Baulinie und -grenze:
Geschossigkeit: Keller/ Souterrain, zwei Vollgeschoss, Dachgeschoss
Geschosshöhe: 2,80 m
Dachform: 25 Grad Zeltdach
Stilrichtung: Schwedenhaus (Holzständerbauweise)
Ausrichtung: Süden
Anzahl der Personen, Alter: 2 Erwachsene und zwei Kinder (die noch nicht da sind)
Büro: Homeoffice.
offene oder geschlossene Architektur: moderne, aber eher geschlossene Architektur.
offene Küche, Kochinsel: groß Wohnküche mit Kochinsel; Wohnzimmer separat
Kamin: geplant
Balkon, Dachterrasse: Großer Balkon mit Zugang zum Garten und kleiner Balkon am Schlafzimmer
Garage: Doppelgarage
Ich hoffe ich habe alle wichtigen Punkte korrekt vorab beantwortet.
Liebe Grüße aus der Galaxis!
Z
zwei&vierzig22.05.17 10:54Hallo, ja unten ist Norden. Balkone sind alle nach Süden ausgerichtet.
Sehe ich das richtig, dass der Hauptbesitzer nen großen Balkon hat und der Mieter der Einliegerwohnung den Garten? Falls das so sein sollte, würde ich ganz klar UG und OG tauschen.
Dann haben die Kinder vom Zimmer aus Gartenzugang, der Mieter im OG bekommt nen Balkon.
Zu den Plänen:
UG:
- Allraum der Einliegerwohnung ist sehr schlecht zu möblieren, Bad ist äußerst Groß im Verhältnis zum Rest der Wohnung.
- Wozu im "Keller2" noch ein WC?
EG:
- Küchenplanung seid ihr ja schon dran. Aber aus dem Raum sollte sich was schönes machen lassen.
- Soll das Wohnzimmer wirklich so möbliert werden? Bei ner Raumbreite von ~3,40 bleiben nach Abzug der Türe noch ungefähr 2,50 für die Couch über.
Unsere Couch hat ne Breite von 3,30.
Nur mal als Denkanstoß, am besten mal die Möbel mit realen Maßen einzeichnen.
- Wie breit ist der Balkon?
So wie ich das sehe, lässt sich nur bei dem Teil mit dem "Erker" ein Gartentisch stellen, allerdings versperrt der dann auch den Zugang zum Haus. Da das als Hauptterrasse dienen soll, finde ich das sehr unglücklich.
OG:
- Elternschlafzimmer als Durchgangszimmer ist sehr ungünstig.
- Ich würde das Bad wohl bisschen kleiner machen, dafür das Gästezimmer weiter nach planoben schieben, damit der Zugang noch möglich ist. Dadurch wird das schlauchige Kinderbad auch größer und besser zu möblieren.
Mich würde ja brennend ne Kostenschätzung interessieren...
Dann haben die Kinder vom Zimmer aus Gartenzugang, der Mieter im OG bekommt nen Balkon.
Zu den Plänen:
UG:
- Allraum der Einliegerwohnung ist sehr schlecht zu möblieren, Bad ist äußerst Groß im Verhältnis zum Rest der Wohnung.
- Wozu im "Keller2" noch ein WC?
EG:
- Küchenplanung seid ihr ja schon dran. Aber aus dem Raum sollte sich was schönes machen lassen.
- Soll das Wohnzimmer wirklich so möbliert werden? Bei ner Raumbreite von ~3,40 bleiben nach Abzug der Türe noch ungefähr 2,50 für die Couch über.
Unsere Couch hat ne Breite von 3,30.
Nur mal als Denkanstoß, am besten mal die Möbel mit realen Maßen einzeichnen.
- Wie breit ist der Balkon?
So wie ich das sehe, lässt sich nur bei dem Teil mit dem "Erker" ein Gartentisch stellen, allerdings versperrt der dann auch den Zugang zum Haus. Da das als Hauptterrasse dienen soll, finde ich das sehr unglücklich.
OG:
- Elternschlafzimmer als Durchgangszimmer ist sehr ungünstig.
- Ich würde das Bad wohl bisschen kleiner machen, dafür das Gästezimmer weiter nach planoben schieben, damit der Zugang noch möglich ist. Dadurch wird das schlauchige Kinderbad auch größer und besser zu möblieren.
Mich würde ja brennend ne Kostenschätzung interessieren...
Hallo,
also was mir auffällt 4 Toiletten, schon sehr viele? Die Einliegerwohnung hat schönen Zugang zum Garten und ihr nutzt nur Balkon?
Garage im Haus integriert? Warum nicht Wohnraum daraus machen, eher billiger als die Warme Hülle oben/unten/seitlich abzudämmen.
Die Verteilung der Bäder und Technikraum im Haus macht mir etwas Sorgen. Da geht viel Raum für Leitungen verloren.
Eltern Bad sehr groß / Kinderbad zu klein? Überhaupt finde ich das OG und KG etwas verschachtelt.
Die Einliegerwohnung finde ich sehr gut geschnitten.
also was mir auffällt 4 Toiletten, schon sehr viele? Die Einliegerwohnung hat schönen Zugang zum Garten und ihr nutzt nur Balkon?
Garage im Haus integriert? Warum nicht Wohnraum daraus machen, eher billiger als die Warme Hülle oben/unten/seitlich abzudämmen.
Die Verteilung der Bäder und Technikraum im Haus macht mir etwas Sorgen. Da geht viel Raum für Leitungen verloren.
Eltern Bad sehr groß / Kinderbad zu klein? Überhaupt finde ich das OG und KG etwas verschachtelt.
Die Einliegerwohnung finde ich sehr gut geschnitten.
Ähnliche Themen