ᐅ Einfamilienhaus mit Einliegerwohnung auf 450qm Hanggrundstück
Erstellt am: 09.02.22 11:44
K
Kristijan
Hallo in die Runde,
ich war hier bisher ausschließlich Mitleser und möchte nun unser eigens Hauskonzept zur Diskussion stellen. Dabei erhoffe ich mir schonungslose Kritik und eure Ideen und Anregungen.
Wir sind eine Patchworkfamilie mit vier Kindern (drei sind immer da) und planen den Bau eines Einfamilienhauses mit Einliegerwohnung in NRW. Wir haben Anfang letzten Jahres ein Grundstück mit Hanglage in einem klassischen Neubaugebiet erworben und in der Zwischenzeit mit einer Architektin ein Hauskonzept erarbeitet. Hierbei haben wir in einen denkbar einfachen Baukörper (vier Wände und ein Dach) einem effizienten Grundriss entwickelt. Die Planungen haben wir an mehrere Fertighausunternehmen mit der Bitte um eine Kostenkalkulation in der Hoffnung, dass das Budget noch ein "Wachsen des Hauses" zulässt, weitergegeben. Jetzt sitzen wir hier vor unseren Angeboten und müssen feststellen, dass unser denkbar kleinster Grundriss schon unser Budget sprengt. Dieses liegt bei ca. 550.000 Euro für das Haus inklusive Baunebenkosten (ohne Grundstück). Mit der Einliegerwohnung hatten wir uns die doppelte Kfw-Förderung in der Klasse Kfw 40 EE in Höhe von 67500 Euro zur Aufstockung des Budgets erhofft. Aber sei es drum.
Möglicherweise waren wir bei der vorläufigen Kostenkalkulation ein wenig blauäugig. Jedenfalls überdenken wir gerade das Konzept und erwägen den Kellerverzicht.
Und jetzt bitte feuerfrei für schonungslose Kritik und ungeschminkte Wahrheiten. 🙂
Bebauungsplan/Einschränkungen
Größe des Grundstücks 450qm
Hang ja, Nordhang (von der Straße nach Süd-Südwest) mit ca. 1,5m Steigung innerhalb des Baufensters (ein Meter innerhalb der geplanten Grundfläche) ansteigend
Grundflächenzahl ? Der Bebauungsplan gibt da nichts her
Geschossflächenzahl 0,4
Baufenster, Baulinie und -grenze 19,5m breit (Straßenseite), im hinteren Bereich 17m breit und 14m tief
Randbebauung ja
Anzahl Stellplatz 2 für die Hauptwohnung und 1 für die Einliegerwohnung
Geschossigkeit 2,5
Dachform Satteldach
Stilrichtung klassisch
Ausrichtung Firstrichtung West-Nordwest - Ost-Südost
Maximale Höhen/Begrenzungen max. Firsthöhe 9,5m ab Oberkante EG (dieses darf max. 0,5m über dem Bezugspunkt der Straße liegen)
weitere Vorgaben Abstandsflächen seitlich 3m, zur Straße 3,5m
Anforderungen der Bauherren
Stilrichtung, Gebäudetyp einfacher, ökonomischer Baukörper mit Satteldach
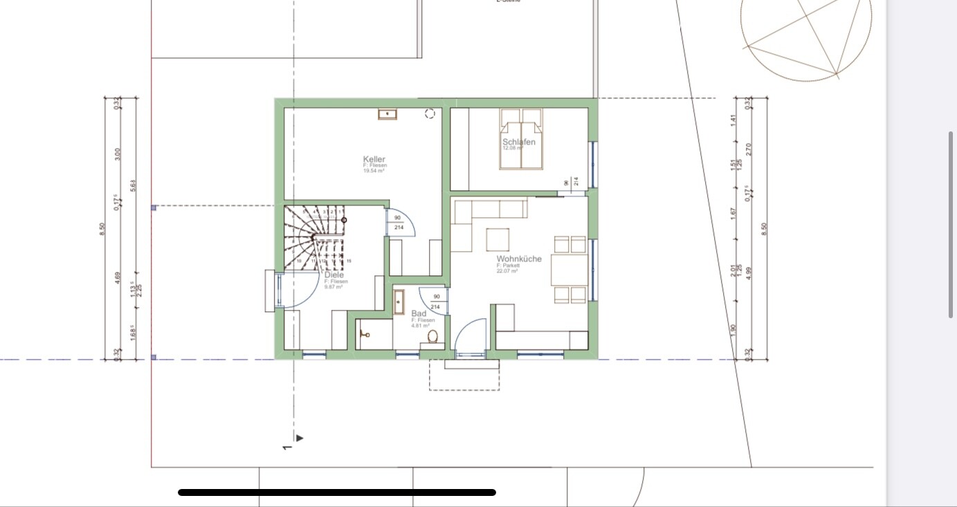
Keller, Geschosse Kellergeschoss mit Einliegerwohnung, insgesamt 2,5 Geschosse
Anzahl der Personen, Alter 5-6 Personen Haushalt: Eltern 38 und 36, vier Kinder 7, 4, 2x2, die Familienplanung ist ein wenig übers Ziel hinaus geschossen und abgeschlossen 🙂 und Oma in der Kellerwohnung
Raumbedarf im EG, OG ca. 140-150qm:Küche, Wohnzimmer, 1 Schlafzimmer, 3 Kinderzimmer, 1 Gäste/ Arbeitszimmer/ Patchwork, 2 Bäder
Hauswirtschaftsraum im Keller
Büro: 1 variables Zimmer ist erforderlich
Schlafgäste pro Jahr 10
offene o. geschlossene Architektur die Form folgt der Funktion
konservativ o. moderne Bauweise hm, was ist hiermit genau gemeint?
offene Küche, Kochinsel offene Küche zum Essplatz (hier auch gerne eine Kochinsel), jedoch geschlossen zum Wohnzimmer hin
Anzahl Essplätze 6-8
Kamin nein
Musik/Stereowand TV im Wohnzimmer
Balkon, Dachterrasse überdachte Terrasse zum Garten mit Durchreichefenster von der Küche
Garage, Carport Carport mit Gründach und zusätzlichem Abstellraum wäre toll
Nutzgarten, Treibhaus kleiner Nutzgarten an der Grundstücksgrenze
Hausentwurf
Von wem stammt die Planung: freie Architektin, die mit einem Fertighausunternehmen zusammen arbeitet und viel DIY
Was gefällt besonders? Warum? effiziente Nutzung des Raums. Trotz Kompaktheit sind alle Wünsche hinsichtlich des Raumbedarfs insbesondere der Raumanzahl erfüllt
Was gefällt nicht? Warum? insbesondere das EG könnte großzügiger sein, Keller bzw. Abstellflächen könnten größer sein
Preisschätzung lt Architekt: keine
Preislimit inkl. Ausstattung: 550000 Euro plus Kfw falls da noch was kommt
favorisierte Heiztechnik: Luft-Wasser-Wärmepumpe
Wenn Ihr verzichten müsst, auf welche Details/Ausbauten
-könnt Ihr verzichten: schweren Herzens auf den separaten Elternbereich
ebenfalls steht die Einliegerwohnung zur Diskussion
Die Schiebetüren im EG sind auf einen Absprachefehler zurückzuführen und können weg
-könnt Ihr nicht verzichten: Anzahl der Räume
Warum ist der Entwurf so geworden, wie er jetzt ist?
Den Entwurf haben wir grundsätzlich in Eigenregie erstellt. Hier und da sind dann noch seitens der Architektin Optimierungen vorgenommen worden. Unser Hauptaugenmerk war die Vereinbarkeit aller Raumwünsche innerhalb eines kompakten Grundrisses auf einem kleinen Grundstück. Darüber hinaus wollten wir als Eltern von vier Kindern unser eigenes kleines Reich.
Was ist die wichtigste/grundlegende Frage zum Grundriss in 130 Zeichen zusammengefasst?
Scheitert unser Hauskonzept an unseren Budgetvorstellungen? Was würdet ihr anders machen und warum?









ich war hier bisher ausschließlich Mitleser und möchte nun unser eigens Hauskonzept zur Diskussion stellen. Dabei erhoffe ich mir schonungslose Kritik und eure Ideen und Anregungen.
Wir sind eine Patchworkfamilie mit vier Kindern (drei sind immer da) und planen den Bau eines Einfamilienhauses mit Einliegerwohnung in NRW. Wir haben Anfang letzten Jahres ein Grundstück mit Hanglage in einem klassischen Neubaugebiet erworben und in der Zwischenzeit mit einer Architektin ein Hauskonzept erarbeitet. Hierbei haben wir in einen denkbar einfachen Baukörper (vier Wände und ein Dach) einem effizienten Grundriss entwickelt. Die Planungen haben wir an mehrere Fertighausunternehmen mit der Bitte um eine Kostenkalkulation in der Hoffnung, dass das Budget noch ein "Wachsen des Hauses" zulässt, weitergegeben. Jetzt sitzen wir hier vor unseren Angeboten und müssen feststellen, dass unser denkbar kleinster Grundriss schon unser Budget sprengt. Dieses liegt bei ca. 550.000 Euro für das Haus inklusive Baunebenkosten (ohne Grundstück). Mit der Einliegerwohnung hatten wir uns die doppelte Kfw-Förderung in der Klasse Kfw 40 EE in Höhe von 67500 Euro zur Aufstockung des Budgets erhofft. Aber sei es drum.
Möglicherweise waren wir bei der vorläufigen Kostenkalkulation ein wenig blauäugig. Jedenfalls überdenken wir gerade das Konzept und erwägen den Kellerverzicht.
Und jetzt bitte feuerfrei für schonungslose Kritik und ungeschminkte Wahrheiten. 🙂
Bebauungsplan/Einschränkungen
Größe des Grundstücks 450qm
Hang ja, Nordhang (von der Straße nach Süd-Südwest) mit ca. 1,5m Steigung innerhalb des Baufensters (ein Meter innerhalb der geplanten Grundfläche) ansteigend
Grundflächenzahl ? Der Bebauungsplan gibt da nichts her
Geschossflächenzahl 0,4
Baufenster, Baulinie und -grenze 19,5m breit (Straßenseite), im hinteren Bereich 17m breit und 14m tief
Randbebauung ja
Anzahl Stellplatz 2 für die Hauptwohnung und 1 für die Einliegerwohnung
Geschossigkeit 2,5
Dachform Satteldach
Stilrichtung klassisch
Ausrichtung Firstrichtung West-Nordwest - Ost-Südost
Maximale Höhen/Begrenzungen max. Firsthöhe 9,5m ab Oberkante EG (dieses darf max. 0,5m über dem Bezugspunkt der Straße liegen)
weitere Vorgaben Abstandsflächen seitlich 3m, zur Straße 3,5m
Anforderungen der Bauherren
Stilrichtung, Gebäudetyp einfacher, ökonomischer Baukörper mit Satteldach
Keller, Geschosse Kellergeschoss mit Einliegerwohnung, insgesamt 2,5 Geschosse
Anzahl der Personen, Alter 5-6 Personen Haushalt: Eltern 38 und 36, vier Kinder 7, 4, 2x2, die Familienplanung ist ein wenig übers Ziel hinaus geschossen und abgeschlossen 🙂 und Oma in der Kellerwohnung
Raumbedarf im EG, OG ca. 140-150qm:Küche, Wohnzimmer, 1 Schlafzimmer, 3 Kinderzimmer, 1 Gäste/ Arbeitszimmer/ Patchwork, 2 Bäder
Hauswirtschaftsraum im Keller
Büro: 1 variables Zimmer ist erforderlich
Schlafgäste pro Jahr 10
offene o. geschlossene Architektur die Form folgt der Funktion
konservativ o. moderne Bauweise hm, was ist hiermit genau gemeint?
offene Küche, Kochinsel offene Küche zum Essplatz (hier auch gerne eine Kochinsel), jedoch geschlossen zum Wohnzimmer hin
Anzahl Essplätze 6-8
Kamin nein
Musik/Stereowand TV im Wohnzimmer
Balkon, Dachterrasse überdachte Terrasse zum Garten mit Durchreichefenster von der Küche
Garage, Carport Carport mit Gründach und zusätzlichem Abstellraum wäre toll
Nutzgarten, Treibhaus kleiner Nutzgarten an der Grundstücksgrenze
Hausentwurf
Von wem stammt die Planung: freie Architektin, die mit einem Fertighausunternehmen zusammen arbeitet und viel DIY
Was gefällt besonders? Warum? effiziente Nutzung des Raums. Trotz Kompaktheit sind alle Wünsche hinsichtlich des Raumbedarfs insbesondere der Raumanzahl erfüllt
Was gefällt nicht? Warum? insbesondere das EG könnte großzügiger sein, Keller bzw. Abstellflächen könnten größer sein
Preisschätzung lt Architekt: keine
Preislimit inkl. Ausstattung: 550000 Euro plus Kfw falls da noch was kommt
favorisierte Heiztechnik: Luft-Wasser-Wärmepumpe
Wenn Ihr verzichten müsst, auf welche Details/Ausbauten
-könnt Ihr verzichten: schweren Herzens auf den separaten Elternbereich
ebenfalls steht die Einliegerwohnung zur Diskussion
Die Schiebetüren im EG sind auf einen Absprachefehler zurückzuführen und können weg
-könnt Ihr nicht verzichten: Anzahl der Räume
Warum ist der Entwurf so geworden, wie er jetzt ist?
Den Entwurf haben wir grundsätzlich in Eigenregie erstellt. Hier und da sind dann noch seitens der Architektin Optimierungen vorgenommen worden. Unser Hauptaugenmerk war die Vereinbarkeit aller Raumwünsche innerhalb eines kompakten Grundrisses auf einem kleinen Grundstück. Darüber hinaus wollten wir als Eltern von vier Kindern unser eigenes kleines Reich.
Was ist die wichtigste/grundlegende Frage zum Grundriss in 130 Zeichen zusammengefasst?
Scheitert unser Hauskonzept an unseren Budgetvorstellungen? Was würdet ihr anders machen und warum?
K
Kristijan09.02.22 21:0211ant schrieb:
Zeige trotzdem einmal, auf welcher Basis sich andere Anbieter beweisen sollten.Der ursprüngliche Entwurf sah eine etwas größere Grundfläche vor und war auf Bodenplatte geplant. Der Vertriebler der Baufirma hatte die Idee, die Grundfläche frei zu buddeln und das Erdreich zum Garten hin mit Stützwänden abzusichern. Die Terrasse war dann als Brücke in den Garten mit zusätzlichem Abstellraum unter eben dieser gedacht. Der Garten-Landschaftsbauer (und nicht nur der) riet aus Kostengründen von diesem Plan jedoch vehement ab.
K
Kristijan09.02.22 21:2111ant schrieb:
Das für meine Verhältnisse schon Lob bezog sich nicht allein auf das Zeichnungsdesign, sondern auf die reife Ausstrahlung im Vergleich zu den üblichen Pinterest-Flausen mit mißglücktem Tetris.Das Lob nehme ich gerne mit.
11ant schrieb:
Was wollt Ihr denn nun tun: mit der Planung neu vorne anfangen statt wie bisher in der Mitte, oder Ausstattung downgraden ? Wir haben jetzt schon von einem Anbieter, der preislich mindestens ein regal tiefer anzusiedeln ist, ein Angebot eingeholt. Die wollten unverschämte 3400 Euro für das schlüsselfertige Bauen der oberen beiden Etagen haben und hatten offensichtlich keine Lust auf das Projekt.Möglichkeit A wären weitere Abstriche in der Qualität der Anbieter in Hinblick auf Wandaufbau und verwendete Materialien. Ein Verzicht auf ein KfW-Gütesiegel wäre auch ein Kosten sparender no-brainer.
Kniffeliger wäre das komplette Überwerfen des Konzeptes. Das wäre Möglichkeit B.
Eine Idee wäre da:
Unterstes Geschoss als Teilkeller, im hinteren Bereich Funktionsräume, die nicht unbedingt Tageslicht brauchen wie z.B. Abstell- und Technikraum. Im vorderen Bereich Schlafräume.
Im oberen Geschoss dann Küche, Wohnen mit Zugang zum Garten und mind. einem eher zwei Schlafräumen.
Möglicherweise auch mit ausbaubaren Dachboden. Dann könnte man zunächst auf ein Kinderzimmer verzichten und später noch weiteren Wohnraum schaffen.
Bei dem Gedanken an eine weitere Grundrisserarbeitung bekomme ich allerdings Kopfschmerzen. Von daher tendiere ich noch zur ersten Alternative.
Kristijan schrieb:
... hatten offensichtlich keine Lust auf das Projekt.Na die sind dann schon mal raus, würd ich sagen.Kristijan schrieb:
Kniffeliger wäre das komplette Überwerfen des Konzeptes. Das wäre Möglichkeit B.
Eine Idee wäre da:
Unterstes Geschoss als Teilkeller, im hinteren Bereich Funktionsräume, die nicht unbedingt Tageslicht brauchen wie z.B. Abstell- und Technikraum. Im vorderen Bereich Schlafräume.
Im oberen Geschoss dann Küche, Wohnen mit Zugang zum Garten und mind. einem eher zwei Schlafräumen.
Möglicherweise auch mit ausbaubaren Dachboden. Dann könnte man zunächst auf ein Kinderzimmer verzichten und später noch weiteren Wohnraum schaffen.Darin sehe ich die sinnvollste Lösung.Kristijan schrieb:
Bei dem Gedanken an eine weitere Grundrisserarbeitung bekomme ich allerdings Kopfschmerzen. Von daher tendiere ich noch zur ersten Alternative.Ich nicht. 😉@11ant: liegt der Entwurf nicht schon über der Geschossflächenzahl von 0,4 bei 450qm mit 3 Geschossen? Zählt hier irgendwas nicht mit? Komm gerade nicht klar. Kannst Du mich kurz erhellen?
K
Kristijan09.02.22 22:13K a t j a schrieb:
liegt der Entwurf nicht schon über der Geschossflächenzahl von 0,4 bei 450qm mit 3 Geschossen? Zählt hier irgendwas nicht mit? Komm gerade nicht klar. Kannst Du mich kurz erhellen?Ich bin da überhaupt nicht im Thema und hoffe einfach, dass die Architektin das berücksichtigt hat. Aber haut das in unserem Fall vielleicht deswegen hin, weil das oberste Geschoss nicht als Volllgeschoss zählt?Kristijan schrieb:
Ich bin da überhaupt nicht im Thema und hoffe einfach, dass die Architektin das berücksichtigt hat. Aber haut das in unserem Fall vielleicht deswegen hin, weil das oberste Geschoss nicht als Volllgeschoss zählt?Ah, ok. Ja dann ist es das wohl.K
Kristijan09.02.22 22:36Ich befürchte, dass wir an einem neuen Plan nicht vorbei kommen. Zumindest werde ich mich mal hinsetzen und an nem Grundriss tüfteln, den ich dann hier zur Diskussion stelle.
Gibt es denn jetzt schon Anmerkungen zu der grundsätzlichen Idee:
Gibt es denn jetzt schon Anmerkungen zu der grundsätzlichen Idee:
Kristijan schrieb:
Unterstes Geschoss als Teilkeller, im hinteren Bereich Funktionsräume, die nicht unbedingt Tageslicht brauchen wie z.B. Abstell- und Technikraum. Im vorderen Bereich Schlafräume.
Im oberen Geschoss dann Küche, Wohnen mit Zugang zum Garten und mind. einem eher zwei Schlafräumen.
Möglicherweise auch mit ausbaubaren Dachboden. Dann könnte man zunächst auf ein Kinderzimmer verzichten und später noch weiteren Wohnraum schaffen.
Ähnliche Themen