ᐅ Einfamilienhaus mit Einliegerwohnung auf 450qm Hanggrundstück
Erstellt am: 09.02.22 11:44
K
Kristijan
Hallo in die Runde,
ich war hier bisher ausschließlich Mitleser und möchte nun unser eigens Hauskonzept zur Diskussion stellen. Dabei erhoffe ich mir schonungslose Kritik und eure Ideen und Anregungen.
Wir sind eine Patchworkfamilie mit vier Kindern (drei sind immer da) und planen den Bau eines Einfamilienhauses mit Einliegerwohnung in NRW. Wir haben Anfang letzten Jahres ein Grundstück mit Hanglage in einem klassischen Neubaugebiet erworben und in der Zwischenzeit mit einer Architektin ein Hauskonzept erarbeitet. Hierbei haben wir in einen denkbar einfachen Baukörper (vier Wände und ein Dach) einem effizienten Grundriss entwickelt. Die Planungen haben wir an mehrere Fertighausunternehmen mit der Bitte um eine Kostenkalkulation in der Hoffnung, dass das Budget noch ein "Wachsen des Hauses" zulässt, weitergegeben. Jetzt sitzen wir hier vor unseren Angeboten und müssen feststellen, dass unser denkbar kleinster Grundriss schon unser Budget sprengt. Dieses liegt bei ca. 550.000 Euro für das Haus inklusive Baunebenkosten (ohne Grundstück). Mit der Einliegerwohnung hatten wir uns die doppelte Kfw-Förderung in der Klasse Kfw 40 EE in Höhe von 67500 Euro zur Aufstockung des Budgets erhofft. Aber sei es drum.
Möglicherweise waren wir bei der vorläufigen Kostenkalkulation ein wenig blauäugig. Jedenfalls überdenken wir gerade das Konzept und erwägen den Kellerverzicht.
Und jetzt bitte feuerfrei für schonungslose Kritik und ungeschminkte Wahrheiten. 🙂
Bebauungsplan/Einschränkungen
Größe des Grundstücks 450qm
Hang ja, Nordhang (von der Straße nach Süd-Südwest) mit ca. 1,5m Steigung innerhalb des Baufensters (ein Meter innerhalb der geplanten Grundfläche) ansteigend
Grundflächenzahl ? Der Bebauungsplan gibt da nichts her
Geschossflächenzahl 0,4
Baufenster, Baulinie und -grenze 19,5m breit (Straßenseite), im hinteren Bereich 17m breit und 14m tief
Randbebauung ja
Anzahl Stellplatz 2 für die Hauptwohnung und 1 für die Einliegerwohnung
Geschossigkeit 2,5
Dachform Satteldach
Stilrichtung klassisch
Ausrichtung Firstrichtung West-Nordwest - Ost-Südost
Maximale Höhen/Begrenzungen max. Firsthöhe 9,5m ab Oberkante EG (dieses darf max. 0,5m über dem Bezugspunkt der Straße liegen)
weitere Vorgaben Abstandsflächen seitlich 3m, zur Straße 3,5m
Anforderungen der Bauherren
Stilrichtung, Gebäudetyp einfacher, ökonomischer Baukörper mit Satteldach
Keller, Geschosse Kellergeschoss mit Einliegerwohnung, insgesamt 2,5 Geschosse
Anzahl der Personen, Alter 5-6 Personen Haushalt: Eltern 38 und 36, vier Kinder 7, 4, 2x2, die Familienplanung ist ein wenig übers Ziel hinaus geschossen und abgeschlossen 🙂 und Oma in der Kellerwohnung
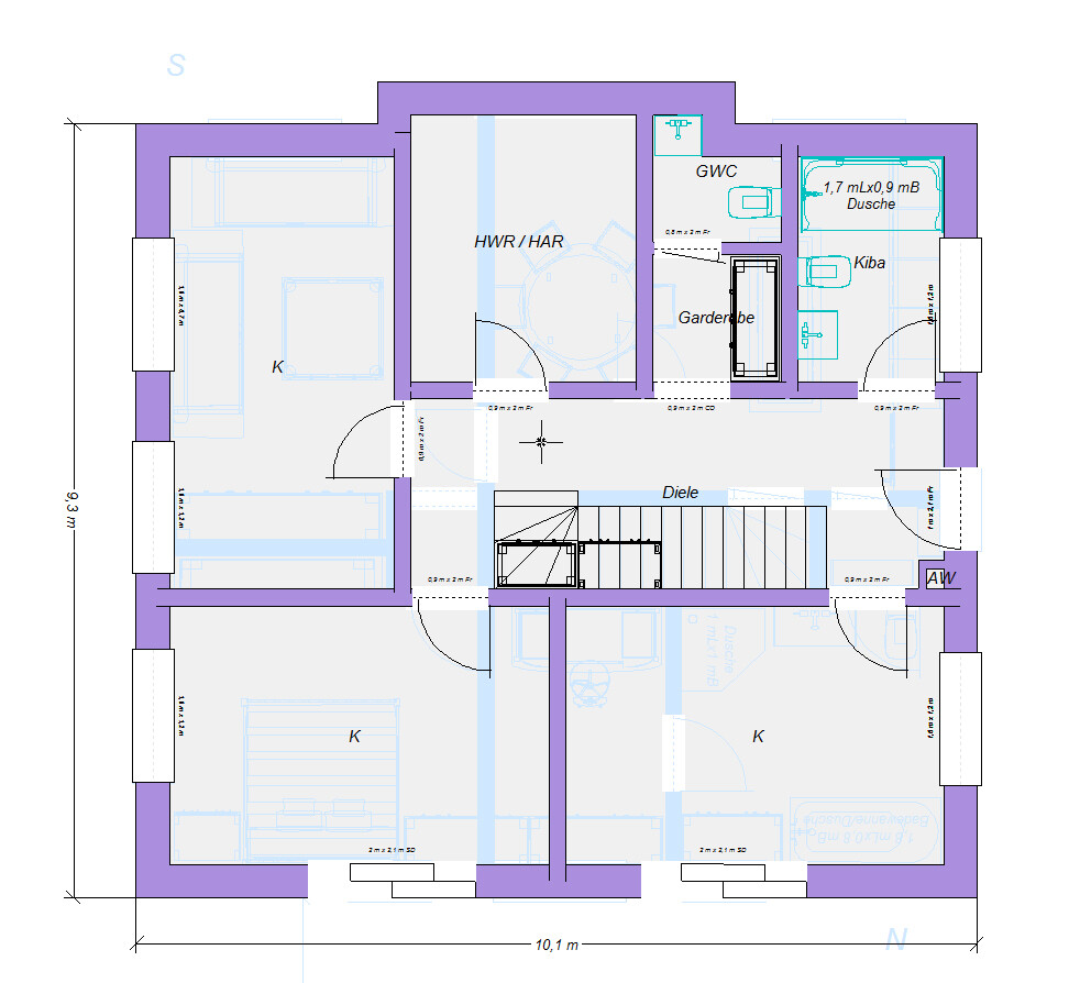
Raumbedarf im EG, OG ca. 140-150qm:Küche, Wohnzimmer, 1 Schlafzimmer, 3 Kinderzimmer, 1 Gäste/ Arbeitszimmer/ Patchwork, 2 Bäder
Hauswirtschaftsraum im Keller
Büro: 1 variables Zimmer ist erforderlich
Schlafgäste pro Jahr 10
offene o. geschlossene Architektur die Form folgt der Funktion
konservativ o. moderne Bauweise hm, was ist hiermit genau gemeint?
offene Küche, Kochinsel offene Küche zum Essplatz (hier auch gerne eine Kochinsel), jedoch geschlossen zum Wohnzimmer hin
Anzahl Essplätze 6-8
Kamin nein
Musik/Stereowand TV im Wohnzimmer
Balkon, Dachterrasse überdachte Terrasse zum Garten mit Durchreichefenster von der Küche
Garage, Carport Carport mit Gründach und zusätzlichem Abstellraum wäre toll
Nutzgarten, Treibhaus kleiner Nutzgarten an der Grundstücksgrenze
Hausentwurf
Von wem stammt die Planung: freie Architektin, die mit einem Fertighausunternehmen zusammen arbeitet und viel DIY
Was gefällt besonders? Warum? effiziente Nutzung des Raums. Trotz Kompaktheit sind alle Wünsche hinsichtlich des Raumbedarfs insbesondere der Raumanzahl erfüllt
Was gefällt nicht? Warum? insbesondere das EG könnte großzügiger sein, Keller bzw. Abstellflächen könnten größer sein
Preisschätzung lt Architekt: keine
Preislimit inkl. Ausstattung: 550000 Euro plus Kfw falls da noch was kommt
favorisierte Heiztechnik: Luft-Wasser-Wärmepumpe
Wenn Ihr verzichten müsst, auf welche Details/Ausbauten
-könnt Ihr verzichten: schweren Herzens auf den separaten Elternbereich
ebenfalls steht die Einliegerwohnung zur Diskussion
Die Schiebetüren im EG sind auf einen Absprachefehler zurückzuführen und können weg
-könnt Ihr nicht verzichten: Anzahl der Räume
Warum ist der Entwurf so geworden, wie er jetzt ist?
Den Entwurf haben wir grundsätzlich in Eigenregie erstellt. Hier und da sind dann noch seitens der Architektin Optimierungen vorgenommen worden. Unser Hauptaugenmerk war die Vereinbarkeit aller Raumwünsche innerhalb eines kompakten Grundrisses auf einem kleinen Grundstück. Darüber hinaus wollten wir als Eltern von vier Kindern unser eigenes kleines Reich.
Was ist die wichtigste/grundlegende Frage zum Grundriss in 130 Zeichen zusammengefasst?
Scheitert unser Hauskonzept an unseren Budgetvorstellungen? Was würdet ihr anders machen und warum?









ich war hier bisher ausschließlich Mitleser und möchte nun unser eigens Hauskonzept zur Diskussion stellen. Dabei erhoffe ich mir schonungslose Kritik und eure Ideen und Anregungen.
Wir sind eine Patchworkfamilie mit vier Kindern (drei sind immer da) und planen den Bau eines Einfamilienhauses mit Einliegerwohnung in NRW. Wir haben Anfang letzten Jahres ein Grundstück mit Hanglage in einem klassischen Neubaugebiet erworben und in der Zwischenzeit mit einer Architektin ein Hauskonzept erarbeitet. Hierbei haben wir in einen denkbar einfachen Baukörper (vier Wände und ein Dach) einem effizienten Grundriss entwickelt. Die Planungen haben wir an mehrere Fertighausunternehmen mit der Bitte um eine Kostenkalkulation in der Hoffnung, dass das Budget noch ein "Wachsen des Hauses" zulässt, weitergegeben. Jetzt sitzen wir hier vor unseren Angeboten und müssen feststellen, dass unser denkbar kleinster Grundriss schon unser Budget sprengt. Dieses liegt bei ca. 550.000 Euro für das Haus inklusive Baunebenkosten (ohne Grundstück). Mit der Einliegerwohnung hatten wir uns die doppelte Kfw-Förderung in der Klasse Kfw 40 EE in Höhe von 67500 Euro zur Aufstockung des Budgets erhofft. Aber sei es drum.
Möglicherweise waren wir bei der vorläufigen Kostenkalkulation ein wenig blauäugig. Jedenfalls überdenken wir gerade das Konzept und erwägen den Kellerverzicht.
Und jetzt bitte feuerfrei für schonungslose Kritik und ungeschminkte Wahrheiten. 🙂
Bebauungsplan/Einschränkungen
Größe des Grundstücks 450qm
Hang ja, Nordhang (von der Straße nach Süd-Südwest) mit ca. 1,5m Steigung innerhalb des Baufensters (ein Meter innerhalb der geplanten Grundfläche) ansteigend
Grundflächenzahl ? Der Bebauungsplan gibt da nichts her
Geschossflächenzahl 0,4
Baufenster, Baulinie und -grenze 19,5m breit (Straßenseite), im hinteren Bereich 17m breit und 14m tief
Randbebauung ja
Anzahl Stellplatz 2 für die Hauptwohnung und 1 für die Einliegerwohnung
Geschossigkeit 2,5
Dachform Satteldach
Stilrichtung klassisch
Ausrichtung Firstrichtung West-Nordwest - Ost-Südost
Maximale Höhen/Begrenzungen max. Firsthöhe 9,5m ab Oberkante EG (dieses darf max. 0,5m über dem Bezugspunkt der Straße liegen)
weitere Vorgaben Abstandsflächen seitlich 3m, zur Straße 3,5m
Anforderungen der Bauherren
Stilrichtung, Gebäudetyp einfacher, ökonomischer Baukörper mit Satteldach
Keller, Geschosse Kellergeschoss mit Einliegerwohnung, insgesamt 2,5 Geschosse
Anzahl der Personen, Alter 5-6 Personen Haushalt: Eltern 38 und 36, vier Kinder 7, 4, 2x2, die Familienplanung ist ein wenig übers Ziel hinaus geschossen und abgeschlossen 🙂 und Oma in der Kellerwohnung
Raumbedarf im EG, OG ca. 140-150qm:Küche, Wohnzimmer, 1 Schlafzimmer, 3 Kinderzimmer, 1 Gäste/ Arbeitszimmer/ Patchwork, 2 Bäder
Hauswirtschaftsraum im Keller
Büro: 1 variables Zimmer ist erforderlich
Schlafgäste pro Jahr 10
offene o. geschlossene Architektur die Form folgt der Funktion
konservativ o. moderne Bauweise hm, was ist hiermit genau gemeint?
offene Küche, Kochinsel offene Küche zum Essplatz (hier auch gerne eine Kochinsel), jedoch geschlossen zum Wohnzimmer hin
Anzahl Essplätze 6-8
Kamin nein
Musik/Stereowand TV im Wohnzimmer
Balkon, Dachterrasse überdachte Terrasse zum Garten mit Durchreichefenster von der Küche
Garage, Carport Carport mit Gründach und zusätzlichem Abstellraum wäre toll
Nutzgarten, Treibhaus kleiner Nutzgarten an der Grundstücksgrenze
Hausentwurf
Von wem stammt die Planung: freie Architektin, die mit einem Fertighausunternehmen zusammen arbeitet und viel DIY
Was gefällt besonders? Warum? effiziente Nutzung des Raums. Trotz Kompaktheit sind alle Wünsche hinsichtlich des Raumbedarfs insbesondere der Raumanzahl erfüllt
Was gefällt nicht? Warum? insbesondere das EG könnte großzügiger sein, Keller bzw. Abstellflächen könnten größer sein
Preisschätzung lt Architekt: keine
Preislimit inkl. Ausstattung: 550000 Euro plus Kfw falls da noch was kommt
favorisierte Heiztechnik: Luft-Wasser-Wärmepumpe
Wenn Ihr verzichten müsst, auf welche Details/Ausbauten
-könnt Ihr verzichten: schweren Herzens auf den separaten Elternbereich
ebenfalls steht die Einliegerwohnung zur Diskussion
Die Schiebetüren im EG sind auf einen Absprachefehler zurückzuführen und können weg
-könnt Ihr nicht verzichten: Anzahl der Räume
Warum ist der Entwurf so geworden, wie er jetzt ist?
Den Entwurf haben wir grundsätzlich in Eigenregie erstellt. Hier und da sind dann noch seitens der Architektin Optimierungen vorgenommen worden. Unser Hauptaugenmerk war die Vereinbarkeit aller Raumwünsche innerhalb eines kompakten Grundrisses auf einem kleinen Grundstück. Darüber hinaus wollten wir als Eltern von vier Kindern unser eigenes kleines Reich.
Was ist die wichtigste/grundlegende Frage zum Grundriss in 130 Zeichen zusammengefasst?
Scheitert unser Hauskonzept an unseren Budgetvorstellungen? Was würdet ihr anders machen und warum?
haydee schrieb:
@Escroda fehlt wirklich. Der wüßte wie man am sinnvollsten ein Haus auf das Grundstück stellt ohne die Geschossflächenzahl zu sprengen und möglichst wenig Erde zu bewegen.
Rechne mal das neue Budget durch.Die Geschossflächenzahl ist ja keine, sondern die Grundflächenzahl, wie wir feststellen mussten. Dieses Problem hat sich damit m.E. völlig erledigt. Der TE kann 180qm bebauen, 2 stöckig - ich glaub, das kann und möchte er gar nicht ausschöpfen. Es wäre sehr hilfreich, wenn die Textfassung des B-Plans auch mal preisgegeben würde, damit wir nicht erst am Ende des Threads erfahren, was alles doch nicht geht oder geht.Ich habe meinen Vorschlag nochmals etwas zusammen geschoben, um den Geldbeutel entgegen zu kommen:
Grob überschlagen läge man so bei etwa 150qm für EG und OG. Zwillinge müssten in ein Kinderzimmer. Ob man die Ausbaureserve tatsächlich braucht, wage ich zu bezweifeln. Eventuell geht man mit dem Kniestock hier besser auf 0 und spart weiter am Dachboden. Auch die Frage, wann das erste Kind wieder auszieht.
K
Kristijan11.02.22 11:03Kristijan schrieb:
Da liegst du leider vollkommen richtig. Die Mieteinnahmen waren in dem Budget von 550000 Euro mit eingerechnet. Darüber hinaus sind wir bis vor kurzem von zusätzlichen gut 60000 Euro durch die KfW ausgegangen.
Ich werde morgen früh noch mal genau kalkulieren.So, ich habe nochmals einen Kassensturz gemacht und die Milchmädchen-Einliegerwohnung außen vor gelassen.500.000 Euro für Haus inklusiver Baunebenkosten wären das Maximum ohne hierbei unvernünftig zu werden. Gerne darf es günstiger werden.
Bei einem angenommenen Quadratmeterpreis von 2800 Euro könnten meiner Einschätzung nach 150qm drin sein.
K
Kristijan11.02.22 11:04K a t j a schrieb:
Die Geschossflächenzahl ist ja keine, sondern die Grundflächenzahl, wie wir feststellen mussten. Dieses Problem hat sich damit m.E. völlig erledigt. Der TE kann 180qm bebauen, 2 stöckig - ich glaub, das kann und möchte er gar nicht ausschöpfen. Es wäre sehr hilfreich, wenn die Textfassung des B-Plans auch mal preisgegeben würde, damit wir nicht erst am Ende des Threads erfahren, was alles doch nicht geht oder geht.Sorry noch mal, dieses Missverständnis ist auf meinen Mist gewachsen.K
Kristijan11.02.22 11:07haydee schrieb:
Der Vertriebler in Post Nr. 19 war bestimmt Holzständer. Die Planungen kenne ich.
Hatten wir aus Kostengründen verworfen. Holzständer neigen auch zum Turmbau. Viele schieben unter ihre Standardstadtvilla einfach einen Keller unter.
Nimm den Mindestenergiestandard und suche dir Hausbaufirmen die den als Schwerpunkt haben. Sollte einige Euro sparen.
@Escroda fehlt wirklich. Der wüßte wie man am sinnvollsten ein Haus auf das Grundstück stellt ohne die Geschossflächenzahl zu sprengen und möglichst wenig Erde zu bewegen.
Rechne mal das neue Budget durch.In der Tat ging es dabei wohl darum möglichst viel Holzhaus zu verkaufen. Grundsätzlich war unser Plan in Holzständerbauweise zu bauen. Habe um Kosten vergleichen zu können bei einem lokalem Generalunternehmen angerufen, dass massiv baut. Hier sprach man auch von ca. 3000 Euro/qm für das schlüsselfertige bauen.
Kristijan schrieb:
Bei einem angenommenen Quadratmeterpreis von 2800 Euro könnten meiner Einschätzung nach 150qm drin sein.K a t j a schrieb:
Grob überschlagen läge man so bei etwa 150qm für EG und OG. Zwillinge müssten in ein Kinderzimmer. Na so ein Zufall - wie sich's wieder fügt... 😉K
Kristijan11.02.22 11:09@K a t j a
Das sieht schon wieder richtig klasse aus. Vielen Dank für die ganze Arbeit.
Es muss also doch nicht zwangsläufig auf die Wohnwagen hinaus laufen. 😀
Das sieht schon wieder richtig klasse aus. Vielen Dank für die ganze Arbeit.
Es muss also doch nicht zwangsläufig auf die Wohnwagen hinaus laufen. 😀