ᐅ Einfamilienhaus mit Doppelgarage in Hanglage - Planoptimierung
Erstellt am: 31.03.21 14:39
S
StefanNDHallo,
ich bin hier schon seit längerem stiller Mitleser. Nach langer Planungsphase haben wir nun unseren Entwurf für ein Einfamilienhaus bekommen. Aufgrund der Hanglage bereitet uns das Projekt immer wieder große Kopfschmerzen (zusätzliche Kosten durch komplette Unterkellerung, Probleme bei der Grenzbebauung der Garage). Mit dem Entwurf sind wir nun nicht komplett unzufrieden, unserer Meinung nach ist das Haus aber zu groß geworden. Wir suchen nun nach Möglichkeiten den Grundriss sinnvoll zu optimieren um unser Budget nicht noch weiter zu strapazieren.
Die Fensteranordnung, Fassadengestaltung und Fensterposition sind in diesem Entwurf noch überhaupt nicht Final da uns dies so nicht gefällt.
Es steht auch im Raum von der Dreigeschossigkeit hin zu einem Grundriss mit UG zu gehen (2. Wohneinheit würde dann rausfliegen). Hiermit kann ich mich im Moment aber noch nicht ganz anfreunden bzw. weiß nicht ob die Ersparnis (abzüglich dem Wegfall des 2. KfW Zuschusses) noch so hoch sein würde.
Freue mich sehr auf eure Meinungen zu dem Plan.
Bebauungsplan/Einschränkungen
Größe des Grundstücks: 675 m2; ca. 27 m breit an Straßenseite, 25 m tief
Hang: ja, nach Südwesten abfallend ca 3,5m auf 25m sowie an Straße nach Osten leicht ansteigend
Grundflächenzahl: 0,3
Geschossflächenzahl: 0,4
Baufenster: 3 Meter zu Straße, 10 Meter zur Grenze im Südwesten (5m davon sind Ortsrandbegrünung)
Randbebauung: nein
Anzahl Stellplatz: 2
Geschossigkeit: Max. 2
Dachform: Satteldach
Stilrichtung: Modern
Ausrichtung: First Richtung Ost-West
Maximale Höhen/Begrenzungen: Wandhöhe 6,5 m, Firsthöhe 9 m
Weitere Vorgaben: 5m Grünstreifen am Südwestlichen Grundstücksrand, Versickerung etc, aber sonst eigentlich nichts besonderes
Anforderungen der Bauherren
Stilrichtung, Dachform, Gebäudetyp: modern, Satteldach 18° (wird im Plan noch geändert)
Keller, Geschosse: 2 Vollgeschosse + Keller
Anzahl der Personen, Alter: 2 Erw. , irgendwann 2 Kinder,
Raumbedarf im EG: Garderobe, Dusch-WC, Büro/Gästezimmer, Küche, Wohn- Esszimmer
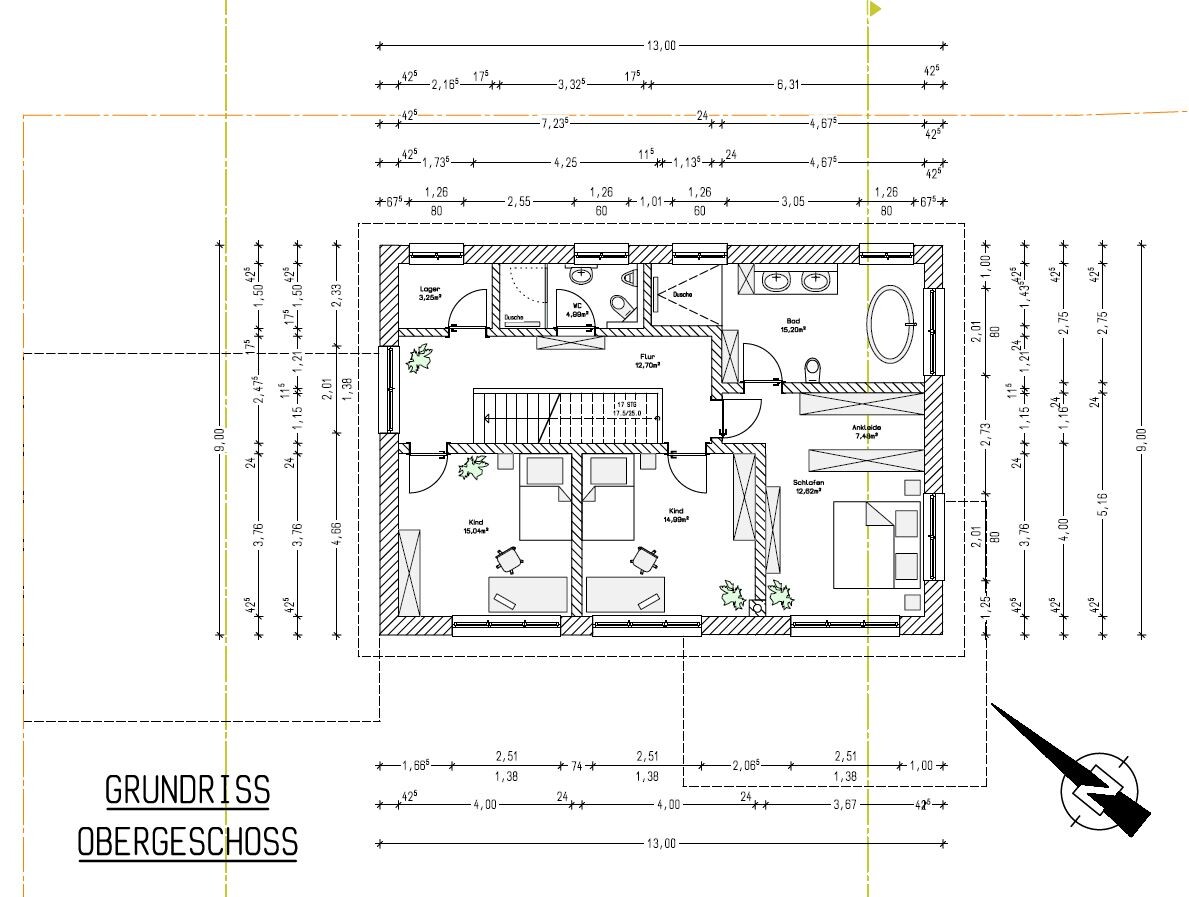
Raumbedarf im OG: 2 Kinderzimmer, Eltern, Ankleiden, Bad Eltern, optional: Bad Kinder / WC separat
Büro: regelmäßig 1-4 Tage Homeoffice in der Woche
Schlafgäste pro Jahr: regelmäßig (große verstreute Familie)
Offene oder geschlossene Architektur: offen
Konservativ oder moderne Bauweise: Moderne Bauweise mit offenem Baustil, Gebäudehülle eher klassisch mit flachem Satteldach
Offene Küche, Kochinsel: Küche offen, mit Arbeitsinsel
Anzahl Essplätze: üblich 4-6,
Kamin: ja
Musik/Stereowand: Medienwand für Fernseher
Balkon, Dachterrasse: Balkon für die Kinder
Garage, Carport: Doppelgarage
Nutzgarten, Treibhaus: Garten mit kleinem Nutzanteil (Kräuter in den Terrassenbeeten etc.)
Weitere Wünsche/Besonderheiten/Tagesablauf, gern auch Begründungen, warum dieses oder das nicht sein soll:
-Kinderbad kein absolutes muss
- große Garderobe
-großzügiger offener Wohn- und Essbereich
- eventuell offenes Dachgeschoss
Hausentwurf
Von wem stammt die Planung:
-Bauzeichner
Was gefällt besonders?
Offen und großzügig, viele unserer Wünsche konnten berücksichtigt werden. Wir wollten den Grundkörper länglich halten um möglichst viel Garten zu erhalten (Durch Ortsrandbegrünung gehen uns von vorne 5m ab)
Was gefällt nicht? Warum?
Im Obergeschoss wirken die drei Räume im Süden etwas gequetscht, gerne würden wir das Haus auch allgemein etwas verkleinern, jedoch fehlen uns hier die Ideen.
Preisschätzung lt Architekt/Planer: ca. 600.000
Persönliches Preislimit fürs Haus, inkl Ausstattung: sehr schwer zu sagen
Favorisierte Heiztechnik: Angedacht ist Gas aufgrund von vorhandenem Anschluss, evtl auch eine Wärmepumpe oder ein Hybridgerät aus beidem
Wenn Ihr verzichten müsst, auf welche Details/Ausbauten
-Kinderbad,
-Treppenform (Wendeltreppe ist nicht gewünscht), Größe im allgemeinen da aufgrund der Hanglage sehr viel Platz im Keller ist (Garage muss auch unterkellert werden)
Warum ist der Entwurf so geworden, wie er jetzt ist? ZB
Wir beschäftigen uns nun schon sehr lange mit dem Thema und haben auch schon sehr viele Varianten durchgeplant. Mir (Bauherr) gefällt eine gerade Treppe gut, die Bauherrin möchte diese aber nicht unmittelbar im Wohnbereich haben. Die Mischung aus beidem ist nun diese Variante, wir sind uns aber nicht sicher ob mit einer anderen Treppenform (z.B. Podesttreppe) ein besserer Entwurf möglich wäre. Aufgrund der Ortsrandlage und dem freien Blick nach Südwesten hat unser Planer im OG das Elternschlafzimmer zusammen mit den Kinderzimmern auf eine Seite gelegt, hier befürchten wir das es etwas eng geworden ist, bzw viel Platz auf diesem Geschoss verschenkt wird.
Da wir die Terrasse nicht als Balkongestell ausführen möchten wird diese größtenteils angefüllt, evtl wird der Teil über der 2.Wohneinheit dann noch durch ein gestell erweitert. Da wir durch dieses Anfüllen viel Fläche im Garten verlieren haben wir uns für einen schmäleren Grundriss entschieden.
Ein großes Problem war lange die Grenzbebauung der Garage, hier haben wir uns nun mit dem Nachbarn zusammengetan der seine Garage an unsere anbaut. So haben wir eine gerade Einfahrt und kein Problem mit der Wandhöhe.
Was ist die wichtigste/grundlegende Frage zum Grundriss in 130 Zeichen zusammengefasst?
Das Haus erscheint uns in Relation zu den Zimmergrößen etwas zu groß. Könnte man hier den Grundriss noch etwas optimieren, bzw wo verschenken wir evtl zu viel Platz?
Ist die Raumanordnung im OG so Sinnvoll oder können wir evtl den Platz anders besser / geräumiger nutzen?
Sollten wir aufgrund des Hangs evtl ganz anders planen und das UG als Wohnraum nutzen um so ein komplettes Stockwerk einzusparen?





ich bin hier schon seit längerem stiller Mitleser. Nach langer Planungsphase haben wir nun unseren Entwurf für ein Einfamilienhaus bekommen. Aufgrund der Hanglage bereitet uns das Projekt immer wieder große Kopfschmerzen (zusätzliche Kosten durch komplette Unterkellerung, Probleme bei der Grenzbebauung der Garage). Mit dem Entwurf sind wir nun nicht komplett unzufrieden, unserer Meinung nach ist das Haus aber zu groß geworden. Wir suchen nun nach Möglichkeiten den Grundriss sinnvoll zu optimieren um unser Budget nicht noch weiter zu strapazieren.
Die Fensteranordnung, Fassadengestaltung und Fensterposition sind in diesem Entwurf noch überhaupt nicht Final da uns dies so nicht gefällt.
Es steht auch im Raum von der Dreigeschossigkeit hin zu einem Grundriss mit UG zu gehen (2. Wohneinheit würde dann rausfliegen). Hiermit kann ich mich im Moment aber noch nicht ganz anfreunden bzw. weiß nicht ob die Ersparnis (abzüglich dem Wegfall des 2. KfW Zuschusses) noch so hoch sein würde.
Freue mich sehr auf eure Meinungen zu dem Plan.
Bebauungsplan/Einschränkungen
Größe des Grundstücks: 675 m2; ca. 27 m breit an Straßenseite, 25 m tief
Hang: ja, nach Südwesten abfallend ca 3,5m auf 25m sowie an Straße nach Osten leicht ansteigend
Grundflächenzahl: 0,3
Geschossflächenzahl: 0,4
Baufenster: 3 Meter zu Straße, 10 Meter zur Grenze im Südwesten (5m davon sind Ortsrandbegrünung)
Randbebauung: nein
Anzahl Stellplatz: 2
Geschossigkeit: Max. 2
Dachform: Satteldach
Stilrichtung: Modern
Ausrichtung: First Richtung Ost-West
Maximale Höhen/Begrenzungen: Wandhöhe 6,5 m, Firsthöhe 9 m
Weitere Vorgaben: 5m Grünstreifen am Südwestlichen Grundstücksrand, Versickerung etc, aber sonst eigentlich nichts besonderes
Anforderungen der Bauherren
Stilrichtung, Dachform, Gebäudetyp: modern, Satteldach 18° (wird im Plan noch geändert)
Keller, Geschosse: 2 Vollgeschosse + Keller
Anzahl der Personen, Alter: 2 Erw. , irgendwann 2 Kinder,
Raumbedarf im EG: Garderobe, Dusch-WC, Büro/Gästezimmer, Küche, Wohn- Esszimmer
Raumbedarf im OG: 2 Kinderzimmer, Eltern, Ankleiden, Bad Eltern, optional: Bad Kinder / WC separat
Büro: regelmäßig 1-4 Tage Homeoffice in der Woche
Schlafgäste pro Jahr: regelmäßig (große verstreute Familie)
Offene oder geschlossene Architektur: offen
Konservativ oder moderne Bauweise: Moderne Bauweise mit offenem Baustil, Gebäudehülle eher klassisch mit flachem Satteldach
Offene Küche, Kochinsel: Küche offen, mit Arbeitsinsel
Anzahl Essplätze: üblich 4-6,
Kamin: ja
Musik/Stereowand: Medienwand für Fernseher
Balkon, Dachterrasse: Balkon für die Kinder
Garage, Carport: Doppelgarage
Nutzgarten, Treibhaus: Garten mit kleinem Nutzanteil (Kräuter in den Terrassenbeeten etc.)
Weitere Wünsche/Besonderheiten/Tagesablauf, gern auch Begründungen, warum dieses oder das nicht sein soll:
-Kinderbad kein absolutes muss
- große Garderobe
-großzügiger offener Wohn- und Essbereich
- eventuell offenes Dachgeschoss
Hausentwurf
Von wem stammt die Planung:
-Bauzeichner
Was gefällt besonders?
Offen und großzügig, viele unserer Wünsche konnten berücksichtigt werden. Wir wollten den Grundkörper länglich halten um möglichst viel Garten zu erhalten (Durch Ortsrandbegrünung gehen uns von vorne 5m ab)
Was gefällt nicht? Warum?
Im Obergeschoss wirken die drei Räume im Süden etwas gequetscht, gerne würden wir das Haus auch allgemein etwas verkleinern, jedoch fehlen uns hier die Ideen.
Preisschätzung lt Architekt/Planer: ca. 600.000
Persönliches Preislimit fürs Haus, inkl Ausstattung: sehr schwer zu sagen
Favorisierte Heiztechnik: Angedacht ist Gas aufgrund von vorhandenem Anschluss, evtl auch eine Wärmepumpe oder ein Hybridgerät aus beidem
Wenn Ihr verzichten müsst, auf welche Details/Ausbauten
-Kinderbad,
-Treppenform (Wendeltreppe ist nicht gewünscht), Größe im allgemeinen da aufgrund der Hanglage sehr viel Platz im Keller ist (Garage muss auch unterkellert werden)
Warum ist der Entwurf so geworden, wie er jetzt ist? ZB
Wir beschäftigen uns nun schon sehr lange mit dem Thema und haben auch schon sehr viele Varianten durchgeplant. Mir (Bauherr) gefällt eine gerade Treppe gut, die Bauherrin möchte diese aber nicht unmittelbar im Wohnbereich haben. Die Mischung aus beidem ist nun diese Variante, wir sind uns aber nicht sicher ob mit einer anderen Treppenform (z.B. Podesttreppe) ein besserer Entwurf möglich wäre. Aufgrund der Ortsrandlage und dem freien Blick nach Südwesten hat unser Planer im OG das Elternschlafzimmer zusammen mit den Kinderzimmern auf eine Seite gelegt, hier befürchten wir das es etwas eng geworden ist, bzw viel Platz auf diesem Geschoss verschenkt wird.
Da wir die Terrasse nicht als Balkongestell ausführen möchten wird diese größtenteils angefüllt, evtl wird der Teil über der 2.Wohneinheit dann noch durch ein gestell erweitert. Da wir durch dieses Anfüllen viel Fläche im Garten verlieren haben wir uns für einen schmäleren Grundriss entschieden.
Ein großes Problem war lange die Grenzbebauung der Garage, hier haben wir uns nun mit dem Nachbarn zusammengetan der seine Garage an unsere anbaut. So haben wir eine gerade Einfahrt und kein Problem mit der Wandhöhe.
Was ist die wichtigste/grundlegende Frage zum Grundriss in 130 Zeichen zusammengefasst?
Das Haus erscheint uns in Relation zu den Zimmergrößen etwas zu groß. Könnte man hier den Grundriss noch etwas optimieren, bzw wo verschenken wir evtl zu viel Platz?
Ist die Raumanordnung im OG so Sinnvoll oder können wir evtl den Platz anders besser / geräumiger nutzen?
Sollten wir aufgrund des Hangs evtl ganz anders planen und das UG als Wohnraum nutzen um so ein komplettes Stockwerk einzusparen?
So ein ähnliches Haus wurde vor ca. 3 Wochen hier diskutiert. Sieht quasi genau so aus, nur ist die Einliegerwohnung im UG dort als Praxis gedacht.
Allerdings würde ich auch erwähnen, dass Ausblick für Kinderzimmer etwas überbewertet wird. Hier passt es aber gut mit der Ausrichtung.
Es ist so wie es ist!
Ich würde das UG schick als Wohnebene planen mit Direktzugang (ohne teurer Auffüllung) und oben die Schlafebene. Dann ggf auf jeder Ebene 5-10qm mehr.
Ihr seid alle Probleme los und auch den Ärger, den ein Wohnen mit einem Mieter, im Garten quasi nebenan, birgt.
StefanND schrieb:Ich finde nicht, dass es gequetscht wirkt. Wird auch nicht, einzig der große Flur, bedingt durch die Treppe nimmt viel Platz ein.
Im Obergeschoss wirken die drei Räume im Süden etwas gequetscht, gerne würden wir das Haus auch allgemein etwas verkleinern, jedoch fehlen uns hier die Ideen.
Allerdings würde ich auch erwähnen, dass Ausblick für Kinderzimmer etwas überbewertet wird. Hier passt es aber gut mit der Ausrichtung.
StefanND schrieb:Was meinst Du mit Wendeltreppe? Wendel ist rund....
Wendeltreppe ist nicht gewünscht),
StefanND schrieb:Das liegt sehr nahe!!!
und das UG als Wohnraum nutzen um so ein komplettes Stockwerk einzusparen?
StefanND schrieb:... ihr könntet auf das Aufschütten verzichten... ein Geschoss weniger bringt sehr viel Etat-Ersparnis.
Da wir durch dieses Anfüllen viel Fläche im Garten verlieren haben wir uns für einen schmäleren Grundriss entschieden.
StefanND schrieb:Mehr Wohnfläche kostet immer mehr Geld. Das kannst Du mit einer Förderung nicht auffangen. 100qm zusätzlich kosten 200000€, gerade auch mit Ausbauten wie Sanitär, Technik und Küche!
2. Wohneinheit würde dann rausfliegen). Hiermit kann ich mich im Moment aber noch nicht ganz anfreunden bzw. weiß nicht ob die Ersparnis (abzüglich dem Wegfall des 2. KfW Zuschusses) noch so hoch sein würde.
Es ist so wie es ist!
Ich würde das UG schick als Wohnebene planen mit Direktzugang (ohne teurer Auffüllung) und oben die Schlafebene. Dann ggf auf jeder Ebene 5-10qm mehr.
Ihr seid alle Probleme los und auch den Ärger, den ein Wohnen mit einem Mieter, im Garten quasi nebenan, birgt.
Ich finde es ziemlich gut insgesamt ehrlich gesagt! Platz sparst du nur ein, wenn die gerade Treppe rausfliegen darf - die braucht halt mindestens 12-13 Meter denke ich. Die 600k sind nur fürs Haus oder ohne Baunebenkosten usw?
ypg schrieb:
So ein ähnliches Haus wurde vor ca. 3 Wochen hier diskutiert. Sieht quasi genau so aus, nur ist die Einliegerwohnung im UG dort als Praxis gedacht.Hihi, es sieht tatsächlich aus wie https://www.hausbau-forum.de/threads/entwurf-efh-in-hanglage-mit-einliegerwohnung-und-doppelgarage.38480/ von einem erheblich jüngeren Architekten.https://www.instagram.com/11antgmxde/
https://www.linkedin.com/company/bauen-jetzt/
Ich bin dafür das UG als Wohn-Ebene zu planen und einen Stock weniger
- spart mehr Kosten, als die Förderung je bringt
- die Mehrfamilienhaus Optik verschwindet
- Garten- und Wohnen gibt eine Einheit ohne Mini-Terrasse die für viel Geld aufgefüllt wurde.
Warum ist die Garage im Westen und nicht im Osten?
Wie ist der Geländeverlauf
- spart mehr Kosten, als die Förderung je bringt
- die Mehrfamilienhaus Optik verschwindet
- Garten- und Wohnen gibt eine Einheit ohne Mini-Terrasse die für viel Geld aufgefüllt wurde.
Warum ist die Garage im Westen und nicht im Osten?
Wie ist der Geländeverlauf
Ich finde es immer eine Fehlplanung wenn das Wohnzimmer auf der Südseite an der Terrasse geplant ist. Zwischen draußen sitzen und Wohnzimmer besteht nämlich keinerlei Verbindung. Und beim TV schauen ist es auch nur störend, wenn die Sonne blendet. Deshalb muss die Küche genau dort hin wo das Wohnzimmer jetzt geplant ist. Getränke und Grillgut befinden sich nämlich selten im TV Board
Ähnliche Themen