Einfamilienhaus mit 135 qm Wohnfläche plus KG mit integrierter Garage/Büro

4,80 Stern(e) 6 Votes
Zuletzt aktualisiert 23.12.2025
Sie befinden sich auf der Seite 2 der Diskussion zum Thema: Einfamilienhaus mit 135 qm Wohnfläche plus KG mit integrierter Garage/Büro
>> Zum 1. Beitrag <<

E

evelinoz

die Küche ist so eher unpraktisch. Der Side By Side Kühlschrank kann in der Ecke nicht stehen, die Türen brauchen mehr Platz. Eine Theke passt nicht (das Haus ist nicht groß genug) und ist auch unnötig, weil der Tisch direkt daneben steht.

Und wie haydee schon angemerkt hat, Wohnzimmer und Küche tauschen wäre eine gute Idee.
 
Y

ypg

Die Treppe ist grundsätzlich falsch gesetzt. Man sieht: keine 3 vernünftigen Zimmer. Die teilt das Haus nicht so, dass man adäquate Wohnfläche oben bekommt.
Ich frag mich gerade: Innenarchitekten machen Deko und kennen sich gut mit Stilen aus. Auch geschichtliche, Barock, Chippendale und so. Mittlerweile nennen sie sich Homestager.
 
P

Pinkiponk

Wenn mir jemand sagt wie ich pdf.Dateien einfügen kann, wäre ich dankbar!!
PDF hochladen ist mir bisher nie gelungen und wie ich jetzt gelernt habe, sind die auch nicht sehr kommentatoren-freundlich und sollen ohnehin nicht hochgeladen werden. Möchtest Du Deine PDFs über einen Converter in jpg umwandeln? Es gibt kostenlose Converter, findest Du über die Google-Suche. Dann kannst Du über "Öffnen mit Paint" die Datei ggf. noch bearbeiten. Ist der einzige Weg, den ich bisher herausgefunden habe.
 
D

DaniMartinez

Ein paar Maße mehr währen nicht schlecht.

Garage raus und das UG mitgenutzt. Ihr plant ernsthaft ein Schlafzimmer bei dem einer von euch immer klettern muß? Das alleine währe ein Grund für eine Neuplanung.

Küche gehört zur Terrasse. Es ist praktischer. Man plant auch innen nicht grundlos den Essplatz in Küchennähe
Hi,
danke schon mal für die Infos. Das Schlafzimmer ist schon geändert bzw. die Treppe wird eine Viertelgewendelte Treppe und endet dann dort wo die grüne Linie den Boden zum Flur macht. Der Teil vom rechten Kinderzimmer, der größer war, wird zum Flur und hinten wo das Klo eingezeichnet ist, geht man in das Badezimmer! Die Toilette kommt dann in den Bereich wo die Ankleide war. Den Abstellraum würden wir in den Keller schieben!

Wo würdest du denn die Garage hinschieben? Hatte in einem anderen Beitrag gelesen das UG vorzuschieben... was genau ist damit gemeint?

Das Schlafzimmer ist der Brüller. Geht gar nicht! Sowas findet mein 8jähriger toll als Betthölle
386k€? Was ist da alles drin? Setzt mal bitte Die Kostenaufstellung rein.
Die Kostenaufstellung stelle ich gleich rein.

So steht das ja wohl nicht im Bebauungsplan (?)
Ne wurde auf Nachfrage verneint.

Ich stelle gleich nochmal einen zweiten Grundriss rein (der kommt von einem Architekten)! Und noch zusätzliche Bilder mit mehr Maßangaben etc.

die Küche ist so eher unpraktisch. Der Side By Side Kühlschrank kann in der Ecke nicht stehen, die Türen brauchen mehr Platz. Eine Theke passt nicht (das Haus ist nicht groß genug) und ist auch unnötig, weil der Tisch direkt daneben steht.

Und wie haydee schon angemerkt hat, Wohnzimmer und Küche tauschen wäre eine gute Idee.
Okay da das Grundstück an einem Südhang liegt und der Verlauf der Sonne dann so wäre, dass morgens in der Küche die Sonne wäre und dann weiter über Esszimmer und weiter Richtung Westen haben wir die Küche mit dem Wohnbereich so geplant das sie gen Süden zeigen, da man dort auch unverbauten Blick auf den angrenzenden Wald hat.
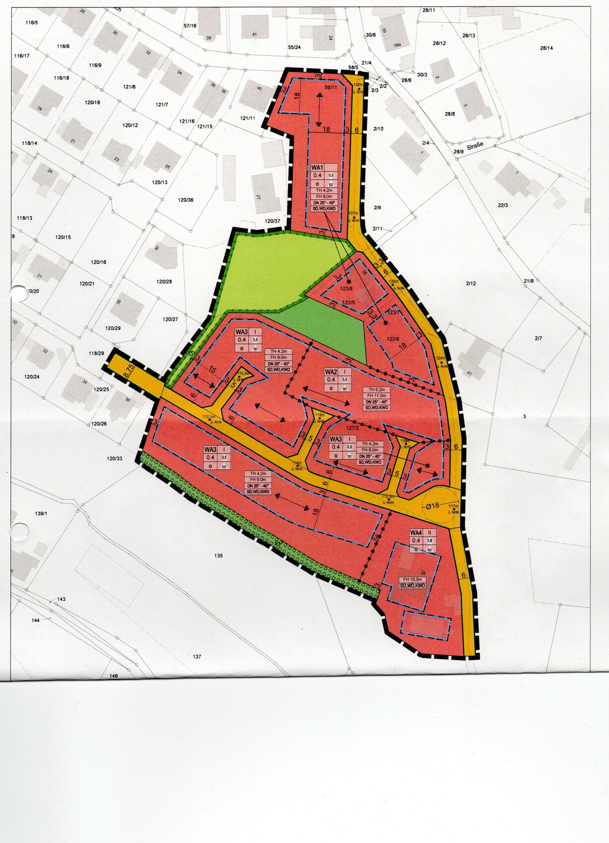
Ich stelle nochmal ein paar Bilder ein von der Lage des Hauses ein. Unser Grundstück wäre die Nummer 6!!

Danke schon mal für euer Feedback!!

Seiten mit Baukostenliste und Postenübersicht für ein Hausbauprojekt


Preisübersicht: Posten mit Preisen und Gesamtsumme in Euro (Brutto).


Grundrisse eines mehrstöckigen Hauses mit Garage, Treppen und Zimmern auf drei Etagen.


Anhang anzeigen grundstueck-grundriss-karte-lageplan.jpeg

Anhang anzeigen grundstuecksplanung-grundrissplanung-hausbau-entwicklungsgebiet.jpeg
 
Zuletzt aktualisiert 23.12.2025
Im Forum Grundrissplanung / Grundstücksplanung gibt es 2554 Themen mit insgesamt 88557 Beiträgen


Ähnliche Themen zu Einfamilienhaus mit 135 qm Wohnfläche plus KG mit integrierter Garage/Büro
Nr.ErgebnisBeiträge
1Grundrissplanung für schmales Grundstück - Seite 216
2Langes schmales Grundstück 170-190 qm 50
3Optimierung 150m² Einfamilienhaus @ 470m² & 19m schmalem Grundstück 20
4Fliesen oder Vinyl in Küche und Flur 19
5Treppe im Flur, Grundriss steht eigentlich schon :o( - Seite 320
6Wohin mit der Treppe? Dachausbau Walmdachbungalow - Seite 219
7 2 Vollgeschosse, Durchgang Garage, Hauswirtschaftsraum unter Treppe 25
8Grundrissfrage. Grundstück 369qm. Hausgröße 9x9 Meter 20
9Stadtvilla mit gerader Treppe, offene moderne Bauweise, 140m² 18
10Grundrissplanung: Flur im EG breit genug? - Seite 357
11Grundrissoptimierung Einfamilienhaus mit Keller auf kleinem Grundstück - Seite 5178
12Grundstück mit Einschnitt Stromstation / L-Form- Ideensuche - Seite 444
13Lage Stadtvilla oder Einfamilienhaus auf 500 m2 Grundstück-Rechteck - Seite 30586
14Einfamilienhaus 160m2 mit Keller, 500m2 Grundstück - Seite 8108
15Einfamilienhaus 220qm mit Keller auf 700qm Grundstück 41
16Grundstück Einfamilienhaus C630 Heinz von Heiden am Standort Sachsen - Seite 764
17Ausrichtung Haus auf Grundstück 12
18Grundrissentwurf Einfamilienhaus165qm ohne Keller auf 400qm Grundstück - Seite 16180
19Grundstück in Aussicht, Hausbau finanziell möglich? - Seite 10117
20Grundriss-Entwurf: Einfamilienhaus; mit Keller; 800qm Grundstück 10

Oben