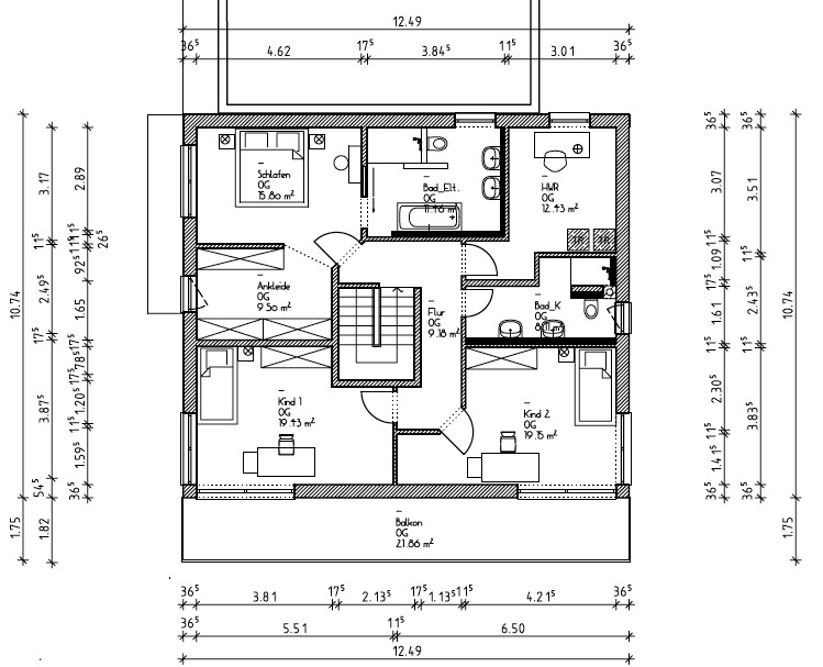
Hallo, ich bräuchte euren Rat, wie man eine bessere Einteilung vom Elternbad - Hauswirtschaftsraum Raum - zu Kinderbad hin bekommt.
Vorgaben:
Kinderzimmer sind Südseite
Kinderzimmer sollten annähernd gleich groß sein. In den Hauswirtschaftsraum Raum soll Trockner und Waschmaschine, da wir ohne Keller bauen.
Danke für eure Hilfe.
Vorgaben:
Kinderzimmer sind Südseite
Kinderzimmer sollten annähernd gleich groß sein. In den Hauswirtschaftsraum Raum soll Trockner und Waschmaschine, da wir ohne Keller bauen.
Danke für eure Hilfe.
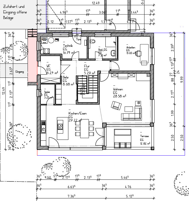
Hallo, der Eingang befindet sich auf der Westseite (pink) - Norden = Hauptstrasse.
Die Treppe ist absichtlich Richtung Norden gedreht, da wir die Treppen Richtung Süden (Küche/ Wohnzimmer) eher als unruhig (insbesondere in den Musterhäusern) empfunden haben.
Ich habe die Zeichnungen nochmals als .jpg hochgeladen.
Insbesondere würde mich eure Meinung zum Bild OG-angepasst interessieren, da ich die Zeichnung dementsprechend abändern lassen werde.
Gruß & Danke für die hilfreichen Antworten.




Die Treppe ist absichtlich Richtung Norden gedreht, da wir die Treppen Richtung Süden (Küche/ Wohnzimmer) eher als unruhig (insbesondere in den Musterhäusern) empfunden haben.
Ich habe die Zeichnungen nochmals als .jpg hochgeladen.
Insbesondere würde mich eure Meinung zum Bild OG-angepasst interessieren, da ich die Zeichnung dementsprechend abändern lassen werde.
Gruß & Danke für die hilfreichen Antworten.
Wie findest du denn deine Änderung im OG?
Der Eingang in den Hauswirtschaftsraum geht durchs Kinderbad. Der Eingang zur Dusche ist gefühlt 40cm breit. Das Fenster im Kinderbad wäre dann weg.
Habt ihr keinen Architekten der für Euch die Planung durchführt? Ich persönlich habe nach dem ersten Entwurf und vielen Stunden und Nächten mit Kopfzerbrechen erkannt, das dies nicht mein Job ist.
Der Eingang in den Hauswirtschaftsraum geht durchs Kinderbad. Der Eingang zur Dusche ist gefühlt 40cm breit. Das Fenster im Kinderbad wäre dann weg.
Habt ihr keinen Architekten der für Euch die Planung durchführt? Ich persönlich habe nach dem ersten Entwurf und vielen Stunden und Nächten mit Kopfzerbrechen erkannt, das dies nicht mein Job ist.
Also: der OG-original ist besser, aber auch schlecht.
Als erstes nehme mal mittig im Süden diese Beule aus dem einen Kinderzimmer und plane von beiden Seiten dort je einen Einbauschrank ein. Davon haben beide einen Nutzen, das Haus einen Mehrwert und die Beule ist sinnig geplant.
Den Rest muss ich mir noch mal anschauen. Was allerdings unmöglich ist, ist der Zugang zum Hauswirtschaftsraum sowie das Stolpern über die Badewanne im Bad.
Zugang zum Schlafzimmer würde mir persönlich nicht gefallen, aber damit kann man leben, wenn die Ankleide eh nicht geschlossen ist und somit im jeden Fall der noch Liegende in seiner Ruhe gestört wird.
EG gefällt mir!
Mobiler Gruß von unterwegs
Als erstes nehme mal mittig im Süden diese Beule aus dem einen Kinderzimmer und plane von beiden Seiten dort je einen Einbauschrank ein. Davon haben beide einen Nutzen, das Haus einen Mehrwert und die Beule ist sinnig geplant.
Den Rest muss ich mir noch mal anschauen. Was allerdings unmöglich ist, ist der Zugang zum Hauswirtschaftsraum sowie das Stolpern über die Badewanne im Bad.
Zugang zum Schlafzimmer würde mir persönlich nicht gefallen, aber damit kann man leben, wenn die Ankleide eh nicht geschlossen ist und somit im jeden Fall der noch Liegende in seiner Ruhe gestört wird.
EG gefällt mir!
Mobiler Gruß von unterwegs
Hallo,
der Durchgang zum Hauswirtschaftsraum Raum durch das Kinderbad ist nicht optimal. Jedoch zur vorherigen Version deutlich besser. Das wäre ein Abstrich den wir in kauf nehmen müssten. Der Durchgang zur Dusche muss natürlich noch breiter werden. Ist nur ein Vorschlag zur originalen Zeichnung.
Unser Bauzeichner, hat leider nicht sehr viele kreative Ideen. Daher bin ich über jeden Vorschlag dankbar.
Lageplan mit Ausrichtung habe ich mit angehängt.

der Durchgang zum Hauswirtschaftsraum Raum durch das Kinderbad ist nicht optimal. Jedoch zur vorherigen Version deutlich besser. Das wäre ein Abstrich den wir in kauf nehmen müssten. Der Durchgang zur Dusche muss natürlich noch breiter werden. Ist nur ein Vorschlag zur originalen Zeichnung.
Unser Bauzeichner, hat leider nicht sehr viele kreative Ideen. Daher bin ich über jeden Vorschlag dankbar.
Lageplan mit Ausrichtung habe ich mit angehängt.
Vielleicht:
Neben Kind 2 die Ankleide, im NO das Schlafzimmer, im Nord Mitte das Elternbad, daneben (planlinks) das Kinderbad und wo jetzt die Ankleide ist plus Ecke NW den Hauswirtschaftsraum.
Dadurch habt ihr das Schlafzimmer im Osten, den Zugang zum Schlafzimmer durch die Ankleide. Ihr habt dort eben mehr Raumbreite zur Verfügung.
Dafür nutzt ihr die nicht so breite Fläche im Norden für beide Bäder (kurze Leitungen) und den Rest als Hauswirtschaftsraum. Die Wäsche kann dann ungestört über dem Eingang rumschleudern.
Mobiler Gruß von unterwegs
Neben Kind 2 die Ankleide, im NO das Schlafzimmer, im Nord Mitte das Elternbad, daneben (planlinks) das Kinderbad und wo jetzt die Ankleide ist plus Ecke NW den Hauswirtschaftsraum.
Dadurch habt ihr das Schlafzimmer im Osten, den Zugang zum Schlafzimmer durch die Ankleide. Ihr habt dort eben mehr Raumbreite zur Verfügung.
Dafür nutzt ihr die nicht so breite Fläche im Norden für beide Bäder (kurze Leitungen) und den Rest als Hauswirtschaftsraum. Die Wäsche kann dann ungestört über dem Eingang rumschleudern.
Mobiler Gruß von unterwegs
Ähnliche Themen