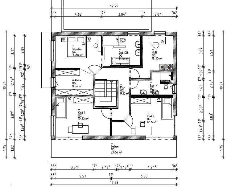
Hallo, ich bräuchte euren Rat, wie man eine bessere Einteilung vom Elternbad - Hauswirtschaftsraum Raum - zu Kinderbad hin bekommt.
Vorgaben:
Kinderzimmer sind Südseite
Kinderzimmer sollten annähernd gleich groß sein. In den Hauswirtschaftsraum Raum soll Trockner und Waschmaschine, da wir ohne Keller bauen.
Danke für eure Hilfe.
Vorgaben:
Kinderzimmer sind Südseite
Kinderzimmer sollten annähernd gleich groß sein. In den Hauswirtschaftsraum Raum soll Trockner und Waschmaschine, da wir ohne Keller bauen.
Danke für eure Hilfe.
J
j.bautsch05.10.17 10:46Ich hätte da noch mal einen anderen Ansatz, falls gewünscht:

Die Maße stimmen so natürlich nicht ganz und auf Mauerstärken habe ich auch verzichtet
Ich habe den Grundriss so angepasst wie ich es bauen würde, denn Grundsätzlich gefällt mir eure Planung sehr gut, auch das EG hab ich für mich noch angepasst
Landet def. in meinem "Ideen Ordner"
Edit: UPS fallsche Ausrichtung bzw. Beschriftung dann verkehrherum
Die Maße stimmen so natürlich nicht ganz und auf Mauerstärken habe ich auch verzichtet
Ich habe den Grundriss so angepasst wie ich es bauen würde, denn Grundsätzlich gefällt mir eure Planung sehr gut, auch das EG hab ich für mich noch angepasst
Landet def. in meinem "Ideen Ordner"
Edit: UPS fallsche Ausrichtung bzw. Beschriftung dann verkehrherum