Einfamilienhaus in Hanglage, Grundriss: Holzständerbau und Betonfertigkeller

4,50 Stern(e) 4 Votes
Zuletzt aktualisiert 21.11.2025
Sie befinden sich auf der Seite 3 der Diskussion zum Thema: Einfamilienhaus in Hanglage, Grundriss: Holzständerbau und Betonfertigkeller
>> Zum 1. Beitrag <<

M

milkie

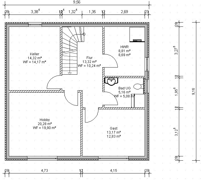
Ein Kind bekommt dann 20qm, das andere 13. Irgendwie ungerecht aufgeteilt. Ich bin zwar kein Verfechter der exakt gleich großen Kinderzimmer, aber 7qm Unterschied ist schon gewaltig!
Die Treppe wird man jetzt kaum noch ohne Änderung der Außenansichten ändern können. Dadurch würde sich ja die ganze Raumaufteilung ändern. Laufrichtung ändern bringt mit Keller natürlich auch nichts.
 
Uwe82

Uwe82

Ein Kind bekommt dann 20qm, das andere 13. Irgendwie ungerecht aufgeteilt. Ich bin zwar kein Verfechter der exakt gleich großen Kinderzimmer, aber 7qm Unterschied ist schon gewaltig!
Die Treppe wird man jetzt kaum noch ohne Änderung der Außenansichten ändern können. Dadurch würde sich ja die ganze Raumaufteilung ändern. Laufrichtung ändern bringt mit Keller natürlich auch nichts.
Ja, das ist richtig, aber da unten einfach nicht zu ändern. Außer wir vergrößern den Keller, was wir nicht brauchen. Wir haben viel ausprobiert mit der Treppe, aber aufgrund unserer Vorgaben ließ sich das nicht anders lösen: Küche, Ess- und Wohnbereich möchten wir so haben aufgrund der Ausrichtung des Grundstücks und damit auch des Gebäudes. Eine Alternative wäre noch ein Erker vor dem Gästezimmer gewesen, wodurch aber die Kosten stark gestiegen wären, deswegen haben wir darauf verzichtet.

Die unterschiedliche Größe resultiert dann aber auch noch aus der Überlegung, dass wir eventuell später daraus eine Einliegerwohnung machen können wollen, wenn wir den Platz nicht mehr brauchen.
 
f-pNo

f-pNo

Hallo,

zu Deinen Entwurf sage ich jetzt mal nichts - ich habe für so etwas i.d.R. nicht das richtige Auge .

Ausrichtung: Südwest
favorisierte Heiztechnik: Luft-Wasser-Wärmepumpe mit Solarkollektoren
4900[/ATTACH]
Ein Punkt in der Zeichnung ist mir aber aufgefallen.
Ihr wollt - favorisiert - eine LLWP mit Solar erstellen. Aus welchem Grund wird denn dann ein Schornstein erstellt?
Oder ist es nur eine Macke des Architekten, dass er einen Rauchabzug in die Zeichnung setzt? Vielleicht kenne ich mich mit dem System auch nicht so gut aus und ein Abzug ist zwingend notwendig.

Der Grund, weshalb ich dies anspreche, ist folgender:
Bzgl. Solar wurde mir in unserer Planung mehrfach von verschiedenen Experten gesagt, dass schon die kleinste Verschattung (nur ein paar cm²) auf dem Modul, die gesamte Leistung des Moduls stark negativ beeinflusst - wenn ich mich richtig erinnere, beträgt der Leistungsverlust dann um die 80%.
Euer Schornstein/Abzug könnte zu so einer Verschattung führen. Um dies zu vermeiden, solltet Ihr evtl. den Abzug auf die andere Dachseite verlegen.
 
Uwe82

Uwe82

Vielen Dank für den Hinweis, das hatte ich noch gar nicht bedacht. Der Schornstein ist nicht für die Luft-Wasser-Wärmepumpe gedacht, sondern für den Kamin. Wir wollten keinen innen liegenden Kamin, da er Platz weg nimmt und wir selbigen sowieso wahrscheinlich erst später machen. Denn im Grund ist der Ofen in dem Haus nur ein Gemütlichkeitsfaktor und deswegen hat er eine niedrige Prio, da wird erst in andere Sachen investiert. Wir wollten ihn nur in der Baugenehmigung drin haben, dass wir nicht nachgenehmigen müssen.
 
Uwe82

Uwe82

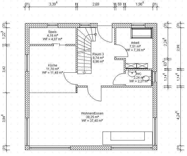
Wir haben nun unseren Grundriss leicht überarbeitet:
  • Speisekammer leicht vergrößert
  • Gäste-WC verkleinert und kleine Garderobe eingefügt
  • Kleine Stützmauer zwischen Küche und Wohnbereich eingefügt, da die Küche 3,42m Breite haben wird
  • Im OG-Bad haben wir die Dusche etwas verkleinert, die Toilette dahinter platziert und eine Eckbadewanne eingefügt. Dahinter kommt eine 60cm hohe Ablage als Vorwand mit Wäscheabwurfschacht
  • Der Technikraum im UG wurde vergrößert und daher ein Zimmer verkleinert
Die Grundrisse habe ich selbst erstellt, die von unserem Architekten sind noch nicht fertig

Grundriss eines Hauses: Küche, Speis, Wohnen/Essen, Raum 3, Arbeitszimmer, WC, Treppe


Grundriss eines Wohnhauses mit Flur, Bad, Eltern- und zwei Kinderzimmern


Grundriss Untergeschoss: Flur, Keller, Hobby, Gast, Bad UG, HWR und Treppe.
 
kbt09

kbt09

Wenn die 2m-Linie aus dem Erstentwurf bleibt, was ich aufgrund der Dachdaten und Traufhöhe vermute, dann sitzt du im OG mit dem WC jetzt unterhalb dieser 2 m-Linie im Bereich der Deckenhöhe von 150 bis 200 cm. Im Erstentwurf hattest du von dem Doppelflügelfenster über dem WC die Kopffreiheit fürs WC. Deshalb war das Doppelflügelfenster dort . Jetzt hast du Kopfschmerzen, wenn du vom WC aufstehst

Der Wandstummel im EG bei der Küche vergrößert ja nun nicht die Küche.

Und, wenn wirklich der Gedanke ist, den Kindern später mal die Kellerräume zu geben, dann würde ich schon sehen, dass die Zimmer halbwegs gleich groß sind. Und das Bad dort auch etwas anders gestalten, denn 195 cm Rohbaubreite für eine vernünftige Dusche und WC daneben ist nicht so prickelnd. Auch im Hinblick auf eine abtrennbare Wohnung, wobei ich die Abtrennbarkeit dann auch mal simulieren würde.
 
Zuletzt aktualisiert 21.11.2025
Im Forum Grundrissplanung / Grundstücksplanung gibt es 2535 Themen mit insgesamt 87982 Beiträgen


Ähnliche Themen zu Einfamilienhaus in Hanglage, Grundriss: Holzständerbau und Betonfertigkeller
Nr.ErgebnisBeiträge
1Optimierungsbedarf? Einfamilienhaus mit 130 m² + Keller 26
2Bungalow geplant auf vorhandenem Keller: Ideen? - Seite 220
3Einfamilienhaus 220qm mit Keller auf 700qm Grundstück - Seite 741
4Grundriss Einfamilienhaus 1,5 + Keller / 1. Vorentwurf - Vorschläge? 55
5Grundriss Einfamilienhaus ~165m² plus Keller - Seite 9165
6Grundriss-Entwurf: Einfamilienhaus mit Keller; 560qm Grundstück 65
7Vorplanung mit dem Architekten - eigener Grundriss sinnvoll? 18
8Häuser ohne Keller: Stauraum Hobby-Keller? 49
9Grundriss Einfamilienhaus, ca. 200qm ohne Keller - Einschätzung - Seite 19172
10Grundrissfrage, Treppe, Fenster, Ausrichtung 12
11Einfamilienhaus mit kleiner Grundfläche, DG und Keller, Zustimmung Nachbar - Seite 531
12Grundrissplanung Keller, EG + DG 12
13Grundriss 180qm plus Keller - 12,40mx9,04m 21
14Planung/Grundriss Einfamilienhaus (ca. 140 qm, Keller, EG, DG) - Seite 230
15Jetzt der finale Grundriss - 189qm ohne Keller; Stadtvilla - Seite 424
16Grundriss Einfamilienhaus, 140 qm mit Keller - Seite 340
17Kosten Umbauter Raum. Erstentwurf mit Architekten besprochen - Seite 327
18Baukosten Einfamilienhaus 190m² + Keller inkl. Einliegerwohnung - Seite 228
19Werkplanung Einfamilienhaus 180qm Flachdach mit Keller & Doppelgarage 142
20Einfamilienhaus zwei Vollgeschosse, Pultdach, kein Keller 31

Oben