Hausbau - Ratgeber
Bauherrenhilfe
- Bauherrenhilfe vor Vertragsabschluss
-- Warum einen unabhängigen Baubetreuer?
-- Vertragsgrundlagen
-- Bausumme
-- Zahlungsplan zur Kostenkontrolle
-- Pflichten des Bauherren vor Vertragsabschluss
-- Unterlagen beim Hausbau vor Vertragsabschluss
- Bauherrenhilfe nach Vertragsabschluss
-- Bauantrag bei Behörden
-- Bau-Genehmigungsverfahren bei Baubehörden
-- Bauspezifische Versicherungen
-- Bauzeitenplan
-- Baubeginn - die Letzten Pflichten der Bauherrschaft
- Bauherrenhilfe während der Bauzeit
- Gewährleistungsansprüche
- Bauabnahme
Baufinanzierung
- Baufinanzierung - Allgemeine Fragen
- Kreditarten
- Kredit-Konditionen
- Bausparen
- Staatliche Förderungen
- Verkehrswert
- Haushaltsrechnung und Bonität
Hausbau Planung
- Haustypen
- Hausbau Vorbereitungsarbeiten
- Das Baugrundstück
- Baugrund beim Hausbau
- Baurecht
- Gebäudeschutz
- Erdarbeiten und Wasserhaltung
- Stützmauern
- Einfriedung
- Untergeschoss
- Kanalisation
- Tragende Elemente
- Nichttragende Innenwände
- Fundation / Fundament
- Deckenkonstruktionen
- Dächer
- Kaminanlagen
- Treppen Rampen Leitern
- Dachbeläge und Spengler
- Fenster
- Sonnen und Wetterschutz
- Aussenputze
- Einbauten, Küchen, Türen
- Bodenbeläge und Unterlagsböden
- Parkett
- Gips, Wand, Decke
Haustechnik und Energie
- Heiztechnik
- Lüftung und Klimatechnik
- Sanitärtechnik
- Elektrotechnik
- Erneuerbare Energie
Whirlpools / Jacuzzi
Hausbau Magazin
- Baufinanzierung trotz Krise?
- Das Blockhaus
- Moderne Dämmstoffe im Vergleich
- Erker Vor- und Nachteile
- Glasflächen beim Hausbau
- Günstig ein Haus Bauen
- Mediterraner Hausbaustil
- Mehrgenerationenhaus
- Moderne Architektur
- Gartengestaltung leicht gemacht
- Traditioneller Ziegelbau
- Villa als höchster Traum
- Im Eigenheim Ruhestand geniessen
- Altbau sanieren
- Kauf einer Holzgarage
- Immobilienmakler
- Arbeitshandschuhe für den Winter
- Zuhause verschönern
- Outdoor-Plissees
- Schlafzimmer planen
- Terrassenüberdachung
- Wohngebäudeversicherung
- Zaunarten und Eigenschaften
- Hauseingang gestalten
- Der perfekte Grundriss
- Sparsamer heizen im Altbau
- Einfamilienhaus smart finanzieren
- Planung einer PV-Anlage
- Neues Haus
- Immobilienfinanzierung
- Installation einer Photovoltaikanlage
- Asbest erkennen und entfernen
- Gartenpflege im Frühling – worauf achten
- Sauna im Fokus - Wellness zuhause
- Erfolgreich vermieten
- Die perfekte Winterbekleidung
- Das Niedrigenergiehaus
- Der April und seine Stürme
- Architektonische Vielfalt
- Ökologisch und nachhaltig bauen
- Das perfekte Schlafzimmer
- Nachhaltige Energieversorgung
- Zukunftsorientiert bauen
- Nachhaltigkeit beim Hausbau
- Tiny Houses
- Wärmepumpen als nachhaltige Heizvariante
- Maßgeschneiderten Kleiderschrank
- Der richtige Baukredit
- Ratgeber für erfolgreichen Hausbau
- Haus als Altersvorsorge
Do-it-yourself Anleitungen
- Verlegeanleitung für Bodenbeläge und Parkett
- Bodenbeläge und Parkett reinigen und pflegen
- Malerarbeiten am Haus
- Garten Tipps
- Umzug und Reinigung

ᐅ Einfamilienhaus Grundriss Südhang

Erstellt am: 21.04.19 12:48
B
brieftaube
B
brieftaube
21.04.19 12:48
Hallo zusammen, anbei unser aktueller Planungsstand.

Bebauungsplan/Einschränkungen
701 qm
Südhang
Grundflächenzahl: 0,4
Geschossflächenzahl 1,2
Baufenster, Baulinie und -grenze
siehe Bild, Überschreitung des Hauptgebäudes um 1,5 auf einer Seite ist zulässig
Doppelgarage mit 7 Meter Stellfläche vorher (seitliche Zufahrt)
1,5 mit Keller (Keller kein Vollgeschoss)
Statteldoch 38-48 Grad
Klassisch
Ausrichtung Süden, d.h. First West-Ost

Anforderungen der Bauherren
Klassisches Satteldach mit Flachdach-Vorbau (graue Ziegel)
Keller (kein Vollgeschoss), Erdgeschoss, Dachgeschoss)
4 Personen, Kinder 4 und 2
Büro: Homeoffice, derzeit noch als Hobbyraum im Keller falsch bezeichnet
Keine Schlafgäste
offene Architektur
moderne Bauweise
offene Küche Kochinsel
min 6 Essplätze
Kamin
Metall-Bakon soll nach Süden noch angebaut werden
Doppelgarage
schöner Südgarten
Auch wenn die offene Kragarmtreppe mitten im Haus viel Platz braucht, soll diese auf jeden Fall so kommen.

Hausentwurf
eigener Entwurf mit Unterstützung bekannter Bauzeichner
Im Bad und im Gang DG fehlen noch Dachfenster, die nicht eingezeichnet sind.
Was gefällt besonders? Kinderzimmer zunächst im DG, Wenn die Kinder größer sind können sie in den Keller ziehen. Zwei Größe Zimmer mi Südausrichtung und Bad.
Treppe soll Kragarmtreppe mit Glaswand werden
Was gefällt mir nicht? Der Weg von Garage zum Haus ist recht weit...

favorisierte Heiztechnik: Fußbodenheizung, Luftwärmepumpe, Photovoltaikanlage aufs Dach

Warum ist der Entwurf so geworden, wie er jetzt ist?
Unsere Wünsche wurden versucht so gut es geht für das Grundstück umzusetzen

Was haltet Ihr davon? Wo seht ihr Schwächen? Vielen Dank für Eure Rückmeldungen.

Lageplan einer Siedlung mit Gebäuden, Grünflächen und Wegen


Dachgeschoss Grundriss mit Schlafzimmer, zwei Kinderzimmern, Bad und Galerie


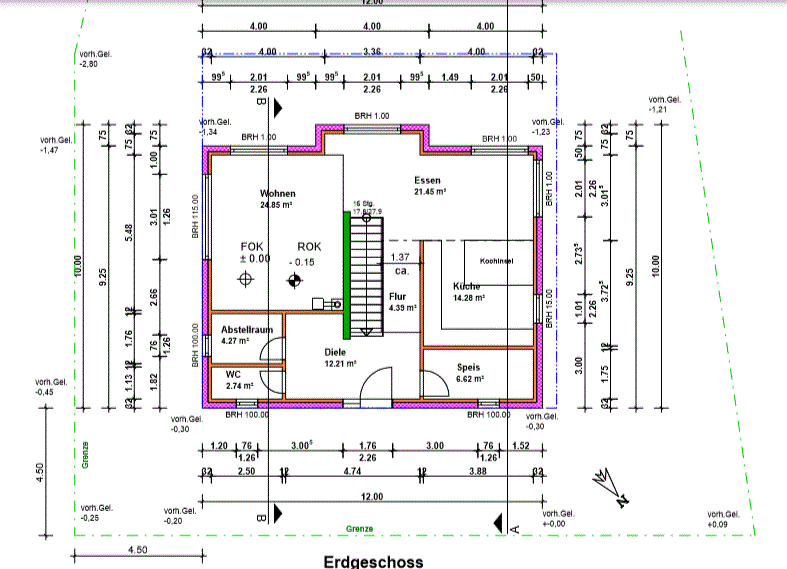
Grundriss Erdgeschoss eines Hauses mit Wohnzimmer, Küche, Flur, Abstellraum und WC.


Lageplan eines Grundstücks mit Parzellen, Straßenverlauf und Gebäuden.


Kellergeschoss Grundriss mit Hobbyraum, Bad, Technikraum und Abstellraum


Schnitt A-A eines mehrstöckigen Hauses mit Dachstuhl, Fenstern und Fundamenten.


Architektonischer Hausgrundriss-Schnitt mit Dachneigung und Stockwerken
K
kaho674
21.04.19 13:44
Seh jetzt keine Mega-Patzer.
Leider ist mir die Einfahrt bzw. Zuwegung noch nicht ganz klar + Garage.
Was mich stören würde:
- zuallererst die Küchenwand vor der Treppe. Weg damit und Küche drehen. Niemand braucht diesen Schlauchweg.
- mal das Bad möblieren. Der Schornstein könnte dort ziemlich stören, da dort zu 99% die Dusche hin muss. Ansonsten eventuell Einbauregal planen oder Schornstein ins Schlafzimmer schieben.
- Mal das Schlafzimmer möblieren. Seh ich das richtig, dass das Bett unters Fenster soll? Das ist natürlich nicht so genial.
H
hanse987
21.04.19 14:04
Garagenzufahrt seitlich. Muss das so werden? Für mich wäre diese Variante nix und ich glaube es könnte mit der Grundstücksbreite ganz schön eng werden.
H
hampshire
21.04.19 14:18
Ein gelungener und klarer Entwurf.
Küchenwand zur Treppe stört mich auch, ich würde sie halbhoch ausführen und die Küche nicht drehen. So entsteht statt dem schmalen Gang eine Art Tresenabtrennung.
Oben gute Schallschutztüren einbauen.
Der „Erkerstreifen“ erhöht Baukosten und bringt keinen praktischen Gewinn - eher nimmt er dem Esszimmer Mittagslicht. Wenn es optisch gewünscht ist - OK.
H
haydee
21.04.19 20:08
Wo ist der Gartenzugang geplant?
B
brieftaube
21.04.19 21:07
Vielen Dank schon mal für die Rückmeldungen. Die Überlegung die Wand zwischen Küche und Treppe wegzulassen hatten wir auch schon, konnten uns aber bislang noch nicht dazu durchringen. Werden das aber nochmals genau überlegen.

Ebenso hatten wir schon überlegt die Wand zwischen Wohnzimmer und Flur wegzulassen, um einen kürzeren Weg zur Toilette zu haben, aber die Garderobe mit Schiebetür an der Stelle war uns wichtiger.

Die Garage ist im Bebauungsplan tatsächlich mit seitlicher Einfahrt vorgesehen. Durch das Gefälle wäre das aber u.E. Nach auch nicht so schlimm. Die Garage (ca 7x7 Meter) und Vorfläche sind auf Höhenebene von dem Wendehammer. Der Garten wäre dann höher gelegen. Über eine Steintreppe kommt man östlich vom Haus zur Haustür im Norden. (Dass der Weg weit ist, ist uns natürlich bewusst, aber bessere Lösung ist uns da nicht eingefallen). Und den Eingang grundsätzlich mitten in die Südseite zu machen, hat uns auch nicht gefallen.

Gartenzugang ist natürlich zum Einen im Keller möglich. Als Gartenzugang vom Wohn/Esszimmer ist geplant den Stahlbalkon ums Eck Im Westen zu verlängern und dann mit einer Stahltreppe auch vom Erdgeschoss in den Garten zu können.
doppelgaragekellerkragarmtreppeküchenwandgartenzugangentwurfvollgeschosserdgeschosseinfahrtmöblieren